濠滨论坛

点击扫描二维码

查看: 422225|回复: 139

NO.9【2019年濠滨装修日记大赛】+【南辰濠郡】+【简约美式】+【锦华装饰】

[复制链接]

该用户从未签到

发表于 2018-12-28 14:09 | 显示全部楼层 |阅读模式 来自:上海
6 N! N4 ?6 G% {4 d

/ D! K2 J! k: j
基本信息栏
* ^+ w2 Z5 R; ?房型:3室2厅2卫5 z/ Q: ]1 M% t8 s% W
建筑面积:128.763 b3 p0 d- E% R& E: F% R4 n
装修预算:40万  H0 h+ C& R' K2 g0 h! Q9 b
包工方式:全包; b9 b- M- f; [* ^
装潢公司:锦华装饰) E& o2 x! S: }& l, l# G; r* k
设计师:陈瑜
( h! M: v/ S9 A, r$ K( q) q开工日期:2018年9月19日
4 \& s, M5 c) l+ {) Z, T) ?楼盘地址:南辰濠郡

# _, n, e9 p& Z1 W* _$ ]( i

  K+ I7 w: V( r7 L5 [* g- {开篇
9 W/ U) H& O& t关注濠滨论坛家居装潢已经有一年多了,之前学习前辈们的经验,为自己装修做准备。由于本人和我老婆工作比较繁忙,本不想开贴。, M$ v% |- [! J
但是为了记录自己的装修历程,和为了与大家分享由自己亲身经历积累的经验,最终决定开贴了。以下纯属本人即兴所述,如有言语不当希望大家见谅,谢谢。) y& c: a2 n  \! y8 x! Y

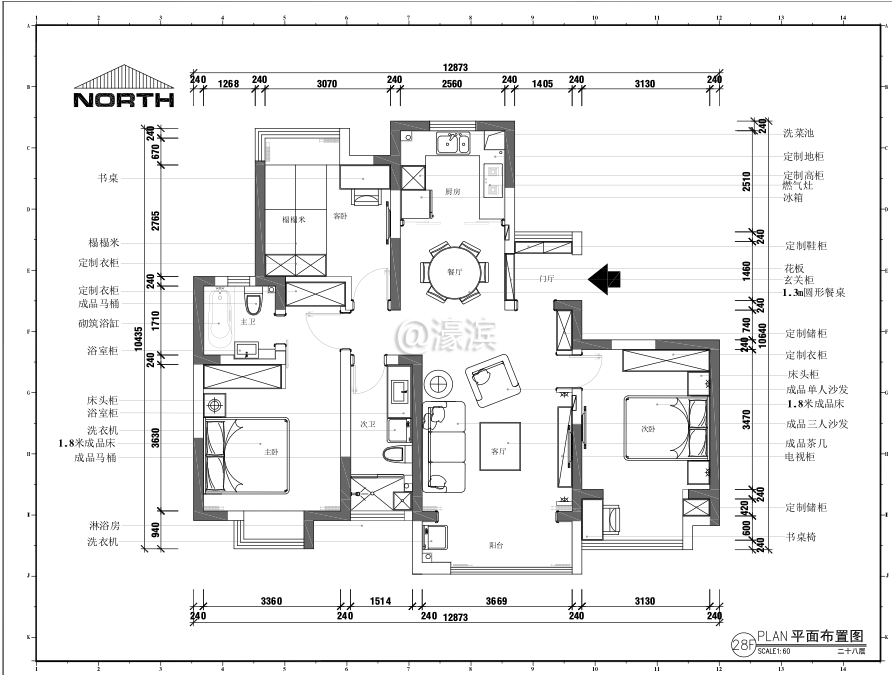
: Z; S4 J* s. z4 \2 ?平面图' a1 a# Y( M' P8 y7 T( \4 D2 x& b

平面设计图

平面设计图

$ \4 _1 f# b6 Z0 Z* P2 b7 T" j  d! w7 |& r. p* M9 l
直达电梯:" z  j6 U3 A; u' G& _- v+ C
1. 购房篇
. X) [1 T% }9 `2. 平面图& ~8 P) W. H, N$ d  l% P9 a
3. 选择装修公司! L3 T) ^  _! L
4. 看主材+ P5 C* t3 A+ I3 G+ A. |& U& @7 ~
5. 安装门的基层
- F" V: x3 a$ b7 h  n6. 中央空调的选择
6 q' V  L/ Z3 W' H7. 衣柜的选择' I5 l1 k0 l( q& S% _2 |
8. 橱柜的选择
  @7 j3 y+ P' x9 d9. 拿房篇
7 R9 ?& R$ }' ~3 L8 p% e# A10. 选购防盗门
# U6 q/ j3 v& Q, A11. 安装防盗门小插曲
. \. ?$ m! q7 z* w12. 开工仪式
2 X- ?* j) b0 w: {8 R& I13. 橱柜报价: ]' W6 ]' R1 n: m% R
14. 换移门、敲墙
* S) [5 v2 ]8 }1 R# D: X/ F: v15. 水电材料入场
& c9 h, q; e3 h! Y0 o$ e- ]9 H; K16. 封阳台, w; H% O% i1 T1 p9 x
17. 贴砖
' p# G* K* ?% Z2 D' h! U  L: r$ u18. 木工进场
0 p. ]8 O+ K/ ^' `# h! Z19. 关于投影幕布
7 v& w, F/ e8 {. u9 H20. 过门石价格参考: H$ t" C1 P& X# Z; U" B. `
21. 关于卫生间吊顶
$ z4 s% m* q2 B+ r2 b0 u- N8 X22. 安装好后顶面吊顶和基层是平齐的
- v0 F$ }- i, P23. 说说石膏线
+ L& l: Y) D+ O- v1 U24. 批腻子
9 a* E5 F& W3 [0 ?/ X5 ]% Q25. 做美缝+ {( V3 O, P; s* f1 y) p$ b* X$ z
26. 安装燃气热水器" Y* }5 X4 ?/ |+ y' B- _# T
27. 安装橱柜
8 W; m, M9 s! s) |" q8 t3 l28. 安装木地板、踢脚线
  k0 z* ]9 i, @" H$ Z29. 安装衣柜8 q' A' v( y* g6 u. V
30. 次卧衣柜改善% h- j# }0 y- X$ f
31. 木门重新安装7 F6 Y$ g3 S. [& B
32. 儿童房门、主卧仓谷门、卫生间门
7 Y. W  D0 H3 d9 {3 b' R7 ]33. 卫生间门套改为窄边
5 }( S' S$ q! `# v34. 门锁、衣柜把手、合页- X/ {9 W% [% O6 f$ U4 W
35. 墙布铺贴完毕1 L; U  t0 F; G! ~! L! \
36. 卫浴五金. t) K# T/ C* l

$ k) Z, Y% `) o# g
& \7 I; u8 `! A' Z' N1 s( S) o! B( Q$ |$ U# c+ p

& k: Z5 m. P: Z7 @& f, L& ]& O4 ^  _; G& w
5 H7 \6 T0 O4 ]4 ~: z) S

" G# n$ }8 Y* B' \6 B7 Y9 c* c
+ |4 Q* J. e, j' |1 r9 n: L/ z" q0 L2 J, {3 I
. V: {, [7 g2 N$ s+ m. [- j: a
南通0

该用户从未签到

 楼主| 发表于 2018-12-28 18:57 来自手机WAP | 显示全部楼层 来自:江苏 移动/数据上网公共出口
购房篇& s0 N; X* }1 R
从有买房的想法到确定签购房协议没有耽误多长时间,大概耗时一个月。因为目标很明确,为了小孩上小学和改善住房条件,主要寻找学区房,价格要在自己能够承受的范围内。由于有父母要和和我们住一起,一定要选三室的房子。2016年3月初开始有购房想法,4月初房子第二次开盘就确定买了这套房子。当时看了中南世纪城二手房,因为很喜欢中南那个地段,主要有良好的双学区学校,有大商场可以购物,有文化氛围的图书馆,有体育、娱乐环境的体育会展中心。但是最终因为现实---没钱,放弃了。因为三室的要130多平方,当时价格在12000多一平米,总价要160多万,而且买二手房首付要50%,结果就没就没结果了。后来又看了东边的骏和棕榈湾,当时感觉太偏放弃了,当时那里房价只有9000左右哦。又看了吴中豪景华庭,和德诚翠湖湾,因为价格可以承受,三室将近140平方,单价在9500左右,这两个小区环境都挺好,后来还是因为学区放弃了。然后又看了城市嘉苑小洋房,环境好,单价12000多点,小学是一附朝晖校区很好,中学是易家桥中学就一般了。本人还是觉得小学培养习惯,初中还是更重要的。最后看了这个南辰濠郡,小学是郭里园小学,初中是市三中,当时也因为是小开发商开发的,还是将近两年的期房而犹豫,因为我家18年9月要上小学,7月份报名,当时担心延期交房(后来真的延期了),销售保证会准时交房不会耽误小孩上学,就决定等4月初开盘买。因为2月底开盘后尾盘没有几套剩余,楼层不好就决定等4月开盘买。4月开盘后才发现没有后悔药可吃,涨价了,比前面开盘贵1000一个平方,而且销售火爆,开盘没买到,后来捡漏买到了,楼层没得选择。因为感觉后面房价还要再涨(后来事实证明我的想法是对的),就当时签订了购房协议。
回复 支持 反对

使用道具 举报

该用户从未签到

 楼主| 发表于 2018-12-28 19:50 来自手机WAP | 显示全部楼层 来自:江苏 移动/数据上网公共出口
这是小区楼顶全景,还是不错的。
20181228194919
回复 支持 反对

使用道具 举报

该用户从未签到

 楼主| 发表于 2018-12-28 19:55 来自手机WAP | 显示全部楼层 来自:江苏 移动/数据上网公共出口
下面是小区的平面图
20181228195458
回复 支持 1 反对 0

使用道具 举报

该用户从未签到

 楼主| 发表于 2018-12-28 19:57 来自手机WAP | 显示全部楼层 来自:江苏 移动/数据上网公共出口
下面就是我家的原始平面图
20181228195741
回复 支持 反对

使用道具 举报

该用户从未签到

发表于 2018-12-29 09:11 | 显示全部楼层 来自:江苏
116276619 发表于 2018-12-28 18:575 L( c8 w% t* g
购房篇
  T/ ^6 {, M. C  L" ~从有买房的想法到确定签购房协议没有耽误多长时间,大概耗时一个月。因为目标很明确,为了小孩上小 ...
2 n$ {5 p6 g3 u4 r5 S% Y- N) e
读了业主大大你的购房经历,小编深有体会,
毕竟自己今年4月买二手房也是折腾了好久,买房毕竟是大事一件
业主大大辛苦啦,在这里祝您早日住上新家哦~
# {: F% D1 ]% A, s' l8 m

3 I$ p4 Z$ i8 f7 O* N6 Y$ t
回复 支持 反对

使用道具 举报

该用户从未签到

发表于 2018-12-29 09:13 | 显示全部楼层 来自:江苏
116276619 发表于 2018-12-28 19:50
7 P# v3 @9 u6 R2 B5 f8 _' d: s这是小区楼顶全景,还是不错的。

' C/ ]1 ?8 F8 C( ?: T
很漂亮,南通市区美景尽在眼下

* V7 j: c3 D, e# @9 P
3 i4 r, ~% R6 X( O! |" I: q! n
回复 支持 反对

使用道具 举报

该用户从未签到

 楼主| 发表于 2018-12-31 21:14 | 显示全部楼层 来自:上海
锦华装饰 发表于 2018-12-29 09:130 |1 r7 g! ^  G; A2 u
很漂亮,南通市区美景尽在眼下
8 Z! R* K2 \3 z3 S5 A: b, m# O/ L
谢谢,新家还在装修中,请多关照。2 s5 ?! Y0 R6 L7 o3 R
回复 支持 反对

使用道具 举报

该用户从未签到

 楼主| 发表于 2018-12-31 21:21 | 显示全部楼层 来自:上海
关于新房装修的问题,由于本人和老婆平时工作比较忙,不能和第一套房子装修时相比。8年前装修第一套房子时,是通过同学介绍的亲戚来装修的。就是一个包工头总负责。只包人工,所有材料都是我来采购的,细到螺丝钉都是我负责。当时才毕业两年,钱包money有限,也了解了一下装修公司,都太贵了。只能退而求其次,选择清包。
回复 支持 反对

使用道具 举报

匿名
发表于 2019-1-4 15:57 | 显示全部楼层 来自:江苏
提示: 作者被禁止或删除 内容自动屏蔽
回复 支持 1 反对 0

使用道具 举报

该用户从未签到

发表于 2019-1-4 15:59 | 显示全部楼层 来自:江苏
添加小编微信,拉你进群,更新装修直达电梯哦~
* D1 U6 K7 ?" m6 y7 k
回复 支持 反对

使用道具 举报

该用户从未签到

 楼主| 发表于 2019-1-4 21:11 来自手机WAP | 显示全部楼层 来自:江苏 移动/数据上网公共出口
南海姑娘 发表于 2019-1-4 15:57
/ y+ v' |4 [) R6 \$ V/ Y8 K怎么戛然而止了!求更新!

. d7 |1 q2 |3 Q7 r最近太忙,没时间更新。
回复 支持 反对

使用道具 举报

该用户从未签到

 楼主| 发表于 2019-1-4 23:03 来自手机WAP | 显示全部楼层 来自:江苏 移动/数据上网公共出口
装修公司刚开始关注2016年网红店---盛XX家,现在感觉也挺有实力的。2017年初还参加了该公司的装修工地看房团,由于当时对装修了解甚少,只是参加增长经验,后续也没联系。2017年又关注北京XXX装饰,第一次去和设计师谈了一些装修理念,设计师也很有经验,对各方面装修注意事项、理论都很了解。那时候还有大半年才到开发商约定的交房日期,设计师那里就已经有了房子户型图。不得不佩服装修公司的服务和敬业精神,还出了三套装修设计图。谈了大概一个多小时,感觉挺好的。后续发生的事我就放弃了XX峰装饰公司。是因为我第一次去了之后没几天,我还没告诉他我家的装修具体想法和设计要求,对方已经把半包的报价报给了我,而且几次告诉我搞活动有优惠,交钱定下来。这让我很反感。后来接触到锦华,感觉挺好就慢慢的跟着锦华的脚步走了。
回复 支持 反对

使用道具 举报

该用户从未签到

 楼主| 发表于 2019-1-4 23:10 来自手机WAP | 显示全部楼层 来自:江苏 移动/数据上网公共出口
锦华的全包套餐就是在半包的基础上添加至少六项主材,和有些装修公司不一样。主材要在他们合作品牌范围内,包含橱柜、衣柜、门,地板、地砖、吊顶、插座副灯、卫浴等主材。品牌合作见下图,后续了解到合作品牌又增加了很多。
回复 支持 反对

使用道具 举报

该用户从未签到

 楼主| 发表于 2019-1-4 23:14 来自手机WAP | 显示全部楼层 来自:江苏 移动/数据上网公共出口
主材合作品牌
20190104231348
回复 支持 反对

使用道具 举报

该用户从未签到

 楼主| 发表于 2019-1-4 23:41 来自手机WAP | 显示全部楼层 来自:江苏 移动/数据上网公共出口
涉及装修风格,我和老婆都挺喜欢小美风格,而且是深色系的简美风格。是不是年纪大了喜欢的颜色也由第一套白色美式变成了深色美式?后来就没多考虑就确定了风格。后来才知道美式有点耗钱,比起现代等风格,但比中式便宜,不能同一而论,还是要看每个人的装修理念。装修是个无底洞啊。刚开始没考虑全包,主材只是随便看看。到了2017年9月,距离约定交房日期还有三个月,开始看看主材了。那个时候已经确定X华装修公司了,交了部分设计费。看了马XX罗的地砖,因为将近国庆搞活动,人挺多的,由于装修效果还没出,就匆忙看了看交了意向金锁定当天的各型号砖优惠价格就撤了。
20190104234117
回复 支持 反对

使用道具 举报

该用户从未签到

 楼主| 发表于 2019-1-5 00:02 来自手机WAP | 显示全部楼层 来自:江苏 移动/数据上网公共出口
17年9月份,还看了索XX衣柜,因为当时看了包子的冠军贴,早点锁定价格便宜点。装修材料每年都会涨价,房价上涨也同时带动了装修材料的价格上涨。没办法,为了能价格优惠,也交了意向金。这里要提醒一下大家,交钱的时候一定要注意是否可以退。不要招来不必要的麻烦。由于有一个大学同学在X家木业工作,所以没有多想,地板和门都交给他了。17年国庆节过后就开车冲到了无锡去了他们的门店看看,由于那时候考虑装地暖,只看了复合地板和门(后来改变了主意没有装地暖)。但是门是看中了,一年多过去了还是选择了这扇门。
20190105000214
回复 支持 反对

使用道具 举报

该用户从未签到

 楼主| 发表于 2019-1-5 00:25 来自手机WAP | 显示全部楼层 来自:江苏 移动/数据上网公共出口
关于门的要求,我朋友说要尽量大一点。高一点好看大气,所以我的门都是到顶的,希望效果好一些。下面是今天2019年1月4日拍的门洞照片,因为要和项目经理、设计师和木工交接一下门的安装,基层怎么处理。为了如何安装门的基层已经苦恼了几天了。负责量门的师傅来我家量门,结果看了一眼走了。说基层都没打,卫生间墙砖没贴好不好量尺寸。后来和项目经理、设计师沟通,他们说要量门的人确认尺寸才能处理门基层等事项。所以都说装修是件烦心事儿,都是因为要协调这些繁琐的事项。这也是我选择了全包的理由,全包范围内的让装修公司自己协调去。但是自己还是要注意一下安装效果。后续再详细解释一下。我家门都是非标准门,高接近2.3米。宽度可惜不好控制,要切墙体了,操作比较复杂就放弃了。
20190105002159
20190105002211
20190105002232
20190105002243
回复 支持 反对

使用道具 举报

该用户从未签到

 楼主| 发表于 2019-1-5 14:55 来自手机客户端 | 显示全部楼层 来自:江苏
回复 支持 反对

使用道具 举报

该用户从未签到

 楼主| 发表于 2019-1-5 15:08 来自手机客户端 | 显示全部楼层 来自:江苏
今天和设计师、项目经理和木工讨论了如何处理门口基层,由于量门的师傅这两天不在南通,只能和那个门厂家的朋友确认好,结果顺利交接。只是客卫和北卧门的尺寸要窄一些,只能达到78公分。正常情况下不要少于80公分,大家也参考一下。
回复 支持 反对

使用道具 举报

该用户从未签到

 楼主| 发表于 2019-1-5 16:24 | 显示全部楼层 来自:上海
中央空调的选择! Q# ], c# O$ l: O3 f
之前关注了2015年冠军贴,深有感触,在此也谢谢前辈们的分享,由此我也关注了东芝品牌的中央空调。市场上中央空调品牌也就那几个,大金,东芝,三菱电机,三菱重工,富士通,格力,美的等。每个品牌都有各自的文化和科技,我只能粗略了解。市场上只有三菱电机有分歧箱,优点是可以平均分配传输到室内各分机,但是也有缺点。其他品牌都不存在分歧箱,大同小异。大金目前在市场上是做的最成熟的,进入中国市场比较早。关于大金的科技也让聪明的中国人了解并掌握了,这也是市场发展的结果,所以大金的外机基本上都是在国内组装的,其他品牌也逐渐进入市场,并发展到与国内企业合作/合资生产,例如大金,三菱重工。之前市场评价三菱电机是最好的,后来了解到也是最贵的,去了一家三菱电机,销售员详细讲解了空调发展史以及三菱电机的优点,科技。后来还是因为价格放弃了,也没有更深入洽谈价格。不过后来有同事也购买了三菱电机,价格居然比我了解的价格低了4000元。难道一年过去了,市场又降价了?+ d( S4 B0 B' ?* U% W' L
      由于大金的型号比较复杂,把我搞的头大,又听说大金制热不好,也就从开始就没选择大金。
$ Z% F4 P2 G# ]; F) L# X6 ?! [      之前受论坛前辈们的影响,从开始就关注了东芝,此品牌由于进入中国市场较晚,而且进入时目标客户只对大的商业体,目前还保留了外机日本纯进口。通过论坛也了解了一下价格,后来在2017年11月和东芝经销商商谈了价格就确定下来了,当时是包含暖气片,新风和中央空调的,金额也是打包一起谈的。在2018年10月,由于本人放弃了暖气片,加上要中央空调和新风系统进场了,就又去了经销商那里谈了之前确认了价格,只是提了一个小要求,将新风系统机器升级了250 PRO.当时没有考虑市场价格因素,没有和他们再压压价格,有点后悔了。+ `2 z0 n2 ^( _! J3 U5 f
      2018年10月安装时,由于当时的空调销售人员离职,换了一个人负责。他和安装人员没有沟通好,安装人员以为我只按照中央空调,没考虑新风。所以安装人员又来了第二次,我感觉影响了整体布局。
( e5 u2 }/ e; E. L0 u2 t      由此教训,请大家也关注。安装中央空调配置及照片如下6 a: {1 _0 S' P: B. K! n; u
回复 支持 反对

使用道具 举报

该用户从未签到

 楼主| 发表于 2019-1-5 16:26 来自手机客户端 | 显示全部楼层 来自:江苏
回复 支持 反对

使用道具 举报

该用户从未签到

发表于 2019-1-5 18:00 | 显示全部楼层 来自:江苏
116276619 发表于 2019-1-4 23:03
" l1 Q1 W- c  G装修公司刚开始关注2016年网红店---盛XX家,现在感觉也挺有实力的。2017年初还参加了该公司的装修工地看房 ...
& e  a: B: G* V- O2 L  x7 @
      感谢楼主对我们盛典瑞家的关注和肯定,祝您一切顺遂,早日毕业!
2 v' B) H8 [% v* C6 i
回复 支持 反对

使用道具 举报

该用户从未签到

 楼主| 发表于 2019-1-11 18:24 来自手机客户端 | 显示全部楼层 来自:江苏
衣柜的选择& y, ~" [/ U5 `# z/ S
自从看了衣柜,才发现美式确实花费要多一点。美式衣柜的门等各造型对应的价格要比平板门等贵很多。由于感觉木工打的衣柜封边、造型都不好,而且门还要定做,所以就决定全屋定制了。2017年11月就去看了衣柜,当时看了一线品牌也看了二三线品牌和南通本地定制衣柜的工厂店,当时也是大概报价,基本总金额相差一到两万。中途也思考犹豫很长时间,后来还是选择了一线品牌,从而更坚定了装修全包方案。刚开始看了索Xx衣柜,并交了订金,后来发现不在全包范围内,就把订金退掉了。设计师推荐了三线品牌的Doris,查看报价时感觉也很贵就没定这家,后来又看了旁边的欧X全屋定制,初步商定了一个预计报价,和那个三线品牌高一点但可以接受。在2018年又去无锡参加了他们的工厂优惠活动,也就优惠3%,比预想相差甚远,但还是缴纳的三万意向金,拿了几件小礼品。到后来也就是2019年元旦,感觉之前的价格太高了,自己量了衣柜尺寸又去欧P门店商谈了价格。
回复 支持 1 反对 0

使用道具 举报

您需要登录后才可以回帖 登录 | 注册

本版积分规则

手机版|无图版|站务联系 | 商务合作 | 平台公约

信息产业部备案:苏ICP备05014191号-1 经营性ICP许可证:苏B2-20110445 苏公网安备 32060202000307号 © 2001-2019 0513.org All Right Reserved.

投诉争议 技术支持:第一互联 GMT+8, 2025-12-16 03:25 , Processed in 0.283583 second(s), 18 queries , MemCache On. 站点统计

快速回复 返回顶部 返回列表