濠滨论坛

点击扫描二维码

查看: 1860700|回复: 341

NO.21【2018濠滨装修日记大赛】+和盛林荫水岸+现代中式+乐雅设计

  [复制链接]

该用户从未签到

发表于 2018-4-8 12:38 | 显示全部楼层 |阅读模式 来自:江苏
5 @: q0 F2 ~. P9 H5 \5 s  A9 t7 e+ q# v2 W. }+ b+ J5 s0 D* d

  {8 P( S0 M4 A( `7 h" d) E! N* n2 b9 ]
毕业照来啦~
: ^" s, E7 B( P! j 1.jpg - Q/ E5 x6 d2 j( i7 ]2 w
2.jpg
+ ^8 m' h3 s3 r9 |: D 3.jpg 6 g' h% G; \0 `% T' _% m
4.jpg 7 }# `) |  {8 ?! s4 z
5.jpg
9 g) D& h1 y$ h. B& ^ 8.jpg
" R7 c2 R- E1 f7 A* @; q8 E# L 6.jpg
/ I1 e# a0 R3 u* i! Q3 L& E" ~ 7.jpg
2 Q, m- p# ?9 q( e' u, P
' U0 c1 \, R* A4 ~: J* j
8 }  e. S5 y& l4 |/ o0 K" f4 o
基本信息:3 z* ^  _4 z* o! i" G3 E/ Q, }
房型:两室一厅
; S$ k: O& @5 A  ]9 @建筑面积:125m26 b1 N2 b+ j* C0 @: K8 ]
包工方式:半包+橱柜
3 U/ F& ]4 m1 T! P2 n装潢公司:乐雅室内全案设计机构
- @" l) F8 _; T; h/ a设计师:赵乐乐: D9 Z, y8 Z7 N
开工日期:2018年4月10日! z& |& [" Z) T7 Y2 p5 s0 z3 ?
楼盘地址:和盛林荫水岸 现代中式
9 L0 v, y: A  C, P  Q0 X7 c9 ]& X% e# S" \5 r6 R4 }5 [
已经在论坛里潜伏了半年多,因为一直踌躇家里的房子是否要装修。几年前在林荫水岸拿了两套房,一套给父母住一套空关着,我们夫妻住在市区。但随着这几年父母年纪逐渐增大,父亲行动不便,母亲没有能力照顾他了,我们不得不考虑搬回来和父母住一起。想到装修就非常头疼,因为我先生是个比较注重生活品味的人,而我喜欢简简单单。我本来想找帮我父母装修的施工队简单弄一下,但是我老公就是不肯,他硬是要弄个新中式。我印象中只有,欧式、现代简约看到很多,新中式也就是那种老气横秋的,不符合我的感觉。但是拗不过我先生,他说新中式好看,而且要现代感一点的新中式。于是半年前我们潜伏进了濠滨论坛开始注意各个公司,期间也拜访了两家设计不错的公司问了价格,但是听说要做新中式都报出了天价,吓得我口袋里的钞票一个劲哆嗦。后来一个朋友介绍了个市区某品牌公司的项目经理,他一直接私单,他给了我一个吓死人的低价。我想想我们家不是那种有钱人,大品牌公司的价格我们消费不起,但是我们起码知道大概成本范围,这么低的价格肯定不靠谱,万一后期增项没完没了我们吃不消。然后我们开始找一些有点知名度的小品牌公司,然而他们大多数都是做全包,我一进店他们就不断推销全包套餐,而我们需要的是设计,可是感觉他们纯粹为了卖主材而不注重设计,他们的样板房设计也是很一般。0 P; z- E5 m6 |% X+ E# B
认识现在的公司也是机缘巧合,我百度无意中看到这个公司设计师的博客,感觉做的东西有点新意,这个公司之前也没听说过,就试探性地电话问了问,接电话的小男孩人很老实,说话不像业务员那么圆滑,听说他们马上也要加入濠滨论坛,随后他加了微信发了他们公司的一个中式样板房给我。我看了感觉还行,就让他们来量了房,他们报了个不高也不低的价格,还把他们的设计构思给了我,因为已经对装修公司挑花眼了,我休息半个月后才联系他们,期间他们也没有打过一个骚扰电话,设计师和助理给人很本分做设计的感觉,价格太高装不起,价格太低怕不靠谱,只有这家价格不高不低保证不增项,于是就定下了。交了设计定金过了一周看了效果图感觉很漂亮,软装都是他们自己的产品,家具也是他们自己设计定制,基本上可以保证成品和效果图达到一致,于是决定4月10号开工。
; V8 @; Y/ g  a; }南通0

该用户从未签到

发表于 2018-4-8 14:28 | 显示全部楼层 来自:江苏
2 `" g5 }7 I5 T$ N  C5 ^( ]
7 V# l+ n+ y3 v直达电梯:$ w1 s: A; v! @# w" N
1. 去新永兴批发市场看砖9 l% s! ^9 S- P2 F3 G  X  q
2. 正式开工( T; I0 y& f9 t+ S+ T, M  d
3. 敲墙完成. @( R6 \8 T: |2 A: w) M
4. 铲墙皮- Q+ {, H1 J; k( ?' F2 H1 E! M
5. 逛地板专卖店- i& _9 f' n6 g: W) {5 s* o' Z
6. 刷地固
9 o6 {+ m3 i; \4 y' w1 l4 B  [, C7. 砌墙
" m: m  N) G8 m* m" s9 [( v/ t6 x9 y% G$ y8. 水电材料进场
6 k' ~- T' c  v9. 水电阶段+购买地砖
. s: k& O; O2 G  b10. 水电照片
/ X$ F% `+ O* k& O$ _11. 水电验收1 O0 z6 M/ x% P, u( y
12. 瓦工进场: N/ M! f: e% `  G7 I2 f& Z% Q
13. 木工开工
- V$ r) Q* b$ e14. 开始打橱柜
* }# ^. u  V2 W: }- A15. 定了冰箱和热水器
# K% B; t7 Q: f1 {' f0 {16. 背景墙雏形显现
7 E- G: _* K% @- V( V17. 开始做美缝、量柜门尺寸、不锈钢包边7 Y% I, h* k6 O  e9 k1 ?3 S8 @: j+ e
18. 定了橱柜实木多层膜压门和石英石台面
- h8 v7 @2 y- L- J7 ~5 _# h19. 油漆工进场
+ W$ y& T; i6 L20. 发现沙发背景的壁灯线没有接出来
6 v3 I" e- P( _& e8 u: I) c21. 对墙面进行挂网批灰
- p, e+ p) L& ?4 q2 J) J- w6 R22. 挑选壁画
8 s/ h4 j6 A* l  a) b8 i* `0 k) Z/ v23. 金色筒灯到货- P$ s9 I* i- X8 S- r' X" h
24. 送地板
6 `- s4 ~7 V- V, X* X  A' H25. 背景墙完成、挑选浴室台盆
. m9 x- L& w; e  Q) ~( d; d7 T26. 橱柜门板开始描金
) d' P0 ?2 U# Y6 ~0 q: S6 O2 A27. 安装木门* v5 I, H. [) D6 A( D
28. 开始铺地板5 ?' x5 o0 H+ M) O. Q  R
29. 地板收工,准备看家具& d1 z6 `2 t8 L6 x6 ~# h4 ]1 Z
30. 挑选家具
$ o5 t: h4 |* @31. 淘宝定灯具4 a5 D( F2 o: K$ N2 g
32. 白色踢脚线效果不错
1 b9 Q% V! a# Z# X& w. ^# M33. 灯具价格% _* N: H0 G) M* m
34. 退灯
# w$ i8 l, p' `35. 安装石英石台面
$ \/ R& W0 q6 m, @9 o/ v5 a' d36. 集成吊顶和LED灯
0 V! t. o) P& C) g; X! E37. 装模压门板
/ B: \9 e3 A" _1 T6 i38. 白色描金橱柜门引发大矛盾
( d' I8 P* y6 C7 z39. 安装灯具4 Q: k) a3 h6 P- f2 n8 F
40. 定墙布壁画
% z0 d% J, p$ O% P- h41. 发现热水器插头被橱柜隔开、帮女儿房间选购床
! s* {1 w+ o$ z9 q- \% B42. 洗手台盆、莲蓬头安装完毕1 h+ x& Z/ s/ J! r. Y
43. 背景墙做了踢脚线,门套、窗台石返工/ Y7 v% {. E5 D
44. 关于收尾阶段的注意点
, _, U! K# ^7 Q$ C45. 开始刷涂料' o3 w9 a! n; M/ N) Q7 k
46. 自己动手做美缝
1 G1 d8 @5 f0 Z0 F4 W0 }+ i' ]47. 三面背景壁画确定下来0 S9 c, U, o, B# i; e
48. 等待橱门和移门送货安装
2 g) L' \" J# E7 u- N( Y3 Z49. 移门安装# Z( E  R, [7 n
50. 更换模压门
2 ]& C6 @; X9 D51. 做大保洁
; E, ]5 }0 k/ u5 k1 \52. 自己动手美缝
. y3 d+ ?. h) {0 W2 l3 x53. 墙布壁画贴好/ i/ ?. l! R( C5 F$ w+ S
54. 保养地板! e+ J- ~* y+ E- j
55. 简约格栅进屋
4 `/ s. j5 M  ?% I% ]56. 墙砖打眼不开裂攻略
! ?% E6 P6 b: N, G/ v' }57. 安装窗帘
! w# h( v3 H2 g& B( I$ J9 T58. 油漆工收尾. L/ D3 `' D/ n  e- F' Q
59. 装修公司上门拍照, L$ V+ N) Z& C* t! @/ T8 Z3 S+ G
60. 毕业照出炉
) M  ]' Q' w- J9 P1 p  K) @61. 大丫二丫房间床送到
& x7 N6 y* w$ ^- f# H
) @& r- Y+ ?7 ?7 D1 W
. m0 P0 T5 p" Z( u1 ?. J9 g
1 M1 ]( q& L- h0 l; ~- J$ V0 D' W) @9 F6 i7 g

& s" @5 U! J0 o) }
9 l2 J. }6 g: G+ F# h
! r+ r  \6 k, w  M6 r( H' _+ e/ w6 \4 t$ m  R
, p+ m# [% S/ s9 t$ }

" s1 q: X+ l( x) U8 Y4 v3 q) Q9 K$ P& N5 s- i
; K5 {# H! i8 \2 G) x5 E
' q) g1 W$ k0 _* Q+ Z3 T. U6 A
回复 支持 反对

使用道具 举报

该用户从未签到

 楼主| 发表于 2018-4-8 19:36 | 显示全部楼层 来自:江苏
和南通其他安置房叫啥花苑,花园,嘉园,家园不同,我们小区叫林荫水岸,不了解的人以为是个幽静美丽的高档别墅小区,其实也就是个拆迁户安置房,面积挺大,景色一般,我家那栋楼就靠近河边不远,可以看到河岸景色,还算是个“景观房”。 IMG_20180408_183217.jpg IMG_20180408_183401.jpg IMG_20180408_183419.jpg
* |" j9 V' c9 d# L9 |8 |$ M# G
! }) |4 n2 j$ L下午跟乐雅设计签了施工合同,明天打算和先生去新永兴批发市场看砖。上周其实已经挑选好了一款,但是设计师说和风格不搭。去批发市场之前我百度了一下恶补了瓷砖知识(料想瓷砖店老板不会老老实实给我科普的,他们只会利用我的无知推销高价产品),才知道墙地砖的种类和价格真是花样繁多,看似差不多的砖,工艺不同价位相差很大。
; S5 E9 w/ X2 ^& E" W% ]( @# p1、釉面砖
7 b0 R0 x0 N" M. N4 p釉面砖是装修中最常见的砖种,由于色彩图案丰富,而且防污能力强,因此被广泛使用于墙面和地面装修。- H: j* k+ O6 j! H- d: b9 o
釉面砖就是砖的表面经过烧釉处理的砖,根据光泽的不同分釉面砖和哑光釉面砖。根据原材料的不同分为:陶质釉面砖,由陶土烧制而成,吸水率较高,一般强度相对较低,主要特征是背面为红色;瓷质釉面砖,由瓷土烧制而成,吸水率较低,一般强度相对较高,主要特征是背面为灰白色。
( @3 ^  _* s6 y# F% G" A  n2、通体砖
5 h! _$ Q$ ~" N0 L0 D, @通体砖的表面不上釉,而且正面和反面的材质和色泽一致。通体砖是一种耐磨砖,虽然现在还有渗花通体砖等品种,但相对来说,其花色比不上釉面砖。由于目前的室内设计越来越倾向于素色设计,因此通体砖越来越成为一种时尚,被广泛使用于厅堂、过道和室外走道等装修项目的地面;一般较少会使用于墙面。多数的防滑砖都属于通体砖。
6 n4 h" p3 t3 f9 O6 p3、抛光砖
# \* @1 G- e: }9 \& X8 Y抛光砖就是通体砖坯体的表面经过打磨而成的一种光亮砖,属于通体砖的一种。相对通体砖而言,抛光砖的表面要光洁的多。抛光砖坚硬耐磨,适合在除洗手间、厨房以外的多数室内空间中使用。在运用渗花技术的基础上,抛光砖可以做出各种仿石、仿木效果。
9 ~0 j$ ^# P9 m) C, M8 T抛光砖抛光时会留下凹凸气孔,这些气孔会藏污纳垢,甚至一些茶水倒在抛光砖上都回天无力。也许业界意识到这点,后来一些质量好的抛光砖在出厂时都加了一层防污层,但这层防污层又使抛光砖失去了通体砖的效果。如果要继续通体,就只好继续刷防污层了。装修界也有在施工前打上水蜡以防粘污的做法。' ]1 D& W8 w) o0 q/ ^3 U* T3 Q
4、玻化砖3 I; N: Q: b, R' S- V
为了解决抛光砖出现的易脏问题,又出现了一种玻化砖。玻化砖其实就是全瓷砖。其表面光洁但又不需要抛光,所以不存在抛光气孔的问题。
( m7 u& a4 |# C. s+ s玻化砖是一种强化的抛光砖,它采用高温烧制而成,质地比抛光砖更硬更耐磨。毫无疑问,它的价格也同样更高。玻化砖主要是用于地砖。
$ L$ w* b( @! ]$ X; R* b5、墙面砖3 }4 n0 c( q+ F4 j
建筑行业经常用陶瓷制品来修饰墙面、铺地面、装饰卫生间。陶瓷制品具有质地均匀、结构致密、强度高、防水等特点。由白色的瓷土或耐火粘土经焙烧而成的瓷砖分上釉和不上釉两种。市场上国产瓷砖厚度为5mm—6mm,平面尺寸为108mm见方、152mm见方的方形砖及152mm×76mm、152mm×50mm的矩形面砖,此外还有各种阴角、阳角、压顶、腰线等异形构件供选用。瓷砖的品种花样繁多,包括釉面砖、有光彩色面砖、无光彩色面砖以及多种彩釉混合的花釉砖、结晶釉面砖、斑釉砖、大理石釉砖、白底图案砖、色底图案砖等。
! S2 {- o4 K# j/ N9 @) X7 h7 b* T9 G% Z% H. W
) \" K/ V' T: J1 V9 T5 z) K) J
% M+ }& V3 R( x5 N8 O9 s( C, d
& B2 f6 E) m$ K0 v9 F5 a
回复 支持 反对

使用道具 举报

该用户从未签到

发表于 2018-4-9 14:55 | 显示全部楼层 来自:江苏
      
回复 支持 1 反对 0

使用道具 举报

该用户从未签到

 楼主| 发表于 2018-4-9 16:12 | 显示全部楼层 来自:江苏
今天上午去了趟新永兴商城看砖。听邻居说山东砖不能买,质量很差,一定要买广东砖。今天去了商城,那里各个店老板都说他们的砖是广东的,80*80的釉面地砖价格从三十多到一百多都有,根据淘来的经验看釉面厚薄,听敲击的声音是否清脆,砖坯颜色是否发红,发红的陶土不行,还有就是倒水倒在砖背面,吸收的快的砖密度低,质量差。设计师告诉我市场上所谓的微晶金刚石四十几一片的大釉面砖在新永兴三十出头就能买到,这些所谓的佛山砖其实是江西砖,质量还是可以的,只要平整度好,贴起来不比70-80一片的砖效果差。根据很多客户的实用情况还是很好的。对于我们这种不贪大品牌只要实惠性价比高的工薪阶层来说比较划算。有经验和没经验的设计师到底不一样设计师做的效果图地砖建议我用仿大理石白色,但是我就是喜欢黄色带点欧式风格的砖,老公说我瞎搞,但是这次难得让我做回主,黄色看起档次挺高的。 IMG_20180409_153858.jpg ,厨房墙砖搭配了黄色美式砖,这些都是我自己看了好看决定买下的,反正现在流行混搭嘛。卫生间我选了这款不带腰线和花砖的款式,可是价格偏贵,暂时没定下来 卫生间砖.jpg
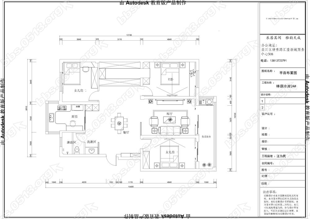
5 y5 l* ^4 W8 N因为我家的橱柜衣柜都是乐雅设计根据设计风格定制的,今天下午去了他们设计室商量了一下,把厨房门口的立柜改成酒柜,烤箱搬进了厨房,厨房吧台改成地柜。哦 忘了上平面布置图了,现在补上。 QQ图片20180409141426.jpg QQ图片20180409141417.jpg * Z; t3 ~; k1 V# w( q2 M

; d( \9 [7 ]( d/ {我不太会写文章,我也就是打算把这次我家装修的事情从头到尾记录一遍。我对我的设计公司非常满意,他们帮我设计出了我想要的那种新中式,而且价格不贵。软装、家具都是他们自己设计制作的,施工公司也是他们自己的,工地不外包,设计施工互相协调融洽我也就不用担心后期效果了。这次给他们施工主要就是冲着他们软装设计的好看,而且产品都能提供,省得我到处跑了买窗帘、墙布、壁画、橱柜。他们根据我的设计风格整体帮我做,性价比也比较高。好了,我要接孩子去了,明天开工,明天上效果图给吃瓜群众品鉴品鉴。
回复 支持 反对

使用道具 举报

该用户从未签到

发表于 2018-4-9 16:17 | 显示全部楼层 来自:江苏
慧姐 发表于 2018-4-9 16:12
: F, J/ M% x+ Y今天上午去了趟新永兴商城看砖。听邻居说山东砖不能买,质量很差,一定要买广东砖。今天去了商城,那里各个 ...
( y( v: ~" @- d- \8 V
感谢慧姐选择乐雅设计,我们将以我们精美设计和高档的质量让你们感受到我们的真诚和专业,预祝明日开工顺利!/ X, s5 M' T* M
回复 支持 反对

使用道具 举报

该用户从未签到

 楼主| 发表于 2018-4-10 13:56 | 显示全部楼层 来自:江苏
IMG_20180410_090759.jpg 3 D# q+ ^- [# T1 ~5 }
早晨9:18分在震耳欲聋的鞭炮声中,我家终于开工了。
$ `, `; M$ q" H IMG_20180410_091824.jpg IMG_20180410_091907.jpg IMG_20180410_093123.jpg 9 M1 F, O2 B, G  i& A
我老公拿着开工锤象征性地敲了三下,然后大家拍了个集体照。其实从昨晚我就激动地失眠一直到凌晨才睡着,我期待着新房早日完工看到美美的效果。先暴一下效果图照。 1111.jpg 3333.jpg 2222.jpg / J; D4 E+ A4 O0 K" E' _" M6 C
里面除了餐桌椅子和沙发茶几是我们自己买的,其他都是乐雅设计提供,所以设计师说成品和效果图相似度可以达到90%
+ Y5 L+ e3 Z4 a我特别期待。开工仪式过后,监理汪工和水电工开始现场布线,因为有些墙要改动,所以今天只能布一部分。 IMG_20180410_094529.jpg IMG_20180410_094549.jpg
2 S* q" F0 q% w% n' q# c1 n这个公司从设计师到监理到工人都看起来特别内向老实,但是出手不凡,做的活很麻利熟练,可能不太擅长于营销吧,我可是很看好他们的。我和我老公都是不爱操心的人,也很信赖他们,只要按照他们设计的样子做,一些施工的细节我们也不精,汪工给了我们提议说砌墙用轻质砖,怕楼板承重受不住,还有厨房下水管包进墙,我们只是说看着办,想我们这么好说话的估计也不多吧。其实我们真的是小白,出于信任我们感觉给他们施工不会出错,看人看得出来。
回复 支持 反对

使用道具 举报

该用户从未签到

发表于 2018-4-10 15:37 | 显示全部楼层 来自:江苏
恭贺慧姐家开工大吉,我们一定会精心施工,保证质量,完美呈现新中式的整体效果!
回复 支持 1 反对 0

使用道具 举报

该用户从未签到

 楼主| 发表于 2018-4-11 16:14 | 显示全部楼层 来自:江苏
下午我抽空到工地看了一下,哇好快,所有要改动的墙壁都敲完了,只留下汪工还在现场做记录,明天开始铲墙皮。每一面要敲的或者铲的墙壁上汪工都细心地做了记号嘱咐工人不要出错。他真是个细致的人。工人开的线槽也是横平竖直很专业,就看他们水电做的如何了,我真恨不得马上就想搬进新家。 微信图片_20180411160337.jpg 微信图片_20180411160350.jpg 微信图片_20180411160355.jpg 微信图片_20180411160400.jpg 微信图片_20180411160405.jpg 微信图片_20180411160421.jpg 微信图片_20180411160426.jpg
回复 支持 反对

使用道具 举报

该用户从未签到

发表于 2018-4-11 16:41 | 显示全部楼层 来自:江苏
我们水电施工要求非常严格的,您尽可放心上班,工地交给我们。我们公司的施工工艺标准有近20项,每项验收很严格的,我们把最好的项目经理派过来了,汪工几乎每天都在各个工地巡回,一发现问题就让工人立刻整改的,他是我们公司金牌项目经理。
回复 支持 反对

使用道具 举报

该用户从未签到

 楼主| 发表于 2018-4-12 14:53 | 显示全部楼层 来自:江苏
每天都习惯到日记论坛里来写点东西。下午刚去了工地看了下,今天那位云南的铲墙皮师傅去其他工地敲墙了,他把老婆留下来帮我家铲墙皮,速度挺快,中午人到的,下午都铲差不多了。汪工说铲墙皮也是近几年才开始的,过去装修都不铲墙皮的,现在房价这么贵,业主买套房子差不多一辈子的钱,肯定要好好装修,不能后期返工,所以把墙面基层铲除了重新批腻子避免以后万一墙面起泡掉皮。厨房里有两根下水管,这个地方要做橱柜的,现在管子在那里也不知道如何处理。汪工让我别担心,他跑到楼上看了其他住户家情况,他们这两个管子都不用,但是没有拆掉,所以我家最好也不要拆,但是放在那里碍事,汪工说把管子包进墙里不会妨碍橱柜的。 23413128328164047.jpg 53505254065704599.jpg 516322416929737396.jpg
. i) |+ o$ p  L- n- d/ V刚才设计公司的老板赵姐联系我让我把身份证拍照给她,她帮我工地申请保险,我工地的主材的真假和施工人员安全都不用我操心了。他们公司想的还真周到。明天打算跟先生跑地板市场预先看看地板和其他洁具,马桶我想来想去买科勒的,但是专卖店里贵得要命,我在天猫上看了有一千多的,也不知道真假,设计师说天猫旗舰店的科勒都是真的,不知道有没有业主买过,质量怎样。' C' {& p2 P: _3 M2 f, p4 k: h+ _5 c, u2 n
回复 支持 反对

使用道具 举报

该用户从未签到

发表于 2018-4-13 13:14 | 显示全部楼层 来自:江苏
今天在运垃圾了,明后天水电进场,我们的工人衔接很连贯的。
回复 支持 反对

使用道具 举报

该用户从未签到

 楼主| 发表于 2018-4-14 11:21 | 显示全部楼层 来自:江苏
昨天去了钟秀路沿街看了一圈地板专卖店。店铺有大有小,有的小品牌听都没听说过但是价格很低。我一个朋友也是开小店卖地板的,但是他那里没有灰黑色的,我想把家里房间地面铺洋气一点的地板。他告诉我现在市面上有的实木地板里面是实木,表层其实是印花的,里面木质结疤多比较差,这种地板不好翻新。如果不是贴皮印花的以后地板旧了可以打磨掉表面磨损部分再上漆又和新的一样。实木地板的价格根据木种来定,市面上比较普遍而且便宜的是番龙眼,其次是圆盘豆,最贵的是橡木。地板的价格和尺寸也有关系,老款的地板普遍细小,新款的地板都是宽的居多。我先去了一个小店,老板很热情,他们的实木地板价格也实惠,但是问到他的实木是表层贴皮的还是真实木,他支支吾吾说都是真实木。我细看看也看不出什么不同,但是内心还是不放心,毕竟房子是一辈子居住的窝,万一住进去以后有质量问题返工就麻烦,宁愿多出一点钱买品牌的。我又去了某一线品牌地板旗舰店。里面的款式花型很多,有好几款都合我心意但是一问价格我的钱最多只够买他们某几款多层地板,而且这几款
2 p  L! M5 q2 h, P: e* D颜色红彤彤,黄呼呼,老年人喜欢的那种吧。钱袋子憋屈让我心累啊。这时候闺蜜打了个电话说某二线品牌在搞店庆活动,里面很多款价格都在打折,幅度很大让我去看看。我调转枪口直扑该店,里面很热闹,到处都是标语,气氛热烈。里面有款灰黑色橡木实木地板一下子吸引了我,问了问价格含人工辅材才300左右,但是这款是番龙眼贴皮的。我踌躇了半天,因为只有这款颜色太好看,其他不贴皮的没有这款颜色,一咬牙忘记朋友忠告,果断买下,以后不去翻新了。 QQ图片20180414111352.jpg QQ图片20180414111404.jpg
# g$ j7 f: ^3 Q; ^% K& n今天去工地看了看,敲墙铲皮全部完工,垃圾运得干干净净,我妈说这个公司的老板员工一看都是老实实在人,话不多做事情很麻利。下午工人刷墙地固,弄完再上图。
回复 支持 反对

使用道具 举报

该用户从未签到

发表于 2018-4-14 16:09 | 显示全部楼层 来自:江苏
慧姐,进度如下:明天送黄沙水泥和砖,后天瓦工进场砌墙。砌墙完工后等墙体干了还要开线槽。你家改动很多,砌墙要几天,所以进度没有其他工地那么快。
回复 支持 反对

使用道具 举报

该用户从未签到

 楼主| 发表于 2018-4-16 16:09 | 显示全部楼层 来自:江苏
昨天工人麻利地把地固刷了。以前经常看到装修的人家地面绿绿的,以为是油漆,这次才知道这种叫地固。百度了一下地固的作用:地固是一种专门作用于水泥地面上的涂料,适用于家庭装修或工程装修初期水泥地面的封闭处理,防止跑沙现象。地固耐水防潮,也可以避免木地板受潮气侵蚀而产生的变形,同时避免日后从地板缝隙中"扑灰"。2 r7 |. F9 v. O& Z) u' O
IMG_20180416_154122.jpg IMG_20180416_154131.jpg IMG_20180416_154144.jpg Screenshot_20180416-154053.jpg 忘了说了,乐雅设计的设计和施工是分开的,三年前他们成立了自己的工程公司叫双宝装饰,港闸区很多人知道这个公司,他们做了不少工地。之所以设计施工分开是为了让设计和施工更专业化,各负其责。
4 P8 b/ t2 t" `, i今天早上砖和水泥黄沙运进工地,上午工人就来砌墙了。现在瓦工青黄不接,五十多岁的已经算是年轻瓦工了,因为苦又累,很少有年轻人愿意干瓦工,越是没人干工价越高,瓦工一个月一万多收入现在很普遍。真希望未来能发明瓦工机器,省去人力直接自动化操作节省成本。现在稍微改动一下户型砌一点墙成本就很高。
" J0 Y1 O# b6 a( w: {: w Screenshot_20180416-154043.jpg Screenshot_20180416-154046.jpg Screenshot_20180416-154048.jpg
, p3 H6 T! y9 ?4 @$ `: F0 b我以为砌墙就是直接砖砌一下,师傅说要加钢筋的,这种钢筋叫拉墙筋,可以受横向的力,让墙体更牢固稳定。拉墙筋和构造柱是一体的,它们和板带、过梁、圈梁等形成一个整体的受力体系。简单的说,就是横向的拉力是拉墙筋承受,转而通过构造柱将荷载再传给结构上的板、梁、柱。6 E9 O2 }* n; W* @
真是涨知识了。8 j" E: y5 x$ u% V
砌墙师傅说他只负责砌墙,贴砖有他搭档贴。原来现在分工比以前更精细,砌墙的师傅贴砖不一定贴的好,所以贴砖有专门贴砖师傅。看来社会越发展,分工越明细啊。
回复 支持 1 反对 0

使用道具 举报

该用户从未签到

 楼主| 发表于 2018-4-17 13:20 | 显示全部楼层 来自:江苏
微信图片_20180417131838.jpg 微信图片_20180417131856.jpg 微信图片_20180417131900.jpg 微信图片_20180417131906.jpg 1 V9 s% ]+ I7 G6 Q' T0 t( a
今天工人砌墙砌了一半了,砌的非常平整,很棒。
回复 支持 反对

使用道具 举报

该用户从未签到

发表于 2018-4-17 13:23 | 显示全部楼层 来自:江苏
因为砌墙位置不在原梁位置上,为了减轻楼板重量我们用加气砖砌墙。
回复 支持 反对

使用道具 举报

该用户从未签到

 楼主| 发表于 2018-4-18 11:02 | 显示全部楼层 来自:江苏

RE: NO.21【2018濠滨装修日记大赛】+【和盛林荫水岸】+【现代中式】+【乐雅设计】

高小丝 发表于 2018-4-8 14:28
7 _+ }2 B8 U7 Q. J4 s4 B2 h直达电梯:
: [0 F" _+ j4 T! t/ A" B
如何做直达电梯目录?
+ x* {- d  i  O
回复 支持 反对

使用道具 举报

该用户从未签到

 楼主| 发表于 2018-4-19 15:07 | 显示全部楼层 来自:江苏
% y4 u7 I2 v' X+ ]0 l6 \

$ v' b1 m3 H0 q$ g 12286195371851274.jpg 255231608951423230.jpg 514190079051791564.jpg 814611867644967240.jpg 828500109754554076.jpg 854172635962515151.jpg - D( J& o+ Z. b
工人师傅今天把所有的墙都砌完了,槽都补好开始批水泥。看到他们用了网在墙上批,师傅说这是防开裂网,乐雅设计公司用的防开裂网是厚实的那种,比普通的贵,师傅说一般公司舍不得用这么好的网的。明天批灰就全部完成。我弟弟家也想找乐雅设计来装修,但是我说且慢,目前刚到砌墙这一步,以后的质量如何,成品效果如何还是未知数,我不想提前就给他们打钩,毕竟施工刚开始不久。今天汪工没来工地,设计师小顾来工地和工人叮嘱了一下要求。
回复 支持 反对

使用道具 举报

该用户从未签到

发表于 2018-4-20 16:00 | 显示全部楼层 来自:江苏
慧姐,明后天水电材料进场,下周二水电工进场。你家的墙地砖请备好,大约十天后瓦工开始铺砖。( ]) a2 Y2 e: }
回复 支持 反对

使用道具 举报

该用户从未签到

发表于 2018-4-20 16:56 | 显示全部楼层 来自:江苏
期待楼主继续跟新,我家近期也打算装修,偏向于喜欢新中式风格的,想看看你家装修后的效果怎么样,质量怎么样
回复 支持 反对

使用道具 举报

该用户从未签到

 楼主| 发表于 2018-4-25 12:41 | 显示全部楼层 来自:江苏
周一汪工把材料都备好,传统的日丰管远东线。昨天水电工进场,他们没认真看图纸,背景墙部分要等完成后才能放插座盒子,设计师让工人把盒子都先拆了。 微信图片_20180425122057.jpg 微信图片_20180425122104.jpg 微信图片_20180425122123.jpg 微信图片_20180425122129.jpg ,我看到他们线管之间用银色的的东西裹着不知道是什么意思,原理是在强弱电交叉位置包上锡纸为了防止强弱电相互干扰。 206_781514_b6a1cf69e02f61b7.jpg
; r: {3 h* z6 K; Q但是电工师傅说其实包锡纸是个噱头而已,用处不大的。那么强弱电到底是否真的有干扰呢?如果说有很大的干扰,那么弱电箱里面有没有?(弱电箱里可是有电源的),底盒附近有没有?如果有,弱电底盒是不是也要和强电底盒分开30--50CM?我看没有哪家会这么做吧。对于家装来说,现在的网络基本是6类,电视线4屏蔽,这种干扰基本是微乎及微的。 除非是大型工装,由于弱电线路距离较长,那么会产生少许的干扰,所以工装弱电基本采取KGB镀锌管,镀锌管屏蔽性很好。
" z: ]" u; N) Q( J' k8 b! s' e! {+ {不过目前很多家装公司为了显示公司标准化形象都这么做,不管有没有用也是好的。
回复 支持 反对

使用道具 举报

该用户从未签到

 楼主| 发表于 2018-4-25 17:07 | 显示全部楼层 来自:江苏
中午带着我单位的小姐妹来工地参观了一下,房间空调孔打了,女儿房的空调出水管接到阳台外。我爸妈对水电工很满意,做的活很规范,我爸以前帮别人在工地帮忙过,所以他对水电还是有研究的,老板娘赵姐说要等成品完工我们看了满意后才算彻底胜利。
, Z3 C9 M5 Q/ Q; v2 w& m 微信图片_20180425164717.jpg 微信图片_20180425164730.jpg 微信图片_20180425164736.jpg 微信图片_20180425164739.jpg
! O+ t! g3 m' ?1 Y% A* p% q+ N. P汪工催我们赶紧把砖买回来,水电完工很快,瓦工就要进场。赵姐发了一个图片还是极力说服我买灰色地砖不要套框,比黄色地砖套框要高档,让我把阳台厨卫的砖都改成黑灰白冷色系,会与众不同。赵姐还给我看了他们之前的一个施工案例照片,看看确实不错,现在看来黄色确实是老人家喜欢的颜色,我老公还是挺时尚一开始就看中灰色地砖只是我瞧见邻居家都是黄色砖就打算买黄色的。下午赶去新永兴把黄色砖改成灰色的通体砖,赵姐说通体砖比抛釉的质量好,价格要贵些,抛釉的上面釉面要是薄会爆瓷,通体砖从里到外都是一样材质,摸起来还有纹路立体感,很有档次。店家说灰色通体砖他们现在卖的可火了。 微信图片_20180425165912.jpg
- {# G2 n3 k6 ~* {, T# V# |) G洗手盆那面墙壁根据效果图定了蓝色的砖。 微信图片_20180425165918.jpg
* U' K0 b3 q0 V2 F' j  I我一直热衷于买品牌的东西,看了几家华帝燃气具很满意就是价格太贵了。赵姐向我推荐了老板牌,而且让我直接拿合作商底价她公司不赚一分钱当处个朋友,她让我先去门店看,看中哪款她帮我问总经销商拿装修公司价。经过这些日子的接触我和乐雅设计的员工都成了好朋友,他们确实很实在,不是钱心眼强的人,他们的原则就是赚他们该赚的,能帮业主省钱就省钱。我很庆幸我老公没选错装修公司,虽然他做事有时候毛糙。
微信图片_20180425165918.jpg
回复 支持 反对

使用道具 举报

您需要登录后才可以回帖 登录 | 注册

本版积分规则

手机版|无图版|站务联系 | 商务合作 | 平台公约

信息产业部备案:苏ICP备05014191号-1 经营性ICP许可证:苏B2-20110445 苏公网安备 32060202000307号 © 2001-2019 0513.org All Right Reserved.

投诉争议 技术支持:第一互联 GMT+8, 2025-12-16 03:15 , Processed in 0.378160 second(s), 14 queries , MemCache On. 站点统计

快速回复 返回顶部 返回列表