濠滨论坛

点击扫描二维码

查看: 78654|回复: 28

【2017年濠滨装修日记大赛】+【华润 悦锦湾】+终于等到自己的家

[复制链接]

该用户从未签到

发表于 2017-2-24 21:00 | 显示全部楼层 |阅读模式 来自:江苏
3 X+ x  X; J% b, S
9 }$ t, @4 v8 R; R; f% A
终于等到新家即将开始装修,开贴记录…9 X! {  G" A  j6 S0 ~+ i
基本信息:
# i' y$ _5 f5 l. N& m& F3 w1 h& G7 q房型:三室二厅0 P  ?9 X6 f7 u1 A( U
建筑面积:117平米# `$ Y0 P8 {6 J' u
装修预算:15万-20万& I' }6 z( O. s, q3 X
包工方式:半包! p  u6 }2 q" x! v' X- _; B
装潢公司:中冠装饰
( N& h* C- i0 Z& E$ F/ J设计师:陶志伟+ s0 D4 F# \" n+ O( l
开工日期:2017年3月9日# C4 l1 c  g) i  ?0 G9 R: _; D0 O. L
楼盘地址:华润
•悦锦湾

6 l' a) i5 |' Q' z- N: ~ 112.jpg
/ S5 C$ K, w. P
0 P$ p4 y) \# f& \, }# G直达电梯<<<$ L* ~; [0 y2 T& k  u) E
1. 参加家装建材活动
, Z$ t) v! o# ?2. 装修公司开工前的三项任务
0 h  T) F! S, s2 o3. 客、餐厅效果图
* ?- o+ p* ~; j. H
, R; h+ r8 H" I3 r' v4 `
9 a( ~, S( G$ h1 X  s0 ~& z1 c. I# Z% h0 c3 k3 R: r3 l
南通0

该用户从未签到

发表于 2017-2-26 15:29 | 显示全部楼层 来自:江苏
      个人认为,如果条件允许,卫生间还是做成干湿分离更好些
回复 支持 反对

使用道具 举报

该用户从未签到

发表于 2017-2-26 16:15 | 显示全部楼层 来自:江苏
恭喜楼主开工大吉,幸福的小屋即将起航
回复 支持 反对

使用道具 举报

该用户从未签到

 楼主| 发表于 2017-2-27 13:31 | 显示全部楼层 来自:江苏
$ U$ U" r( C2 G- Y) s$ h

* R, X" k& a+ ~最近一直在考虑装修的事,发现装修真的好烦人。意见不合还得小吵一下装修还没开工,日期订在下周(3月9号)。现在想想买房的时候事情好像还没这么多,当时从看房到买房也就断断续续经历两三个月,从一开始都不知哪个楼盘在哪个位置,到买好房子,基本对南通大大小小的楼盘都基本了解(PS:几次看房基本都是参加的搜房的看房团)。后来就买了当时房价还没这么高的华润。从买房到拿房等了将近2年,之间也参加过一次濠滨的装修团。现在就坐等下周开工了…
; j( `  w$ ^' o7 q5 X0 @18号的时候去了广电展览馆的家装建材活动,订了上臣地板(之前也没详细了解过,现场就那么稀里糊涂的交了定金),鹰卫浴(感觉还挺贵的一个马桶、台盆、花洒三样东西就六千多,好心疼),老婆还看中了L&D的一款浅灰色地砖,不知道铺出来是什么效果,待定中
2 _7 |1 K, Y9 A& s+ m" u1 q 地砖.jpg
% p; N4 G% }# J# Z' u! y6 T4 E
回复 支持 反对

使用道具 举报

该用户从未签到

 楼主| 发表于 2017-2-27 13:32 | 显示全部楼层 来自:江苏
盛典瑞家装饰 发表于 2017-2-26 15:29
' c" k# V, e, u0 m个人认为,如果条件允许,卫生间还是做成干湿分离更好些

2 |3 _' ?& H4 a/ d% p9 U, k你好 干湿分离的话是要怎么做?淋浴房隔开算干湿分离吗?
0 r  f: p: Q! N* o/ }8 J
回复 支持 反对

使用道具 举报

该用户从未签到

发表于 2017-2-27 14:08 | 显示全部楼层 来自:江苏
liulei880204 发表于 2017-2-27 13:32
( v5 o* u0 E3 U) B3 o你好 干湿分离的话是要怎么做?淋浴房隔开算干湿分离吗?

, U- P' ^9 g6 F; l2 T* y& t     是台盆放在外面,单独隔开,这样早上用卫生间和洗漱的家人就不会产生冲突了哦!# ]9 W" w! T( c* Z
回复 支持 反对

使用道具 举报

匿名
发表于 2017-2-28 09:56 | 显示全部楼层 来自:江苏
提示: 作者被禁止或删除 内容自动屏蔽
回复 支持 反对

使用道具 举报

匿名
发表于 2017-2-28 16:59 | 显示全部楼层 来自:江苏
提示: 作者被禁止或删除 内容自动屏蔽
回复 支持 反对

使用道具 举报

该用户从未签到

 楼主| 发表于 2017-2-28 20:27 | 显示全部楼层 来自:江苏
装修公司给出开工之前有三项任务:1.联系物业办好开工手续。  q: Q3 B2 a5 S( M9 n
2.确定好封阳台的,方便后期泥瓦工对阳台边框进行处理。
* ^3 U; w/ G& y2 Z, i2 i3.因为客厅准备用一台风管机,所以还要确定好风管机,吊顶之前需要把风管机先装好。
* ^: K2 M2 G) m* j第一条很好办,只要带上自己的身份证,装修公司来个负责人,带上图纸,去物业交装修押金就行,反正现在无论做什么,重点都是在交钱啊!!!
! M* U6 P+ P2 h4 T$ I3 g' |今天重点去了解了一下第二点,封阳台,以为挺简单的一件事,里面还蛮多学问。什么凤铝,断桥铝,高低轨,平轨。真是各行有各行的术语啊。最后了解的意思就是一般断桥铝的高低轨就OK了。 initpintu_副本.jpg 找了几家报了家,伟业、伟昌的报价从380到430一平不等。380的是装修群里做广告的,430的是一期的邻居,高价给出的理由是配件都是原厂配件,质量有保证。最后衡量了一下,还是选择邻居做吧,毕竟万一后期有啥质量问题我也能找到人,万一现在贪便宜,以后找不到人了,也是件麻烦的事。也就不省这几百块了。
6 @# R  `* V" X, u, ]
回复 支持 反对

使用道具 举报

该用户从未签到

 楼主| 发表于 2017-3-1 12:28 | 显示全部楼层 来自:江苏
今天客餐厅的效果图出来了,为什么上传照片对文件大小有要求啊,大图一直不好上传啊??? 客餐厅_副本.jpg 地砖的颜色还有待确定中,老婆看中的是浅灰色的那款,大家给点意见呢

点评

从效果图上看,吊顶是比较薄的,你安装的风管机后的吊顶应该不是这个比例,室内高2700,你的吊灯是多高?  发表于 2017-3-27 22:50
回复 支持 反对

使用道具 举报

该用户从未签到

发表于 2017-3-7 09:03 | 显示全部楼层 来自:江苏
灰色地砖太好看了~铺出来绝对洋气~
回复 支持 反对

使用道具 举报

该用户从未签到

 楼主| 发表于 2017-3-10 12:46 | 显示全部楼层 来自:江苏
# i- B/ G. l) W( _. j. n; g

  ], b* k9 M! F% w好几天没更新了,昨天(3月9日)8点58分,伴着鞭炮声敲墙8下,顺利开工! initpintu_副本.jpg / P5 a+ ~) J$ R, ]
接着去物业办了装修手续,反正就是一系列的要求,然后就是填资料、交押金。下午打电话让收移门的来把客厅原来的移门拆走了,价格那是相当可观啊,一片10块,总共50块钱!好吧,我封个阳台5000块,我卖了个差不多大小的移门50块! 222.jpg
/ i6 z3 k2 `+ ^% D# d
回复 支持 反对

使用道具 举报

该用户从未签到

 楼主| 发表于 2017-3-15 14:32 | 显示全部楼层 来自:江苏
3月10日 周五 天气多云  开工第二天,下班去看了一下,墙敲了部分,还没结束。3月11日至12日  项目经理通知这两天没有施工
3 L* F/ c3 w- X/ Q9 c! ^/ j1 T" ^3月13日至14日 还是在敲墙,下班去看了一下,还有敲墙的师傅在干活,该敲的地方基本都结束了,线槽也开了。之间封阳台的也过来把框子立起来了。一切都按部就班进行着。
* ~( W% `2 z$ _3 d: j/ W7 l3月15日 貌似又没有人施工,说今天水电材料进场,晚上刚好约了唯美L&D瓷砖过来量尺,顺便再去看看! 01.jpg 02.jpg
! y- z' e; Y3 S' @  A: c' U; `
回复 支持 反对

使用道具 举报

该用户从未签到

 楼主| 发表于 2017-3-15 14:41 | 显示全部楼层 来自:江苏
差点忘记了,还想咨询一下论坛里的伙伴们,墙砖到底是用瓷片呢还是用地砖上墙呢?卖瓷砖的朋友建议地砖上墙,说质量更好,效果也好。装修公司的意见是,最好墙砖还是用瓷片,地砖上墙后期容易出现空鼓,而且地砖上墙需要用重砖粘合剂,得要我自己提供,光厨房卫生间就要两千多块,纠结了一下,算了还是走常规路线吧,该地砖的地砖、该墙砖的地方墙砖!(PS:之前不知道墙砖跟地砖还有不同,一直以为都是瓷砖,真的每些事都是自己经历过了才知道啊,一边学习一边装修吧)& l# |, ^+ E; Q1 Y; A* ^4 a6 F! S

点评

地砖吸水性差,墙砖吸水性强,是针对用处不同而开发的产品。当然地砖上墙也是可以,施工难度大些,耐磨性上墙砖足够。  发表于 2017-3-28 21:43
回复 支持 反对

使用道具 举报

该用户从未签到

发表于 2017-3-20 18:56 来自手机WAP | 显示全部楼层 来自:江苏
期待更新,加油!
回复 支持 反对

使用道具 举报

该用户从未签到

 楼主| 发表于 2017-3-21 08:50 | 显示全部楼层 来自:江苏
好几天买来更新了,最近家里一直没有施工唉,感觉进度有点慢,开工到现在已经十几天了,墙皮才刚刚铲完,水电材料进场了,但是工人一直没到位啊!今天得给项目经理打个电话催一下了…上几张铲墙皮后的照片吧 01.jpg 02.jpg 03.jpg 04.jpg * E& w1 p8 p& H$ [! G; s' a) m7 ]
回复 支持 反对

使用道具 举报

该用户从未签到

 楼主| 发表于 2017-3-25 09:19 | 显示全部楼层 来自:江苏
2.17.3.25 晴
! k2 D% S3 G$ D+ _) a2 k. c好几天没更新了,主要是最近都是下班去看看的,在做水电,拍了几张照片,客厅的风管机安装好了,水电也做的差不多了,就剩厨房的水电做一下就差不多了 IMG_20170324_182111.jpg 02.jpg 03.jpg 04.jpg 05.jpg
$ l) J6 u; u( H8 l8 T( s3 e
回复 支持 反对

使用道具 举报

该用户从未签到

 楼主| 发表于 2017-3-25 09:23 | 显示全部楼层 来自:江苏
L&D瓷砖给的套框图,大家帮参考一下呗 地砖铺贴.jpg
2 {$ W5 [5 \, M: d- W0 S5 B
回复 支持 1 反对 0

使用道具 举报

匿名
发表于 2017-3-27 22:46 | 显示全部楼层 来自:江苏
提示: 作者被禁止或删除 内容自动屏蔽
回复 支持 反对

使用道具 举报

匿名
发表于 2017-3-27 22:52 | 显示全部楼层 来自:江苏
提示: 作者被禁止或删除 内容自动屏蔽
回复 支持 反对

使用道具 举报

该用户从未签到

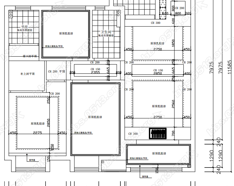
 楼主| 发表于 2017-3-28 16:55 | 显示全部楼层 来自:江苏
**** 作者被禁止或删除 内容自动屏蔽 ****
( i) Z% |! t2 h( `
你好 风管机的那段吊的300高,对面靠厨房的那面与之一样,其余地方吊的200。风管机就直接吊着顶装的,风口与顶面的处理我还没详细问呢。 01.png 5 n6 {- u* {/ u/ ~+ r. j9 q
回复 支持 反对

使用道具 举报

匿名
发表于 2017-3-28 21:45 | 显示全部楼层 来自:江苏
提示: 作者被禁止或删除 内容自动屏蔽
回复 支持 反对

使用道具 举报

该用户从未签到

 楼主| 发表于 2017-4-6 15:28 | 显示全部楼层 来自:江苏
最近比较忙 好久没来更新了 家里水电已经结束了 砖也开始贴了 上几张图片吧 IMG_20170330_184138_副本.jpg IMG_20170330_184145_副本.jpg IMG_20170330_191440_副本.jpg
回复 支持 反对

使用道具 举报

该用户从未签到

 楼主| 发表于 2017-4-6 15:40 | 显示全部楼层 来自:江苏
补几张瓦工师傅铺砖的图 QQ图片20170406152918_副本.jpg QQ图片20170406152927_副本.jpg QQ图片20170406152931_副本.jpg
回复 支持 反对

使用道具 举报

您需要登录后才可以回帖 登录 | 注册

本版积分规则

手机版|无图版|站务联系 | 商务合作 | 平台公约

信息产业部备案:苏ICP备05014191号-1 经营性ICP许可证:苏B2-20110445 苏公网安备 32060202000307号 © 2001-2019 0513.org All Right Reserved.

投诉争议 技术支持:第一互联 GMT+8, 2025-12-16 08:43 , Processed in 0.309175 second(s), 26 queries , MemCache On. 站点统计

快速回复 返回顶部 返回列表