- 阅读权限
- 70
- 精华
- 最后登录
- 1970-1-1
- 在线时间
- 小时
- 主题
- 好友
- 相册
- 分享
- 日志
- 记录
- UID
- 797474
- 帖子
- 0
TA的每日心情 | 无聊 2014-1-22 09:02 |
|---|
签到天数: 9 天 [LV.3]偶尔看看II
|
: J2 |" S5 S B% y
7 Y) ^# C" r4 H+ j$ q
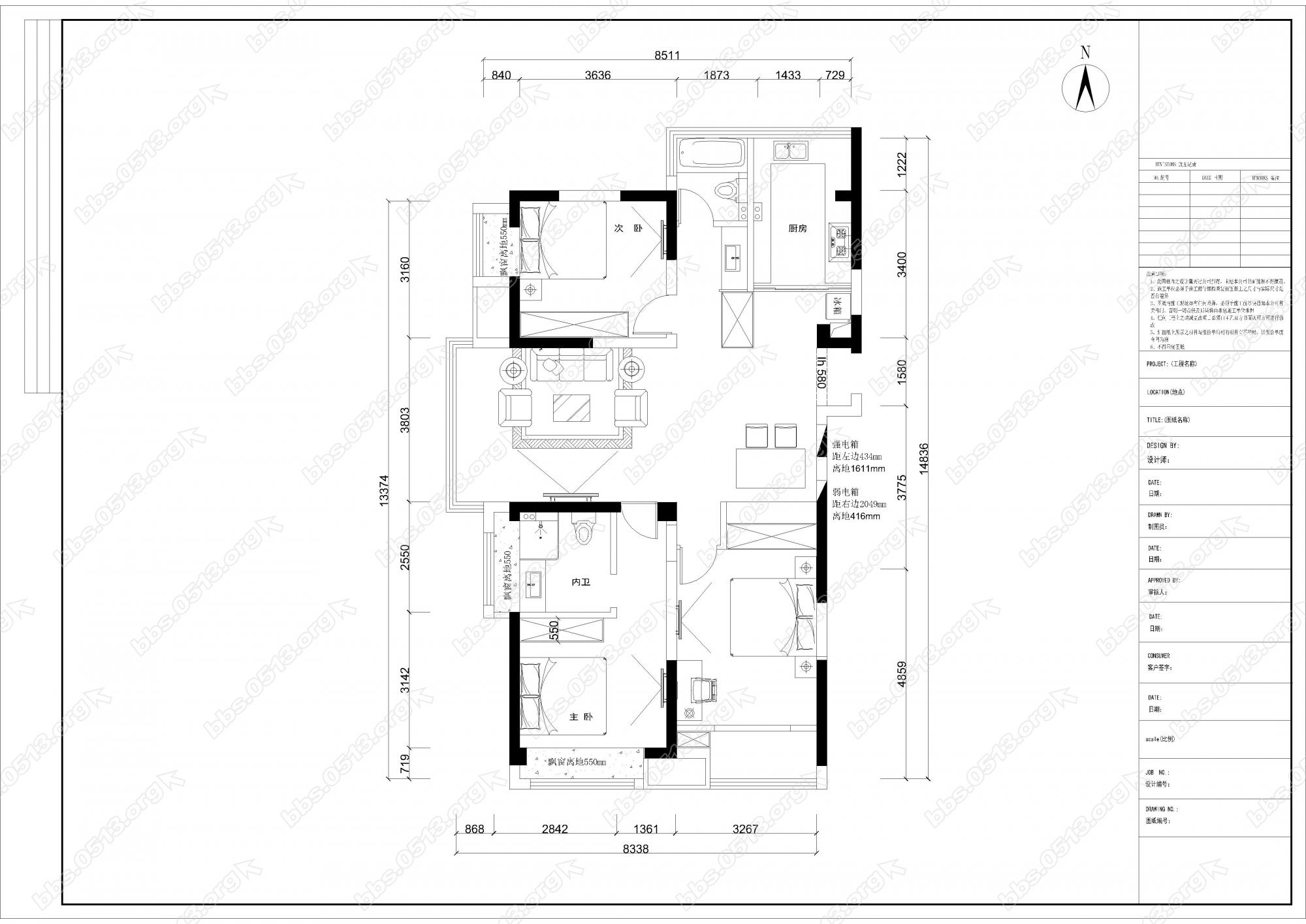
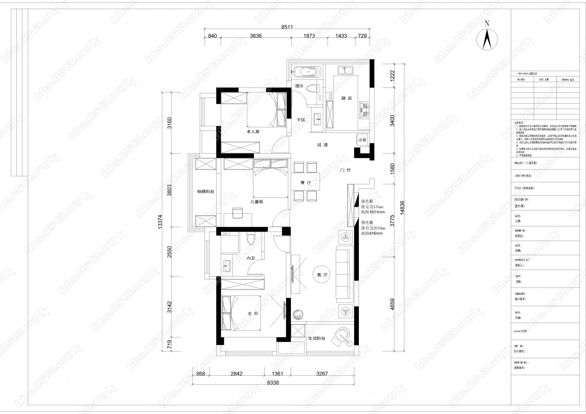
【标准信息栏】
$ b, p6 _2 Y+ y6 x房型:三室两厅两卫
" ^' d {3 V" t建筑面积:128.6㎡6 O+ b9 Q& ~7 k9 r
装修预算:未知3 C2 s- l; H2 v$ t3 {9 X
包工方式:清包
8 P4 J; I3 G x1 q9 ^- k* }5 h设计师:小支
% m$ o) l+ P1 E, c6 ?0 l开工日期:2017年6月20日
6 m8 L% P" L. `# K4 Q1 w6 g3 _( @竣工日期:未知(明年暑假能住进去就OK)
% b' z, F3 K- H- L6 q楼盘地址:万濠星城
) l( u2 i/ ?% f3 V$ r原始结构图:% q* q7 N0 Z T
/ E1 T& O; H( ]: z
* C; y* ~ V; h- G; o+ Y, m
3 L/ l0 y# ~! u% D% H* b; f2 x南通0 |
|