做一个工程·树一个样板|爱蜂潮装饰恭喜【幸福天地】刘先生开工大吉
5 e9 P# W0 F7 e1 K- i7 M2 w$ O$ n0 E! |8 z1 n8 P% \
3 d* z+ q# W/ z A3 d2 g
5 w! W' @0 L% a) d' M上图为刘先生与设计师、项目经理合影,祝业主开工大吉~~(鼓掌ing)% U9 p7 f2 {2 u/ `1 |+ Z
% z8 X' s+ U" [# @2 V. g; F装修档案
& X! F! Q' ^; ]5 |' m' h; G$ M5 j本案设计师:袁野 设计职称:V8原创设计师 项目名称:幸福天地 所在县区:开发区 装修风格:现代简约 房屋户型:两室两厅一厨一卫 建筑面积:89平 设计单位:V8原创设计机构 项目经理:顾海东 开工时间:2016.04.24
0 `5 H# E1 P7 M/ H3 ^% C' Y1 R
8 H# e0 s7 `5 b6 [3 {% k: C1 B
工程类型 半包,包括水电材料及人工,瓦工材料及人工,木工材料及人工等 基础造价:3.8万
% G4 A' N5 i1 @7 U原始结构图
5 r& Q0 G+ B9 b! \7 a( w新建墙体图
, p- W" ^8 B( s3 Q9 }1 Z/ y/ \7 r
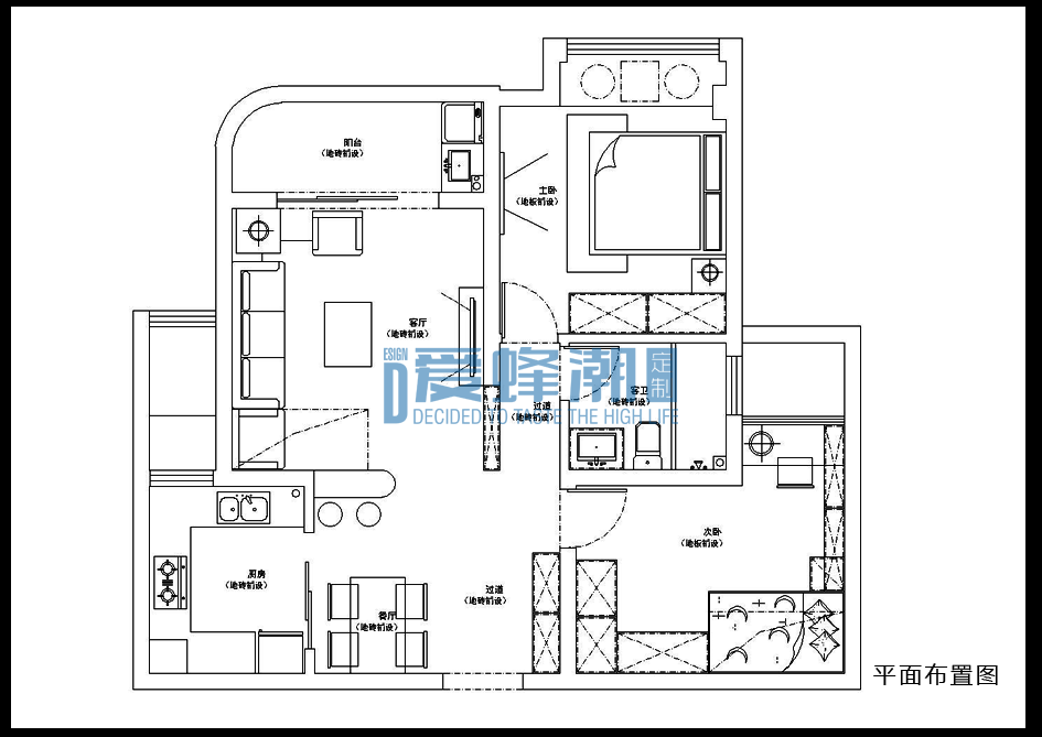
: h' [; b+ \( u. L0 A( Y平面布置图9 y3 p, c& C0 l8 O1 C9 j o
9 h3 R8 \9 j0 v, ~
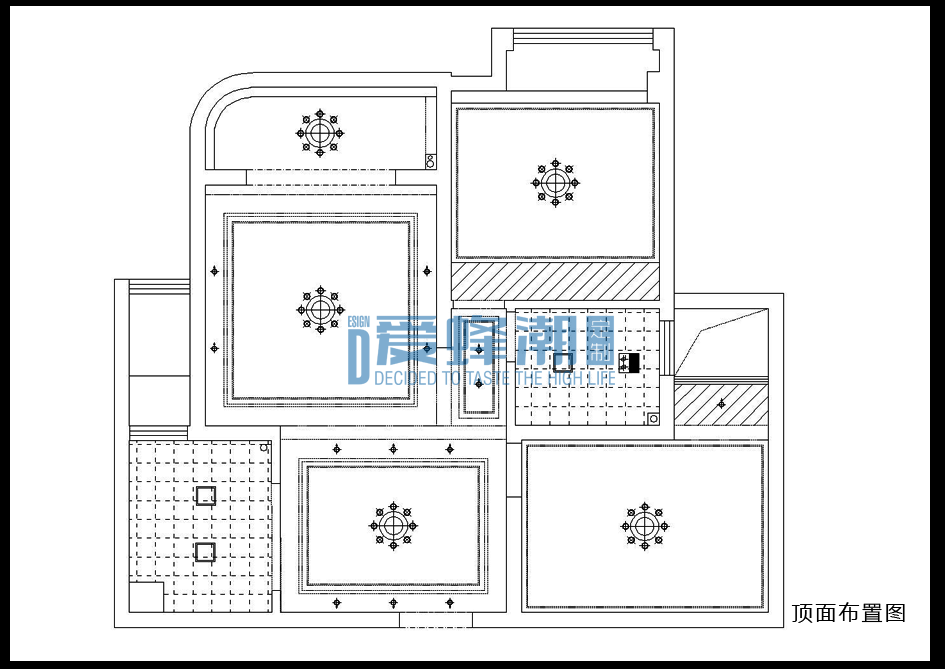
+ b) {. N; P; C. Y# W( J顶面布置图; |% L) N% `0 U2 T
- d8 G, {- v# `, a1 H+ S( k% g. m! W2 L$ ~, u
设计师
/ z0 ~% H: Z! K) j! c0 ~1 e
, N$ C$ W N: F: d$ Q
0 [2 f. U+ n$ @* v/ W咨询QQ: 629068887
5 Q2 s6 Q+ Z8 f6 i3 t3 U% s 1 Q2 B3 X* L- F O
南通0 |