濠滨论坛

点击扫描二维码

查看: 46664|回复: 0

做一个工程·树一个样板|爱蜂潮装饰恭喜【中港翡翠城20#】邢先生『2016.01.01开工...

[复制链接]

该用户从未签到

发表于 2016-1-3 17:15 | 显示全部楼层 |阅读模式 来自:江苏
9 `+ v' W' Z6 |# E& [

( l- \- E6 z6 D% t做一个工程·树一个样板|爱蜂潮装饰恭喜【中港翡翠城20#】邢先生『2016.01.01开工大吉』
爱蜂潮——中国智慧家居的领跑者!
爱蜂潮——中国家居领域受人尊敬的领导者!
爱蜂潮——中国装饰行业6S环保工程管理体系倡导者!

: W1 H$ x4 O5 L" M$ k3 C4 F) x( u' F( U0 @2 v( d
我们为业主精心准备的开工横幅挂起来~~

3 D) \% \0 v6 h! L8 N) `( c3 T. g上图为邢先生(左1)与工程总监(左2)、设计师(右1)以及项目经理(右2)的合影,祝业主开工大吉~~(鼓掌ing)
8 z# W- ^8 K& G7 o1 U  C
装修档案
本案设计师: 刘一漫
设计职称:V8原创设计师
项目名称:中港翡翠城
所在县区:开发区
装修风格:现代
房屋户型:两室两厅一厨一卫
建筑面积:105平
设计单位:V8原创设计机构
施工单位:爱蜂潮装饰工程南通有限公司
项目经理:陈昌华
开工时间:2016.01.01
: G0 L0 E& c+ `  H% y- U; B
工程类型
半包,包括水电材料及人工,瓦工材料及人工,木工材料及人工等
4 N4 X2 K  e; n, z: Z7 O5 }% l# m* i' I
基础造价:5.3万

" N% w- |% U7 v' S$ ?3 F6 p" A
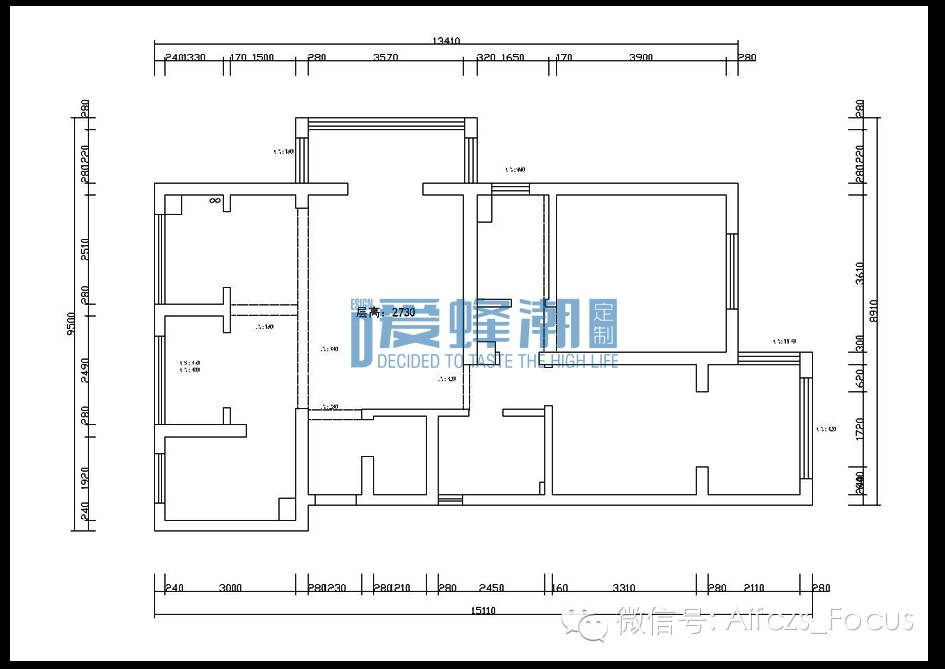
原始结构图
0.jpg
拆除墙体图
0 (1).jpg
平面布置图
0.png
顶面布置图
0 (1).png
设计师
扫一扫关注公众微信号

- b- l( f  A8 R) ]) I% R+ h# l6 L, F4 B- i2 F: c

$ P3 m; U8 t- D4 {: L% m# f8 Z南通0
您需要登录后才可以回帖 登录 | 注册

本版积分规则

手机版|无图版|站务联系 | 商务合作 | 平台公约

信息产业部备案:苏ICP备05014191号-1 经营性ICP许可证:苏B2-20110445 苏公网安备 32060202000307号 © 2001-2019 0513.org All Right Reserved.

投诉争议 技术支持:第一互联 GMT+8, 2025-12-16 23:54 , Processed in 0.197989 second(s), 14 queries , MemCache On. 站点统计

快速回复 返回顶部 返回列表