1 N3 c+ i3 s0 o
& x& Q! a4 ?% u0 f+ |2 \【爱蜂潮6S工程】|【南山国际2#】128㎡-现代简约风格 (2015.12.12 油工完工)
2 |4 M" r$ b# _4 f: ]+ R【装修档案】$ \; u# s, Q' R% t+ `
本案设计师:孟佳 项目名称:南山国际 所在县区:港闸区 装修风格:现代简约 房屋户型:四室两厅一厨两卫 建筑面积:128平米 设计单位:V8原创设计机构 项目经理:李栋 开工时间:2015.10.04
; \+ a8 U& v4 M. i( r& ~$ L( a时间:2015年10月04日 天气:晴* @! H; N; U+ D" M; A+ d* g
施工阶段:现场开工 $ W9 [# {+ c. x2 v
未完待续~~ * U2 o& @' M$ H0 Z
【工程类型】:半包 基础造价:6.05万 工程总造价:23万
. {# ^' |. S6 {5 w" H) B设计说明 现代简约风格是以简约为主的装修风格。简约不等于简单,它是经过深思熟虑后经过创新得出设计和思路的延展,不是简单“堆砌”和平淡的“摆放”。现代简约的装修风格迎合了年轻人的喜爱,都市忙碌生活,早已经让我们烦腻了花天酒地,灯红酒绿,我们更喜欢的一个安静,祥和,看上去明朗宽敞舒适的家,来消除工作的疲惫,忘却都市的喧闹。室内空间开敞、内外通透,在空间平面设计中追求不受承重墙限制的自由。室内墙面、地面、顶棚以及家具陈设乃至灯具器皿等均以简洁的造型、纯洁的质地、精细的工艺为其特征。室内常选用简洁的工业产品,家具和日用品多采用直线。
9 f0 m' t& l6 v" |原始结构图 % n3 v, U' M# S2 o" [; ]+ X
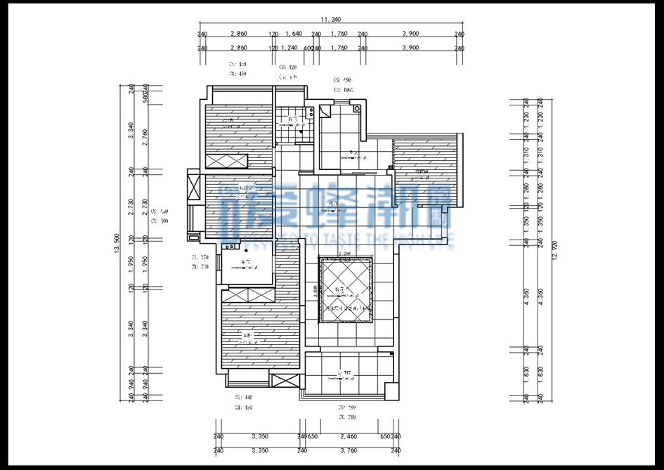
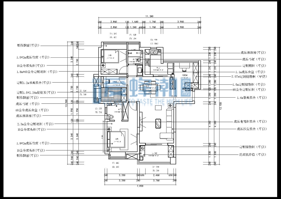
平面布置图
+ o$ x9 t9 j6 P j3 H( U# E地面布置图
2 H$ z3 e: v. U1 t" a: l2 k顶面布置图 $ r- h, t. U; n
设计师
4 O# |3 ?/ [5 ]3 u- x3 O) e扫一扫关注爱蜂潮公众微信号 咨询QQ: 629068887 % `' h% f# c6 A2 ^/ k( J: k9 c$ c
南通0 |