濠滨论坛

点击扫描二维码

查看: 143862|回复: 359

【2015年濠滨装修日记大赛】●不是名流的名流●简美

[复制链接]
  • TA的每日心情
    开心
    2015-9-18 05:54
  • 签到天数: 10 天

    [LV.3]偶尔看看II

    发表于 2015-8-27 11:18 | 显示全部楼层 |阅读模式 来自:江苏
    ; m$ S7 Y- A* a/ R  I/ r' w% a) C
    % [, T7 N7 R+ J& W! X. H  }  \
    <<<<<<<<<<<五楼---房子简要介绍>>>>>>>>>>>>>>
    【小区名称】 益兴名流府
    【基本户型】 三室一厅
    【家庭成员】 夫妻俩+娃
    【建筑面积】 108方
    【实用面积】 95方
    【装修风格】 美式简约
    【装修方式】 半包
    4 o! N: l5 h+ h- g' C& p【装修公司】 传承装饰 吴烨
    【设计公司】 印象水仙 王杰
    【开工日期】 2015年8月27日
    + H7 \6 a& d  a0 M4 [9 ^
    <<<<<<<<<<<四楼---前期准备>>>>>>>>>>>>>>
    2、装修前的准备工作----如何挑选设计公司(一)
    ' [: Q/ ]) X1 ?; [0 z1 I' t1 @ 3、装修前的准备工作----如何挑选设计公司(二)
    + [# S; i2 S) z 4、装修前的准备工作----等待设计图纸时可以做的工作(一)
    4 U$ W) X& ?  k9 P9 B. r; Y 5、装修前的准备工作----等待设计图纸时可以做的工作(二)
    6 k8 ^* n5 F9 w& I; T# K* r" h 6、装修前的准备工作----等待设计图纸时可以做的工作(三)* r: \+ L( {5 }: n
    7、装修前的准备工作----等待设计图纸时可以做的工作(四)7 F. D2 ^& u5 D2 i" l+ l
    8、装修前的准备工作----等待设计图纸时可以做的工作(五)& [! [9 P  }6 R) d- B
    9、装修前的准备工作----等待设计图纸时可以做的工作(六)
    2 _5 j5 r- z) N3 W3 H3 x 10、装修前的准备工作----设计图纸出炉(有精彩整体效果图哦)& m* [* \/ C2 m* E2 H
    11、装修前的准备工作----设计图纸怎么看
    6 G  s  u2 Q" ~, O: f 12、装修前的准备工作----合理的预算、合适的施工队伍
    1 r8 y  \& K) C7 T$ x: u
    5 ]; v6 y  j* h  n
    <<<<<<<<<<<三楼---材料选购与确定>>>>>>>>>>>>>>
    1、磁砖
    ' a9 G+ I0 ~( E: W6 w* W; k; {0 l2、木门
    - r1 R/ u. d# N0 z! {
    3、墙纸、移门
    3 n# M& q" B6 U4、凤铝断桥铝封阳台下定
    8 i! x. k& K% ?: X: l% I
    5、纠结的磁砖终于下定
    - e5 k! p3 Z9 A4 m6 s: p' K' x3 M6 A! ?6、网购的弱电箱、止逆阀、地漏到货
    0 @7 f9 [, Y. j( q8 U! a$ s6 @7、工博城一周年活动战报- e( F7 X  U7 V3 q6 |* k2 V
    8、上海家具厂观察归来, Q. t) Q1 s2 p$ G
    9、上海家具厂观察归来(续)7 B, H' a" B9 d. {) e# n8 x
    10、上海家具厂观察归来(再续)2 i3 ~5 S( d! `' f6 v: W0 A
    11、磁砖到货! r" B4 U6 y. B9 D6 K8 @3 L
    12、计划赶不上变化  家具下定
    : T5 c9 ]6 }4 z% D13、过门石、窗台石到货! H8 Z9 V: @+ D. B! x+ Y) y1 u: B+ a! T) G
    14、阳台大理石购入
    : @2 n  B8 G% n- k( h+ y15、煤气灶、油烟机到货. ]/ M0 l2 j9 v# T# b% B5 K) c
    16、开关插座到货( G8 ~+ a2 b8 R( s1 `
    17、维意定制的儿童房
    6 \, B: s( h6 n' O% c# {3 p* Z+ x8 P" L/ u$ F" g
    <<<<<<<<<<<二楼---与装修相关的内容>>>>>>>>>>>>>>
    1、装修中的风水图 ) @- G" y! M( S0 c* L+ n" \0 [- C
    2、2015年9月-12月黄道吉日一览
    3、参加日记大赛的一点感想
    # _- N4 D) h! r! E8 e4 Q; k! O( i, q4、最近几天没更新的原因

    % Y/ U) O# B4 y% F+ t+ f4 J  }
    5、关于我家装修材料和价格的一点说明; }$ \9 [& i  f
    6、水电放样的注意事项
    3 I( A; G8 h9 K! b5 w7、关于强弱电的那些事儿2 Z3 I9 f5 Q8 a! W" N
    8、继续说家里的强电布置
    4 I4 K1 n, W, G+ @. ~% T9、纠结的强电终于定型了
    & c  {2 p0 ]$ |8 z, o  F10、谈谈五帝钱和六帝钱0 y7 b: C4 n+ W6 Y' V
    ; {; D' Q+ o5 d2 C' h* b8 T! X1 q
    <<<<<<<<<<<一楼---装修日记>>>>>>>>>>>>>>
    1、正式开工了( v, c. k+ ?0 [9 p1 d
    2、敲墙 ( T, g" h% G: r* T
    3、敲墙验收      
    4、儿童房方案调整6 t/ e3 X0 y  A( E  p3 z5 W
    5、水电放线

    " u+ d( W6 V/ y* ^
    ! l6 T5 I/ D5 h2 |( {

    " w0 T8 e( I9 n6 H7 I" a& v1 |

    # q" C5 z) Y5 I6 K* D4 k+ A$ S
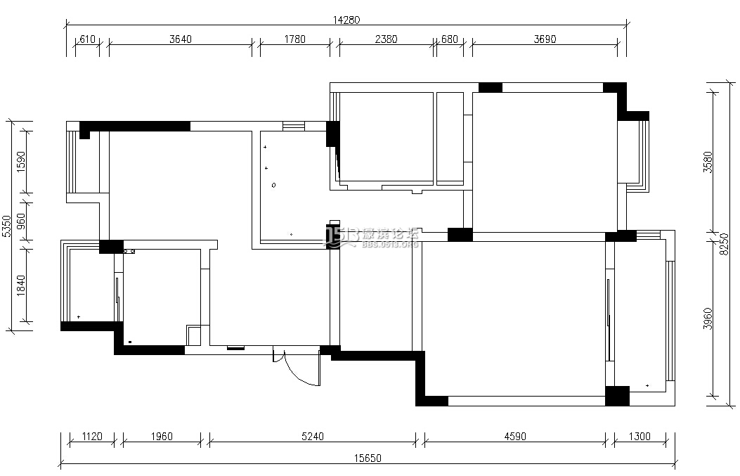
    2.jpg

    原始结构图

    原始结构图
    3 N3 I8 n9 G/ D3 \9 C" g. p- m, C
    8 V6 x* l6 s2 @. ?1 M. A" `
    " w9 {  W% ^6 ~4 |. }$ }- a! w4 T! l

    $ Z) Y0 |+ J" \! j& M) @2 }7 T3 x5 i
    南通0

    点评

    欢迎参加“伟星管”杯濠滨论坛装修日记大赛,记得去濠滨论坛领取参与礼品一份哦  发表于 2015-9-22 11:00
    电梯口没搞好,麻烦版主给个权限,我就在一楼建电梯口吧,现在只能回复,不好修改了  发表于 2015-8-30 09:29

    评分

    参与人数 1经验 +100 濠滨币 +5 收起 理由
    kitten + 100 + 5 参赛请加群号434240494哦,送上祝福~

    查看全部评分

  • TA的每日心情
    开心
    2016-1-3 10:20
  • 签到天数: 2 天

    [LV.1]初来乍到

    发表于 2015-8-27 11:21 | 显示全部楼层 来自:江苏
    恭喜恭喜,开工大吉哦!!!
    回复 支持 反对

    使用道具 举报

    匿名
    发表于 2015-8-27 11:57 | 显示全部楼层 来自:江苏
    提示: 作者被禁止或删除 内容自动屏蔽
    回复 支持 反对

    使用道具 举报

    该用户从未签到

    发表于 2015-8-27 13:27 | 显示全部楼层 来自:江苏
         开工大吉,一切顺利!
    回复 支持 1 反对 0

    使用道具 举报

  • TA的每日心情
    开心
    2015-9-18 05:54
  • 签到天数: 10 天

    [LV.3]偶尔看看II

     楼主| 发表于 2015-8-27 14:16 | 显示全部楼层 来自:江苏
    : x8 y/ h. F2 U
    , C7 w( h: p/ U- n: U( N
    为什么要装修
    6 {9 z5 Q: o! x$ U2 ^/ n$ B      2013年初我们刚拿到房子的时候就准备着手装修的相关事项,基本上一到休息日就跑装修公司。零零洒洒跑了有好多家了,基本都是南通这边数得上名号的(具体这里不公布名称了),方案也看了好多个,但是总觉得少了点什么,一直心里抗拒着我去签下来给谁弄,搞到最后装修的热情退去了,正好这时老妈讲了句,我觉得你们那个房子买矮了,阳光不太好,先放着吧,以后看到好的房子再换一套。额,老妈你太有才了,买房子和菜市场买大白菜一样啊。也就这样我们装修的事情拖了下来。
    " }  H. |+ z& ?7 l: w      今年为什么突然要装修呢?最大的原因是小孩要上学了,以前很天真的认为学区房不重要啊,因为老婆本身就是老师,找找关系就轻松搞定的(没有教育局领导逛濠滨论坛的吧),结果从去年开始政策收紧了,除了本校的教职工子女,别的学校的老师子女不让进了。这下只能装修这套房子了,毕竟他还是个一附的学区房,说起来都是泪啊,当初还真没想到学区房这回事。) _3 Q8 G: o- r$ {3 s2 d2 y+ E9 U5 {
          带着无奈,我们就这样踏上了装修之路。
    & M. B- {. G; D* I/ l* f+ E
    回复 支持 1 反对 0

    使用道具 举报

  • TA的每日心情
    开心
    2015-9-18 05:54
  • 签到天数: 10 天

    [LV.3]偶尔看看II

     楼主| 发表于 2015-8-27 15:33 | 显示全部楼层 来自:江苏
    0 @2 Q7 m' O# i1 g

    6 m0 m7 [* i2 h装修前的准备工作----如何挑选设计公司一8 M7 f8 H* }1 F6 E+ s( F5 n4 z& ]* Q
        装修需要准备些什么呢?首先肯定是设计,那南通市场上设计公司那么多,怎么选是个很头疼的问题!对于设计这块,我谈不上精通,虽然本身我也是个学设计的工科男,但是毕竟不是家装这块的,你让我照着图样画个图可以,但是你让我从无到有做个设计,我认为这不太现实,可能也能画得出来,但是肯定就像假冒伪劣产品一样,到最后搞个四不像出来,最起码精髓的地方学不到。所以我和老婆商量了一下,找装修公司。      很多人搞不清楚装修的时候怎么去挑,就和当初的我一样,挑花了眼,最后再设计师的劝说下,这个活动那个活动的就签了约。因为有了以前找过装修公司出了很多方案的经历了,这次的过程比较简单。
    ' _7 b  H+ z, l! `, _0 @8 r, F0 p1、功能定位
    * j/ m! e. H) i' d% v( |     不管你的房子在什么地方,是什么楼层,面积多大,确定他的功能定位始终是首位,只有确定了这些,你自己心里才会有个数,需要几个房间,是储物空间多一点还是装修性的东西多一点什么的。6 O2 t+ h: I1 t9 W9 H8 K/ M
         我这个房子很简单,一般就我们一家3口住,丈人老夫妻有时候来带带小孩,我父母有时候从老家过来看孙子,所以需要有3个房间、1个客厅、1个餐厅、1个厨房、1个卫生间。& E2 B" e( B7 \! y5 B/ i7 A
    2、装修风格的确定* u  Y6 V* G3 r
        很多人在选风格的时候比较迷茫,不懂选什么样的,现代简约、欧式、法式、美式林林总总的风格让人挑花了眼,最后设计师说我设计的是欧式风格的,你觉得怎么样,然后木木的点头就按照这个做了,我觉得还是把这个工作做在前面比较好一点,至少做到有的放矢。, x: e9 Y* H' s" f
         现代简约我现在家里就是这个,有点审美疲劳了,PASS。 网上有各种各样的风格图片,先在上面挑,搞清楚自己需要的是什么样的,欧式风格和法式风格我和LP大人都不是太有感觉的,PASS。最后只剩下美式了,这里就着重讲一讲美式风格。(专业的绕道走,我这里只是一家之言,非专业的)5 T- I4 D# ~7 q7 a: h- B
          大家知道美国是个殖民地国家,所以他的家居风格是一种兼容并包的风格体现。美式风格分为美式田园(美式乡村)、美式古典(美式新古典),现在在中国家装的时候有融入了中国元素,有了简美风格,也就是小美啦!

    4 e) J7 ]4 N# _; ^: d" I2 b0 n     

    美式田园风格

    美式田园风格
    美式田园风格比较注重家庭成员间的相互交流,注重私密空间与开放空间的相互区分,重视家具和日常用品的实用和坚固。通常客厅、餐厅一般都是都是比较光挺、华丽,卧室书房等私密空间由比较舒适、柔性、温馨的材质组合而成,可以有效地建立起一种温情暖意地家庭氛围。个人觉得他比较有特点的是有拱门、圆弧形顶的窗户、小碎花窗帘等等,色彩比较艳丽,比较适合年轻人,我和LP大人都步入中年了,虽然有点小冲动,但是还是选择放弃这种有点花哨的风格。      
    ( U$ a: _' d  G0 Z. H& |; ] 4.jpg % {1 [. t5 r, [4 V2 C  m0 Z) k$ z
    美式古典风格抛弃了所有的新奇和浮华,选用粗犷的造型、简单纹路、细腻的雕饰和色调,让人一看上去就觉得大气、高贵。个人觉得这种风格的特点是客厅的顶部一般都有粗实木条纹做的造型,家具都是很沉稳的黑色、红褐色、褐色等深色调。这种风格我们其实是比较喜欢的,但是有一点,他不适合我们的房子,因为这种风格我认为大户型才能做出效果来,我们这种小户型来做,反而会画虎不成反类犬。
    % L2 o8 Y3 `! R4 T      

    间美风格

    间美风格

    : I6 k# y; n# @' ~3 M8 R4 F+ J9 }简美风格顾名思义就是简约和美式古典相结合的风格,灵活多变,色彩不复杂,适合小户型,正式我们所需要的。$ [+ Y( `2 x4 ~5 k0 z
    回复 支持 1 反对 0

    使用道具 举报

  • TA的每日心情
    开心
    2015-9-18 05:54
  • 签到天数: 10 天

    [LV.3]偶尔看看II

     楼主| 发表于 2015-8-27 16:22 | 显示全部楼层 来自:江苏
    * \  p4 ^  @$ s

    " P! r) H* N0 X0 \装修前的准备工作----如何挑选设计公司二7 D6 i  N. x' l" \% i) B$ O
          在确定了房子的功能定位和风格的选择上,我们可以坦然的去挑选设计公司了。
      W+ C, e  F5 X5 ]! ~# e# u; x3、设计公司的挑选% M4 F; N( z, Y- e# Y6 i
         设计公司市场上很多,而且我们没有朋友做设计的,所以最简单的方法是上网找,论坛里面逛着,看到了盛典、大墅、印象水仙,不要多选个3家就可以了,因为印象水仙和大墅靠的比较近,所以决定先去印象水仙再去大墅,到了博园岚郡东门口就是印象水仙,这个公司在南通是个新的装修公司,以纯设计来宣传,以设计文件厚度来争夺市场。这个方式在南通开始越来越开始流行起来,看了设计师的设计文件以后,约了个时间量房,然后就准备奔另外一家大墅。因为也在这个小区不太远,结果接了个电话,单位临时有事情,只好作罢,索性等水仙的方案出来再去吧。9 y, l8 T2 {% p" Z7 {3 f) ^" B
          几天后LP大人接到设计师王杰的电话,约了去看方案,她先一路杀奔过去,我电话说你先看,不满意我就不过去了,满意我再去。结果过了一会电话来了说很满意,让我去签约。我想什么个情况,我还没挑呢,这才第一家,纵然我是一个纠结症患者,但是你也别太风风火火了吧!好吧,等我过去看到他们已经详谈甚欢,设计方案并没有什么太大的问题,小细节方面照顾的蛮多的,比方说南阳台的大理石墙面处理,各个管线(煤气管、下水管等等)的位置都标明的比较清楚,最关键的是他做的风格是简美的,也就是我们一开始想的那个风格。在我上次去水仙之后我还心里还嘀咕了一下,设计师也没问过我们的生活习惯、个人喜好怎么知道选什么风格呢,结果他偏偏做出了我们要的风格。LP大人是个比较感性的人,她比较相信缘分,就像上次买车一样,被益昌拖了一个星期又一个星期,然后又要交全款才能匹配到车什么的,索性小手一挥不要了退订金,不管4S的老总说什么优惠4千再送装潢,还是后天就提车不要匹配了临时就能调一台过来,没缘分不要了,她就觉得和水仙有了缘分,好吧,支付宝直接转账签约。盛典和大墅的朋友貌似也在论坛里面,不好意思,不是不选你们,实在是你们输在了起跑线上,还没入围就被LP大人内定给挤走了。
    6 t* k7 y( K# E       这里讲一下什么叫纯设计吧,个人认为设计和施工分开是一个比较好的做法,如果两者是一家的话,设计师会舍弃一些本来觉得想设计但是施工起来比较麻烦的东西。两者不是一家还有个好处,设计公司和施工公司之间也会有个相互的约束,在每项工序结束的时候下道工序开始的时候,设计师会来和业主一起检查上道工序,且交底下步工序,设计师会指出施工队做的不好的地方,施工队也会提出他们对图纸有质疑的地方,方便设计师变更图纸。这种方式在我们交通工程上经常用到,我对这个也比较熟悉,所以选用了这个方式。但是这个里面有个前提,那就是你必须对整个工程有判断力和约束力,万一发生了设计师和施工队有矛盾的时候,你必须能判断出哪个对,哪个错,而且有能力去要求错的那一方整改。
    : p9 Y! N/ P9 D* r

      N6 V" }3 L; j- s) _
    , O- j9 v* X! j  c
    回复 支持 1 反对 0

    使用道具 举报

    匿名
    发表于 2015-8-27 16:43 | 显示全部楼层 来自:江苏
    提示: 作者被禁止或删除 内容自动屏蔽
    回复 支持 反对

    使用道具 举报

    匿名
    发表于 2015-8-27 16:55 | 显示全部楼层 来自:江苏
    提示: 作者被禁止或删除 内容自动屏蔽
    回复 支持 反对

    使用道具 举报

  • TA的每日心情
    开心
    2015-9-18 05:54
  • 签到天数: 10 天

    [LV.3]偶尔看看II

     楼主| 发表于 2015-8-27 17:28 | 显示全部楼层 来自:江苏
    装修前的准备工作----等待设计图纸时可以做的工作(一)# _' n9 @3 m/ g+ X
           等待图纸的过程中可以做些什么呢?很多人认为等就等着吧,反正一切有设计师操心,不需要我们做什么了,不是这么回事啦,既然已经确定了是半包的工程,那有些工作做在前面肯定比做在后面好,我认为可以做以下几个事情。  y$ }* A" H7 w- `3 f5 Y7 m5 @! w
    1、选整体色彩
    : J' V  D- Z8 K. U/ h4 G      这个最为关键,关系到你家里家具、橱柜、墙纸、地砖、地板等等等所有主材的选择。最简单的方法是你想象一下家里全是白色的空间,你从门口进门以后,一件一件东西选添置上去,最后再整体想一遍,看看有没有什么不协调的地方,好吧,这东西仁者见仁,每个人有不同的理解和方法。然而说起来容易做起来还是比较难的,这里介绍几个网上搜到的对我有用的配色的所谓定律吧:
    4 a& N) h1 a; E2 |$ z% v/ y! q. e& C(1)空间配色不得超过三种,其中白色、黑色不算色。

    2 O$ n( }& {( T" X9 _0 u(2)家用配色在没有设计师指导下最佳配色灰度是:墙浅,地中,家私深。; l( X( V+ y+ d( s; j3 C
    (3)打死也不要深绿色的地砖。
      q% V7 }$ ^# m1 b9 Z; l  r(4)天花板的颜色必须浅于或与墙面同色。当墙面的颜色为深色设计时,天花板必须采用浅色。天花板的色系只能是白色或与墙面同色系者。
      J  Z  e# b# o- i. q5 }, V4 [(5)空间非封闭惯穿的,必须使用同一配色方案。不同的封闭空间,可以使用不同的配色方案。  _$ R9 ]& A/ R, T
          既然选择了简美风格,那需要对整体的色调及配色进行定位,因为说实话简美这个东西没有明确的定义,可以偏向于简约也可以偏向于美式,通过在网上搜索的效果图来看,个人喜欢偏稳重一点的深色调,也就是说整体还是偏美式一点。也就是说我敲定天花板用白色,墙纸、地砖选用浅色系,家具用深色系,这种也是比较正常的简美风格。
    ( h& z9 Z  g% E6 _4 o/ _7 J% m! V, ^: P9 s& A

    ' L: D6 p9 t2 T8 S: ^$ u& v, Q: ?" }9 l  }+ n* w2 M# R
    回复 支持 1 反对 0

    使用道具 举报

  • TA的每日心情
    开心
    2015-9-18 05:54
  • 签到天数: 10 天

    [LV.3]偶尔看看II

     楼主| 发表于 2015-8-27 17:30 | 显示全部楼层 来自:江苏
    **** 作者被禁止或删除 内容自动屏蔽 ****
    ) d6 b6 t" i, P. X$ C2 N
    呵呵 我其实一般还是蛮纠结的 但是LP大人坚持啊  没办法就签约了
    回复 支持 反对

    使用道具 举报

  • TA的每日心情
    开心
    2015-9-18 05:54
  • 签到天数: 10 天

    [LV.3]偶尔看看II

     楼主| 发表于 2015-8-27 17:32 | 显示全部楼层 来自:江苏
    等会单位有个聚餐,明天再来写
    回复 支持 反对

    使用道具 举报

    匿名
    发表于 2015-8-27 18:50 | 显示全部楼层 来自:江苏
    提示: 作者被禁止或删除 内容自动屏蔽
    回复 支持 1 反对 0

    使用道具 举报

  • TA的每日心情
    开心
    2015-9-18 05:54
  • 签到天数: 10 天

    [LV.3]偶尔看看II

     楼主| 发表于 2015-8-27 23:20 | 显示全部楼层 来自:江苏
    **** 作者被禁止或删除 内容自动屏蔽 ****
    4 u% C, e6 O7 j- I" O
    谢谢你的关心和支持
    回复 支持 反对

    使用道具 举报

  • TA的每日心情
    开心
    2015-9-18 05:54
  • 签到天数: 10 天

    [LV.3]偶尔看看II

     楼主| 发表于 2015-8-27 23:21 | 显示全部楼层 来自:江苏
    **** 作者被禁止或删除 内容自动屏蔽 ****

    2 K! C, [4 S& c6 ~8 ?5 P1 _( y谢谢你的关心和支持,绝不会太监的
    回复 支持 反对

    使用道具 举报

    匿名
    发表于 2015-8-28 08:42 | 显示全部楼层 来自:江苏
    提示: 作者被禁止或删除 内容自动屏蔽
    回复 支持 反对

    使用道具 举报

    匿名
    发表于 2015-8-28 08:42 | 显示全部楼层 来自:江苏
    提示: 作者被禁止或删除 内容自动屏蔽
    回复 支持 反对

    使用道具 举报

    匿名
    发表于 2015-8-28 09:11 | 显示全部楼层 来自:上海
    提示: 作者被禁止或删除 内容自动屏蔽
    回复 支持 反对

    使用道具 举报

  • TA的每日心情
    郁闷
    2021-8-27 12:31
  • 签到天数: 34 天

    [LV.5]常住居民I

    发表于 2015-8-28 10:03 | 显示全部楼层 来自:江苏
    恭喜恭喜~~楼主有时间上个效果图来看看撒
    回复 支持 反对

    使用道具 举报

  • TA的每日心情
    开心
    2015-9-18 05:54
  • 签到天数: 10 天

    [LV.3]偶尔看看II

     楼主| 发表于 2015-8-28 11:23 | 显示全部楼层 来自:江苏
    **** 作者被禁止或删除 内容自动屏蔽 ****

    ; f; N4 q) }& V. s  Z* _我家的配电电工看过了不需要换了  原来开发商用的是ABB的 也蛮好的 下次有机会在去你那边合作
    7 F$ F* ^6 P3 q: Q/ v5 m( F! x
    回复 支持 反对

    使用道具 举报

  • TA的每日心情
    开心
    2015-9-18 05:54
  • 签到天数: 10 天

    [LV.3]偶尔看看II

     楼主| 发表于 2015-8-28 11:25 | 显示全部楼层 来自:江苏
    铅笔芯 发表于 2015-8-28 10:03
    7 }% V! b" J) X* p5 B& C恭喜恭喜~~楼主有时间上个效果图来看看撒

    / r/ f/ S% ]. Q效果图我还没讲到 过段时间讲到设计图纸出来以后沟通的时候会出来的
    / R+ r* z# d  d1 d- g
    回复 支持 反对

    使用道具 举报

  • TA的每日心情
    开心
    2015-9-18 05:54
  • 签到天数: 10 天

    [LV.3]偶尔看看II

     楼主| 发表于 2015-8-28 12:14 | 显示全部楼层 来自:江苏
    装修前的准备工作----等待设计图纸时可以做的工作(二)
    2、选橱柜
          橱柜材质的选择对我来说没有丝毫的难度,这个论坛有各路大神都详细介绍过了,对各种柜体的材质都分析过。柜体实木多层、实木颗粒什么的只要防水都行,门板用美国红橡的实木板,做成和家具一样的深色系,LP大人貌似喜欢的是樱桃木的颜色,好吧,顺着她来。
          定了材质那就比价格和做工啦,实木多层+红橡实木门板,去看了玛卡的店,报价是1W8,百安谊家建材馆西北角有家刚开的店,报价是1W6,LP大人比较了一下,决定在百安谊家那家店做了,后来我们回老家了一趟,母亲大人说帮忙介绍个熟人做只要1W多一点点,而且就是帮我现在住的这个房子做的那家,做工很不错,这个就纯粹是帮忙性质的了,等他到南通来量尺寸的时候让我请他吃个饭,我初定江海一锅,好好招待一下。
         这个大家注意一下橱柜的报价让他们含五金的材质和价格一起报价,别到时候定了橱柜,五金的价格翻个翻,又被赚回去了。五金拉篮什么的具体等图纸出来了再说,现在只是大概看一下。(类似下图这种啦)
    6.jpg
    # z1 `. j& m. [) G

    , m, c9 M  A* S* v( K

    点评

    你们家几米的地柜?几米的吊柜?  发表于 2016-1-15 15:21
    回复 支持 1 反对 0

    使用道具 举报

  • TA的每日心情
    开心
    2015-9-18 05:54
  • 签到天数: 10 天

    [LV.3]偶尔看看II

     楼主| 发表于 2015-8-28 13:00 | 显示全部楼层 来自:江苏
    装修前的准备工作----等待设计图纸时可以做的工作(三)
    & ?* W. ^6 n; k. m2 _3、选家具
    & A+ x- J/ Z7 U- y      家具的选择直接影响到整体的风格,前面已经讲过了在定整体色调的时候,已经拟定了整体家具的颜色是深色的,那就直接带着这个目的杀向百安谊家,看了好多,风格款式满意的很多,不满意的就是价格。美克美家一个沙发要2W多,一个餐桌算下来也要1W,银子要花在刀刃上,转战苏州。
    / S3 d2 ?6 {/ i% D      苏州蠡口是个很有名的家具市场,很多身边的朋友都去买过家具,我们俩口子没做什么准备工作,直接奔过去先探探行情,一路上拒绝了无数的要带路的,还有问我们要不要运输的,逛了好几圈,可能第一次去看的地方不对,总感觉和南通没什么区别嘛,买之前再去一趟看看吧。
    , z) R+ s  P" e      南通红星美凯龙有一家叫美枫潮的,在4楼,比较下来他们家是价格最低的,种类很多,款式也蛮满意的,初步订下在他们家购买,等他们活动的时候再去看看,讲讲价。虽然他们接待人员讲他们是超市价不可以还价,不过貌似据传闻他们陈总和很多设计公司或者项目经理都有联系,带客户去有提成什么的,当然这个在所有的家居装饰行业里面是个普遍现象(PS:我父母也是搞装修材料的,他们也干同样的事情),在这里说没有声讨的意思,希望到时候谈价格的时候能把提出折现给我们这些直接上门的就好啦。: T  _" w8 t5 G, ~, A
          论坛上有2个帖子专门讲到了南通这边的大田家具厂,我去看了一下,美国白橡真材实料,价格优惠的,款式什么的都可以定做,我是觉得蛮满意的,毕竟是全实木啊。LP大人有点不相信小作坊,而且她觉得他们家的漆面看起来没美枫潮的漂亮,可是这个是没有可比性的,一个是全实木的开放漆,一个是实木+板材的贴面,这两个价格相差不大的时候我相信绝大多数人会选择前者,但是有的时候和女人是不能讲道理的,好吧,爱情比什么都伟大,你说什么就是什么吧!反正我们先就看看,以后再讨论讨论。
    & U- K' w, {( R9 O% M       关于美枫潮和大田的照片在LP大人的手机上,有兴趣的了解的朋友我可以发给你们,或者告诉我,我开个楼层好好讲讲家具,毕竟老头子做了二十几年的木材生意,对各种木头还是有一定的认识的。说到我家老头子就有个很搞笑的事情了,我父母知道我要装修了,偷偷的帮我联系了一家比较熟悉的红木厂,然后帮我看木质沙发和餐桌、床什么的,准备给我个惊喜,我后来回老家知道以后头都大了,拿出CAD和草图大师给他们操作了半天,总算明白了什么叫美式风格,跟红木的那种完全不搭嘛,说来说去都是因为爱嘛,你们俩好意心领了,等我们以后买别墅装中式风格的时候咱们在搞这些吧。

    / K/ Z' h5 O2 Z9 y1 o8 N4 K2 M
    回复 支持 1 反对 0

    使用道具 举报

  • TA的每日心情
    慵懒
    2014-6-28 08:44
  • 签到天数: 9 天

    [LV.3]偶尔看看II

    发表于 2015-8-28 16:55 | 显示全部楼层 来自:江苏
    哈哈,第一次看到这样的装修日记加油
    回复 支持 反对

    使用道具 举报

    您需要登录后才可以回帖 登录 | 注册

    本版积分规则

    手机版|无图版|站务联系 | 商务合作 | 平台公约

    信息产业部备案:苏ICP备05014191号-1 经营性ICP许可证:苏B2-20110445 苏公网安备 32060202000307号 © 2001-2019 0513.org All Right Reserved.

    投诉争议 技术支持:第一互联 GMT+8, 2025-12-16 08:47 , Processed in 0.385958 second(s), 31 queries , MemCache On. 站点统计

    快速回复 返回顶部 返回列表