濠滨论坛

点击扫描二维码

查看: 2570|回复: 3

【爱蜂潮装饰】中南世纪花城137平米A7户型

[复制链接]

该用户从未签到

发表于 2015-6-24 10:42 | 显示全部楼层 |阅读模式 来自:江苏
; e5 c! H" d5 v) b7 P8 @# _

4 u2 ?+ g1 T, F
中南世纪花城137平米A7户型

, M" ]$ X8 T  {% [+ c' o/ Q6 Z6 \# f
设计师介绍

0 G, T+ `7 Z  X) [. L( H
555.jpg
8 _  c# S2 V5 O" J
姓    名:袁凯
毕业学校:南通职业大学
从业时间:4年
获得荣誉:中国室内装饰协会注册设计师、江苏省优秀设计师
擅长风格:现代、现代奢华、简欧、新中式、美式
设计理念:设计来源于生活,一切从生活出发
工装案例:景瑞望府、橡树湾、德诚翠湖湾、德诚翰景园、中南世纪城、弘阳上城、华强城、优山美地、优山美地名邸。
原始图
shuiyin新块-Model.jpg
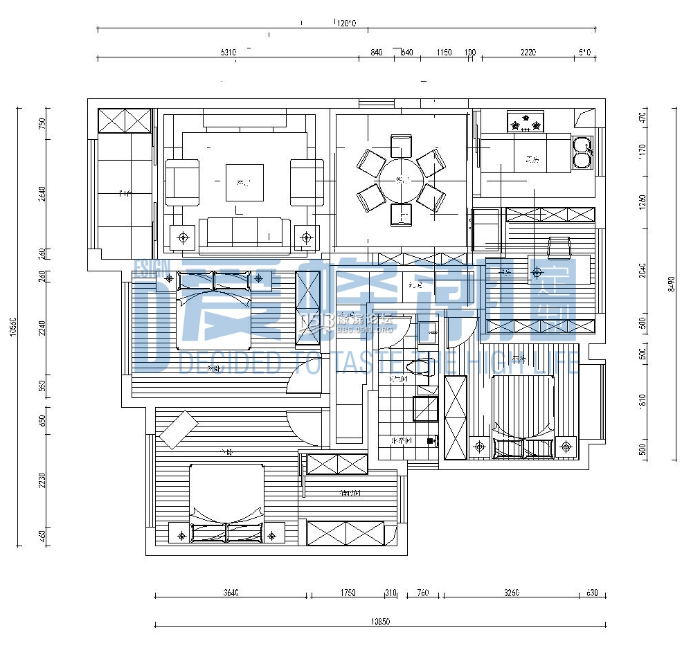
平面布置图
5新块-Model6.jpg
参考效果图
1.jpg

9 |, @1 S( I: n: e: U
2.jpg
, I1 j0 `- _- \2 K
2 y- `5 b7 t" I( v5 `/ {/ E/ J
平面布置图
参考效果图
1 p- b' n# `) G; d% O" l
5 f  \' ^% |) \; i1 |
南通0
1新块-Model0.jpg
匿名
发表于 2015-6-25 16:46 | 显示全部楼层 来自:江苏
提示: 作者被禁止或删除 内容自动屏蔽
回复 支持 反对

使用道具 举报

您需要登录后才可以回帖 登录 | 注册

本版积分规则

手机版|无图版|站务联系 | 商务合作 | 平台公约

信息产业部备案:苏ICP备05014191号-1 经营性ICP许可证:苏B2-20110445 苏公网安备 32060202000307号 © 2001-2019 0513.org All Right Reserved.

投诉争议 技术支持:第一互联 GMT+8, 2025-12-20 13:16 , Processed in 0.186536 second(s), 17 queries , MemCache On. 站点统计

快速回复 返回顶部 返回列表