濠滨论坛

点击扫描二维码

查看: 1953|回复: 1

[装修交流] 112餐厅边墙设计一排柜体,藏和显结合,白和黑对比

[复制链接]
  • TA的每日心情
    开心
    2014-6-7 16:31
  • 签到天数: 22 天

    [LV.4]偶尔看看III

    发表于 2021-12-25 15:04 | 显示全部楼层 |阅读模式
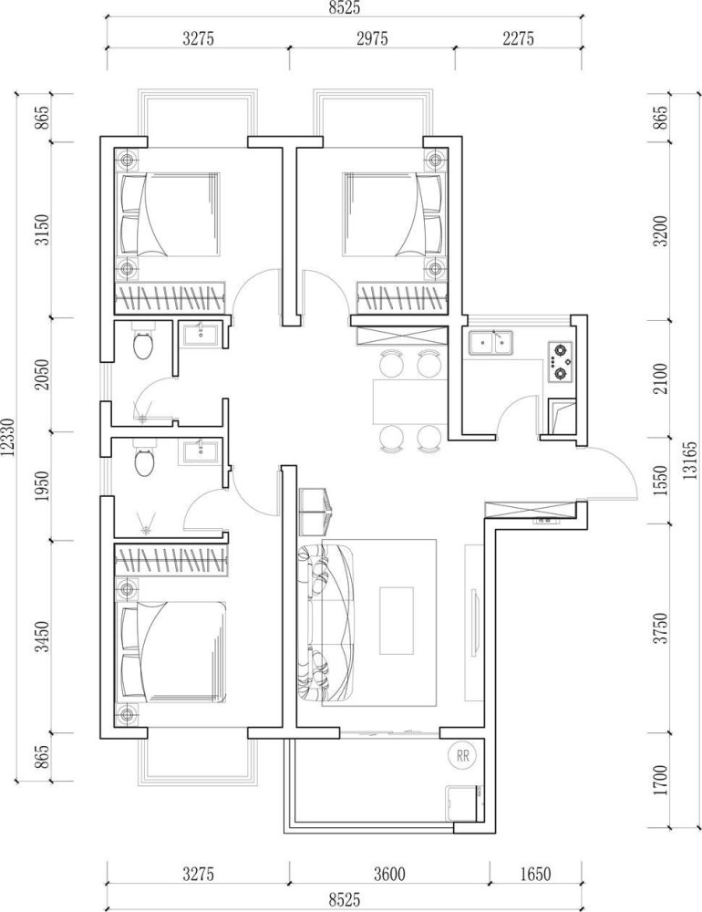
    一套112平米的三居室,装修花了大半年,装完效果美翻了。那么,下面就给大家介绍一下112平米三居室北欧风格的装修设计。
    客厅吊顶拉平,无主灯。将需要照明的地方用落地灯、射灯代替,局部分散照明可以让空间更有层次感。面深色调,整个墙面空间都是大面积留白,局部搭配木饰面,想要表达的效果是稳、空、质。
    客厅怎么装修设计?客厅家具的选用上不要以深色为主,深色的家具会显得压抑,而浅色系的家具使客厅内的空间更加宽敞,在一定程度上也提升了室内的采光感。还可以在客厅加上镜子,利用镜子反射自然光,从而使客厅显得更加明亮。
    面深色调,整个墙面空间都是大面积留白,局部搭配木饰面,想要表达的效果是稳、空、质。
    客厅吊顶拉平,无主灯。将需要照明的地方用落地灯、射灯代替,局部分散照明可以让空间更有层次感。
    卧室怎么装修?很多时候卧室不止是睡觉的地方,它还要同时承担工作、储物、吃吃喝喝等功能,想想你每天要在卧室里虚度大把时光,令人感觉舒服的卧室就尤为重要了。卧室装修一定要符合自己的生活方式,在设计方案时要提前考虑到位,避免后期出现装修遗憾。
    硬装整个空间以白和灰为主,怎样让整个空间更活泼一点呢?一副个性相错的画,一套粉白四件套就是点睛之处。
    当清晨的第一缕阳光透过白纱洒进室内,还是不想起床。
    餐厅是家人休闲、互动的地方,因此在确定餐厅装饰风格后,在设计和布局上要注重空间的开阔,保证室内的通透和光线的充足,客厅和餐厅之间尽量减少阻碍,从视觉上扩大空间。
    餐厅侧边墙设计了一排柜体,藏和显相结合,白和黑有对比。
    很多小户型家庭都直接忽略了设置书房的想法,因为空间小,卧室都不够何谈书房。其实,如果真心想要,书房小户型也可以有!所以想要凸显一个人的气质,书房的打造是必不可少的。
    书房是由原主卧套间改造。放空的白,质感的木,虽空间不大,但是毫无局促感

    ( T0 i% H: g/ T: u1 S
    $ ^" ^) A5 g) _3 i4 @# H3 n
    : ^% q- v( I  c' z! t) g4 K
    4 Q  |3 v7 ?+ O* T. T南通0
    头像被屏蔽

    该用户从未签到

    发表于 2021-12-26 10:33 | 显示全部楼层
    提示: 作者被禁止或删除 内容自动屏蔽
    回复 支持 反对

    使用道具 举报

    您需要登录后才可以回帖 登录 | 注册

    本版积分规则

    手机版|无图版|站务联系 | 商务合作 | 平台公约

    信息产业部备案:苏ICP备05014191号-1 经营性ICP许可证:苏B2-20110445 苏公网安备 32060202000307号 © 2001-2019 0513.org All Right Reserved.

    投诉争议 技术支持:第一互联 GMT+8, 2025-12-10 20:51 , Processed in 0.345939 second(s), 12 queries , MemCache On. 站点统计

    快速回复 返回顶部 返回列表