濠滨论坛

点击扫描二维码

查看: 145|回复: 1

[装修交流] 长条形的55平北欧风小户型

[复制链接]
  • TA的每日心情
    开心
    2014-6-7 16:31
  • 签到天数: 22 天

    [LV.4]偶尔看看III

    发表于 2021-5-12 14:16 | 显示全部楼层 |阅读模式
    分享一套50来个平方的长条形小户型给大家,由于这套房子位于一楼,所以还自带了一个大院子,长条形房子的采光不太好,所以齐家网设计师选择了北欧风,以白色为主,搭配有格调的黑色和灰色,时尚感十足。齐家小编最喜欢的还是次卧做的榻榻米书房,超级实用!
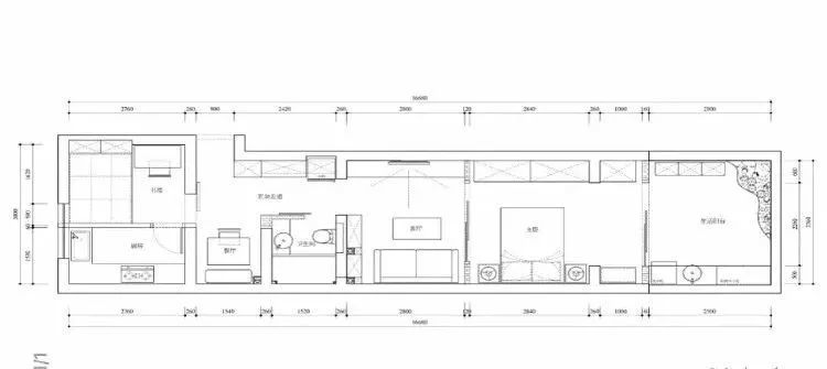
    平面布置图
    进门就是餐厅,空间比较迷你,一面黑色与白色构成的海浪图作为背景墙,让这个空间变得更加的有感觉。
    餐厅的边上就是卫生间和榻榻米次卧,由于玄关比较小,就只做了一部分的到顶鞋柜,放一些平时的鞋子也足够了。
    榻榻米组合衣柜加上书桌的设计是最适合小户型的,虽然次卧的空间很小,但是主要作为工作所用和方便客人来了有地方睡。
    厨房就在次卧的边上,L型的厨房是最适合小户型长条形厨房的设计了,靠着次卧的这面墙还做了很多收纳的设计,麻雀虽小,五脏俱全。
    整个房子主要的采光只有院子处,所以走道大面积都是运用了白色和浅灰色,不会那么单调,又能够明亮一些。
    做在走道上的洗手台,这样平时吃完饭也可以直接洗手,不用再进去卫生间,也方便了早晚的洗漱,不用争抢卫生间。
    卫生间里的干湿分离就用浴帘和挡水条来组成,这样更不会拥挤,不过这个柜子的摆放位置有点迷~坐马桶难道还要侧着坐?
    走道之后就是客厅啦~用文化砖作为电视背景墙,搭配沙发边的书架,显得非常有文化气息~
    客厅靠着卧室,所以只能摆下一个双人沙发,这时候齐家小编就建议大家选择比较小的茶几,这样边上还可以摆几个小矮凳,方便客人坐。
    卧室的位于院子和客厅的中间,为了采光更好一些,全都是用玻璃推拉门作为隔断,搭配窗帘,也能保证隐私性。
    整墙到顶的柜子也比较适合小户型,用白色或浅灰色作为柜子、背景墙的主色,可以显得更加明亮一些。
    主卧的空间还是比较充足的,毕竟有了个院子,阳台的空间可以并一部分到主卧内,屋外留下一部分方便下雨天晾晒衣服即可。
    露天的小院子,适合种些花花草草,然后摆放防腐木的家具,平时可以和爱人朋友一起享受阳台与美景~

    * @0 I& ?& z6 `( P3 J6 J( K% g南通0
    头像被屏蔽

    该用户从未签到

    发表于 2021-5-13 13:31 | 显示全部楼层
    提示: 作者被禁止或删除 内容自动屏蔽
    回复 支持 反对

    使用道具 举报

    您需要登录后才可以回帖 登录 | 注册

    本版积分规则

    手机版|无图版|站务联系 | 商务合作 | 平台公约

    信息产业部备案:苏ICP备05014191号-1 经营性ICP许可证:苏B2-20110445 苏公网安备 32060202000307号 © 2001-2019 0513.org All Right Reserved.

    投诉争议 技术支持:第一互联 GMT+8, 2025-12-11 01:51 , Processed in 0.318355 second(s), 12 queries , MemCache On. 站点统计

    快速回复 返回顶部 返回列表