濠滨论坛

点击扫描二维码

查看: 414|回复: 1

[装修交流] 84平小户型的完美蜕变,合理规划家务动线,朋友看后都想要模仿

[复制链接]
  • TA的每日心情
    开心
    2014-6-7 16:31
  • 签到天数: 22 天

    [LV.4]偶尔看看III

    发表于 2021-4-30 15:38 | 显示全部楼层 |阅读模式
    84平小户型的完美蜕变,合理规划家务动线,朋友看后都想要模仿
    今天要和大家分享的这个房屋户型只有84平方米,刚开始看到房屋的时候就只有一个感觉:憋屈。因为整个空间内部每一个房间看着都很拥挤,本来三个卧室也很小,不过业主的诉求很简单,只要预留一个客房就可以了,其余的空间都可以随意规划自己使用!通过设计之后这个84平的小户型也达到了完美的蜕变,通过合理规划家务动线来增大面积,朋友看后都先要模仿!
    房屋户型:两室
    房屋面积:84平方米
    装修预算:20到30万元
    所在城市:成都
    设计师:安仁
    主要建材:冰晶白玉大理石、咖啡绒石材、线板、绘制订做雕花板、进口壁纸、法式水晶绷绒布、地板、超耐磨地板
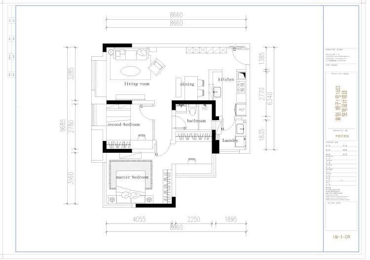
    【户型图】
    变大空间第一步:规划合理的家务动线,将不必要的区域合理划分在一起。
    变大空间第二步:扩展视野范围。1、本次案例的厨房和餐厅将功能独立分开,又以开放式厨房的形式有视线上的连通。2、次卧室空房率较高,半墙+玻璃门窗的设计,放大视线的同时也能增加过道的采光。3、书房与主卧连通给彼此视线作出退让。
    【玄关】
    设计亮点:去除通道
    进门玄关的位置去除了之间厨房的通道,同时增强了整个入户的采光,进门就感觉十分的明亮大气,整个空间看着就很大方,进门的位置也准备了鞋柜和穿衣镜,看着就很实用。
    【客厅】
    设计亮点:无主灯设计
    整个客厅都是无主灯的设计,简约的黑白线条吊顶让整个客厅变得更加宽敞明亮,屋顶通过小的吸顶灯和旁边的射灯来照明,整个房间的光线也都很好,即使没有主灯也很大气。
    设计亮点:投屏代替电视机
    客厅去除了电视机,选择了投影的幕布,这样看电视的时候感觉也会更加的方便,不使用的时候也可以卷起来不会占用空间,这也是现在很多年轻人喜欢的设计。
    设计亮点:照顾家里宠物
    家里还有一只很听话的金毛,不过为了不让金毛走到门口,还是在玄关和客厅之间为金毛准备了一个小栅栏,有客人到家里的时候也不会被金毛吓到。
    【厨房】
    设计亮点:开放式设计
    厨房选择了开放式的设计,实木的储物柜让整个房间变得更加实用,厨房根据户型在两侧摆放家具和电器,合理的利用了整个空间,也让房间变得很通透。
    【餐厅】
    设计亮点:墙角照明灯提亮空间
    餐厅的位置也是无主灯的设计,为了增强光线还特意在旁边的墙壁上设计了一个小照明灯,温馨的灯光一家人在一起吃饭也会更开心。
    【卧室】
    设计亮点:卧室和书房连通
    卧室的衣柜和厨房是连通的设计,两个空间看着就很通透,整个房间也很大方,卧室和书房都增加了一排收纳柜,合理的解决了家里的储物需求。
    只要合理的利用整个房间,小户型也可以变得更加开阔,去除不必要的设计,才能让空间变得通透大气。
    ' q$ @, N0 c) ~/ Y3 v; u8 v
    南通0
    头像被屏蔽

    该用户从未签到

    发表于 2021-5-1 14:14 | 显示全部楼层
    提示: 作者被禁止或删除 内容自动屏蔽
    回复 支持 反对

    使用道具 举报

    您需要登录后才可以回帖 登录 | 注册

    本版积分规则

    手机版|无图版|站务联系 | 商务合作 | 平台公约

    信息产业部备案:苏ICP备05014191号-1 经营性ICP许可证:苏B2-20110445 苏公网安备 32060202000307号 © 2001-2019 0513.org All Right Reserved.

    投诉争议 技术支持:第一互联 GMT+8, 2025-12-11 01:51 , Processed in 0.320203 second(s), 12 queries , MemCache On. 站点统计

    快速回复 返回顶部 返回列表