濠滨论坛

点击扫描二维码

查看: 20453|回复: 1

[装修交流] 新中式风格

[复制链接]
  • TA的每日心情
    开心
    2014-6-7 16:31
  • 签到天数: 22 天

    [LV.4]偶尔看看III

    发表于 2021-1-10 11:14 | 显示全部楼层 |阅读模式
    宜设而设,精在体宜
    交付情况:旧房翻新
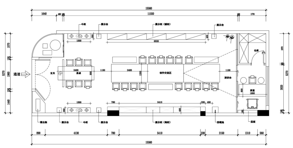
    项目面积:80㎡
    设计前·平面图
    设计后·平面图
    门对中式风格很重要,因中式门窗一般均是做成传统图案,用实木雕刻造型,打磨光滑,富有立体感
    天花以木条相交成方格形,上覆木板,也可做简单的灯池吊顶,用实木做框,层次清晰。
    陈设讲究对称,重视文化意蕴,配饰擅用字画、古玩、卷轴、盆景,精致的工艺品加以点缀,
    更显主人的品位与尊贵,木雕画以壁挂为主,更具有文化韵味和独特风格,体现中国传统家居文化的独特魅力。
    以中国传统古典文化为背景,营造极富中国浪漫情调的生活空间,体现了浓郁的东方美。

    ) b' i) e7 G# Z南通0
    头像被屏蔽

    该用户从未签到

    发表于 2021-1-11 10:07 | 显示全部楼层
    提示: 作者被禁止或删除 内容自动屏蔽
    回复 支持 反对

    使用道具 举报

    您需要登录后才可以回帖 登录 | 注册

    本版积分规则

    手机版|无图版|站务联系 | 商务合作 | 平台公约

    信息产业部备案:苏ICP备05014191号-1 经营性ICP许可证:苏B2-20110445 苏公网安备 32060202000307号 © 2001-2019 0513.org All Right Reserved.

    投诉争议 技术支持:第一互联 GMT+8, 2025-12-12 00:32 , Processed in 0.328052 second(s), 12 queries , MemCache On. 站点统计

    快速回复 返回顶部 返回列表