濠滨论坛

点击扫描二维码

查看: 72291|回复: 1

[装修交流] 62平一居室装修设计案例,阳台改造后,多了一个房间

[复制链接]
  • TA的每日心情
    开心
    2014-6-7 16:31
  • 签到天数: 22 天

    [LV.4]偶尔看看III

    发表于 2020-11-25 10:04 | 显示全部楼层 |阅读模式
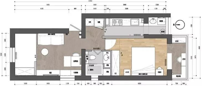
    这是一套62平的小户型,只有一个卧室,所以需要进行改造一下。原本的卧室面积是最大的,在阳台进行了改造一番,变成了一个小卧室,即便晚上有客人过夜也方便很多。
    这是户型的平面图,基本的布置就是这样了。
    玄关的空间不大,所以想要现场制作一个鞋柜就不太可能了,买一个薄款的鞋柜就可以基本满足日常的所需了。过来一点就是餐厅和客厅,客厅是用红砖墙,效果也很有个性的。
    浅灰色的电视背景墙和简单的家具布置,让整个客厅的视觉效果也挺舒适美观。旁边的是原本客厅的阳台,做成了一个备用的卧室,用日式的格栅门做隔断,这样还挺有原木风的感觉。
    餐厅一边的餐椅是和电视柜一起的,样子就有点像卡座了,收纳就坐都可以。简简单单的,看着也舒服,餐桌边还有一个窗户,视觉效果也很广。
    一字型的厨房就是长而已,木色的橱柜搭配上白色的吊柜,让整个厨房看上去也有简洁舒适的效果。
    厨房尽头原本是生活阳台,把他们打通之后,空间就显得大了很多,正好把洗衣机放在那个地方,洗衣做饭都可以在这里解决了。
    客厅对面就是卧室,蓝灰色的床搭配灰色的背景墙,还显得挺有格调的。简洁的木色和白色的衣柜和化妆台,实用也美观。
    卧室旁边还有一个阳台,除了作为平时的晾晒之外,在另外一端还做了书桌柜。一个简单的书房工作区就产生了,这样就算在家里办公也不是什么问题了。
    卫生间的面积并不大,但还在用浴帘和挡水条也能做到干湿分离。加上洗漱柜和壁龛之类的收纳设计,这样一来也就不缺储物空间了。
    # `, x. ]# V3 d
    南通0
    头像被屏蔽

    该用户从未签到

    发表于 2020-11-26 13:36 | 显示全部楼层
    提示: 作者被禁止或删除 内容自动屏蔽
    回复 支持 反对

    使用道具 举报

    您需要登录后才可以回帖 登录 | 注册

    本版积分规则

    手机版|无图版|站务联系 | 商务合作 | 平台公约

    信息产业部备案:苏ICP备05014191号-1 经营性ICP许可证:苏B2-20110445 苏公网安备 32060202000307号 © 2001-2019 0513.org All Right Reserved.

    投诉争议 技术支持:第一互联 GMT+8, 2025-12-12 01:11 , Processed in 0.296741 second(s), 12 queries , MemCache On. 站点统计

    快速回复 返回顶部 返回列表