濠滨论坛

点击扫描二维码

查看: 83749|回复: 0

[我秀我家] 【翡翠华府】144㎡精装房改造,餐厨一体+主卧套间,开放式布局实在太酷!

[复制链接]

该用户从未签到

发表于 2020-9-7 15:16 | 显示全部楼层 |阅读模式
; C1 }. |/ }7 N1 n, q  j3 D
+ v; c: L; ^) y- `; [4 x" i0 r& Q
1 O( T  _/ [* c" F
1.webp.jpg

7 D# l* [. ]# U& b
项目地址  /  翡翠华府
设计风格  /  现代轻奢
项目面积  /  144㎡
主笔设计  /  秦薇薇

8 f5 d) L  j; r* l+ A" ~

/ O; ~) b2 L5 [* {
本案的居住者是幸福的三口之家,夫妻二人经营着一家纺织企业,因行业缘故,业主对新房装修品质要求比较高,喜欢轻奢美式,有一个可爱的儿子。
' Q# g# R+ o" Q9 ]  T  K' ~' c9 L
这是一套144平米的精装房,原户型结构非常常规,空间之间的流通性相对比较弱,配置上很传统。在了解了业主的全部需求后,我们将空间打散重组,定制了不同的功能空间,提高了家居的格局、通风、采光和视野。

5 _4 s. b, ^) P+ o$ y/ M$ g
& J- E0 \" n( s4 z
( e; d" D$ Z" J9 c2 [7 f2 z
- 设计解析 -
' X( V( w8 k# `
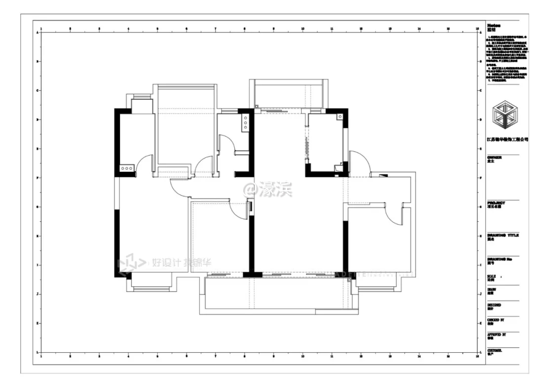
2.webp.jpg
▲翡翠华府144㎡原始户型图

* V9 Y, n# L+ t  s; I  q
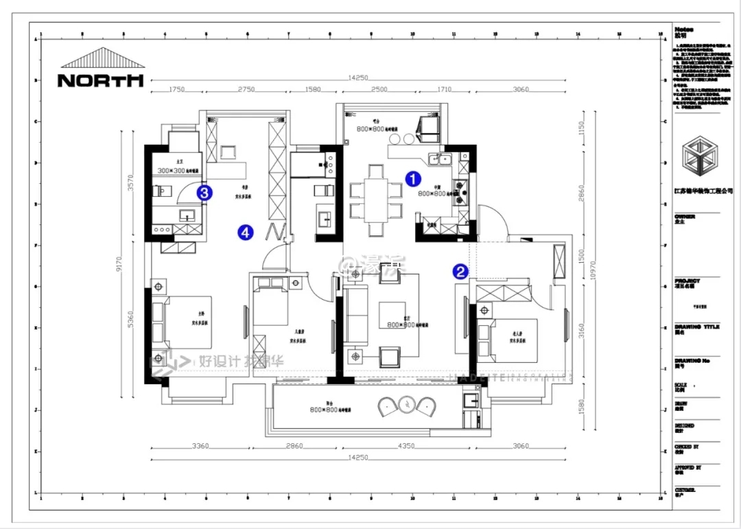
本案客户需求▽▽▽
1、厨餐厅空间较小,功能使用略显不足;
2、电视背景墙较短,需要从设计上着重考虑;
3、主卧卫生间开门位置不是特别理想;
4、家中希望增加储物功能及书房,平时偶尔会有工作上的事需要带回家处理。
/ [- c$ k- {, \
3.webp.jpg
▲翡翠华府144㎡平面布置图

6 R& Y& o5 N6 e+ h8 [* b
客户需求实现▽▽▽
1、厨房拆除做了敞开式,结合北阳台做了吧台休闲区;
2、客厅的背景墙补到与沙发背景齐平,并增加过道门套,视觉上与餐厅背景连成一个整体;
3、主卧卫生间开门位置调整到北卧西墙;
4、主卧室与北卧室打通做了一个套间,北卧室做了衣帽柜跟书房相结合的功能。
$ c4 T2 a- W; A4 ~+ ~4 o6 U0 _

, C, j2 l: M5 Z! `, ^
1、客厅
4 z5 E6 |2 P8 A6 [8 Z
4.webp.jpg

/ N, t7 c4 ?; B. N2 N
8 y" @9 `* o# I, \. \/ L& S# }% L
5.webp.jpg

: B2 m7 w7 o  n- i- z5 }9 X' W
! K  X" x8 y" t8 s" G5 e% G
6.png
& b6 K+ K/ f6 a1 _4 D8 Z* H

! {8 ~5 k9 h- j
设计改造 / Design
现代轻奢的格调于客厅而言,是高级感的中性色,点缀些许碳黑加爱马仕橙,从视觉上给人一种“低调的奢华”;简单的沙发茶几,让一家三口能在客厅舒适的相处,功能与颜值,都恰到好处。
/ Y" _2 A7 j4 v! u6 z
7.webp.jpg
; I( E. v! P& n6 s8 m
$ G+ @; a: S' }4 E9 J8 h

7 X3 q! @' H5 L# r! L" T
8.webp.jpg
: a4 p9 b5 _6 V4 D5 y! Q  j) X* J, m
6 D' a$ N9 F: O/ N# B- b
想要表达空间的质感,并不是只有用昂贵材质堆积,比如原电视背景墙较短,设计师将客厅的背景墙补到与沙发背景齐平,并增加了过道门套,视觉上沙发背景与餐厅背景连形成一个整体,一下子凸显空间层次与质感。

+ I& ?- F' x+ N& z; h3 B! d
2、厨餐厅

  r5 c. i' Q( A0 w
9.webp.jpg

% ?/ x2 C. ]& f: A: P' z1 s4 H$ S5 }* v; I4 n1 T
10.webp.jpg

9 a% \( x0 \, B

% q% m) I% Z6 u& y+ v
设计改造 / Design

8 J1 g5 t: U" Q% c) t( t' J
精装房自带的厨房空间满足不了业主的使用需求,我们将其拆除重新规划为敞开式,微波炉、蒸箱、烤箱,所有厨房电器全部嵌入柜体,将厨房空间利用率达到极致。

$ L2 X; X, d: N: w5 n7 ^. `' Z
同时,设计师结合北阳台做了吧台休闲区,多出的空间全部给了餐厅,餐厨变大正好满足业主的需求,双开门大冰箱也被安置在了北阳台,进一步扩展了厨房的使用功能。

1 w- S1 y$ d/ v, c' Z1 t3 s
11.webp.jpg
2 K" X9 @3 T' |8 g7 H) r. Q- D
* s( B2 S' o  r/ C* L* H
6 j7 n! O3 ^# `. |/ l  e: r
12.png
3 S/ j" k! s8 m2 `1 A
' |2 T" |- P8 ?& g$ t1 u
设计师的用心之处还体现在于,餐厅背景使用了镜面,视觉呈现上空间更大,就餐也更舒适。
$ D4 O0 X1 Z% h8 s: \# B0 H. e
不互动不交流,那是群租房,而家,是一个温暖的港湾,三口之家居住,公共空间的通透,更能够促进家人之间的交流,让家更温暖。
7 A) I1 G# r: n" f
13.webp.jpg
. U# E  ~& J/ {' U; |% p% l/ Q' N
, R4 V. K9 O8 }6 r1 N7 I
# W# t: T8 M; F
3、主卧
/ W* o+ R$ u0 k
14.webp.jpg
- V" E9 Q% f4 g6 t( R; x7 l

: B$ l0 v1 L2 C6 N3 w6 \
15.webp.jpg

0 t) [1 h: O( b! N' J2 S" c

- M8 i* K+ |- E5 Z9 ^
设计改造 / Design
2 _% C( s/ m9 @  U! p& }
主卧同样延续了客厅的简约轻奢,象牙白为基调,碳灰硬包搭配玫瑰金线条,并在两侧设计了与之相匹配的石膏线条,设计师将这些细节继续延用到卧室空间,提升气质,丰满品质居家生活体验。
. _/ E. J1 d1 Z% m. w
16.webp.jpg

. ~* S* s0 Z& h8 p
+ h& N, A! N1 g* O7 j1 _, E3 T) ]2 j% z& K: S
17.png
2 ?' P5 ?0 e4 x! Q- V' n6 P) k

( M6 M, G" ?! P" T( K; B7 R
业主平时偶尔会有工作上的事需要带回家处理,希望家里能增加书房功能,于是我们直接把主卧和北卧打通,一整面墙的半透明玻璃衣柜,和一个可满足日常办公的独立书桌,共同组成了业主心中理想化的卧室套间。

# A4 R& R/ A8 u( k) F6 h% r" P
18.webp.jpg

# q. W; _' {" _) `0 e' U

5 O6 `5 B. e1 k5 t
此外,主卧卫生间原开门位置不是特别理想,设计师将其挪到北卧西墙,总而言之,每一个小细节的调整都透露着设计者的用心。
9 r7 X" [0 t1 I
4、儿童房
" K( U& l3 y: k& N
19.webp.jpg
. A1 r; ]4 r" I5 w4 @9 ]

  W2 t8 q" w3 d9 Y1 ~$ k0 Z* Z# ~- p* W. d, `' V: S2 I
20.webp.jpg
' k: w3 E# Z$ B% B3 j

7 V1 I9 b+ J  b5 m. s
% T1 W) @% a2 L
设计改造 / Design
- l$ K7 c9 W. \7 v
因为是男孩儿房,儿童房则采用了高饱和孔雀绿墙面与浅灰系床单、窗帘低调碰撞,营造出酷酷的空间感。

5 Y. g1 c5 @" l$ h
考虑到孩子的年龄,男儿房增加了独立的学习区,书桌+柜体完善功能,成就孩子独立的小世界。

9 T4 a  E) p0 `! J! |
21.webp.jpg

5 @: [0 L+ {1 Y$ c: e& y
; ]! m) ?# P/ N: Z9 V7 @) F: j) \- A8 g
22.png
6 K, ?; p- Y  |
5 i& X3 o; }0 K1 s, l( e. c3 S! N
一个有品质的家,是设计师的艺术创造和屋主需求碰撞出的果实,不仅是物质层面的不谋而合,也是精神层面的心有灵犀。我们希望,锦华软装家在帮大家设计家的同时,也能够帮助大家设计生活,让大家慢下脚步,好好地享受生活的乐趣。

9 l4 W3 f( v* L9 y  G" r
23.webp.jpg

4 j4 b* c" }+ z
本案设计师 | 秦薇薇
2 ~: l# h" D5 X4 C: F1 V* j" J
) w4 m" h3 w  X+ k: J# e. H; ?/ `" i
关/于/锦/华/软/装/家
锦华软装家,是锦华装饰旗下专注精装修房全案设计的品牌,旗下自营8大家具品牌15大系列家具产品,重在全案设计及改造、家具软装的模块产品落地、专属的施工售后服务,为精装房业主提供放心、省时、效果好的整体家装解决方案。

; Z: N3 Z( x* P5 ]4 e
Service More
2 R5 k: R) A& t0 ~/ e5 u* |6 U
更多研发,更多案例,多维度深入探讨
让精装修房业主更便捷地体验家装
( n, F; c0 T" g9 f$ Q" I' h
640.webp.jpg
* u2 h% d( G8 l
(▲锦华软装家相关服务:优势)
$ Y+ I1 @9 x+ U% n# b. q
640.webp (1).jpg
, r" k1 E) e) C# ~) \+ k8 G% @8 I$ K
(▲锦华软装家相关服务:设计研发)

$ E. D8 E2 O: e' f( T& n+ i
640.webp (2).jpg
/ r' V" P4 `- l1 l4 C% u) q/ J
(▲锦华软装家相关服务:设计理念)

# w! A! C& E4 I
- END -
, `" p! z( c2 G9 R/ k8 M4 {
▼ 24小时家装客服,欢迎来撩 ▼
金牌客服——思思.jpg
6 R" g& Y6 x% L; x( U
6 X6 Y! W4 o0 V2 z: J1 M( N; D1 s9 v% c
南通0
您需要登录后才可以回帖 登录 | 注册

本版积分规则

手机版|无图版|站务联系 | 商务合作 | 平台公约

信息产业部备案:苏ICP备05014191号-1 经营性ICP许可证:苏B2-20110445 苏公网安备 32060202000307号 © 2001-2019 0513.org All Right Reserved.

投诉争议 技术支持:第一互联 GMT+8, 2025-12-12 00:41 , Processed in 0.266059 second(s), 13 queries , MemCache On. 站点统计

快速回复 返回顶部 返回列表