濠滨论坛

点击扫描二维码

查看: 83135|回复: 0

[我秀我家] 【招商雍华府】114㎡精装房改造,惊喜玄关+大胆配色,这个北欧风的家太赞了!

[复制链接]

该用户从未签到

发表于 2020-9-2 14:50 | 显示全部楼层 |阅读模式 来自:江苏
5 N% P" |7 e  I
# n& @1 j+ e! e) V) b6 v
1.webp (1).jpg

" z& a: _) Q; @2 ^+ D4 K
( K" g% n' s1 t
项目地址  /  招商雍华府
设计风格  /  北欧风格
项目面积  /  114㎡
主笔设计  /  王闯

4 R' o5 ~' e" j2 c. J0 w
箭头滚滚.gif
. n6 ^3 C- ^7 o4 U: V4 w' V! T: c
本案的居住者是幸福的一家三口,女主是教师,性格温柔,男主从事外运行业,平时工作较忙,有一个11岁的女孩,喜欢绿色,是个学霸,爱运动、爱画画!

# C. G4 Z9 W% b/ W" Z! G8 E
对于家的想象,业主希望可以温馨一些、明亮一点,结合业主的年龄和实际情况,我们最终确定了这套温馨清爽的北欧风设计方案。
9 s( @) j4 R5 a+ ]1 S5 ?
2.webp.jpg

6 E8 [7 E: E- {6 ?
+ \- s) y0 p1 q6 B6 ?/ |
—— 设计解析 ——
3 x$ l7 X5 `8 p1 {0 l! V$ A. e
3.webp.jpg

: {) K( a+ h/ U; w; G  t* Z
▲雍华府114㎡原始户型图

6 |* m* s+ @% I+ f
▼本案户型优缺点:
9 X5 Z( \+ Q; o2 Z
· 拥有大双阳台,采光极佳;
· 两间卧室朝南,适合居住;
· 进户门为内开,影响室内空间;
· 冰箱位置太小,只能放置小单门。
1 s7 Z* C0 {. h8 r. n
4.webp.jpg
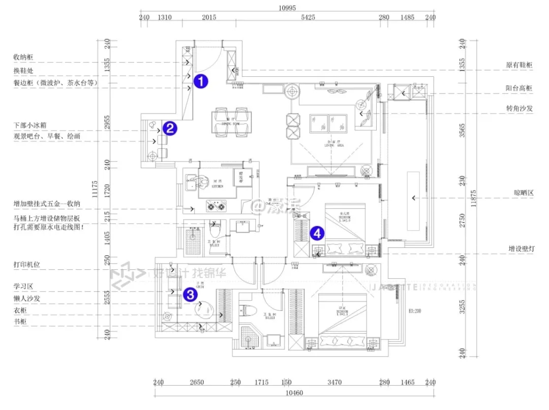
▲雍华府114㎡平面布置图
) P. z1 f1 S9 }) B; t
▼客户需求实现:
$ _4 u% T3 P! ~1 ?- K7 J% u
1、家里是内开门,门后有较多空间可以利用,借用门后空间,布置了更衣柜和餐边柜;
2、原北阳台拆改为吧台,一并纳入了餐厅;
3、北卧改为专属学习区书房,还另外增设了衣柜;
4、女儿房增加了壁灯,配合落地灯,使业主在不同的生活场景里能享受到不同的灯光氛围。
. c* }' k0 r  u, X( P4 m

/ I$ x/ T- S1 {) `7 ]
—— 玄关&餐厅 ——
5 t5 v  h; U( p1 g3 Y' y
5.png
5 }. m4 x! ~! {$ [
卸去工作的疲惫,回归生活,推门而入,玄关的惊喜绝不仅仅是仪式感那么简单,还有触动心弦的细节处理。

7 M0 X5 h6 W& h
6.webp.jpg

* a/ x( [! t5 q# h; `9 U6 V8 B
7.webp.jpg

) I, b" ]( b7 ?% h, b
4 ?8 ]" I/ G: M$ w) s' ?" Z1 l7 J3 _
设计改造 / Design
- k% ~8 a+ t( o. O1 w6 l
比如,为打破原始户型内开门的局限性,设计师在门后空间布置了一排更衣柜+餐边柜,解决了原户型玄关处没有放置外衣空间的问题,探索出更多收纳惊喜。

  c# J3 l5 o1 R" a) ~: G
同时,餐边柜的加入,也为业主提供了放置微波炉和其他小电器的位置,大大缓解了厨房空间不够用的处境。
. ?! l" K% |+ b, e
8.png
! w2 i9 X; Z8 M. A; O
设计改造 / Design
$ }! X0 Q4 x3 V; k- f1 v( L4 ?& B% y: e
空间继续向内延伸,原北阳台的位置视野光线非常好,于是我们将其直接纳入餐厅,让空间关系更加明朗。
; M* C8 H6 b7 n! L# V& U. D  ~
业主家的女儿喜欢画画,生活要与她的气质相匹配,于是设计师在北阳台区规划出一个专属绘画阅读的小天地,这样一个不起眼的角落变为家中的一抹靓景,无需过分装扮,就盎然得刚刚好~
% V$ U/ [1 b& }- R
当然,最吸睛的莫过于餐边柜的那一片宫墙锦红了,岁月悠长,千篇一律的装饰总有一天会厌倦,偏偏这咋咋乎乎、肆意跌宕的无畏反倒更讨喜一些~

$ I9 v2 W2 K6 S# ]5 j  I
9.png

1 m1 w1 C, c) _. K: ~- ]/ ~; h# d3 M( C# I, m2 C
—— 客厅 ——

" [/ ^+ k, D( l
10.png
( I- x3 Z* l( {8 O: e- A
舒适的家居环境,不仅需要设计的专业性,也更考验设计师的全局把控能力。

% Z4 b7 K2 Y; Q' s8 j9 ~( t
11.webp.jpg
" e2 q2 t* E* i; Y! O; F, T+ D
12.webp.jpg

! T" S$ c( q" h/ M6 d: T
7 `0 _; u. ^3 q$ g
设计改造 / Design
" N3 r* L+ E# A4 _
为了让客厅空间更充裕且拥有更好的采光,我们将客厅移门改为哑口套,并增设了阳台高柜解决生活杂物的放置问题;电视背景墙则以简单的组合柜形式,突出空间的立体感,实现生活与美学的平衡。

' Y$ P8 x# K+ \# F4 |6 k, y
此外,客餐厅因沙发背景墙木饰面而各司其职,这种不对称设计也打破了传统背景墙的对称格局,总而言之,简约的色调、不出众的材质,一切看起来平常的东西,设计师却用细腻的手法让它们变得精致而富有生命力。
! F- ]9 F# l1 }  u$ n1 T; M
13.png
' i( R' ?0 L1 Y! k* U3 R. ^3 m
—— 厨房 ——
14.webp.jpg
设计改造 / Design

5 i7 f! ~, J' ~6 h* E- @/ v' E
厨房区域没有做大的改动,只用简单的不锈钢置物架解决厨房部分常用物品的放置问题。

* X% d3 L3 C  ~0 T* m$ ~
不管经历了多少的难过、坎坷,唯有厨房里那个忙碌的背影,是慰藉、是温暖、是人间四月天....

* X, u7 j2 N, n
  S+ s) M( M* s" ]0 p6 D; N
—— 书房 ——

/ m0 U- o' o: m* t; F
15.webp.jpg

- \( E+ s# \7 X: g' `. j
16.webp.jpg
+ [- a; o& N9 q/ j: `
设计改造 / Design

9 `1 U' n$ U4 B* X5 h  @
书房空间不是很大,我们将其设计成书桌+书柜+衣柜的组合形式,沿墙体U型布局最大化利用空间!

: L; p. d1 m+ H. W9 k: z& b
开放式书柜,用几间亮黄色格子点亮空间,瞬间增加了书房安静、灵动的气质。

7 ^# j1 g; G( z) E; m, m
17.png
4 _- ~6 D: h7 O; c
$ H6 T  E4 \+ @3 C' K* m

* g' d7 `8 _) K: }0 z& ?$ N; E
—— 主卧 ——
2 h' {# ?. h6 [+ U8 r
18.webp.jpg
, q; ~% D, d6 [& ~* R& R- ]$ V) p
19.webp.jpg

5 u* @- _# l$ u, H
) H3 C- \: d) I- p7 C
设计改造 / Design
5 h8 O0 p2 p8 x6 d+ }4 R* |( w
主卧用静谧的深海蓝表达空间情绪,从色彩到细节,将心境转换,来到卧室,即是来到家里最放松的空间。
( n' u& M+ C" Z/ S1 o9 P

. ]- d2 b2 k/ I( m2 h& ]# G! W3 o
—— 女儿房 ——
) e+ L& F6 j! |
20.webp.jpg
# E/ M( X2 s" `8 |$ m/ [  ]
21.webp.jpg

# a! Q: M5 N/ G" Z. j8 k, O/ H5 u, Z. q
设计改造 / Design

* A5 J  S/ d% o
家里已经设计了书房,儿童房便可以解放更多空间去完善舒适体验,绿叶图案的墙纸,与其他空间既有共性却也独特,也更贴合女孩儿的审美;另外,设计师还给女儿房增加了壁灯,这样在不同生活场景里就能享受到不同的灯光氛围。
  g5 C+ Q* P" L3 y8 z
除此之外,设计师的用心之处还在于,在女儿房进门右手处留了一列开放柜,留给孩子慢慢去填补自己心仪的收藏品。
  X1 ]: t7 J+ P' @5 d
; f3 b7 C4 _: l; S: t3 v" l! T! x
————————————————————————————

5 `2 E% h6 D7 q  s
. k0 H) k( h5 s2 x. {
家居设计并不是为了展示而展示,适合生活的设计应该更加精简化、易操作,给居住者真正带来便利;锦华软装家深度剖析用户需求,用最直白也最有力的设计,完善空间多维度的规划,于设计、于空间,寻求真正舒适的、适合生活的设计。
3 s% f% m' T8 B- W" L

$ C" n- q# x1 c& j
22.webp.jpg

/ F% ~- u& M+ y6 ?
本案设计师 | 王闯
/ e- r8 c, `# B( h/ |
- END -

# y9 Q# R' G# ]4 `1 p1 G, t1 w
▼ 24小时家装客服,欢迎咨询 ▼

& m# Y9 ~$ ?% z+ j8 x5 ^
金牌客服——思思.jpg
! T; p. [! W3 \5 p

$ g' y, X+ m" M
; j; L- H- V$ ^! p, S: N1 h6 A南通0
您需要登录后才可以回帖 登录 | 注册

本版积分规则

手机版|无图版|站务联系 | 商务合作 | 平台公约

信息产业部备案:苏ICP备05014191号-1 经营性ICP许可证:苏B2-20110445 苏公网安备 32060202000307号 © 2001-2019 0513.org All Right Reserved.

投诉争议 技术支持:第一互联 GMT+8, 2025-12-13 18:17 , Processed in 1.344991 second(s), 13 queries , MemCache On. 站点统计

快速回复 返回顶部 返回列表