濠滨论坛

点击扫描二维码

查看: 67272|回复: 2

[装修交流] 海门中南熙悦业主看过来,你家方案我们准备好了!

[复制链接]

该用户从未签到

发表于 2020-8-21 16:26 | 显示全部楼层 |阅读模式 来自:江苏
8 \0 P9 ?+ i1 G3 B
7 |9 {# m; l" M' L" D. a8 _
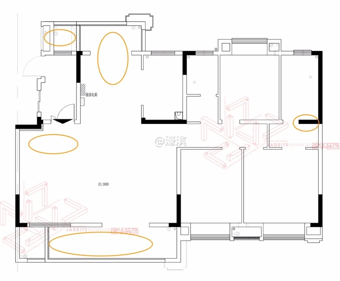
近期刚刚交付的「海门.中南熙悦」交通地理位置优越,四通八达。周边医疗,教育资源丰富,幼儿园,实验小学,国际小学,实验初中,均在附近。周边有海门市人民医院,各大药房,以及加油站、购物中心,可谓生活娱乐两不误。中南熙悦共3个户型,分别是125㎡、135㎡、155㎡,今天小编给大家带来的是155㎡的户型解析。

. G- m7 p' V) N: ]7 U
6 m7 T& o9 V! Y1 U" m& M
  ▎原始图 155㎡
/ B3 Z0 q% J) f$ g/ A( f1 Z6 c
2.webp.jpg

# B& E3 K8 r) P/ v; c7 B/ B/ n  h) W4 n! A9 _5 z# J) Z

4 k  p3 N/ s3 O▎ 户型分析: [6 g; i6 ^0 N
  • 进门缺鞋帽柜,如何解决?
  • 餐厅空间较小,如何解决?
  • 客餐厅较大,可以根据需求更合理规划
  • 设备平台可以充分利用。5 S9 u* ^$ f$ s. P" e2 `

    ) E7 q& p$ i" d; \; I, [3 k3 y: ]: i

6 I5 X0 ]* \5 Y
  ~, ^, C& ^9 Q) I& G3 g
  ▎平面方案   
1 j7 S& J, u' z
/ J+ \2 K, [6 q
3.webp.jpg

$ \, ]6 E2 ?! T
/ R4 ~; Z' a+ t$ L; `. h▎ 方案改造备注
5 I3 J" S9 p3 X% X6 f
利用客厅的部分空间,增加卧室,满足有4房需求的家庭,进门增加鞋帽柜。, S- ^2 j1 ?* b' U, u/ b, ~
利用北阳台,增加餐厅的空间。% d3 G+ F3 H1 m$ S" c: l
主卧设计成套房,有独立的书房、衣帽间。

* v8 n. N* ]9 Y2 Q& u( b9 u  Z% q/ R/ t' ]& j
- n1 t8 g" M! q* F8 y) c, V! r4 e, d
爱心闪烁.gif
8 T, d" V1 P/ o; K+ z
* d7 H; r7 ]- A; f0 G3 f

* E) p8 z) {2 T
  ▎设计细节参考   
; V9 C$ [9 ^6 b# w7 D
洗衣机放哪里最合适?
4 E7 i' o2 G: \& M) V& _- |
8 x! q: e5 ?( Z# E: E! g; m3 s# z" o

6 Q9 j2 d/ e4 M# k7 ~9 |1 x& c/ A1 C& k5 R; M$ h  p
4.webp.jpg

: x6 {  {1 ?/ I
& n+ v) e3 k0 f2 F" t' L% }1 h: D4 v% a$ m( ]" x8 W! [- [
厨房的操作台面可以根据身高定制
; A% @5 e% A5 r0 z! g" O
& M  \5 d, d3 C3 ?" F! E+ _2 d

$ s+ l* Q6 M7 h3 ?4 N' }. I4 O
5.webp.jpg
) @* O0 @, g) W$ D- t

5 _. \" J" R$ {8 @( F. T1 U( o/ P* n: x0 w3 U
厨房如何收纳?

! i. q6 T! N9 ]6 v0 j' J# t7 v$ i: e

( k- Y& ?  C( |, h- O! J2 b  E* {
. {6 b9 H6 _/ _% S
6.webp.jpg

% ~: Z; j2 p6 T" a/ r( D1 Y+ I4 w( [( P- n  D7 N0 P+ X# x" d
7.webp.jpg

' h9 _% s* d0 x0 n, O0 M7 _; h) O6 }$ G6 x

4 Q7 l9 ~5 L3 Z9 Y) d1 i9 L) g3 c& M& j1 a) u2 l9 _
  ▎设计风格参考   
8.webp.jpg

$ S9 M5 f3 ^/ P  H4 j, D, v
9.webp.jpg

4 I5 e+ P+ ~6 T2 |. Y1 U" k
10.webp.jpg

$ p4 ?. |& r4 N/ U: C3 I
: w- Z7 B0 a" I/ r
$ t) A) A+ A0 l2 e. c
11.webp.jpg

0 _' {) [3 H, `/ D4 L: {# Q1 m7 ?, D
3 b0 @  `" E3 y" Z' @/ H
12.webp.jpg
扫码看360全景效果图

# B* V0 x. z( }" g

. X4 s8 Z2 @) t: G, H4 `% e3 V
13.webp.jpg
本案设计师 I 支玲玲
▎设计理念

5 s& d4 f7 S3 W, f- r
设计源于生活
5 j4 p3 x* v9 n* S" h# t
而服务于生活5 _% |- s) T/ q+ F
5 W+ E" K& M+ k/ R& z

$ d! w5 {8 Q5 k+ [* ]
荣誉:
毕业于南京艺术大学室内设计专业,
从事室内设计工作14年。

/ x  r" B+ i# X  w. P3 y& n* d0 Z* I- a
●2007年锦华建设集团优秀设计师
●2009年全国室内设计大赛优秀奖
●2010年全国室内设计大赛三等奖
●2013年获第四届中国国际空间环境艺术大赛优秀奖  
●2016年 锦华蝶变设计师
●2016年锦华店面产值冠军设计师
●2018年锦华店面产值冠军设计师
●2019年锦华店面产值冠军设计师

+ e$ T! n4 r/ X2 A  X4 c  l

( ?6 O& ~* H. O7 l
; ^; H# a' U# i( y$ Q
看更多155㎡设计方案欢迎找专属客服咨询哦
13921605387
% k$ S1 W* `# s+ k  J
金牌客服——思思.jpg

+ ~9 C4 ~( t3 X! }/ I& d$ l3 c  Q3 r( V/ G
南通0
爱心闪烁.gif

该用户从未签到

 楼主| 发表于 2020-8-24 17:53 | 显示全部楼层 来自:江苏
2 Q" z4 F/ U; D6 @: Q( `; \& U8 w+ Z6 Y2 {( O
  ▎原始图 135
. w- P; G% @* h4 l! C7 X
1.webp (1).jpg
+ v" u4 {* W5 Z. H% F) U  w0 e
▎ 户型分析
  • 设备平台可以合理使用
  • 北阳台可纳入餐厅
  • 进门没有鞋柜,阳角比较突兀
  • 受承重柱影响衣柜利用率低
    * ~( q/ J, a( v3 z# @4 U8 P
    : X5 Y: a8 V9 ~1 e- ?( N; c
    . [( h7 U- n0 V; v1 N& p
3 `( A  R2 C! V3 _
6 a) W2 @2 J; p  o5 c1 S$ C; f& C* O
/ V* L  n- Z1 r7 E- X: J
  ▎平面方案   

" X$ M/ B* F1 h
2.webp.jpg
, C# O+ m# ^5 |) q/ k
▎ 方案改造备注
  • 进门增加门厅玄关设计,利用拐角空间做鞋帽柜;
  • 客厅一分为二,会客厅+开放式茶室兼书房;
  • 客厅的阳台区域设计地台,作为景观休闲区域;
  • 利用北边的设备平台做储物间;
  • 北阳台纳入餐厅区域,分中西餐厨,吧台区域可做简餐,也可用来早餐+下午茶;
  • 北次卧设计成多功能房,榻榻米既可以用来储物,也可作为临时客房,也可作为小孩以后的独立学习区域;
  • 原主卧的衣帽间90公分承重墙,利用率低,利用部分卫生间空间,设计可推拉的衣帽柜,提高利用率。主卫的台盆位置借用多功能房的空间,增加了卫生间的舒适度。升级了整个主卧的舒适度。

    ; T/ |* E' Z$ B/ X3 Q5 {1 ?! f

    : [; H# I& I5 z) v. U
7 U* C6 E6 d, Y# G4 [
) m& p) m7 a9 D& Q. z; Z

7 p: T) u# ^/ z$ l: A0 r' `9 {. Y
  ▎设计效果参考   
; h0 t! a7 J9 I' U/ L5 H- ]- `
3.webp.jpg

3 _% M. N1 P' L' M
4.webp.jpg

" [) T  B) g0 k% m
【门厅+过道】效果参考

  O' |$ P5 m9 i- J$ [* N( }$ u

& T, `3 y6 Z1 i+ C, t8 T
5.webp.jpg

  I( g; ]$ b' G! @5 k4 W4 g
6.webp.jpg
【客厅会客区】效果参考
4 P: i" _/ \0 x2 K4 r

, ^- U$ `" c% b" p/ Y) q3 L$ X! P
7.webp.jpg
1 N5 M# F! A+ b& c
8.webp.jpg
【客厅书房兼茶室】效果参考
! q, }# b# Q/ T7 h

  @+ v3 S. Z; ]7 x! R! O
9.webp.jpg
+ [9 C0 Y/ U; ^5 L1 z4 w
10.webp.jpg

9 V' j! L: M8 i; R
11.webp.jpg

5 Y3 i9 H  R; c4 o
12.webp.jpg
扫码看360全景效果图
" D) B1 ~! ^# O( P& v* Z1 r$ V. C
爱心闪烁.gif

% ~* s) v6 T" j4 l' q% x
13.webp.jpg

3 h. j* z8 i" A$ |4 a4 B9 @( |' ^: W) n) U- K
本案设计师 I 刘伟
+ c8 R3 Z9 o2 J2 z
▎设计理念
) k. A5 o3 g8 M
因生活而设计
因设计而美好
1 G( L. O% g6 i5 g1 o
' v7 d6 u3 h" j

# _; J! ~( S3 H4 l9 a: d) T/ O
看更多135㎡设计方案欢迎找下方官方客服咨询哦

! j  \/ ^, B2 n0 L; v% U7 q3 W

/ n+ O; O+ M9 }- E
金牌客服——思思.jpg / h: o) X# H2 l# J3 G/ I/ w

7 I  O  [# a7 p
回复 支持 反对

使用道具 举报

该用户从未签到

 楼主| 发表于 2020-8-26 17:08 | 显示全部楼层 来自:江苏
2 v; @: M8 W  ]9 u* o* \
% M2 B7 j4 Y4 J6 J
125㎡原始图
1.webp (1).jpg
户型分析

9 b/ u9 \5 I' j6 ~) T* \
9 Y( A1 F' p( P( T
  平 面 方 案  

' H5 w2 Q! @2 k( \
2.webp.jpg
9 w  g+ t: I$ |7 ~
方案改造备注$ ]5 \5 m9 z3 n: W
  • 门厅增加鞋帽柜,将原本的闲置空间合理利用
  • 利用客厅部分空间,增加一个房间
  • 利用北阳台增加电器高柜,补充厨房空间的不足;
  • 餐厅两边增加酒柜,增加装饰和储纳
  • 将两个小卫生间合并成一个大卫生间,设计双台盆
  • 主卧利用卫生间空间,增加衣柜;
  • 次卧利用卫生间空间,增加衣柜。
    $ p6 w0 V8 b9 Z& \

    / ?# `2 c( \1 P2 T
    7 S9 {6 l; d: F( U. x) v& E
% e8 B5 e, [# B% U! j
  ▎设计效果参考   

( [- a4 P* J' T4 `! Y
3.webp.jpg

/ m7 R; p' _6 i) U% q3 u% \& b; _0 [
4.webp.jpg
2 ]4 D3 u$ F$ ]) K" _/ o) i7 f
5.webp.jpg
5 D9 ^5 M; `% s- q7 [) ?7 r& A
6.webp.jpg

0 k# |2 Q' T- Y! b6 z
7.webp.jpg
) Q5 C# u/ {+ Q# _
8.webp.jpg
扫码看360全景效果图

2 X. S' m9 u7 t- z
- P2 S# y: k1 V  b9 m- x
10.webp.jpg

本案设计师 I 高飞

  u" Y( z+ z) o( R
设计理念:
通过设计,让家来体贴你生活中的点点滴滴
: _  S. z6 F# s% Q3 f& h
♪ ♪ ♪
. M% I2 A9 V6 U- n( W* k, t7 J) l
【个人荣誉】全国优秀设计师
0 H) ?' h6 }. O2 ?国家认证注册室内设计师( w# M% T' @8 S+ J. B
2016北京马可波罗杯十佳青年设计师' s& _/ _9 I( g1 C% v9 t
2016北京居然之家最佳功能布局奖# K& E" v( J1 N: }7 Y$ H
2018北京居然之家优秀作品入围奖
& L& ^; }* {# r6 R
+ [1 v& m' B7 I
看更多设计方案
欢迎找下方的官方客服咨询哦
金牌客服——思思.jpg

( ^0 R; ]  L0 z
回复 支持 反对

使用道具 举报

您需要登录后才可以回帖 登录 | 注册

本版积分规则

手机版|无图版|站务联系 | 商务合作 | 平台公约

信息产业部备案:苏ICP备05014191号-1 经营性ICP许可证:苏B2-20110445 苏公网安备 32060202000307号 © 2001-2019 0513.org All Right Reserved.

投诉争议 技术支持:第一互联 GMT+8, 2025-12-13 18:17 , Processed in 1.796462 second(s), 13 queries , MemCache On. 站点统计

快速回复 返回顶部 返回列表