濠滨论坛

点击扫描二维码

查看: 35299|回复: 2

[装修交流] 150㎡,取消客厅两件套,全屋大气场面太迷人

[复制链接]
  • TA的每日心情
    开心
    2014-6-7 16:31
  • 签到天数: 22 天

    [LV.4]偶尔看看III

    发表于 2020-5-27 09:42 | 显示全部楼层 |阅读模式 来自:江苏
    真正的高级,是最简单纯粹的东西,很多品牌都会用简约的设计来诠释高级感。居家装修自然也不例外,简约装修若想装出高级感,对于工艺设计要求极高,不像堆砌的装修可以利用装饰物掩盖一些不足。这次分享的案例就是如此,150㎡的使用面积,恬静、纯粹、却又不失活力,全屋大气场面太迷人!(图:HAO DESIGN)
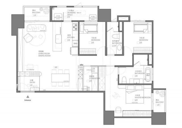
    装修布置图,150㎡的使用面积,动静结合的设计方式,将空间完美分隔,客厅、餐厅、厨房打造成开放式空间,便于居家互动交流。
    玄关与客厅,利用弧形转化生硬的墙体及横梁,不会棱角分明视觉效果更圆滑舒适。拱形镜面设计,不仅提高玄关实用性,还增添些许趣味感。
    大面积的储物柜设计,为玄关收纳提供保障。玄关地砖,与室内地板加以区分形成落尘区,日常清洁更加方便。储物柜底部整体做抬高,增加轻盈感的同时可以摆放鞋子,保证玄关区的整洁。
    餐厅简洁实用,原木元素与柔和色彩相互呼应,营造出恬静、舒适的用餐氛围,不规则的吊灯设计,打破常规给空间增添一丝活泼感。虚实结合的储物柜,增加收纳,视觉效果也不呆板。简易轻巧的桌椅,实用占用面积少,空间也更通透。
    客厅、餐厅、厨房,打造成开放式空间,功能区独立空间互通,一家大小共处无隔阂,居家互动交流更方便。身处在厨房,也可以随时关注到孩子的动态。
    客厅取消茶几、电视两件套,仅保留了沙发功能。与常见的客厅略有不同,打造了一整面的开放式书架,收纳、展示都很不错,没有电子产品的影响,让孩子充分享受居家互动生活。
    中岛台设计考虑很周到,靠客厅一侧设计为橱柜型式,高度符合小朋友的升高,摆放童书、小盆栽、及孩子工艺作品。
    居家储物间,空间虽然不算大,但也能解决一些食品、杂物、小家电、玩具等收纳。
    卧室遵循简约设计,纯粹的美感营造。渐变色的背景墙设计,让卧室变得更活泼有趣。床头隔板取代床头柜,实用占用面积少,空间通透感更好。落地窗以卷帘装饰,灵活性高可以自由调节卧室氛围。
    大面积衣柜设计,提高了卧室收纳能力,让卧室空间更加整洁舒适。嵌入式梳妆台设计,美观实用空间整齐统一。柔和的色彩搭配,带给主卧一席宁静的触感。
    儿童房,考虑到孩子年幼布置的较为简单,不仅给孩子腾出了更多活动空间,日后整改也方便。衣柜在门把手和用色上,给空间增添些许童趣感。单独做了几个小抽屉,提高实用性。

    ! ]* }5 z6 z- ?  a南通0
    头像被屏蔽

    该用户从未签到

    发表于 2020-5-28 09:44 | 显示全部楼层 来自:江苏
    提示: 作者被禁止或删除 内容自动屏蔽
    回复 支持 反对

    使用道具 举报

    该用户从未签到

    发表于 2020-5-28 17:20 | 显示全部楼层 来自:江苏
          一个打破常规,温馨有爱的亲子家居
    回复 支持 反对

    使用道具 举报

    您需要登录后才可以回帖 登录 | 注册

    本版积分规则

    手机版|无图版|站务联系 | 商务合作 | 平台公约

    信息产业部备案:苏ICP备05014191号-1 经营性ICP许可证:苏B2-20110445 苏公网安备 32060202000307号 © 2001-2019 0513.org All Right Reserved.

    投诉争议 技术支持:第一互联 GMT+8, 2025-12-13 18:20 , Processed in 0.349114 second(s), 14 queries , MemCache On. 站点统计

    快速回复 返回顶部 返回列表