- 阅读权限
- 50
- 精华
- 最后登录
- 1970-1-1
- 在线时间
- 小时
- 主题
- 好友
- 相册
- 分享
- 日志
- 记录
- UID
- 817461
- 帖子
- 0
TA的每日心情 | 奋斗 2019-11-28 09:04 |
|---|
签到天数: 34 天 [LV.5]常住居民I
|
本帖最后由 南通华浔品味 于 2020-5-26 11:01 编辑 + `. S$ \# l' ^+ w* h( A6 @+ ]
, ~! ^: T7 O. E& P【浔▪开工】恭祝江山鼎王先生——开工大吉
' q; E; E, |! h; y9 T
【浔▪开工】恭祝江山鼎王先生开工大吉 ——设计总监张工 —设计总监工
. ]2 q( P" P/ f$ ?
6 f4 @; {8 U1 C3 q7 `& b
8 J7 T0 h& H& L& J* c* B, p9 t9 }# J, {! ^% M7 Z2 A9 l
2 o. X/ H' @' {$ ~5 t8 K5 T3 Z) {6 U: c$ h
. e3 t" B; u# b* l( J2 y
如果说设计和工艺是一个装饰公司的灵魂 那么工地便是它的脸和面 开工仪式 是为我们开启“装修之旅”的龙头之站。 “家”的一砖一瓦,一点一滴, 从此刻幸福开启,怀揣敬意,坚持匠心 从开工典礼起,见证幸福!
$ E% a8 T) y, E3 U" Z+ ]
1 J! z. [9 s" h6 \( R) z ! }* [2 I, _* \# s* }
工程质量最大的保障就是不转包! 开工时间:5月24号9点28分 开工地点:江山鼎 参加人员业主:王先生一家;计师总监:张工;监理:胡小东 ( `- f+ n2 O/ H: m' ^) u, h" H
; j- K5 [# Q5 L; G( n* W+ E7 i1 F! q$ W* Y! i# \) g
, E7 a& b. H9 q: W! ?
% m) K; t, s8 _) J4 Y" W9 D: |! V! t; ~, |
* @1 L3 G) G: o* J# [% w
l( i B; { X4 V
$ n* D: V; u$ {
2 ^2 l& G4 @2 y4 b3 s `9 M5 M
- f( g( V: B8 [( y" i9 q! l, R6 _" K# ~# K
感谢业主及家人选择了我们华浔品味装饰, / A' O& ^, \9 f
我们将一如既往的把最精湛的施工,
1 y# L/ X+ Z k: v% r2 d: g/ z工艺和最环保的施工材料提供给您, - O5 d, L6 ?: Q" G7 S% r, J
让您和您的家人安心,省心,放心! $ i% P& e$ Z& a; S9 B$ V6 Y
! _: ]3 P- C2 ?) T
设计师简介—— 华浔品味装饰设计总监——张工
# K" Z/ K& V+ D& ?
: ^4 {* X2 U6 n. S, | A1 X3 i
9 Z: \) Q/ @9 W6 D! ~
% W( g- ^9 h K( y1 @* a
% i; V7 u' H- r. f: q/ W" m
O' j5 C* C2 ^5 m + L, ?0 U3 b( R3 ?; O( t
设计感悟:家居设计是一种艺术表现形式: 是一种文化:即便再简单的空间设计必须把这种意识贯穿始终...... % X$ S' V; f y3 j
3 X" |: I0 z! r! B
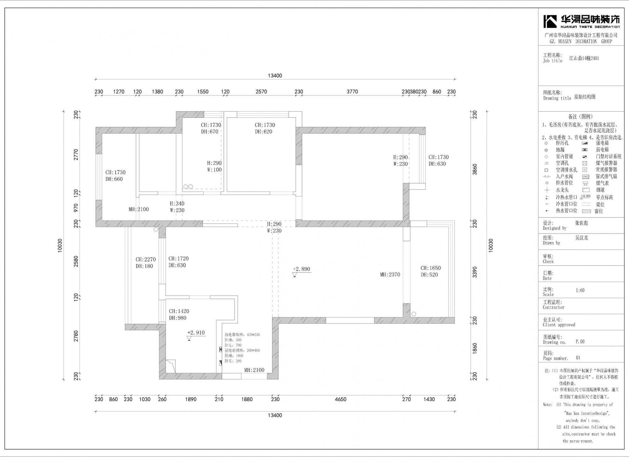
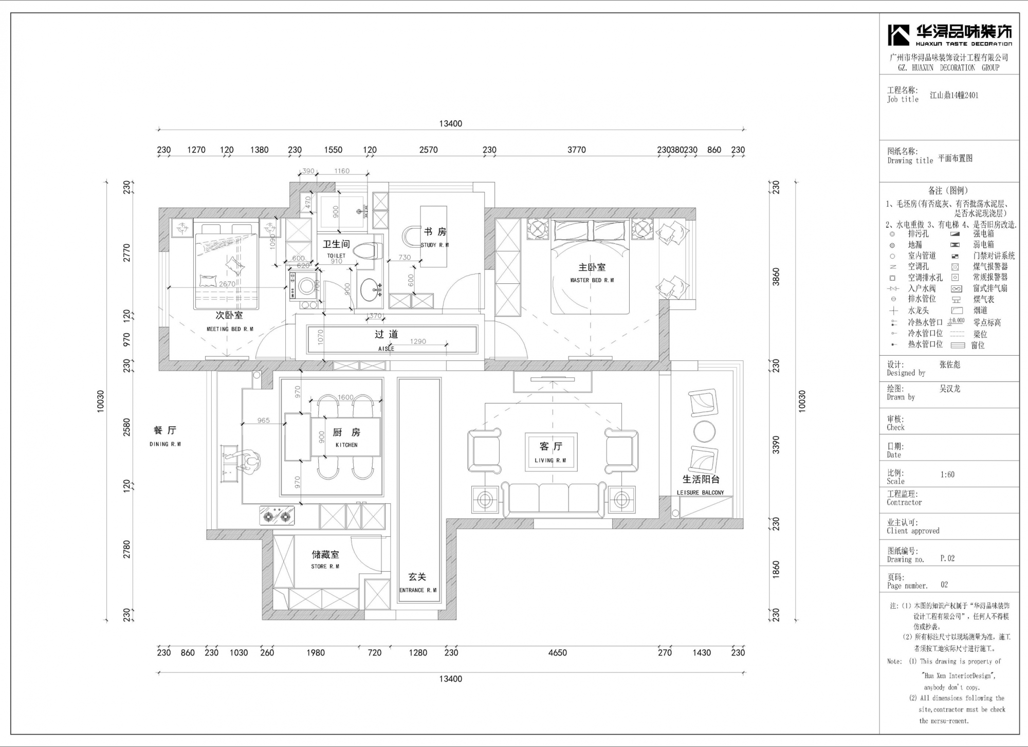
- d; Q& \' j) Q9 [ _* v▼平面设计方案(点开图片可放大) 0 h! F6 E9 U- z/ V) t
2 n& k0 M- S) B k) M
, E" d. B9 `0 m, N; y8 F7 |- ?, s- A# v$ v' x0 |6 X8 i
6 B0 C k% x0 b+ D$ p
$ W8 m8 M) c/ x5 Z+ P% u! r
0 l9 x# G9 D6 t( z. r; T* T9 z7 v# e* T/ O) V7 H* r6 S _$ y: N
- o6 j" ~7 Y' n( I( t+ o# L
( |: N$ j5 I$ O3 r5 @4 T
b9 x' R4 U7 l; r" X: Q+ X) J, w▼效果图合集(点开图片可放大)
: i( F# G/ u- z
. |0 }, z9 v3 R B
+ Y' u m, `. s& R' J. g
' x+ q3 } M8 m3 B
" g0 @$ h/ `% w+ [' n" }
9 P5 g! M7 Y% v4 T0 X客厅360度旋转,识别二维码观看旋转效果图% u9 n$ y" L) w5 e$ {
+ O4 W& \) W+ O4 U' A# t7 Z
3 F$ l% s* U; l
& m. P s7 p% f% |
互动方式:
2 B4 [; J$ i) }. u
/ H: B3 t, D% z8 M' y5 F% [小编24小时在线等你,等你,等等你,定制一个专属于你家的方案!!!!!!!!!!!! 小编互动方式:13348079259 地址:濠西路濠西园商办楼二层15幢2楼华浔品味装饰乘车路线:(15路、16路、17路、41路、51路、53路、603路、605路至濠西书苑下车。) 公司官网:http://www.hxdec.com/ 4 t8 }/ v7 H" q6 e* j% c
金牌私人定制您家的专属设计方案,请联系:15962955270 
2 m( u q1 i3 b+ ` 5 Q& q7 {* \& y" x' X* Y5 U" P
9 S; U0 C( C" _6 b% V! T如果今天的分享对您有帮助,您可以在下方给小编和设计师点个「赞」
r& M. V) _$ ^9 T; `* f! v# _0 o 质量的保证、用心的设计、贴心的服务等都是业主选择华浔品味装饰的理由,
& {; W8 S6 C, I! S) l9 ?; n
2 O s# G0 C# N. i }感谢所有业主的信任和选择,“做一个工程,树一个样板”,华浔品味装饰一定严格每道 工序,标准施工 欢迎各位业主参观在建工地
. E" m8 d# {' w1 P 22年粤派精工的传承与发扬;6大工种标准施工工艺,365道工序,1998个工艺节点,
1 X. u3 T. e5 F+ T+ l# E- u4 B2 k8 ~ 工艺研发从健康、生态为出发点,工艺品质统一标准并高于行业标准体系, 2 z# L4 B6 L+ S F( `: z" a2 W
* e& i9 O1 U( O4 p9 ^( C
9 K* v% W7 U9 I* y2 W# e/ X
+ g' y w; e6 _/ s% l' a, H5 F
( h, [% G4 }% J5 _3 a7 E
重锤之下,我们承诺:一切不合格工程砸掉重做!由华浔全额买单! 500+名专业客服精英,24小时内售后服务回复,24小时内上门服务承诺! 服务承诺:及时、 准确、守时、诚信! 
+ j7 J- V4 J& M6 {5 i7 C 3 N: H0 v3 h6 f0 h( a) f$ W) |' z
5 o" e' |, S9 U3 n4 g! Z22年品质沉淀,见证品牌实力!华浔品味装饰自1998年成立以来,一直以“做一个工程树一个样板”的品质执行标准,层层把关、严格管理,把每一个工地都按照样板间要求去做,让客户满意,无可挑剔!
5 R1 W. A- O& Y, M' k3 m7 X2 y/ Q! P # ^) Q4 @- a$ D, K. @
; l, a6 w4 T- ~6 K! x2 c3 x$ f+ } | 9 A0 Z4 i; R& a' K
8 e( D- W6 \+ y/ @3 W' O
L( d6 l8 u8 o& z6 x " U" f( j/ g6 F9 f: _0 u& R! d
# d7 M( M. S" S) R* m0 b5 j: b3 {1 p2 h2 Q7 \/ m; s3 m; A& ]
[url=] [/url]
' d, U7 K. W8 b |
( m! c# G6 P; _ v' U! ~/ A) `* B3 E& d& i* @
| . I+ l" m! o3 [2 [6 T& X c1 x
[url=] [/url]
7 p- Q6 ~# I! t2 k- U E- i/ q: }5 }1 v: M
! w5 a# q7 o o9 h, \: K2 J) Y% b1 Z3 d% g7 d0 }
2 @# O* e' b' t
6 D" F; i7 w* v南通0 |
|