濠滨论坛

点击扫描二维码

查看: 14220|回复: 0

[我秀我家] 锦华装饰实景案例丨万科白鹭郡207㎡现代轻奢大宅,三口之家把生活过成了艺术!

[复制链接]

该用户从未签到

发表于 2020-5-17 10:12 | 显示全部楼层 |阅读模式 来自:江苏
) c8 P1 V! ]  t: f! E) W/ y2 n; D5 ~- z! C& u) l
点击查看更多实景作品
: N4 V5 i- [/ T* B. z$ n# h0 i5 s. ^
1 T, A" m0 d# G* Q( {

; r; P- @  y. n2 F9 S
1.webp.jpg
% ^7 q2 p# @1 u% `
对于活在繁忙都市中的我们而言,家所营造的闲适写意、悠然自得的生活境界,如一股清流,会缓缓地在我们心间流淌,让人想闭上眼睛,去享受那份难得的宁静。

: q4 J* _& D% U+ D* Z' ^
在本案作品案例中,设计师对原始空间进行了大刀阔斧的改造,将原本建筑中大量的影响采光的构建予以适当拆除,引入自然光线,增加室内采光度,并对原本狭窄的空间进行了创造性扩充,使各个空间的格局更加合理有序。
这个家同时也结合了质感天然、机理丰富的木饰元素,在自然原木和轻奢美学的融合中,抒写归家情怀。

" Y  e  S6 Q2 v1 B4 W
$ _7 W, k! p3 s. i
  [1 |' _- ]0 I5 B
【项目信息】
; Z7 @# A6 G, D( E! r+ _* A设计风格 / 现代轻奢" z* i' r% c/ D  o
室内面积 / 207㎡
8 y$ p7 X# K6 b# g# r) Y小区地址 / 万科白鹭郡1 q; f1 d8 R, v% s1 t' V7 G
主笔设计 / 许勇8 r- ~; ^2 H* m" ~& r6 F# Q

! [* p. z- Y: w% i  A7 H# b3 L6 f, b) l) @! u! y
▉   客厅   ▉

8 L5 v/ H, o  O
2.webp.jpg
本案定义为现代轻奢风,整体用优雅低调的高级灰来把持全局,不同空间中加入了木饰面点缀,在丰富空间层次感的同时,也赋予了每个空间不同的灵魂。

7 n6 S+ L* x, ~+ Z" N
3.webp.jpg
冷酷奢华的大理石墙面融入了壁炉的图案,恰到好处地点缀了空间的视觉中心,把家一下子从冰冷的印象中“解救”了出来。
) L3 F; R1 d% c$ c% k% ]$ Q" z
4.webp.jpg
客餐区的每一个细节都关照得很到位:材质舒适安全,色彩令人放松愉悦,布局符合生活习惯。业主一家生活在此,皆是美好而积极的感官体验。

6 e- r% R6 h. B4 T/ X9 Y* v

▉   卧室   ▉


. R3 D5 a$ m0 m

5.webp.jpg

全明落地窗引入的自然柔和光线,给予屋主舒适宁静的享受体验。写意挂画斑驳闪耀,轻奢家具精简清雅,一切都是那么的平和而美好。


6 @0 ]7 P9 L# |1 u+ ?5 K, \8 z

▉   茶室   ▉


* {2 t* C4 Q. J6 M7 \

6.webp.jpg

2 E. B2 I" L5 V8 {

7.webp.jpg

千里江山如画,知己三两品茗。茶室区方正空间中对称布局,以线条突出主题,在充满意境的环境中,现代轻奢元素展现出诗情画意的茶室特点,与传统中式爱好者所青睐的茶环境不谋而合。

. c  Z" ^$ m2 A) r( `- Y. m


- S% R% e" G0 f) r# t! W+ ^. _

▉   休闲   ▉


0 E. w# G4 C1 W2 v

8.webp.jpg

休闲区是孩子安静而独立的成长空间,收纳柜整齐有序,钢琴藏中央,轻巧的云朵状吊灯为这个简洁的空间蒙上了一层温柔的气质。当窗外的景色随微风流入,置身于这处简洁纯净又浪漫的空间里,整个人的灵魂都静了下来。

& p7 X! a+ x1 P& U

) O9 P5 ]( j+ ]1 G

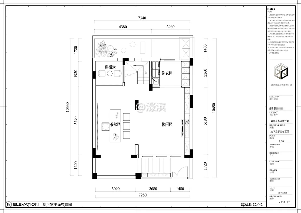
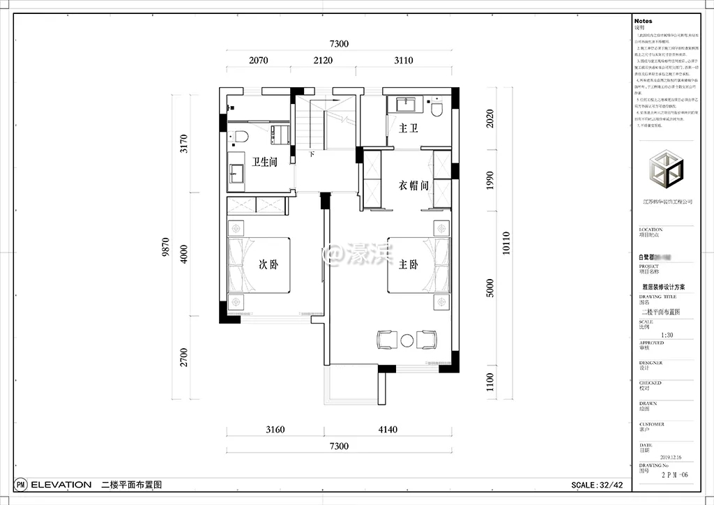
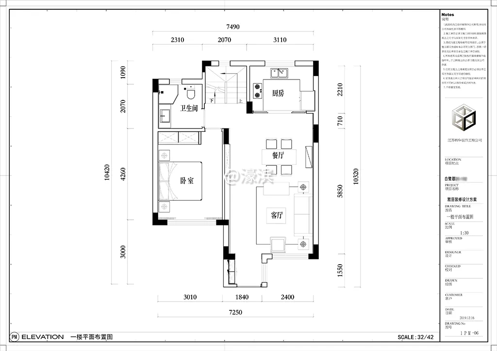
▉   平面图   ▉

9.webp.jpg

▲地下室平面布置图

10.webp.jpg

▲一楼平面布置图

11.webp.jpg

▲二楼平面布置图

/ R- V. |; ]( _3 r' I2 S( r


9 Z1 I: i" x$ R/ u6 {

▉   设计师   ▉

微信图片_20200517103257.jpg

点击查看本案设计师更多实景作品


; I. _1 C, f- ]" w
●设计理念●
通过沟通和创新致力于诠释更好的生活方式!
! ^3 I  F1 L& K4 _) c" u  N

3 e4 u2 d* B& o! d; `& e& y
●擅长风格●
现代、轻奢、新中式

2 O& ]; [- r. Q: k- G

7 J$ i# s, M' ]/ n9 A. r8 H2 [
end小太阳.gif
, S# A% I1 k  t( E* b# p
1 m' H9 T  H8 U$ D$ q
查看小区案例&预约设计师
金牌客服——思思.jpg

& S  y$ x3 n0 e7 g3 Q
【编者语】:本案在整个设计过程中,遵循了“软装前置+家具前置”的4.0原则,大大提高了最终的效果实现率。本案效果实现率:96%(基本达到了效果图的效果);本案功能实现率:100%。
13.webp (1).jpg

; p. G( \8 O' k: n) Z/ n# o" n
9 W! s8 t0 ?7 g6 s
# D+ w& ^$ Z. J
南通0
您需要登录后才可以回帖 登录 | 注册

本版积分规则

手机版|无图版|站务联系 | 商务合作 | 平台公约

信息产业部备案:苏ICP备05014191号-1 经营性ICP许可证:苏B2-20110445 苏公网安备 32060202000307号 © 2001-2019 0513.org All Right Reserved.

投诉争议 技术支持:第一互联 GMT+8, 2025-12-13 18:24 , Processed in 0.171297 second(s), 12 queries , MemCache On. 站点统计

快速回复 返回顶部 返回列表