濠滨论坛

点击扫描二维码

查看: 8615|回复: 4

[经验分享] 南通崇州府验房服务上线啦~ 您家的精装户型研发方案已备好,快进来领取~

[复制链接]

该用户从未签到

发表于 2020-5-11 09:59 | 显示全部楼层 |阅读模式 来自:江苏
8 i6 z/ U* S# t- x: |

0 O: G& \( R& C
南通崇州府精装验房服务上线啦~
小编特此开贴,为大家更新崇州府精装楼盘更多日常动态
希望你们都能获得美好的拿房体验哦~
8 g7 Z* e& _7 q& q$ c
未标题-1.jpg
9 g8 B' G( y) g( `8 r

" F4 _: q" U- D( m) u% i3 l
当然,锦华装饰带来的远不止验房服务哦!
1 r1 i; I) \8 z3 e还有你们一直期盼的设计研发大赛!+ a' T" r3 |; {2 J( @" J5 |
主要是针对南通精装修楼盘的装修解决方案
" w5 a' H9 M. ?* s% ^4 ^例如户型改造、封阳台、背景墙、家具软装整体搭配等等
关于新家你有什么想讨论的,欢迎进来留言哦~
$ g& R$ i( m6 w" d  @& b
. w- y; D" y, r+ V5 ^  K7 Z1 @  ~0 T3 ?
联系锦华装饰小编:小思
0 \2 A4 \$ N( L( a( U! L4 h6 e 畅聊你对家的向往$ \4 P) M5 ?9 n' c1 P/ O
金牌客服——思思.jpg
+ @! v1 S1 j6 g# o" o+ o- o2 I1 I% V
3 G* {" I* ?9 a2 \5 t' O0 `( S' O

; S, q) e/ Z# N* o; }& w0 A( L
- |. G" T3 |; q4 g南通0

该用户从未签到

 楼主| 发表于 2020-5-11 09:59 | 显示全部楼层 来自:江苏
: e! C; o4 y. g, g' Z! A; W& f8 T! Y
为方便大家翻阅查询! E& A. C- @; s* W# v8 Q; s
本层将设为直达电梯
( F& B/ c: f$ C- q% o
% ]7 w2 n: B4 {8 G: k! y
1、【崇川府】精装楼盘信息
$ P2 b- j8 w) `) K) Z' j% U" y
2、崇州府精装修房140㎡户型研发方案(一)
( ~4 P$ X" M9 d0 V

7 u; S5 G+ z& A9 f* E' Z
# D- Y  w" A6 O
$ R2 j- u! b8 T3 ~. ^
回复 支持 反对

使用道具 举报

该用户从未签到

 楼主| 发表于 2020-5-11 10:07 | 显示全部楼层 来自:江苏
; K3 P2 }4 g" r0 u
$ E1 I- {2 s5 d8 E0 P9 D
南通崇州府楼盘信息
, G+ J# a* P; `2 L0 h
南通崇州府位于开发区常青路西、科兴路南,属于南通市五山地域。秉承中式文化,崇川府将中式建筑元素和现代建筑手法巧妙柔和,以新中式醇美风情献礼人生。楼盘直面 1.8 万亩的五山森林公园,负氧离子含量比城区高 20 倍,空气质量排名在南通稳居前列。
2 h' h, X; Y- e3 g  q
1538013309771.jpg 1540225292174.jpg 1534253691402.jpg

# B  z. h( z5 N2 b* ^
周边设施

  P) h* ^' L+ j4 E: \
交通:“二纵二横”主干道系统:常青路、通富南路、星湖大道、源兴路等环伺;“一纵一横”快速路系统:通启路高架与通沪大道;主干道星湖大道。

% M; M9 m/ j: }6 p$ e( p" R
商场:融汇永旺梦乐城、星湖101、世茂广场、中南CBD、星光耀广场五大商圈

6 l" |/ I; M) \6 Y9 \( q- W
医院:瑞慈医院,南通和美家妇产医院。
; O6 I. b+ p& v/ l
小区内部配套地下停车场
& I1 h+ y6 `) V7 W4 s0 H3 v& Y0 |
想了解更多南通精装修房楼盘详情3 v  B0 G2 r) K! z2 }, [
查看更多户型研发&预约设计师

+ t6 [( B; O, q
金牌客服——思思.jpg

6 j7 \- K) ^" D% v# `. |
回复 支持 反对

使用道具 举报

该用户从未签到

 楼主| 发表于 2020-6-14 11:39 | 显示全部楼层 来自:江苏
6 r3 o+ `8 t/ ~2 o1 Z9 [; {3 N; |6 y: H' o  R4 z" Z, s+ G2 G- v4 _2 _
南通崇州府精装修房
140㎡研发案例(一)

; v! s+ ]7 E% @  l. v1 N2 T
话不多说,我们直奔主题吧!今天给各位网友带来的是南通崇州府精装修房140平米现代简约的户型设计研发方案~
话不多说,先上图,我们可以看出南通崇州府精装修房140㎡的户型为4室2厅2卫的户型,户型比较规整,各个功能间分配也比较合理,满足了大部分精装修业主的生活方式和需求。
微信图片_20200614100727.png
▲图为南通崇州府140㎡原始平面布置图
$ c* F& z. R& K8 U2 ^0 ~6 h% }* K6 u
南通崇州府精装修房140㎡
户型解析
1.整体户型比较规整
2.客厅开阔,南北通透,采光通风较好/ o: {+ }; j# e3 g( g; a; X
3.南阳台比较开阔,考虑生活+休闲阳台

. ]( k' l: `; A0 L4.北侧房间,采光较好,可考虑多功能房间,满足收纳等其他需求

. d7 h* ]" Y( m! Z5 K5.客餐厅的射灯过少,光线过于单调和薄弱
  Y1 \( @# |6 f& [3 [% \6.客餐厅以及房间都是地板,原户型适合现代简约
2 E7 y7 R: f- f* o! E, p( ?
7.阳台墙面是涂料,地面是哑光砖与室内地面风格不符,建议拆除

1 V& F8 o, G* f! ?2 C& Z/ V8.厨房缺少操作台面,考虑之后补充
$ K9 F/ {% t* o2 c; b

6 ^# z& _8 P. z) [+ h& |( g
南通崇州府精装修房140㎡
设计研发背景
, h0 ?) h6 o0 [
本案是一个五口之家,一对夫妻和他们的父母及一个6岁的女儿,所以至少要有3个卧室。业主俩夫妻由于平时各有自己的工作,比较忙,所以没有多余的时间来装修新家。业主希望每天回家后可以放松身心,不要多余的装饰,储物空间尽可能的多一些,另外要考虑孩子的房间以及学习空间。
! L( M7 x" J9 Z7 B1 T) o

/ j$ J2 J" D$ y4 `; y2 \8 @5 C
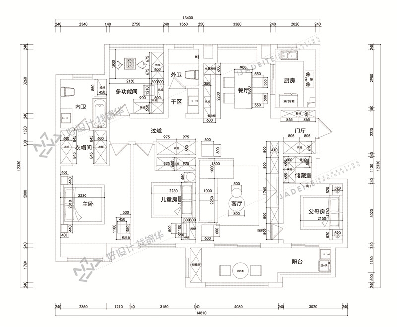
平面布置图.jpg
▲图为崇州府140㎡研发设计平面布置图
* Y) |' B; _) |2 c: }1 B
家具尺寸.jpg
▲图为崇州府140㎡家具尺寸方案
$ G1 n$ R+ G/ H5 M) s% Q0 ?
! `3 V9 N) J  N+ t) x
, G. c" @7 o0 q  B& U- m4 E( [
崇州府精装修房140㎡
, N5 b' [- e# b( {& b
设计研发方案:(按照设计研发背景)
% f+ _) Q& |3 H0 o8 Z7 C! v. y
1.客厅电视背景墙做的电视柜与餐厅的墙体齐平,父母房的门设置为隐形门- k6 W+ A. N2 y& F
2.餐厅设置餐边柜结合电器高柜
" l9 u8 h4 p# H3 H) c3 r3.南阳台划分为生活区和休闲区,做到美观与实用
0 `# M' Z% e7 v% o4.北面房间设置为多功能房兼具孩子学习、住人和收纳的功能。具体采用榻榻米的形式
3 `2 a( q) I- S5.客餐厅点换成地砖! k1 {8 a3 h6 x7 U+ o1 g
6.统一阳台与客餐厅地面的风格,阳台墙面贴砖
+ R* `5 t$ d: r7 |3 |% ?: S; a& }

7 @. m3 ^. }6 Q) p

( L6 N' x: s/ ~* c5 n3 L
崇州府精装修房140㎡
& x/ y8 B, M/ k7 n4 f) t7 {7 z
设计色彩分析:
本案是业主喜欢温馨舒适轻快的氛围,整个空间采用墙面和地面采用米白、高级灰,配合一些暖黄色的木饰面进行色彩搭配,用橘色提亮,绿植、装饰画、配置等进行点缀。
- g# d! i: j3 s: R
色彩分析.png
▲图为崇州府140㎡研发设计色彩分析
, A( p8 P6 h6 d. n% d2 Y
/ D' j+ u: M' P3 y9 }
客厅家具软装方案.png
▲图为崇州府140㎡客厅研发设计软装家具方案

; V, S6 C/ f1 x/ |+ _3 Q/ d
餐厅软装方案.png
▲图为崇州府140㎡餐厅研发设计软装家具方案

- ~1 t8 a$ b  J4 \9 ]& X: E7 I  ~* T) B% k, E2 P7 x$ g
崇州府精装修房140㎡效果图:
微信图片_20200614181849.png
▲图为崇州府140㎡客厅效果图
) O9 T+ E  d; e5 b. N/ R
微信图片_202006141818491.png
▲图为崇州府140㎡客餐厅效果图
6 t: X) G- u2 j
微信图片_202006141818492.png
▲图为崇州府140㎡生活阳台效果图
, I2 P* P6 D* h2 X$ y0 ]6 P1 i; f
. Y$ _" T5 D- l3 p6 ^4 e

  获取更多效果图,记得文末添加小编微信哦  

/ `- ]% i4 _. ~) i4 C) a3 R" P
本案研发设计师:朱晓君
121212.jpg

& Q. H$ w, K$ g/ ]
好的设计方案是业主和设计师一起打造的
如果您家里的需求和本研发方案略有不同
欢迎找下方客服小姐姐
我们将第一时间和您沟通
为您家打造优质方案
金牌客服——思思.jpg
) C/ U7 d4 b' [, R0 W6 |  y
+ t( a$ X, g& J" L- Z# ?& p
回复 支持 反对

使用道具 举报

该用户从未签到

 楼主| 发表于 2020-6-16 16:01 | 显示全部楼层 来自:江苏
8 R2 e0 @/ s% a$ ?
4 Z: s- ?  f6 y' p  Q/ l, W
崇州府精装修房140㎡研发案例(二)
2 i) A: p# I" T5 \
图片7.png
▲图为南通崇州府140㎡原始平面布置图
! ~: L7 e& R; J/ s- m
崇州府精装140㎡研发设计解析(一)
A:客厅
①、由于东卧偏小,所以去除隔墙,从而扩大客厅空间。装饰玄关做电视背景墙,电视以投影形式设立。
②、原东卧改为雪茄区、吧台式书房、多功能区,与客厅合二为一,使整个客厅区域更加开阔大气。
B:门厅
③、玄关的设立增强了空间的私密性,并遮挡了改造后的主卧房门。
C:餐厅
④、开放式厨房,采用了双过道的设计,增添了空间的趣味性。
D:阳台
⑤、阳台区域放置洗衣机,设立晾晒区。
E:卧室
⑥、北卧并入主卧,做成大套间。原北卧作为主卧衣帽间。
⑦、主卧子母门的设计,使整个空间变得更为 时尚高端。

% h" N' i8 o4 g3 D
图片1.jpg
▲图为崇州府140㎡研发设计平面方案(1)

* {5 _0 D" j  l# J6 k2 L; K. i4 A: G
崇州府精装140㎡研发设计解析(二)
A:客厅
①、由于东卧偏小,所以去除隔墙,从而扩大客厅空间。
②、增设电视机背景墙
③、原东卧改为雪茄区、吧台式书房、多功能区,与客厅合二为一,使整个客厅区域更加开阔大气。
B:餐厅
④、开放式厨房,采用了双过道的设计,增添了空间的趣味性。
C:阳台
⑤、阳台区域放置洗衣机,设立晾晒区。
D:棋牌室
⑥、增设榻榻米定制棋牌桌,用于休闲娱乐。
图片2.jpg
▲图为崇州府140㎡研发设计平面方案(2)

4 x4 U" d" }% `

) k8 J9 E: {( {5 P: L  m& |
崇州府精装140㎡研发设计解析(三)
A:客厅
①、由于东卧偏小,所以去除隔墙,从而扩大客厅空间。装饰玄关处做升降投影幕,电视以投影形式设立。
②、原东卧改为雪茄区、吧台式书房、多功能区,与客厅合二为一,使整个客厅区域更加开阔大气。
B:门厅
③、玄关的设立增强了空间的私密性,并遮挡了改造后 的主卧房门。
C:餐厅
④、开放式厨房,采用了双过道的设计,增添了空间的趣味性。
D:阳台
⑤、阳台区域放置洗衣机,设立晾晒区。
E:卧室
⑥、北卧并入主卧,做成大套间。原北卧作为主卧衣帽间。
⑦、主卧子母门的设计,使整个空间变得更为 时尚高端。
图片3.jpg
▲图为崇州府140㎡研发设计平面方案(3)

& v0 k3 U9 G2 y

" T; n( u+ W/ M% j( E! F) ]; Z+ p
崇州府精装140㎡设计参考效果图:
图片4.png
▲图为崇州府140㎡研发设计客厅参考效果图
: a/ N  o( O3 q4 }5 K+ k
图片7.png
▲图为崇州府140㎡研发设计书房参考效果图
9 E4 M* Q8 O0 r' o+ m/ t& r- \9 `* N' X
图片6.png
▲图为崇州府140㎡研发设计卧室参考效果图
1 t, h" \& L, |# f) V0 l  m# j. x
图片5.png
▲图为崇州府140㎡研发设计客餐厅过道参考效果图

3 u5 r+ M8 E" V
本案研发设计师:陈瑜
陈瑜.jpg

/ K" ?% e: f; [8 O% }8 x1 _" L" C/ ?0 y( @/ c% H+ t; i
预约设计师&更多研发案例咨询
欢迎找下方客服小姐姐
▼▼▼
金牌客服——思思.jpg
6 l8 u' @8 K  V8 N' s

5 M; l* O2 H" J" O5 W
回复 支持 反对

使用道具 举报

您需要登录后才可以回帖 登录 | 注册

本版积分规则

手机版|无图版|站务联系 | 商务合作 | 平台公约

信息产业部备案:苏ICP备05014191号-1 经营性ICP许可证:苏B2-20110445 苏公网安备 32060202000307号 © 2001-2019 0513.org All Right Reserved.

投诉争议 技术支持:第一互联 GMT+8, 2025-12-13 18:19 , Processed in 0.230437 second(s), 12 queries , MemCache On. 站点统计

快速回复 返回顶部 返回列表