濠滨论坛

点击扫描二维码

查看: 26931|回复: 0

220㎡现代简约,轻松舒适,优雅气质

[复制链接]

该用户从未签到

发表于 2020-3-26 10:27 | 显示全部楼层 |阅读模式 来自:江苏
这个是一套220平米的大平层户型,常住人口为主人夫妇、两个小女儿、保姆,整体空间以现代简约的格调基础,为一家人营造出一种轻松舒适的生活空间,带来的是品质优雅的自然雅致感。
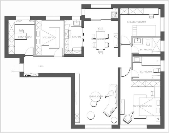
平面布置图
玄关
▲玄关的灰色抛光砖延伸到整个客餐厅公共区域,正对大门的木饰面墙面材质,也让回家视觉更加舒适自然,左侧的一个极简框架时钟,也使得空间更加和谐自然。
客厅
▲客厅以现代优雅的空间格调,电视墙的大理石材质、沙发墙的软包,结合舒适轻松的现代范家居布置,营造出一种自然华丽的优雅气质。
▲定制柜+大理石质感结合的电视墙设计,彰显出一种实用优雅的时尚现代感。
▲软包背景的沙发墙,布置上米白色的布艺沙发,还有灰色的地毯上摆着一张雅白大理石台面小茶几,让客厅充满现代舒适的轻松气息。
餐厅
▲餐厅背景墙以木饰面的墙面基础,布置上一个深色的餐边柜,结合胡桃木框架的大理石台面餐桌,皮质坐垫的餐椅,让用餐空间充满端庄稳重的仪式感。
▲餐边柜上的陶艺品与装饰画布置,也增添了空间的华丽优雅气质。
厨房
▲厨房以茶色玻璃做的落地推门,里面U形的操作台布局,结合白色的定制橱柜,使得做饭空间也自然舒适而现代惬意。
过道
▲过道以木饰面的空间基础,把房门与木饰面融为一体,做成隐形门的设计,让空间显得简洁优雅而自然大气。
书房
▲书房有个大面积的落地窗,以定制的书桌椅设计,为主人提供了一个明亮实用而舒适的办公环境。
卧室
▲卧室在木饰面+软包的背景墙基础下,布置上一张皮质靠背的床铺,简洁素雅的床单布置,让卧室空间显得现代舒适而安静。
卫生间
▲卫生间以灰色抛光砖的墙面砖基础,设置了一个大浴缸,成为主人在家享受放松的私密空间。

% @1 Z- L! L! w: v# W4 v8 X  J* r南通0
您需要登录后才可以回帖 登录 | 注册

本版积分规则

手机版|无图版|站务联系 | 商务合作 | 平台公约

信息产业部备案:苏ICP备05014191号-1 经营性ICP许可证:苏B2-20110445 苏公网安备 32060202000307号 © 2001-2019 0513.org All Right Reserved.

投诉争议 技术支持:第一互联 GMT+8, 2025-12-16 10:56 , Processed in 0.125461 second(s), 11 queries , MemCache On. 站点统计

快速回复 返回顶部 返回列表