濠滨论坛

点击扫描二维码

查看: 91367|回复: 0

福景苑110现代简约|四世同堂同一空间又各自美好

[复制链接]

该用户从未签到

发表于 2019-10-16 15:24 | 显示全部楼层 |阅读模式 来自:江苏
▎ 作品档案
. W+ j. Q% d, w  I2 Y" R8 ~; ?楼盘地址:福景苑! @; J" G, f+ L% P
楼盘楼号:4号楼
- K/ `% a0 h6 O0 t5 k% H5 ^建筑面积:110㎡
+ I% @! J+ M& N装修风格:现代简约
6 z( s  q7 N# G$ }, v8 |设 计 师:孙滢
6 U; j; Z5 I2 U( m: n" D
7 ^' C4 q+ c5 P4 L# v6 u▎ 设计背景
' q( K4 ?/ ^9 h客户背景:四世同堂,年轻的夫妻俩和一个的二岁的女儿,夫妻的爷爷和他俩的爸妈。女主人是上班族,男主人是建材商,夫妻的爸妈也是卖建材的,男主人算是继承了家产,夫妻的爷爷退休在家业颐养天年。主家对整体空间色调的要求很高,很注重家里每个角落的布局及材料运用的搭配。在考虑房子主人的喜好特点的同时,既要有注重居室的实用性,又要体现出主人的品味。
3 i% b1 Q8 V! P9 e& T. r* J9 y1 Y* o8 h2 S% k+ t
▎ 设计需求5 j' I2 k0 p1 |; Q
①:不需要太多造型设计,要求材料质量要高,搭配要协调。. x& S4 ~7 x* e3 e, y
②:家具的选择上要造型简洁大气,又能凸显一定的实用功能。
- ^2 |0 V4 x; B9 j! ~6 f* n③:从实用角度分析,需要衣帽间,储物要足够。
- W3 O; i; E4 O- A( c
7 E) Q# L) ~) x0 N% c( T+ F▼ 原始户型图* L0 ]' h5 T8 _, k; Y/ l
1-1.jpg : m; o( ^$ J& A3 N5 v- H
- Q! y4 D, d7 _' i5 U# M; m$ r  f+ k
▎ 户型分析
4 E+ V# ?3 A5 G+ V①:进门处没有放鞋柜的位置,需要重新规划。
- {- D5 A% t8 Z, e# I②:餐厅位置不够宽敞。
  l+ z( m( \, z) h% ~, X③:厨房较为拥挤,不好布局。3 l1 ~) O, p- @9 R$ w4 E
④:人体动线不够明确。% H) s) s/ I& o$ R& _. u# j% E

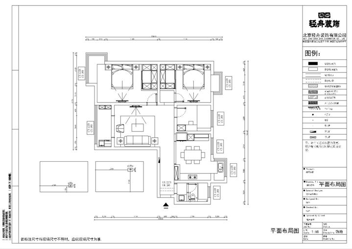
' `1 S5 V' R  L' e▼ 平面布局图
) f# |' `# M* a  k* _. V 1-2.jpg % r7 m$ Q" g, W4 M: K& _1 }
( e& q, h2 d' ~7 `5 |. j  d
▎ 改造备注
, i$ ]7 {  L) n/ z8 D5 o⑤:增加了两个大衣柜和榻榻米,扩大储物空间。7 T& B  u$ @7 J9 x
⑥:整体动线较为清楚,动态和静态区分开互不干扰。0 ^) ?1 z  L# H5 w8 {7 q8 B
⑦:将厨房和餐厅打通,做开放式厨房,从而扩大了餐厅的面积,更好的利用了空间。
4 O1 `: _" L/ x
; }% v. k/ L  e▼效果图
. u- e! Z! t$ A# n 1-5.jpg * P/ C- r: ^3 g, C8 W9 c- [$ j5 b
1-3.jpg
& ~; P4 M. [! x* }7 j2 C2 C, ?, q, |
+ u8 R( M$ p% F/ i0 T( p▎ 设计亮点
- \4 W+ _' l$ R# w$ E进门处的视线较为清楚,空间动线划分较为清晰。餐厅离厨房较近,方便操作,完美地规避掉了局限性。材料配色很协调,从细节可以看出设计师的用心,给屋主实用而舒适的体验。) e+ y* C, @. B8 f0 C9 ~
! o3 L# L8 s, T% O# e% w
南通0
您需要登录后才可以回帖 登录 | 注册

本版积分规则

手机版|无图版|站务联系 | 商务合作 | 平台公约

信息产业部备案:苏ICP备05014191号-1 经营性ICP许可证:苏B2-20110445 苏公网安备 32060202000307号 © 2001-2019 0513.org All Right Reserved.

投诉争议 技术支持:第一互联 GMT+8, 2025-12-17 04:28 , Processed in 0.139294 second(s), 14 queries , MemCache On. 站点统计

快速回复 返回顶部 返回列表