濠滨论坛

点击扫描二维码

查看: 126405|回复: 51

[新闻快讯] 港闸区将添一所学校!小学部48个班,初中部30个班

  [复制链接]

该用户从未签到

发表于 2019-9-30 22:15 | 显示全部楼层 |阅读模式 来自:江苏
南通市行政审批局今天发布
南通市永怡学校项目规划批前公示

97948900-ac82-4859-aab9-cf7871ba08ee_03.png


批前公示

南通市港闸区教育局委托上海华东房产设计院有限公司编制完成南通市永怡学校的规划方案,并将该方案送我局组织审批。为体现规划行政审批的公开、公正和透明性,体现规划管理的公众参与,我局现将建设单位报送的南通市永怡学校项目总平面规划方案进行审批前的公示,以听取公众意见。公示时间自2019年9月30日起至2019年10月9日止。相关利害关系人对此方案有合理化意见或建议,请以书面的方式提交南通市行政审批局规划审查处。为便于我局进行答复,书面建议请提供通讯地址、联系人及联系电话。


相关利害关系人对该地块建设同时享有要求听证的权利,若要求进行听证,须在公示结束前向南通市行政审批局提出书面申请。


联系电话:59000971

联 系 人:李女士

通讯地址:工农南路150号裙楼二楼225室


2019年9月30日
97948900-ac82-4859-aab9-cf7871ba08ee_06.png

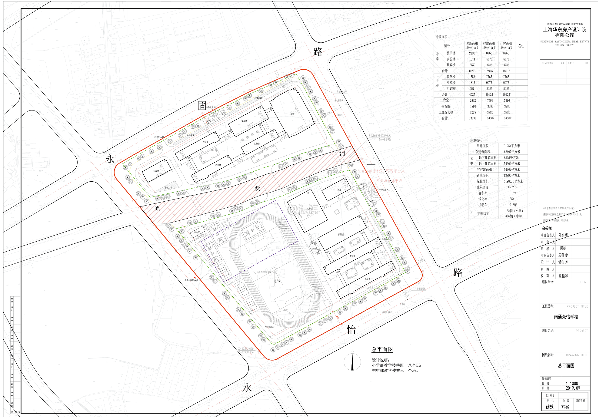
规划方案显示
南通市永怡学校
位于永怡路北、永固路南
小学部教学楼共48个班
初中部教学楼共30个班
小学和中学均将建设
教学楼、实验楼、行政楼
以及食堂、体育馆等

97948900-ac82-4859-aab9-cf7871ba08ee_08.png
规划效果图。

来源:市行政审批局网站

南通0

点评

省里几年前就规定 小学的规模 不得超过30个班级  发表于 2019-10-4 08:16
发表于 2019-9-30 22:30 来自手机微信 | 显示全部楼层 来自:陕西
提示: 作者被禁止或删除 内容自动屏蔽
回复 支持 4 反对 0

使用道具 举报

该用户从未签到

发表于 2019-9-30 22:46 来自手机WAP | 显示全部楼层 来自:陕西
别高兴的太早。有规划图的学校南通多了去了,西郊小学14年就规划了.16年宣布启动,现在还没开工呢!
回复 支持 2 反对 0

使用道具 举报

该用户从未签到

发表于 2019-9-30 22:47 来自手机WAP | 显示全部楼层 来自:江苏 移动/数据上网公共出口
早日开工吧
回复 支持 1 反对 0

使用道具 举报

该用户从未签到

发表于 2019-9-30 22:55 来自手机WAP | 显示全部楼层 来自:江苏
省级学校
回复 支持 2 反对 0

使用道具 举报

该用户从未签到

发表于 2019-9-30 23:02 来自手机WAP | 显示全部楼层 来自:江苏
旁边的房价还得上涨。。
回复 支持 1 反对 0

使用道具 举报

该用户从未签到

发表于 2019-9-30 23:02 来自手机WAP | 显示全部楼层 来自:江苏
五水小学搁浅了么
回复 支持 反对

使用道具 举报

该用户从未签到

发表于 2019-9-30 23:13 来自手机WAP | 显示全部楼层 来自:江苏
五水小学呢?
回复 支持 1 反对 0

使用道具 举报

该用户从未签到

发表于 2019-9-30 23:19 来自手机WAP | 显示全部楼层 来自:江苏
港闸一直缺少优质的学校,希望这次能补上这个短板
回复 支持 1 反对 0

使用道具 举报

该用户从未签到

发表于 2019-10-1 00:02 来自手机WAP | 显示全部楼层 来自:上海
要什么学校啊,这么大块地皮,赶紧拍卖给屁民盖房子,继续炒啊。要什么教育医疗,炒房卖地才能振兴中华!
回复 支持 6 反对 0

使用道具 举报

该用户从未签到

发表于 2019-10-1 06:54 来自手机WAP | 显示全部楼层 来自:江苏
谁知道,学校北面的高压线什么时候入地?城市里面高压线都在入地了,虽说对人体影响小,但是看了密密麻麻高压线,心惊胆战
回复 支持 1 反对 0

使用道具 举报

该用户从未签到

发表于 2019-10-1 06:59 来自手机WAP | 显示全部楼层 来自:江苏
感觉挺小的,不够大气。
回复 支持 1 反对 0

使用道具 举报

该用户从未签到

发表于 2019-10-1 07:20 来自手机WAP | 显示全部楼层 来自:江苏
都是大规模学校,市县区教育部门领导当省教育厅优质均衡教育考核是个屁?
回复 支持 1 反对 0

使用道具 举报

该用户从未签到

发表于 2019-10-1 07:49 来自手机WAP | 显示全部楼层 来自:江苏
又要涨了,涨的好!!!
回复 支持 反对

使用道具 举报

该用户从未签到

发表于 2019-10-1 08:07 来自手机WAP | 显示全部楼层 来自:江苏 移动/数据上网公共出口
名字不好听
回复 支持 1 反对 0

使用道具 举报

匿名
发表于 2019-10-1 08:20 来自手机WAP | 显示全部楼层 来自:湖北
提示: 作者被禁止或删除 内容自动屏蔽
回复 支持 1 反对 0

使用道具 举报

该用户从未签到

发表于 2019-10-1 08:31 来自手机WAP | 显示全部楼层 来自:江苏
避暑山庄 发表于 2019-10-01 06:54
谁知道,学校北面的高压线什么时候入地?城市里面高压线都在入地了,虽说对人体影响小,但是看了密密麻麻高压线,心惊胆战

入地不了
回复 支持 1 反对 0

使用道具 举报

该用户从未签到

发表于 2019-10-1 08:42 来自手机WAP | 显示全部楼层 来自:浙江
好!尽快开工!
回复 支持 反对

使用道具 举报

该用户从未签到

发表于 2019-10-1 08:50 来自手机WAP | 显示全部楼层 来自:江苏 移动
附近的拆迁房也能上么?
回复 支持 反对

使用道具 举报

该用户从未签到

发表于 2019-10-1 09:46 来自手机WAP | 显示全部楼层 来自:江苏 移动/数据上网公共出口

为什么入地不了?以前北大街高压线不都入地了?
回复 支持 1 反对 0

使用道具 举报

该用户从未签到

发表于 2019-10-1 10:12 来自手机WAP | 显示全部楼层 来自:江苏
路人甲嗨起来 发表于 2019-10-01 08:50
附近的拆迁房也能上么?

肯定的啊,不然生源也不够啊。
回复 支持 反对

使用道具 举报

该用户从未签到

发表于 2019-10-1 10:17 来自手机WAP | 显示全部楼层 来自:江苏

为什么去不了?
回复 支持 反对

使用道具 举报

您需要登录后才可以回帖 登录 | 注册

本版积分规则

手机版|无图版|站务联系 | 商务合作 | 平台公约

信息产业部备案:苏ICP备05014191号-1 经营性ICP许可证:苏B2-20110445 苏公网安备 32060202000307号 © 2001-2019 0513.org All Right Reserved.

投诉争议 技术支持:第一互联 GMT+8, 2025-12-22 19:30 , Processed in 0.254872 second(s), 26 queries , MemCache On. 站点统计

快速回复 返回顶部 返回列表