濠滨论坛

点击扫描二维码

查看: 2308|回复: 0

军山半岛160㎡现代风格|设计让生活变得有温度

[复制链接]

该用户从未签到

发表于 2019-9-26 17:48 | 显示全部楼层 |阅读模式 来自:江苏
▎ 作品档案' a/ B0 G1 S, S# d' l2 D3 B: P  v( ]
楼盘地址:军山半岛
% V' o) F  J( F+ m+ ?' @* B8 Y楼盘楼号:47号楼2 |0 g3 h1 Q$ i! G) I1 }
建筑面积:161.88㎡
& g8 F2 V/ Z& S2 l- C& a' P9 M1 Y装修风格:现代
+ L' d% F) D+ P0 {5 j设 计 师:孙滢8 P2 M" N8 f# c" }- x: T7 Y9 D

& Z$ z% T1 C; U( S  _' k9 [▎ 设计背景
/ F, f% `/ a. {8 @% z客户背景:三口之家,年轻的夫妻和一个上小学的女儿。丈夫是公司白领,妻子是汽车销售。男方的父母也偶尔来住。业主家对整体空间色调的要求很高,女主人有轻微洁癖,很注重家里每个角落的布局及软装搭配。在考虑房子主人的喜好特点的同时,既要有注重居室的实用性,又要体现出主人的品味。
5 w7 K1 }- F: d3 `* U! @, j8 d, D( s2 o6 Y' p
▎ 设计需求; |' [' x, D# k$ F; C
①:家具的选择上要造型简洁大气,又能凸显一定的实用功能。4 E# i, H6 r2 Z
②:需要衣帽间,储物要足够。
, p) S- h% v+ l& m$ K& d③:背景墙用石材
1 a. ^5 f& b% e( B* d& {, p3 R% W: U# ]: P
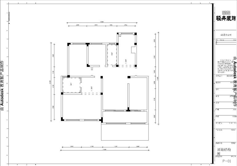
▼ 原始户型图, k4 V6 ^, m5 s/ V7 ^
1-3.jpg
* R6 U! A6 I) O! x! H+ L' P7 d3 }; w; m8 C
▎ 户型分析; n( C; p* J4 L, l/ P0 d
①:空间面积大,可设置较多的功能分区,既能满足一家人共享天伦之乐,又能同时兼顾到个人的隐私。
6 p8 A" b  ~8 h1 B- E②:南北通透、明厨明卫和动静分区,所以采光和通风的效果好,屋子里显得比较宽敞、明亮。- q8 i+ U( y: l, D5 \* ]; ^" y
③:南北很通透
' ]- s% \. z  D: a/ r5 Q; U6 Z; Y6 S3 _8 `) t: i* f
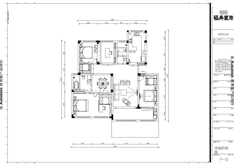
▼ 平面布局图
! A- x/ l8 R9 q& \5 k 1-4.jpg % `! _7 C3 b7 ]2 S

$ S0 _1 m' L3 i/ x; }" z▎ 改造备注
' o' s' E* u; x# g& e! E5 T' n. w④:两房朝南,采光通风比较好。% {) ^& H. s4 h" I- C& ^# @
⑤:整体动线较为清楚,动态和静态区分开互不干扰。8 r! J8 W& Y2 C; H
⑥:房间布局合理,储物空间充足。( z8 U4 H0 }' u% y7 o# c' V

, P3 B$ a0 `) R" \4 ^▼效果图
) `: v) ~3 _- G3 ] 1-1.jpg
) d7 S. r6 N' c# h( z0 G 1-2.jpg
2 t9 t( v5 m! h2 z+ B1 @# e, ~8 [% v5 ^5 W8 a1 R
▎ 设计亮点
4 }0 Y: D1 }6 e进门处增加独立的门厅设计,空间动线划分较为清晰。餐厅和客厅色调搭配和谐。设计师精心搭配的每一件陈设品都是空间中不可或缺的一员,吊灯,装饰画,布艺沙发形成美美的立体画面,彰显主人的品位。也体现设计师的设计与搭配功力!从细节可以看出设计师的用心,给屋主实用而舒适的体验。
# D  Z9 {. Q' k, W7 w# `2 o$ b$ J: @4 q' S  O4 n' {" X
4 p; Z% m% V% B. j  C
南通0
您需要登录后才可以回帖 登录 | 注册

本版积分规则

手机版|无图版|站务联系 | 商务合作 | 平台公约

信息产业部备案:苏ICP备05014191号-1 经营性ICP许可证:苏B2-20110445 苏公网安备 32060202000307号 © 2001-2019 0513.org All Right Reserved.

投诉争议 技术支持:第一互联 GMT+8, 2025-12-18 12:24 , Processed in 0.133352 second(s), 13 queries , MemCache On. 站点统计

快速回复 返回顶部 返回列表