濠滨论坛

点击扫描二维码

查看: 2321|回复: 0

皇家花园97㎡实景|这是一个港口,我在这里爱你

[复制链接]

该用户从未签到

发表于 2019-9-21 10:57 | 显示全部楼层 |阅读模式 来自:江苏
% e) n2 ?6 w5 J: q8 C" J. v; L% y# P( M. m2 \+ y, r9 h4 ], }
项目地址:皇家花园
1 E% O% R' l" H" d' R9 ~- q7 ?; V! w. K项目风格:现代简约
- f4 I/ Y  [3 F& J& R装修面积:97㎡- s5 C2 M8 T6 q0 t$ _% C" F# y
轻舟装饰|朱海波  z( F- _. U4 i0 \
+ h2 [, B% _  X6 D5 V2 k9 P
11111.jpg
7 z0 K9 u$ g# _2 ^# ?! d# s$ \" }设计背景
* ?( a  V: [5 j( @9 K  u业主是位年轻有为的单身男士,这套房后期准备做婚房使用,整体色调确定为当下流行的黑白灰,想要简单大气的感觉,喜欢线条感。
. x6 |: t! u! K' |" u9 z, S$ ?5 V+ Z: M+ L2 b
原始结构图
* s# U% Y3 |+ H6 C, m6 \ 1-1.jpg 6 e" X7 }, U; [5 T4 C
▎ 户型分析
, d% i" P5 v' \' _4 Y! h①:整体结构区域明确
; ]4 ~0 r+ a* B8 h- ?/ p②:次卧太小可合理利用双阳台的优势
3 Y8 [) i7 `) ?: N; U% m4 \③:厨房进门偏小2 u/ V# k8 @; ~0 H
④:北边书房太小,根据业主需求合理利用6 @+ \' T# W- q8 p7 R4 |/ [
+ @# R- F5 r4 Z8 m# ^8 _
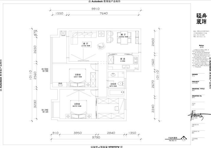
平面布置图- W. m- m/ j# m
1-2.jpg
" q) y. s% c! `8 F5 O$ Y- q; g  a▎ 改造备注
" E; k- E2 q2 r①:双阳台改成单阳台,使得次卧变大,可增加为小型工作区域: `! z$ a: L8 j
②:扩大厨房进门,让厨房更明亮
( X) S3 P* e; M  w2 r& Z2 w③:北边书房跟主卧打通,变成步入式衣帽间,大气时尚。/ [! }" t- x. ~- x9 x

( B) ~7 M  h0 N- r2 S* s" {实景效果9 T3 W: T/ s' B. g4 m5 S
1-11.jpg
' ~& c5 |0 t  y$ [. o; b+ x 微信图片_20190919173855.jpg 7 ], e& Q* Y% `# [4 _
进门处留有鞋柜兼餐边柜
: W$ g' g) ]/ g- c- p 微信图片_20190919173842.jpg
4 m+ _  |/ x% y$ f& a5 m1 o9 f厨房还是保留封闭式厨房% L/ V/ d) g: e# n0 {2 G# y6 X6 `
微信图片_20190919173837.jpg # l. A5 G. N. t# S
儿童房,明亮的黄色给人活泼欢快的感觉,后期可以摆放一些趣味十足的小摆件加以点缀,十足可爱。5 f0 |6 x" \4 b* D: w
微信图片_20190919173736.jpg
# |* w/ U. y; D 微信图片_20190919173745.jpg , @! L( B* z+ N" u2 t
后期常住人口就是夫妻二人,考虑到空间利用率,所以把原先的三房改成了两房格局,将主卧做成了一个大套间,涵盖储物、休息、梳妆区域。这些功能的集合让居住者舒适性得到大大的提升,在家也能享受总统套房的感受。
0 v7 K2 q8 }- K3 ^, }8 m) b8 T! R( I  O' i( q$ j" H, S& p

& d4 @5 I1 P0 {5 `南通0
您需要登录后才可以回帖 登录 | 注册

本版积分规则

手机版|无图版|站务联系 | 商务合作 | 平台公约

信息产业部备案:苏ICP备05014191号-1 经营性ICP许可证:苏B2-20110445 苏公网安备 32060202000307号 © 2001-2019 0513.org All Right Reserved.

投诉争议 技术支持:第一互联 GMT+8, 2025-12-18 12:24 , Processed in 0.151880 second(s), 18 queries , MemCache On. 站点统计

快速回复 返回顶部 返回列表