濠滨论坛

点击扫描二维码

查看: 38563|回复: 22

[装修日记] NO.38【2019年濠滨装修日记大赛】+【翠园】+【北欧穷装】+【乐雅设计】

[复制链接]

该用户从未签到

发表于 2019-9-16 08:36 | 显示全部楼层 |阅读模式 来自:江苏
2 x. X1 d( d9 K8 Z4 u& s9 _/ j: b: K" L( E* L) G
房型:三室两厅两卫
; H8 O! I$ K  W建筑面积:134㎡( |$ U3 S9 c; P( Q8 v9 R, ?3 I) O
装修总预算:15万
7 U& Q0 Y, X, G" e包工方式:半包
( Y$ T3 g( ?* p8 a* t装潢公司:乐雅设计
, b/ R! F: q; R& E$ O) b设计师:赵乐乐: ?1 O: C( M6 }' L" d  Z; l/ n
开工日期:2019年9月15日
3 B5 ?) b% F0 W7 z' d# ~# Z+ k* K3 b楼盘地址:翠园: E" S+ w% |& U4 n9 O
3 k  ~7 X8 K/ y
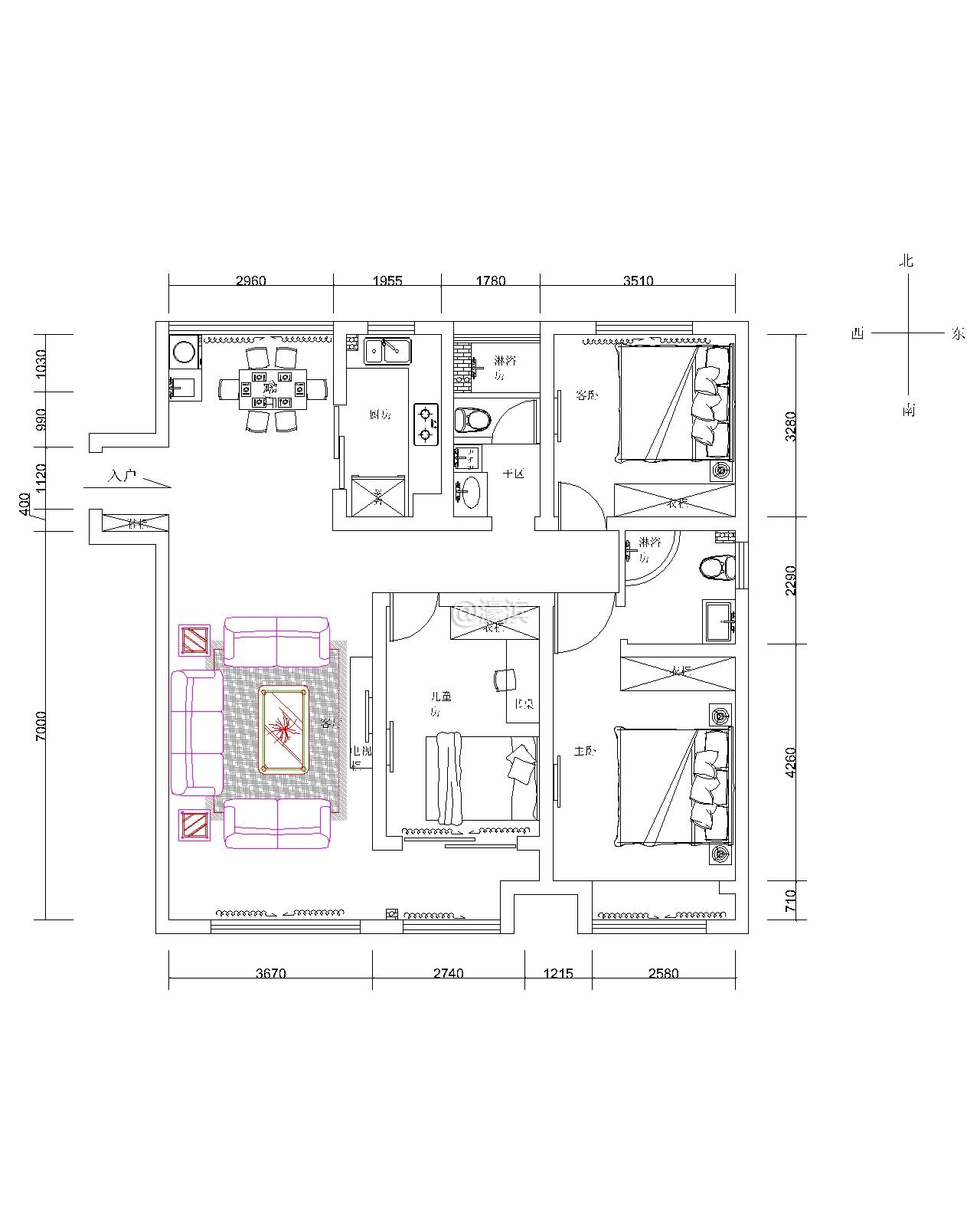
平面布局图:
4 d: b# B# e: g0 }- r( p

改变后

改变后

原始图

原始图

/ R+ N! B# C6 o南通0

该用户从未签到

 楼主| 发表于 2019-9-16 08:56 | 显示全部楼层 来自:江苏
第一次发帖,好多不懂,其实想说的好多,先讲讲买房篇
- y4 Q3 H5 b8 M2 R买房是大事,当时还是17年,楼市还没现在这么疯狂,能买到翠园也是庆幸的。要不然到现在真的买不起
9 o% w5 f# M/ ?买房后,整天想的就是盼着拿房之前大半年一直沉寂在濠滨论坛里,几乎没发过帖子,这次心血来潮," h5 S! O1 j- C" r1 O# M3 p/ {$ k
也想记录下小家的成长。认识乐雅设计,还得归功于论坛,第一印象感觉这家公司的口碑不错,老板赵乐乐的全屋定制性价比高,可以高仿大品牌的全屋定制,项目经理汪工做事细致认真。歇会,下次写
; M, @7 V' `9 \- Q3 N# N. M3 K; x
回复 支持 1 反对 0

使用道具 举报

该用户从未签到

 楼主| 发表于 2019-9-16 09:15 | 显示全部楼层 来自:江苏
没人帮顶,那只能自己顶了。其实之前还有一家公司让我一直关注,就是壹宅装饰,当时他们公司规模还没现在这么大,很早也加了他们老板肖颖的微信,也看过他们的帖子,报价很低,吸引了我,后来,他们规模做大了,老板微信每天都在发开工的照片,他们人多了,管理就要一笔不小费用,价格肯定不会像之前那么低了,因为我穷。综上,还是放弃了一宅。除了 我自己关注的两家公司,还有几家是主动找我的,可能信息泄露了,有锦华,业之峰,水木清华,由于本人很穷,所有都pass掉
回复 支持 1 反对 0

使用道具 举报

该用户从未签到

 楼主| 发表于 2019-9-16 13:21 | 显示全部楼层 来自:江苏
下面讲讲拿房篇9 F$ M( @. y6 @8 E
我跟我老婆是刚需,能买到翠园也是我老婆舅舅舅妈帮的忙,真的特别感谢他们。拿房日是9月2号,外面下着大雨现在想想还很是激动啊,之前就约好赵姐跟汪工过来帮忙验房,验房我也不是太懂,主要看看下水道通不通,墙面有没有空鼓,还有水电等等。小区整体还是可以的
. {" o/ f0 {; T; _7 ^7 h晒几张拿房的照片,美美哒
# M3 C; ~: L; O后面是能达小学,东边地铁口
微信图片_20190916131104.jpg
微信图片_20190916131113.jpg
微信图片_20190916131116.jpg
微信图片_20190916131119.jpg
微信图片_20190916131122.jpg
回复 支持 反对

使用道具 举报

该用户从未签到

 楼主| 发表于 2019-9-16 13:31 | 显示全部楼层 来自:江苏
下面写写拿房篇1 V* H* @2 x7 {! Q/ E9 u8 [
我跟我老婆是刚需,算半个外地人,能买到翠园都是我老婆舅舅舅妈帮的忙,真的特别感谢他们。拿房日是9月2号,外面下大雨,现在想想还是很激动呢之前就约好赵姐跟汪工过来帮忙验房,验房的事我也不太懂,就是看看下水道通不通,墙面有没有空鼓,水啊电之类的。也没发现多大问题,小区质量应该还可以' U: s; m( K/ ^% r( Y* A1 T
晒晒拿房时的照片,有的图是盗的
微信图片_20190916131104.jpg
微信图片_20190916131113.jpg
微信图片_20190916131116.jpg
微信图片_20190916131119.jpg
微信图片_20190916131122.jpg
回复 支持 反对

使用道具 举报

该用户从未签到

 楼主| 发表于 2019-9-16 13:43 | 显示全部楼层 来自:江苏
忘记说了,小区物业是绿城物业,物业费2.7呢。穷啊,物业费车位管理费都要5000大洋了装修前还要交2000块钱押金,说不让敲承重墙,外机不能挂墙上。还有我们边户的户型有点差,说来是方正,可是没阳台,还有入户门是内开的。得房率那个低啊。谁让当时啥都不懂呢,勉强可以接受心里哭。这次装修主要还是要省钱实用为主,我们是刚需,买房还有贷款,所有主体改动很小,就是敲了个北阳台的墙,
回复 支持 1 反对 0

使用道具 举报

该用户从未签到

发表于 2019-9-16 14:14 来自手机WAP | 显示全部楼层 来自:陕西
加油^0^~加油^0^~
回复 支持 反对

使用道具 举报

该用户从未签到

 楼主| 发表于 2019-9-18 08:42 | 显示全部楼层 来自:江苏
更新晚了,昨天汪工安排了工人过来敲墙,铲墙皮,发现一个问题,之前没有关注到,因为开发商给客厅跟3个卧室做了增高地坪,导致地坪不铲,贴砖后入户门不能正常关启。打电话跟物业沟通,物业也说是设计时候没有考虑到,导致我刚施工就要增加一笔铲地坪的费用我的天,我可是穷人。后来问了别的户都把地坪铲了,为了不影响层高,又可以省去换门的钱,果断要求全铲了。由于本人是上班族,没有办法现场监督,只能下班后去看看# I8 f; W8 \# b/ m
附现场图
微信图片_20190918082903.jpg
微信图片_20190918082940.jpg
微信图片_20190918082942.jpg
微信图片_20190918083017.jpg
回复 支持 1 反对 0

使用道具 举报

该用户从未签到

 楼主| 发表于 2019-9-18 09:03 | 显示全部楼层 来自:江苏
晒几张设计师给的效果图。房间客厅都是用的下挂贴片,简约清新,只有过道用了吊顶。客厅买的风管机,昨天刚到货,等水电一起安装,房间都是挂壁(中央空调是真搞不起)。主要就是配色要好看点
微信图片_20190918090141.jpg
微信图片_20190918090145.jpg
微信图片_20190918090151.jpg
微信图片_20190918090156.jpg
微信图片_20190918090159.jpg
微信图片_20190918090201.jpg
微信图片_20190918090336.jpg
回复 支持 1 反对 0

使用道具 举报

该用户从未签到

 楼主| 发表于 2019-9-18 09:16 | 显示全部楼层 来自:江苏
最近不是要封个北阳台吗,就一直在研究阳台的事,打听价格就是平推的门窗便宜,品牌的400-500左右一平,系统门窗贵点,可以做成内开内倒大概700-800左右。现在还在犹豫,我们边户是没有南阳台的,内置的开发商都是封好了,但是有个问题就是窗户都是内开的,占用空间。找师傅商量改内开内倒,一扇窗户配件加人工要500一套,客厅两扇,3个房间3扇,预算要2500。客厅北阳台做系统门窗要5000。好贵啊,打算做个平推的
微信图片_20190918091440.jpg
回复 支持 1 反对 0

使用道具 举报

该用户从未签到

发表于 2019-9-18 12:29 | 显示全部楼层 来自:江苏
坚持更下去呀,加油
回复 支持 反对

使用道具 举报

该用户从未签到

发表于 2019-9-22 13:56 | 显示全部楼层 来自:江苏
恭喜开工,等待看你家穷装毕业照如何,victory:
回复 支持 反对

使用道具 举报

该用户从未签到

 楼主| 发表于 2019-9-30 08:57 | 显示全部楼层 来自:江苏
好久没更新了,今天抽空更新下
/ F: }" g7 p& V  g. t我家工程看似简单,其实有点小复杂,现在慢慢讲,% [9 K: R& j% m, u' `
第一,我家客厅卧室要铲地坪,地坪有3cm厚,这个一般没人铲的,开发商说是保温层,3cm厚的地坪开发商全部铺了钢丝网,所以铲除比较麻烦
/ Z5 K; h: {' E9 s  ?( c第二,我家承重墙比较多,经工人说,还是第一次看到承重墙这么多的,导致开槽特别难,比砖墙难多了,开的槽也比砖墙丑
! ^% \! r; y2 j第三,厨房旁边的卫生间外面是有设备平台的,我打通了,做干湿分离。这里也比较复杂,要把卫生间下面挖空,因为马桶要移位,落水管也要移位,占空间,工程不小。这里要说下,开发商卫生间水管填埋的,用的是吸湿防潮陶粒填埋,这个很赞。
- a7 v9 {/ `3 M( \7 Y2 ]" g第四,我家铲墙皮也遇到问题,开发商当时整个房屋都全屋挂网了(防开裂),墙皮不好铲,要全屋把网揭掉。. Y$ C/ N% H6 p4 Z
回复 支持 反对

使用道具 举报

该用户从未签到

 楼主| 发表于 2019-9-30 09:06 | 显示全部楼层 来自:江苏
前期工程不小,加上工人老是感冒挂水,耽误不少时间,铲墙皮,敲墙,开槽就用了10来天。这里有必要提下工人师傅,我家工人是一对夫妻,山东的,他们那边有一个风俗,就是必须要生男娃,生不了男娃就会被别人笑,他家生了4个女娃他们干着这种很脏很重的活,非常辛苦,在我家有时都干到晚上9点多,有次听说他们跟着老板后面去海门干活,光单程路程,电瓶车就要两小时。现在能干这种活的年轻人已经不多了。
回复 支持 反对

使用道具 举报

该用户从未签到

 楼主| 发表于 2019-9-30 09:11 | 显示全部楼层 来自:江苏
由于家里是铲了地坪,导致地面不平,所以地固就不刷了,只刷了墙固,现在家里是水电刚进场,预约了安装风管机的师傅,谁知道师傅比较忙,说国庆节那天来我家安装。好吧所有的照片先不上传了,等家里水电完工我来上照,在跟大家分享一些细节
回复 支持 反对

使用道具 举报

该用户从未签到

发表于 2019-10-8 12:51 | 显示全部楼层 来自:江苏
加油,水电要完工了吧,好久没看到更帖。
回复 支持 反对

使用道具 举报

该用户从未签到

 楼主| 发表于 2019-10-10 08:49 | 显示全部楼层 来自:江苏
好久没更了,先传大片,再细说
微信图片_20191010084413.jpg
微信图片_20191010084425.jpg
微信图片_20191010084429.jpg
微信图片_20191010084439.jpg
微信图片_20191010084445.jpg
微信图片_20191010084449.jpg
微信图片_20191010084452.jpg
微信图片_20191010084459.jpg
微信图片_20191010084503.jpg
微信图片_20191010084528.jpg
微信图片_20191010084809.jpg
回复 支持 反对

使用道具 举报

该用户从未签到

 楼主| 发表于 2019-10-10 09:03 | 显示全部楼层 来自:江苏
我家水电基本要结束了。因为是穷装,也没请什么监理,基本就是本人来找问题
6 f+ ]$ x7 P0 ~7 ^5 u( a/ Y国庆节没有施工,进度有些慢,
# X/ l2 A6 G( q7 w2 l第一个,发现家里厨房的燃气管,直接走地,因我要求燃气管要走顶,埋墙需要套入pvc管,联系赵姐汪工,答应整改
- {, M! @. K0 L  H- o第二个,我家公共卫生间是做干湿分离的,排水管需要移位,地漏排水原先用的90度直角转弯,因开发商地漏排水都做了存水弯,要求汪工整改做存水弯,开发商存水弯用的是50管,担心有赌住的风险(女人洗澡头发丝很多),要求做75管存水弯,汪工也答应了,目前也正在整改。弱弱的说下,马桶排水是不需要做存水弯的,马桶自带存水弯
回复 支持 反对

使用道具 举报

该用户从未签到

 楼主| 发表于 2019-10-10 09:13 | 显示全部楼层 来自:江苏
4 {4 x1 R; s5 E' C

, M8 x. a" T" H# S) z& f昨天汪工过来做了打压测试,是合格的,还给两个卫生间水管包了静音,因我要求,厨房水管南阳台水管也包下
, r9 Y0 e' l7 A装风管机的师傅来,犹豫好久,到底要不要装个线控,(线控内心感觉高大上)想了好久没位置放,还是放弃,就遥控器用用吧
回复 支持 反对

使用道具 举报

该用户从未签到

发表于 2019-10-14 13:57 | 显示全部楼层 来自:江苏
估计十五万预算要超支很多了
回复 支持 1 反对 0

使用道具 举报

该用户从未签到

发表于 2019-10-23 12:10 | 显示全部楼层 来自:江苏
乐雅设计小门童 发表于 2019-10-14 13:571 ^6 D2 M1 ^, u9 |  l5 {+ |
估计十五万预算要超支很多了

5 B. @8 ?* C, y为啥?他们家是方案改动了很多吗?
- \9 y3 p6 P- J, Z8 Q1 K  s( C' P
回复 支持 反对

使用道具 举报

该用户从未签到

发表于 2019-10-24 19:17 来自手机WAP | 显示全部楼层 来自:江苏
有兴趣的欢迎来我们工地参观,目前瓦工已经做了大半,全部完工后业主会更新帖子。
回复 支持 反对

使用道具 举报

该用户从未签到

发表于 2019-10-24 19:19 来自手机客户端 | 显示全部楼层 来自:江苏
Yuki_alone 发表于 2019-10-23 12:10! F9 s0 L, y) x9 g
为啥?他们家是方案改动了很多吗?
6 `, x. J& @* `7 \4 i; U
大户型,含电器15万拎包入住肯定不够的,他家15万只能出个雏形。25万全部完工差不多。
回复 支持 反对

使用道具 举报

您需要登录后才可以回帖 登录 | 注册

本版积分规则

手机版|无图版|站务联系 | 商务合作 | 平台公约

信息产业部备案:苏ICP备05014191号-1 经营性ICP许可证:苏B2-20110445 苏公网安备 32060202000307号 © 2001-2019 0513.org All Right Reserved.

投诉争议 技术支持:第一互联 GMT+8, 2025-12-13 19:50 , Processed in 0.211932 second(s), 17 queries , MemCache On. 站点统计

快速回复 返回顶部 返回列表