濠滨论坛

点击扫描二维码

查看: 2527|回复: 0

中港翡翠城103㎡实景|这就是生活的味道

[复制链接]

该用户从未签到

发表于 2019-9-14 16:35 | 显示全部楼层 |阅读模式 来自:江苏
▎ 作品档案
+ }% Y9 F% H6 E. l楼盘地址:中港翡翠城) q4 J# ~" g/ c! ^+ K+ I
建筑面积:  103m2
. H0 J% w5 Z* G# u0 d装修风格:现代简约- \4 Q% J1 |; }# T4 r
设  计 师:张强
) T1 M9 ?+ {! H$ P/ C0 l: S
3 s* u' v. ?3 T$ n: [▎ 设计背景
' b$ [; ?; I. N/ b6 A这套房子是三口之家居住,在这日趋繁忙的生活中,渴望得到一种能彻底放松、以简洁和纯净来调节转换精神的空间,欲摆脱繁琐、复杂、追求简单和自然的心理。8 c3 S8 y* e( f1 B/ C( t& J
: U, ?6 q" {( f) F. o% r
▎ 设计需求
0 B( S5 `* Q% ^0 ~  @8 W①:需要充分的储物空间。
6 b  ~$ ^5 g. S. V6 d- u& f②:室内空间开敞、内外通透,在空间平面设计中追求不受承重墙限制自由。/ E: G8 f' H! L
③:充分利用空间,提高生活品质。
5 h' \8 C5 u" N: J  _$ w  q0 P( i+ l④:整体设计以人为本。
. @9 k% T; d% Z7 d: X( J
6 f8 [% t4 ]; |/ N; j3 ~6 z9 M; R▼ 原始户型图 4 ^) O4 r" v! H& d5 F+ e
1-1.jpg
+ }, v* \) Z8 j: C( ^. u# ]+ y% f& Y/ r8 w  e/ U8 \8 ?
▎ 户型分析
5 p7 ^; F5 [" w* g; m9 d①:原房型厨房隔壁空间利用率不高。+ y9 Z8 l6 d1 [1 ?9 J
②:原房型次卧空间不够通透。9 e7 F- b% s$ f$ F$ l2 K! z& f
③:储藏空间满足不了客户需求。
5 Q2 P0 J4 O7 w4 o0 ~8 t9 |$ {
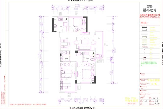
▼ 平面布局图
/ v& R7 J1 P  [# d/ W+ l; S 1-2.jpg
6 B+ i/ a! o3 I3 Y: a, ^* A
3 o& m! D  l% Q( i( S0 k6 v2 t▎ 改造备注9 O" Z# ^: {1 {' n% Y
①:将厨房隔壁空间改为北次卧。
) Z' F' w2 F2 ~4 O+ A. i) p9 T8 w②:将次卧室墙垛敲掉卧室南区做办公区。
) \7 I" P4 c( F③:将卫生间对面房间做储物空间,增加储物空间。
4 i( G7 E6 o) \+ b( T
- w, U7 P5 m# {9 H0 o! E# t6 n▼效果图
, Q# {7 I& P2 |/ R 微信图片_20190914152333.jpg . F7 C- z; J# x% ]: p
客厅墙面采用大面积优雅的灰色,与沙发的颜色相呼应,使得整体空间简洁又大气
" h1 W: q- W9 `8 g$ z+ x2 d a8ede60462116cc96fb866c358d52e9.jpg
* G. E0 R9 \: u8 Y/ W db09fa311305c30b58099c66c401fd9.jpg
4 y  y* x6 G. s( o) T6 t) {  k  R! D 微信图片_20190914152339.jpg / J' _/ S. z6 Z( s
清晨第一缕阳光打在原木色的床上,白色整洁的被单,暖色的房间在光线下显得更加温暖。
' \# J3 t' i. Z( o fa232bcc0a2878c8fd0309d75fbc508.jpg ( R3 p1 g8 m; E
由于空间较小,采用了榻榻米格局。利用平台的空间,打通墙体,做了一个榻榻米式书桌,方便以后小朋友学习使用。
. y  Q3 B2 [1 c. W. }6 v 111.jpg ( q7 B9 j2 v, g) D# Q0 A" L

: c/ T: _7 b; [7 G
; L$ v6 D1 S# [' P- C5 K南通0
您需要登录后才可以回帖 登录 | 注册

本版积分规则

手机版|无图版|站务联系 | 商务合作 | 平台公约

信息产业部备案:苏ICP备05014191号-1 经营性ICP许可证:苏B2-20110445 苏公网安备 32060202000307号 © 2001-2019 0513.org All Right Reserved.

投诉争议 技术支持:第一互联 GMT+8, 2025-12-18 12:25 , Processed in 0.155911 second(s), 13 queries , MemCache On. 站点统计

快速回复 返回顶部 返回列表