本帖最后由 南通华浔品味 于 2019-9-8 16:32 编辑 1 f+ K5 M* A. z* l
6 [; \- p; Q5 n& m2 m7 _8 B7 `- \
0 m4 K0 f& n3 e3 ?/ E3 l7 R* d: y
; ^* U. j6 o1 A9 X
5 x! F# k- \ B; L2 W/ a; u( n) Z5 g5 s8 R! u$ u N2 a
6 K% {; ^& u. D# |2 J
工程质量最大的保障就是不转包!
/ `) B7 [7 [+ p+ X3 X7 s6 V! [- J2 d
) f6 \* w8 {' n
4 F* ?( H: j. S3 Q
6 D9 @9 y& ^+ R. b' e) J4 z3 c
- S2 y; ~( s, [3 ]1 }5 Q) Q
7 Q# I, t) {; _
' e1 r- `' P. F7 m! j( V9 m  在这个特别的日子里,9月8日开工大吉,感恩,感谢华强城张先生及家人,选择华浔、信任华浔!我们一定会竭尽全力为您打造温馨而幸福的家!' ^) G& Y5 S( J& `5 B1 L( ?5 w5 D
b4 o5 }; H4 ?/ b. `. M# s
设计师简介—— & N% C4 p) F' e5 a& C8 R+ h: ?
华浔品味装饰首席设计师王海林
1 q( |/ S4 M: h7 T; x/ E' a
, N2 M7 X% y0 C+ w& |4 k' N8 [
w. K# s4 _: D A/ q
原始图▼▼ / K' [) l6 q( h
) X# u5 f3 A; W5 e1 x
- S+ Q) b$ h# K$ S" O Y
% a `- [/ a8 f" K% m- z
5 g2 U0 S" F. S6 V * ^1 k& g2 W) e$ [. @
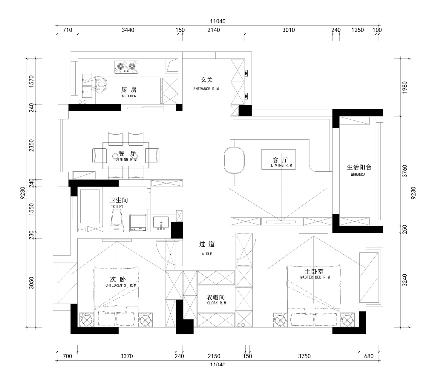
平面方案▼▼
, F4 h0 i( [! |/ F6 k8 ~ t9 } 5 L0 h' @% Q, W3 [1 z. }
$ _0 c- q+ H1 W$ `/ k
案例效果图▼▼
5 Q. t& [% R5 r9 c
8 ]. |; e% v& `6 D3 p+ j客厅 餐厅 卧室 卧室
) ~0 n* _( _+ r) {+ |7 g/ H' m
. K/ H" Z4 ]. N3 G
点击以下链接360度旋转无死角效果图 1 [: }5 I9 v+ h7 n, v. Z `+ [
https://yun.kujiale,coм/design/3FO4GYYQT52O/airoaming?kpm=9V8.7b170e2c6d9eaa42.261b1bf.1567680212853&from=singlemessage&isappinstalled=04 W4 C' _: o8 w0 d$ j! ?( V
亲爱的业主:( Z2 H& D, G5 K+ U+ M+ U
不管您准备今年装,明年装、后年装,如果您希望能够拥有一个温馨、美观、环保、健康、时尚、舒适的家居环境,请您百忙之中抽出时间前来“华浔”,亲身体验“华浔”专业的设计理念,专业的施工团队给您带来的与众不同的感受!
; h/ [- I0 M: J% K$ v! b' Y2 e- w1 C
为了您的消费权益请选择正规有装修设计资质公司进行装修。8 m' l' v3 O$ v* ]3 {
一切家装都是为了完成一个梦想,华浔将为您圆梦。
9 d( ~ s. N% i0 G' W% X3 d5 x! C9 v4 L) h- {* x0 @ H
* l1 V4 j4 w' Q欢迎来我的空间看我,每天都有案例更新,海量的实景,N多的装修宝典,保证亮瞎你的眼球。。。。。。猛戳,戳, 各种风格参考,海量实景图,各种创意方案戳,戳戳,戳戳戳。。。。。。。
5 i6 f/ n4 ?6 b南通华浔品味装饰官网:http://nt.hxdec,coм/欢迎大家登入,更多了解南通华浔!
2 B1 }+ B, y& ^* y/ ] n8 F关注微信公众号会有更多的惊喜☝☝☝☝☝ 南通0 |