本帖最后由 南通华浔品味 于 2019-9-8 15:28 编辑
0 F/ p" R; A- a8 |0 s! b( U* @/ `' w/ u4 G
1 O. D: m0 R0 e3 F
& B: d2 m m+ c5 W6 W7 N
. D( d/ d- a) ]! b K工程质量最大的保障就是不转包!
q) k! V/ D, U( w8 Q 5 O: m& Z% y2 l% D
5 H5 J p& M L0 x$ o  在这个特别的日子里,9月6日开工大吉,感恩,感谢华强城张先生及家人,选择华浔、信任华浔!我们一定会竭尽全力为您打造温馨而幸福的家! X1 g9 A) t5 F. a
! D) w9 j5 _ I9 W: y6 g' L: S设计师简介—— 华浔品味装饰设计总监张佐彪 2 E; N/ g( c# X, j( D9 X) F/ }
原始图▼▼ B: ^. h3 _- k, O6 d9 m
, ^6 w: u& i) n- o
# e( r* m: H7 @) s( p
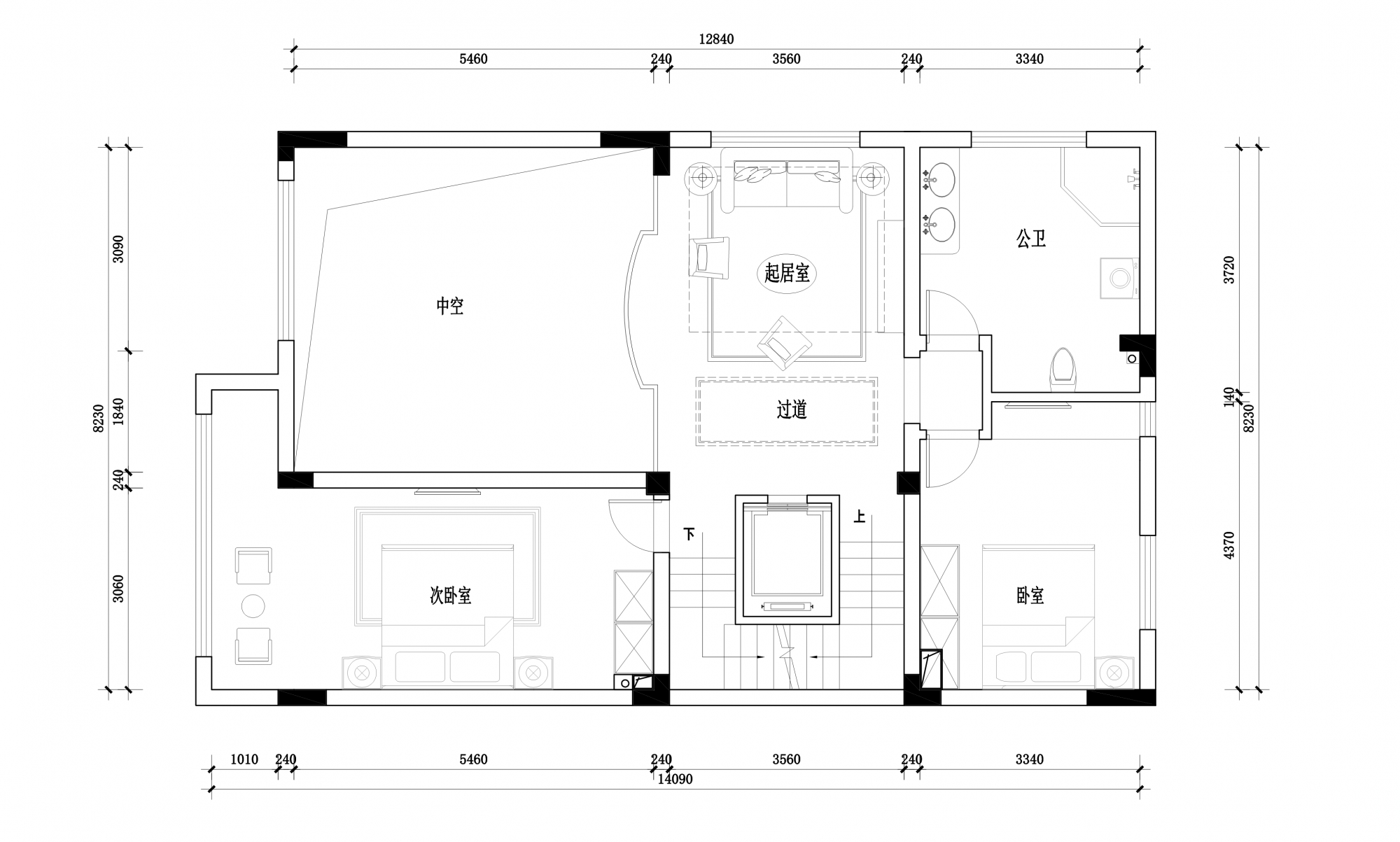
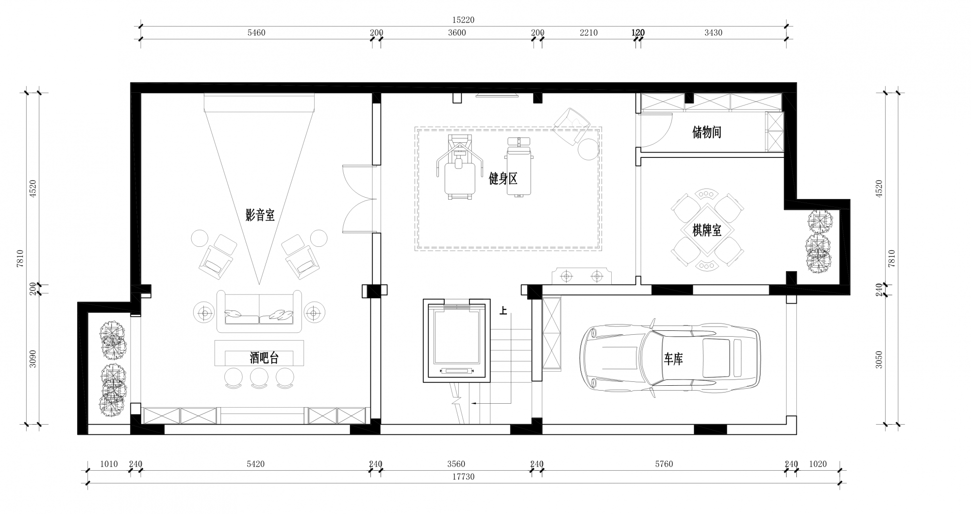
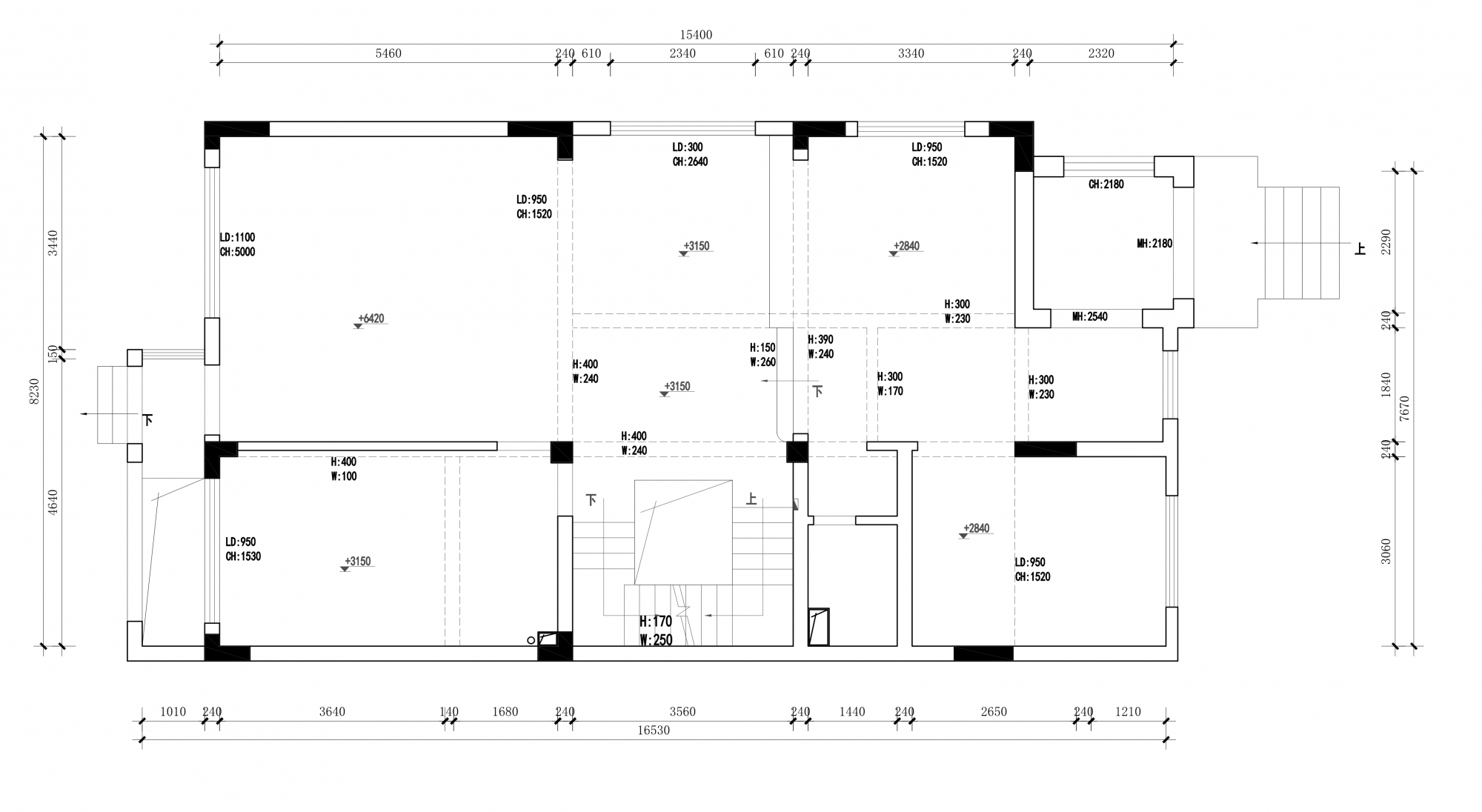
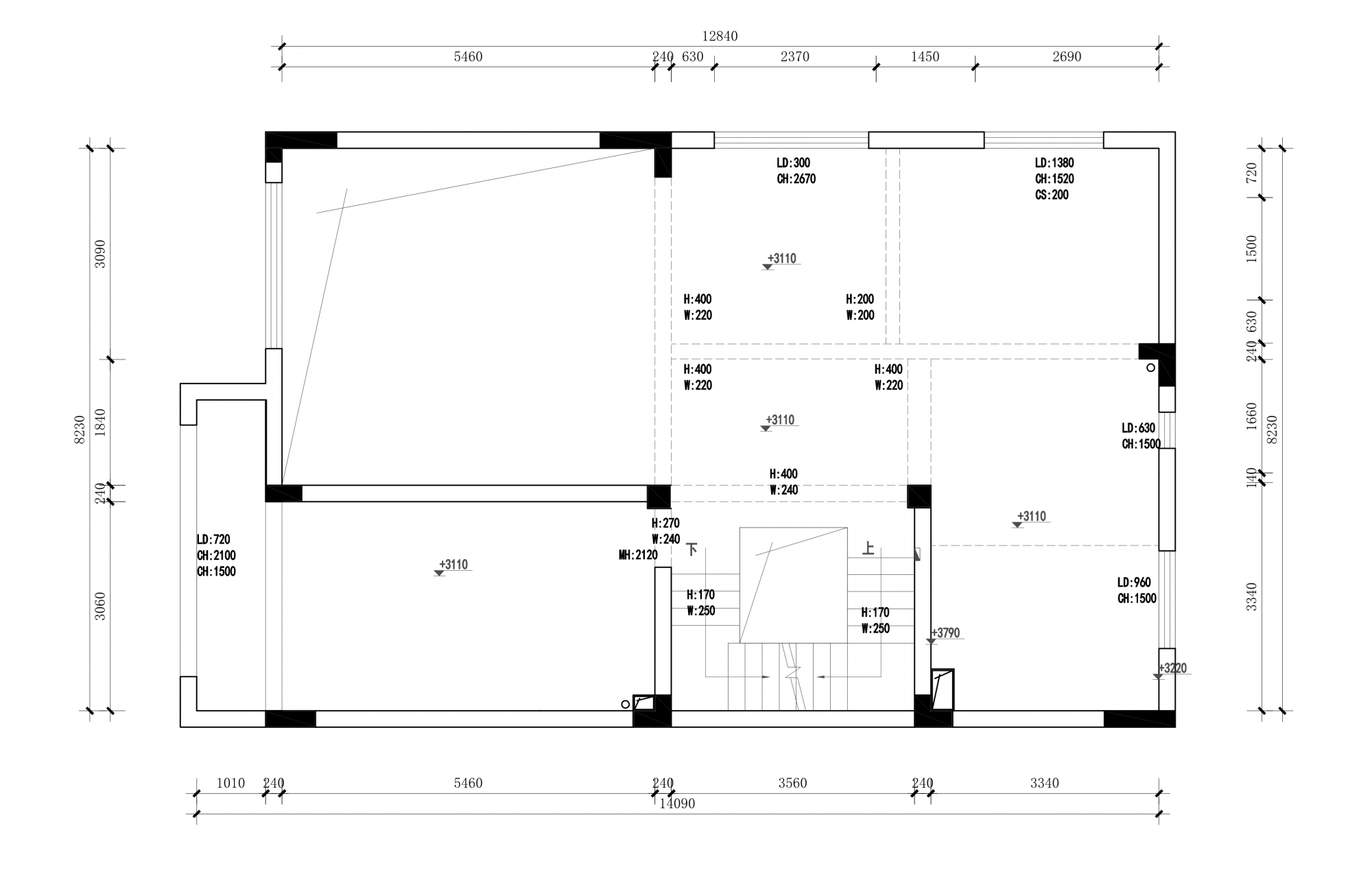
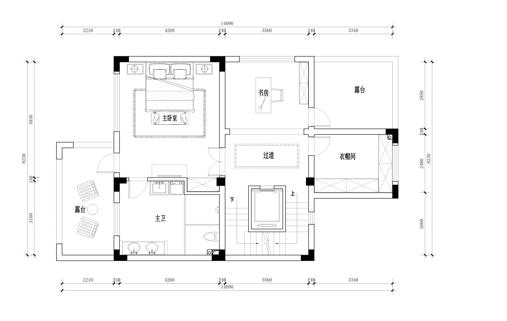
平面方案▼▼ 4 S: p7 r. [# r; h+ u% F) ]
+ G2 C; b& e$ U5 l3 X5 ^- m, c
- c( N. K5 D1 \( D5 i
案例效果图▼▼ - p! D. p" I4 M0 f, T; n8 N
客厅电视机背景 客厅沙发背景 餐厅 厨房 起居室空间 起居室空间 主卧室 次卧室 书房 卫生间 衣帽间 玄关 " j2 b" |- c, `9 N$ b% d* I
点击以下链接360度旋转无死角效果图 https://vr.justeasy,cп/view/5544646.html?from=singlemessage&isappinstalled=0
& \9 b4 r# i+ G! o3 A4 y! P亲爱的业主:
. d9 M H1 [! M3 c9 M. h2 Q不管您准备今年装,明年装、后年装,如果您希望能够拥有一个温馨、美观、环保、健康、时尚、舒适的家居环境,请您百忙之中抽出时间前来“华浔”,亲身体验“华浔”专业的设计理念,专业的施工团队给您带来的与众不同的感受! 1 X! m+ z# y+ B& g: G; D% P' N$ ]
; z0 L1 M I) }3 T. Z5 p# i. n 为了您的消费权益请选择正规有装修设计资质公司进行装修。
/ K" K3 P8 _: i 一切家装都是为了完成一个梦想,华浔将为您圆梦。 + t; s4 A6 j& O- k1 D# u
- o/ T! I+ e+ D- D5 h8 K1 u
3 k; |! ^; f$ B. z+ h
欢迎来我的空间看我,每天都有案例更新,海量的实景,N多的装修宝典,保证亮瞎你的眼球。。。。。。猛戳,戳, 各种风格参考,海量实景图,各种创意方案戳,戳戳,戳戳戳。。。。。。。 0 [6 j2 d" R z* x
南通华浔品味装饰官网:http://nt.hxdec,coм/ 欢迎大家登入,更多了解南通 华浔! C- H; p2 G- x* h8 {3 _
关注微信公众号会有更多的惊喜☝☝☝☝☝ # c% Z- c) F) [6 ~' j J: [; G
南通0 |