濠滨论坛

点击扫描二维码

查看: 133734|回复: 8

印象水仙 | Sweet Confessions—马卡龙色系,115㎡现代北欧风

[复制链接]
  • TA的每日心情
    慵懒
    2014-6-28 08:44
  • 签到天数: 9 天

    [LV.3]偶尔看看II

    发表于 2019-8-25 14:38 | 显示全部楼层 |阅读模式 来自:江苏
    8 d9 Q- Q8 o9 Z8 c6 N  D
    , k5 |7 `" R) k5 K2 ?' Y
    FB0A9535_副本.jpg

    $ C- C! Z/ Q0 [+ p1 U% S) p1 E# b
    马卡龙の告白
    % H' w) w7 f/ ?( l无法不爱的颜色9 ~9 I$ |9 k/ Q5 A5 C; {6 C/ R! b
    " u, q, s7 o: l  J$ J$ B: j1 t( j
    这个夏天! W& v! a3 \3 A; `9 B5 r+ P
    我做过最浪漫的事/ Z: i2 g1 @8 O7 `) n& J
    便是成全你的文艺梦
    ( I8 s( ~3 _) L2 k1 b# c, E" G4 ?$ i& i) h
    「 合   影 」
    FB0A9299_副本.jpg
    4 u+ S4 u; C6 h9 }+ M9 g- q' h& Z
    本案业主是非常幸福的一家三口,女业主是一位心灵手巧的妈妈,热爱手工,偏爱甜美的粉色调,期望新家是温馨明亮充满爱意的。对于空间设计,既要满足年轻夫妻对时尚的追求,也要满足小小萌娃的天真童心,所以设计师在客厅和儿童房融入了较多的色彩。局部浅色基调能让空间更加开阔整洁,为了将现代风格的设计感融入空间,设计师在灯具上也下了功夫,整体的软装设计,展现出现代居室的魅力。

    3 b" N: m, p9 t# @& l
    户型:三室两厅一厨一卫
    风格:115㎡现代北欧风
    硬 装 设 计:印象水仙
    软 装 设 计:印象水仙
    施          工:印象水仙
    - _3 p2 P# z; b6 m6 E  I5 j- V: I6 Q
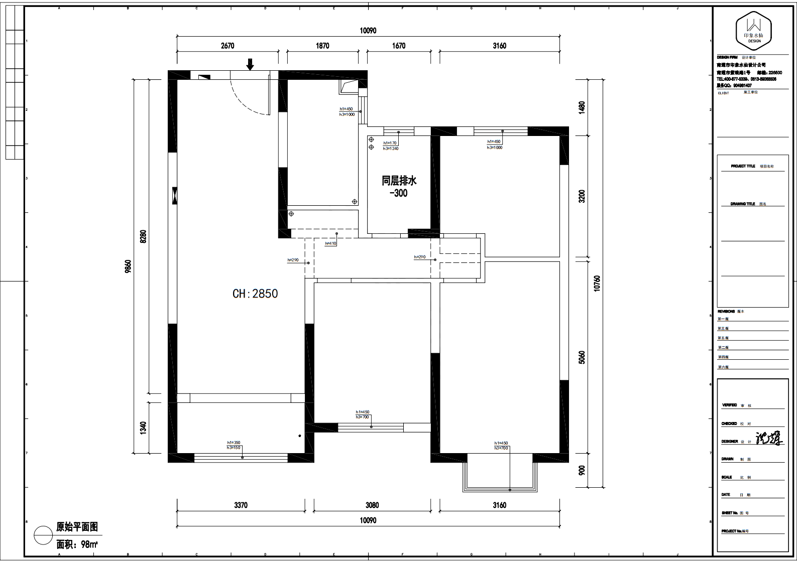
    「 原始结构图 」

    0 G: B* A7 x6 R; ?# b 启东平面_00.png
    % I0 G& L$ @# }/ N
    . y+ Q! v! p- m& w% }
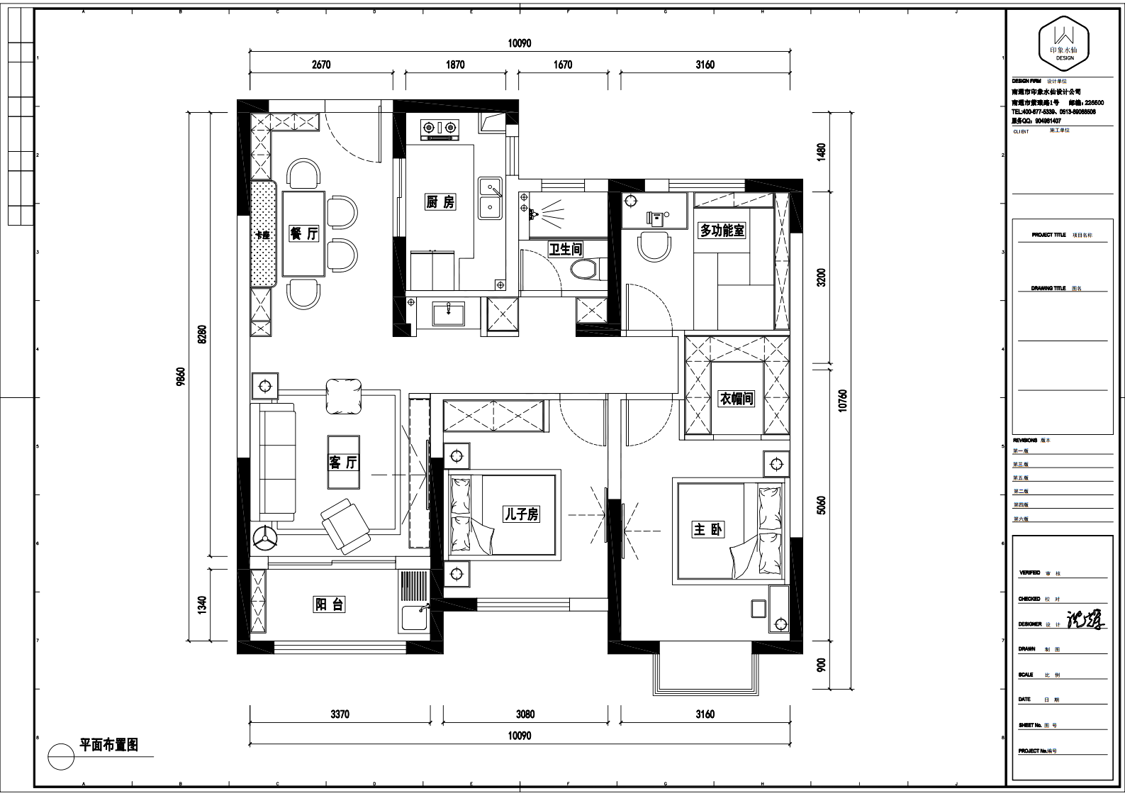
    「 平面方案图 」

    , Z* I8 C, _/ p6 l
    启东方案_00.png
    - g& q% c) l' y
    「 三维展示图 」
    : ~  b! G9 ^- [- v
    914ecf61948fd91501d311b4777ac9c.png

    / q0 ?2 J& U$ }6 V6 Q
    33c2640e35329763431902e454f840c.png
      A9 X* I5 Y5 L2 a& j% U3 z+ v, ~. H' A
    f77e82cb832fe4d3fb5fb2c09e35e6b.png

    / @1 c; h5 G5 `3 q) ~$ d% }
    客    厅
    - P" b% G; j) R: Q
    FB0A9515_副本.jpg
    # G$ M& w# B5 B# a1 r3 |! |! q
    FB0A9509_副本.jpg
    3 X" b4 Z3 ?6 ~8 R6 b9 t& p8 y
    FB0A9539_副本.jpg

      F  c3 v$ M& v( q/ y/ ^' y
    客厅地板在暖白基调的对比下,尽显优雅;浅灰布艺沙发,使整体空间显得素雅而生动,借着阳光的惬意,享受着生活的情致。背景墙金属框挂画也为空间增色不少,白色置物柜设计的电视背景墙,没有做任何多余的修饰,粉色单人椅及软装小物时尚精致,浓浓的北欧小资风氤氲而生。
    1 V/ V& W$ C, |; l% M! S
    FB0A9555_副本.jpg
    ) [% C2 V- f9 I* k, ?
    FB0A9472_副本.jpg
    , O: R2 ?- H1 g
    绿植点缀极具生机,可爱色调的多层次运用,空间的线面结合,时尚温馨。. @: e9 P; S- z1 ^2 R' A
    0 \7 r- f9 N7 ]
    FB0A9479_副本.jpg
    . Y) w4 Z: \9 z
    1 N5 G+ a% S9 w! n0 Z! f* B阳    台
    3 J- _" N# d! g( Z" T! o* h7 Z
    & r5 B" X0 B9 Q5 }+ R  P  N1 @, d* V
    FB0A9547_副本.jpg   l1 z! b" q( Y2 G5 A7 H2 E: V
    1 e' k. {  X9 G: p. V
    阳台的色彩很简单,黑色与白色的结合,简约大方,上下置物柜增加了阳台的收纳空间。
    - e& j  h: k" R0 I& ^8 S* @, A
    过    道

    ' Q' N& n1 c, z! d/ P
    FB0A9306_副本.jpg
    8 Q- t/ Y% d: t/ D; \  u( M* M
    过道,马卡龙色系的壁画,瞬间让单调的墙壁有了一些艺术氛围。

    4 k, e+ ^1 e/ c
    餐   厅

      t: h" g+ {& ?+ o
    FB0A9564_副本.jpg

    $ z: B5 @  h( C9 t% q3 n
    餐厅在厨房旁边,用餐与烹饪增强了交流与互动,也使空间更具通透感。回家推开门,玄关柜利用转角设计了卡座,充分利用空间、提供收纳功能的同时,也制造了这一角落的小浪漫。墨绿色的门板个性颜高,黑白色的餐桌椅,简约中不失精致。
    ; t: T* i) H' h$ T# T1 G) R: b
    FB0A9556_副本.jpg
    . X& K' J/ j7 Y9 m
    整体空间以清清爽爽的色调,让空间充满鲜活的气息。
    厨   房
    : D+ E* ~1 ^* H! E$ K4 b
    FB0A9608_副本.jpg

    " g; K4 Z" L* u7 u' S
    白色墙面格外澄净,黑色橱柜增加空间层次感,让小空间的厨房拥有高级的视觉体验。

    " l( ?- D* l7 q) {
    主    卧

    / K4 \  c7 G: r  N. V7 u
    FB0A9343_副本.jpg
    4 E# a# D/ v1 A* P) G6 W
    主卧采光很好,充足的光线从窗户洒进室内的每一角落,深蓝色的背景墙,也为屋主的睡眠空间提供更为静谧、安宁的气息;金色壁灯结合有趣的橙色与浅色元素的加入,增添睡眠空间的温暖感,让生活的每时每刻都能充满朝气。
    1 ^: y; i7 S8 N  L/ o  R% }0 g
    FB0A9340_副本.jpg

    % \! d3 X  D6 N/ E
    把喜爱的色彩藏在空间里。
    3 q' ^. Q3 Z% n- u: `* r3 @
    FB0A9360_副本.jpg

    ' `" v3 e, c5 c* `- F$ M* g0 R2 |3 E' b8 R
    儿 童 房

      [( e, j6 h5 \+ _; E
    FB0A9453_副本.jpg
    ' q6 n% k0 r/ W' J$ O
    儿童房依靠卡通艺术墙纸的点缀,搭配个性的拼色大床,让空间充满活力感,也能感受到更为美好的活力感。
    & E* p. z6 J0 h6 I8 I! z
    FB0A9449_副本.jpg
    $ s! t# E& ~# t8 H6 R
    书    房
    2 W& W0 P# ^5 y* U6 {+ Y9 H$ C/ D
    FB0A9394_副本.jpg

    $ e* U; a+ T4 }
    无论是闲暇的午后,还是宁静的夜晚,书房总是填补空缺的港湾,卸下整天工作的疲惫,阅一本好书,赏一部电影,悠然自得。白色的墙面,深色点缀,大大小小的相框,生动了呆板的墙面,充裕的自然光线,明亮而不单调。
    # F6 F8 A" M+ g& w, K
    FB0A9398_副本.jpg
    4 ^8 L& o3 f5 v
    卫 生 间

    ! [0 ~. }8 u% L8 ]( d
    FB0A9432_副本.jpg

    2 Z- n$ o4 [' h6 H( v
    卫生间做了干湿分离,干区的色彩格外丰富,整体空间上即注重功能性又保留了美观性。
    : B. _) P" u8 w/ r
    FB0A9403_副本.jpg
    2 i% ~5 y! X% i7 D: _# I

    - z6 F+ Q" Y% L" i5 R$ L

    $ G3 B' k  [5 J+ K; }5 ?% J+ b南通0
    匿名
    发表于 2019-9-7 17:51 | 显示全部楼层 来自:江苏
    提示: 作者被禁止或删除 内容自动屏蔽
    回复 支持 反对

    使用道具 举报

  • TA的每日心情
    慵懒
    2014-6-28 08:44
  • 签到天数: 9 天

    [LV.3]偶尔看看II

     楼主| 发表于 2019-9-8 10:18 | 显示全部楼层 来自:江苏
    **** 作者被禁止或删除 内容自动屏蔽 ****
    8 A+ t9 ]9 Z7 R, D6 v! c+ P1 m
    后期装修记得找进进咨询哈,电话、微信:152627679688 n; b9 z7 h: ?7 k  @/ f
    回复 支持 反对

    使用道具 举报

    该用户从未签到

    发表于 2019-9-17 11:14 | 显示全部楼层 来自:江苏
    好靓的颜色
    回复 支持 反对

    使用道具 举报

    匿名
    发表于 2019-11-21 10:59 | 显示全部楼层 来自:江苏
    提示: 作者被禁止或删除 内容自动屏蔽
    回复 支持 反对

    使用道具 举报

  • TA的每日心情
    慵懒
    2014-6-28 08:44
  • 签到天数: 9 天

    [LV.3]偶尔看看II

     楼主| 发表于 2019-11-23 11:14 | 显示全部楼层 来自:江苏
    **** 作者被禁止或删除 内容自动屏蔽 ****

    0 y6 s: K$ M' T3 S# I他们家装修总费用在30万左右哦,在印象水仙选择的全托设计加半包
    回复 支持 反对

    使用道具 举报

    匿名
    发表于 2020-3-10 17:30 | 显示全部楼层 来自:江苏
    提示: 作者被禁止或删除 内容自动屏蔽
    回复 支持 反对

    使用道具 举报

    匿名
    发表于 2020-3-11 16:39 | 显示全部楼层 来自:江苏
    提示: 作者被禁止或删除 内容自动屏蔽
    回复 支持 反对

    使用道具 举报

    匿名
    发表于 2020-3-13 10:59 | 显示全部楼层 来自:江苏
    提示: 作者被禁止或删除 内容自动屏蔽
    回复 支持 反对

    使用道具 举报

    您需要登录后才可以回帖 登录 | 注册

    本版积分规则

    手机版|无图版|站务联系 | 商务合作 | 平台公约

    信息产业部备案:苏ICP备05014191号-1 经营性ICP许可证:苏B2-20110445 苏公网安备 32060202000307号 © 2001-2019 0513.org All Right Reserved.

    投诉争议 技术支持:第一互联 GMT+8, 2025-12-15 23:03 , Processed in 0.236625 second(s), 24 queries , MemCache On. 站点统计

    快速回复 返回顶部 返回列表