濠滨论坛

点击扫描二维码

查看: 3586|回复: 0

{皇家花园}143㎡——静雅新中式,风韵自清逸

[复制链接]

该用户从未签到

发表于 2019-8-7 16:01 | 显示全部楼层 |阅读模式 来自:江苏
, M2 z+ C5 t. f0 \' u! o

: q' ~( t5 l9 E
汪曾祺曾说,“生活,即生之乐趣" ”。所有的房子都有沙发和床,但生活在其中的人,有自己的热爱、品味和生活方式,也有自己的故事。这些,才是真正独特和生动的。
$ R* ?2 X/ ]! Y5 }
楼盘地址:皇家花园
楼盘楼号:22号楼
建筑面积:143
装修风格:
计 师:夏波

' Q, R' D' Z  z! h% i/ Q
. t7 `  K9 a4 _/ W$ o/ j$ l
设计背景
客户背景:
业主在杭州做生意喜欢中国古典文化。家中成员有女儿、儿子是其他客户介绍的

( M4 s2 U: A6 h" N, F4 |
" s6 A5 a+ L, Z
设计需求
# i* I2 V" S* W1 V5 v
:主卧给儿子住,保留内卫需要一个书房。
② :经常会有朋友做客,装修品质要有保障
③ :喜欢庄重典雅的中式风格

# [8 ~% T- B" d# k
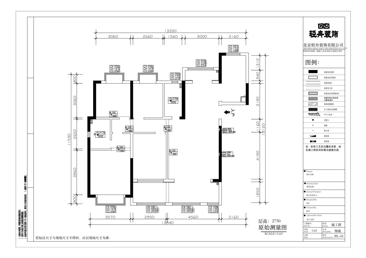
原始户型图

6 C- n) {  o% x! @4 L9 |; m6 l
原.png
) l9 K. s' f  s, p  a# C
户型分析(照户型图说话)
/ ~( r6 S+ O3 e" M; v/ J0 S
① 餐厅的位置太小,北阳台难以利用
② 主卧太小,南次卧太小
③ 北次卧太小
6 k% x; p  p5 z3 q: r5 G% }6 U
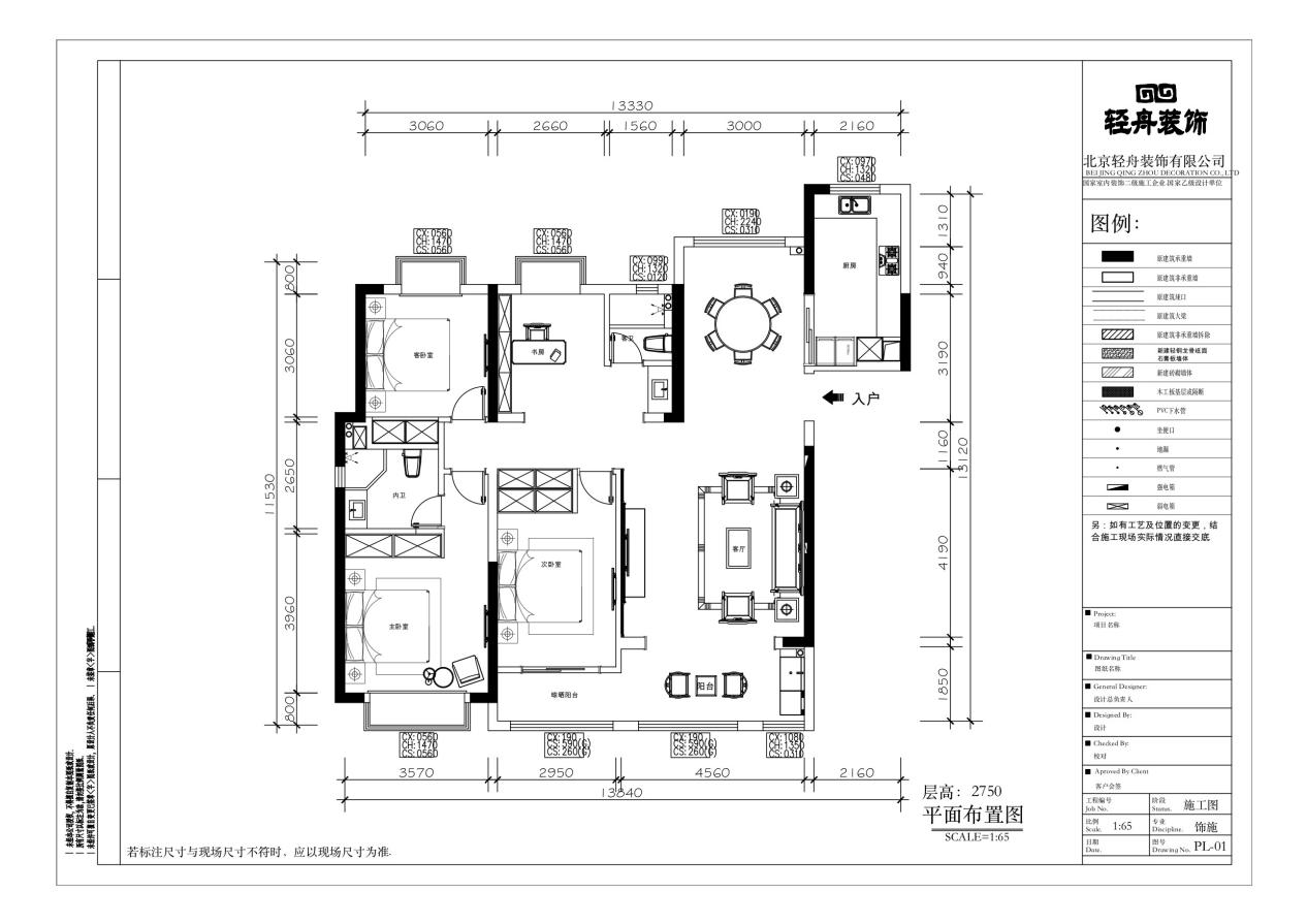
平面布局
4 e2 u7 r5 I8 V3 j
平.png
改造备注(照方案图说话)
① 把北阳台跟餐厅打通,扩大餐厅面积
② 茶室设计按业主要求进行设计,
③ 主卧内卫稍加改变,增大主卧与次卧面积
④ 次卧阳台缩小,增大次卧面积
: Z. A( V( ?2 O: }0 x4 a
效果图
客餐厅1.png
# D. ]( y8 E0 j; ~/ J
客餐厅2.png

+ J( h' `  I: F% v, S6 o. }
书房.png
本方案的亮点:
进门门厅设计巧妙,鞋柜储物柜多功能,餐厅、门厅、客厅较为整体,客厅沙发背景木作配以灯带,时尚有质感。这个也是客户最满意的地方。茶室做成开放式使茶室档次提升,一组定制书柜可以摆放各种不同类型的装饰,彰显主人的品位

3 r& x9 ?3 ]* i3 o南通0
您需要登录后才可以回帖 登录 | 注册

本版积分规则

手机版|无图版|站务联系 | 商务合作 | 平台公约

信息产业部备案:苏ICP备05014191号-1 经营性ICP许可证:苏B2-20110445 苏公网安备 32060202000307号 © 2001-2019 0513.org All Right Reserved.

投诉争议 技术支持:第一互联 GMT+8, 2025-12-18 22:14 , Processed in 0.151484 second(s), 12 queries , MemCache On. 站点统计

快速回复 返回顶部 返回列表