濠滨论坛

点击扫描二维码

查看: 6563|回复: 5

【润居装饰】--王梁【骏和棕榈湾88平】6.18--地面美缝

[复制链接]

该用户从未签到

发表于 2019-8-3 16:51 | 显示全部楼层 |阅读模式 来自:江苏
# ]7 S' _, v% Q" b/ D2 v: G9 u$ ~7 v5 ]5 ?' }" |. y% o6 g3 X
早晨起来打开窗,心情美美哒,开工开工啦,心情美美哒

' ^4 p- Y0 J2 a
开工.jpg

& q& {& ]# e* L+ l7 E
8 n# b# H$ W( |1 e- w
微信图片_20190803162914.jpg

* y1 M' e  O) X" v
原始结构图
, N' X) u; u8 i( q: ^' O7 t1 ^* w

) [) t; W7 O! i  @8 v# R' ?, h
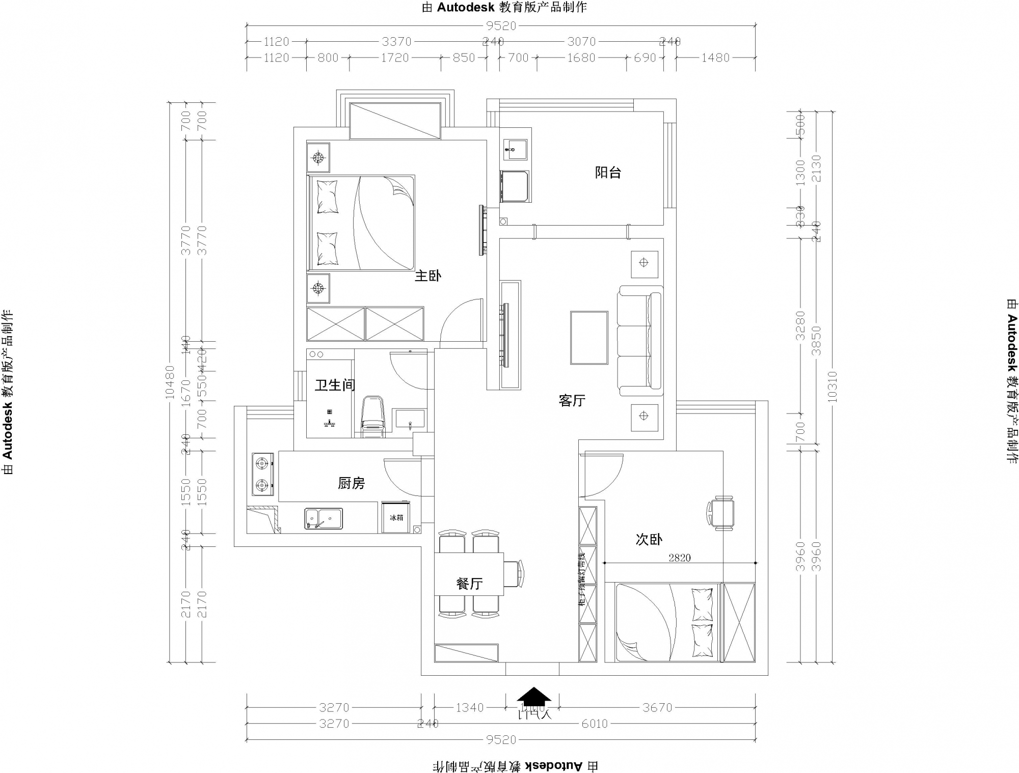
微信图片_201908031629141.jpg

$ L2 W# N6 s( J5 Y! e
平面布置图

3 P' @0 B- I1 @* z' O( }& v. t+ g; u2 i9 D6 @  w- r
15-3007二维码.png

$ D+ P! x  U& t. o- }: w% p
扫码查看全景

  e# F/ O5 s9 ~% N0 {* j4 X南通0

该用户从未签到

 楼主| 发表于 2019-8-9 15:11 | 显示全部楼层 来自:江苏
# |  s' A& C2 W4 E$ \
# ^# Y: D4 N5 L" ~) r
微信图片_2019070414404310.jpg 微信图片_20190704144043.jpg 微信图片_201907041440432.jpg
# Q6 E2 d) n. F4 N/ u% }" m
水电验收

4 Y; j" a# k# @* }% R
) s3 o: e. G  f, e/ u
回复 支持 反对

使用道具 举报

该用户从未签到

 楼主| 发表于 2019-8-9 17:00 | 显示全部楼层 来自:江苏
微信图片_20190809162804.jpg 微信图片_201908091628041.jpg
7 H( s& V1 R# M2 _$ O
木工进行时

/ i  m4 Q: `5 \; P/ {' N1 h" e+ e9 B5 e; e7 d
回复 支持 反对

使用道具 举报

该用户从未签到

 楼主| 发表于 2019-8-9 17:01 | 显示全部楼层 来自:江苏
微信图片_20190809162805.jpg 包管子7 S0 k! r4 ?3 [' Q& n3 a$ K3 H
回复 支持 反对

使用道具 举报

该用户从未签到

 楼主| 发表于 2019-8-9 17:38 | 显示全部楼层 来自:江苏
瓦工贴砖完成

5 I/ ~7 c; J0 t2 m
微信图片_201908091700372.jpg 微信图片_201908091700371.jpg 微信图片_201908091700375.jpg 微信图片_2019080917003710.jpg

# e8 M" Z  m5 g' n. f5 K% i  F  z
回复 支持 反对

使用道具 举报

该用户从未签到

 楼主| 发表于 2019-8-18 10:33 | 显示全部楼层 来自:江苏
油漆开始啦
) I& A7 t. W( J1 C
微信图片_20190818102808.jpg 微信图片_20190818102814.jpg
) {: T  ?6 c) q0 O$ w& D- c/ e2 ?
回复 支持 反对

使用道具 举报

您需要登录后才可以回帖 登录 | 注册

本版积分规则

手机版|无图版|站务联系 | 商务合作 | 平台公约

信息产业部备案:苏ICP备05014191号-1 经营性ICP许可证:苏B2-20110445 苏公网安备 32060202000307号 © 2001-2019 0513.org All Right Reserved.

投诉争议 技术支持:第一互联 GMT+8, 2025-12-18 12:24 , Processed in 0.143498 second(s), 13 queries , MemCache On. 站点统计

快速回复 返回顶部 返回列表