- 阅读权限
- 255
- 精华
- 最后登录
- 1970-1-1
- 在线时间
- 小时
- 主题
- 好友
- 相册
- 分享
- 日志
- 记录
- UID
- 802863
- 帖子
- 0
该用户从未签到
|
" g$ J" A) E+ p) @) D
- A; [4 r& u' c7 W/ S
在28这个“爱发”的日子里我们开启装修旅程
3 B- K2 \4 C$ E* p0 g4 X& |
# ?5 |; `; B' i6 W7 j5 Q) H/ ?9 e& L: {: q
. _; `, g. }0 [$ @! u! p
1 y1 I/ B4 A% [, W0 {
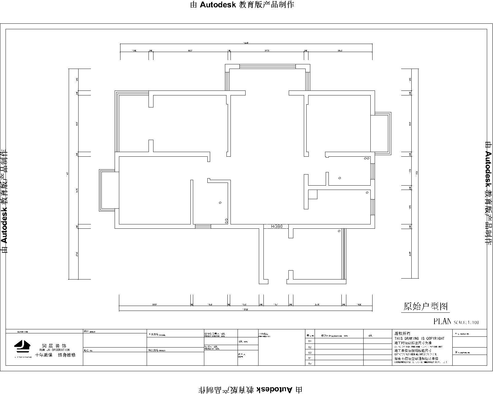
C2 w; C6 g7 W7 n/ H, L原始结构图
. Q' X4 `9 ?7 p* m% V/ i7 V5 Z( o# {. d
. k5 ]3 x1 T0 B
( |( Y9 X( p4 A平面布置
- j% J1 Z( Z2 y
9 `$ |" I0 y* |# I; I. k% A/ ^6 {9 @
客餐厅效果图
- C4 J+ B0 r; x4 z3 b
; b0 o4 {4 ], i* v4 D2 E+ B V/ p
# P8 b1 l, \2 ^+ c" K% c扫码看全景
* Q U" p. i2 D% `6 N# W8 ?9 L/ {) p1 x9 I" R0 y
, K5 P/ O4 m# N$ L5 N% Q
南通0 |
|