- 阅读权限
- 255
- 精华
- 最后登录
- 1970-1-1
- 在线时间
- 小时
- 主题
- 好友
- 相册
- 分享
- 日志
- 记录
- UID
- 802863
- 帖子
- 0
该用户从未签到
|
3 ?) M" v7 o( _; {! q& s+ c
2 c7 B4 C: ?) }0 o* @9 C5 s7 f
我们抓住了7月的尾巴开工啦 1 d% F2 J7 w" s' v* W! b
) d* b2 {5 B# ?$ q. m7 [0 a
% r4 `( a9 W1 C3 c1 v8 x- t# p
# x8 \% V) i5 X* F& d5 `- U6 P& C
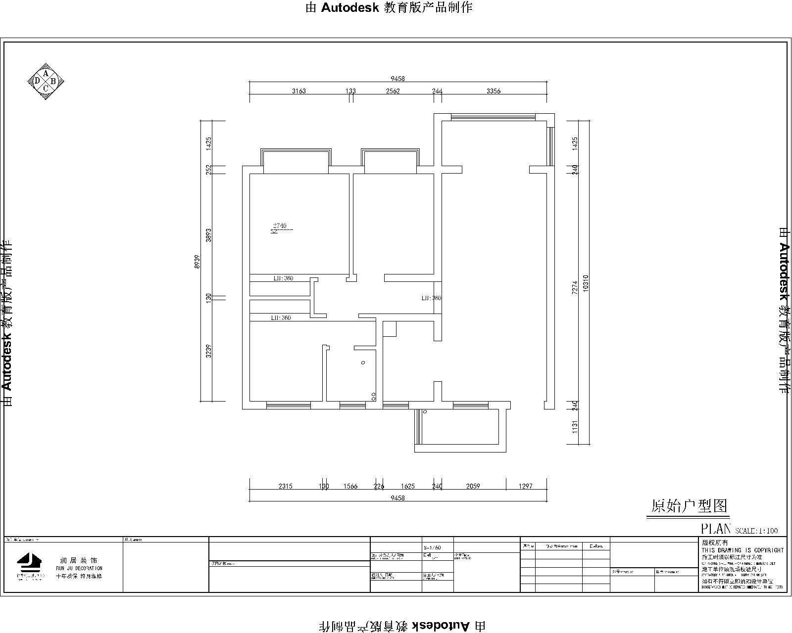
原始结构图 8 ~7 W, g, e: x3 i6 u* ^' M
( t. P( _1 d! d: W% H$ h" Z/ `* \- r) _: C% B% [: O) J6 P9 J h g
/ z2 G5 r5 x$ `5 P, v
平面布置图
: C5 |3 b# N: |+ {
2 O1 u2 [7 m: T5 Z5 S c( x, G7 c* ^0 i9 v0 b( i. C; o. B" A
客餐厅效果图 8 u" w, O% c4 b
; O. \' L) `3 _6 i; O, U3 ?
# g/ a5 B2 \7 P4 n$ f扫码看全景
: ]) \# P9 E; h- M1 v
4 N9 T6 t6 \' R$ v南通0 |
|