濠滨论坛

点击扫描二维码

查看: 3280|回复: 0

[好来居]首席设计师——【戴新风】个人简历及设计作品

[复制链接]

该用户从未签到

发表于 2019-8-2 09:54 | 显示全部楼层 |阅读模式 来自:江苏
5 c" e5 d- d/ `& s3 r
6 S( N! }0 N, F. H" }  ?- i
微信图片_20190802094328.jpg

( A7 d0 Z! B2 b/ r/ v
案例档案:

0 Z. d4 B9 A: o( \' D
项目地点:江苏 南通

4 M% [7 ]/ {  v7 g5 [" _
项目名称:万濠世家

$ P: y9 r- y( H# M( K: d$ u
主创设计:戴新风

5 ~1 R2 _+ Z) |, n" u
项目面积:166㎡
$ i( h% L$ N$ U, j+ p
项目风格:简美风格

9 ?) x/ K1 H& n' x, |8 C
设计师说:

: Z. f, X5 N8 _; g' i) Z5 f* s
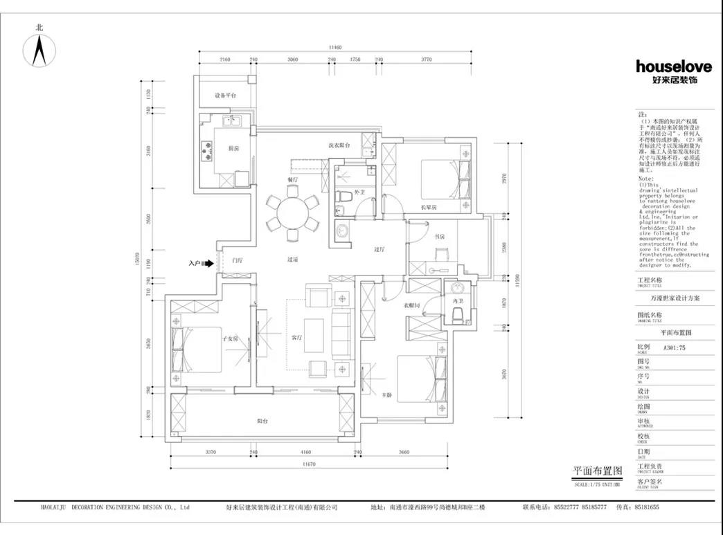
本案为四房两厅两卫一厨,南北通透。空间较为规整,进门有独立的玄关区域。将后阳台并入餐厅区域,餐厅划分出部分空间,设计了一个吧台酒柜区,满足了厨房功能的补充。主卫生间缩小面积,只保留马桶和脸盆,去掉淋浴区,多出空间做储物柜,满足了储物的需求。. M* Y2 R  Q, w# _* I
本案融合了美式的自然脱俗和法式的精致典雅,通过高纯度的色彩,木饰面的点缀,使宁静而又精致的品位生活得以诠释。: J; g& @3 X, ]( j1 B
4 A5 L: t1 _- n. K
平面布置图:7 y9 Q, \& Z! x: [% u

% \5 u" P- q3 L  S$ I; P6 B
平面.jpg
+ v% p5 H3 a% }
效果图:

' p+ ~7 _7 O3 E3 w  q" x# r
设计师将后阳台并入餐厅区域,餐厅划分出部分空间,设计了一个吧台酒柜区,满足了厨房功能的补充。整体设计既能满足储物,又能体现品质。0 N) F! S- Z" c  {6 R6 Y

8 X" u+ X: d  m- a
客餐厅.jpg
$ Z5 B7 J; ^' y3 x7 K: Q* ~8 L
多种色彩让客厅变得很独特,但却不会别人庸俗的感觉。宝蓝色沙发搭配原木茶几,既有美式的清新,也散发着丝丝的怀旧感。搭配色系呼应的窗帘,打造清新舒适的休闲区。
+ K& d8 D0 G6 l: T# m
客厅.jpg

) N! ]5 `# c4 M5 g! S主卧的色调和整个风格相呼应,同样宝蓝色的床头靠背和宝蓝色的台灯,设计感丰富。后期的软装提升质感,使空间显得更开阔明亮整个卧室,没有多余的设计,干净利落,又充满温馨。
2 P! q, {( L. E7 G! b- I  y
主卧.jpg
5 P9 l2 G3 b8 O) m
* q8 q1 C0 V$ o; a* h* H; Q8 l# g
后序:
7 }1 j  Z' V* T0 D3 y( l7 v
家是港湾,无论你走得多远,那里都是你停泊的地方。家是明灯,无论黑夜多么漫长,都可以照亮你前行的道路。本案业主钟爱简美风格,整体给人一种简约大气的气息,没有过多复杂的空间布局,每一处都格外的干净利落,而且现代实用。无论是房顶的吊灯,还是脚下的地板,都没有琐碎多余的设计,让人温暖而舒适。
/ T9 t9 L4 ~* p4 f
南通0
您需要登录后才可以回帖 登录 | 注册

本版积分规则

手机版|无图版|站务联系 | 商务合作 | 平台公约

信息产业部备案:苏ICP备05014191号-1 经营性ICP许可证:苏B2-20110445 苏公网安备 32060202000307号 © 2001-2019 0513.org All Right Reserved.

投诉争议 技术支持:第一互联 GMT+8, 2025-12-18 22:14 , Processed in 0.234276 second(s), 17 queries , MemCache On. 站点统计

快速回复 返回顶部 返回列表