濠滨论坛

点击扫描二维码

查看: 4806|回复: 0

【好来居】首席设计师——[朱洺锋]个人简历及设计作品

[复制链接]

该用户从未签到

发表于 2019-7-31 16:54 | 显示全部楼层 |阅读模式 来自:江苏
( e- O1 u( w- v" z, G, S% |' ]( L9 L2 M: k8 S6 I
11.jpg
0 E( }& o/ X* n5 B- i  p5 K) c6 h
项目地点:江苏 南通
1 U) u+ \% S1 p4 X8 K+ B项目名称华强城* K/ d% [; ]0 T) r
主创设计:朱洺锋$ }# L! a2 i# ~; f7 Z
项目面积240㎡
- D& ?) e; H- b  i2 u9 @项目风格:新中式+轻奢8 o/ U2 ]0 S/ p9 z/ z4 w
项目价格:50万
" f, {! R  W& e4 S' F! x4 \6 @+ P9 [% F- [. i  ^
项目背景:! L9 j# L) o5 X' v/ t0 g1 G! O

" n& G/ p$ L) g/ `4 n& @本案业主家两代人一起居住,一共四口人,业主希望空间功能能够合理划分。一楼长辈居住,风格偏向轻奢带点新中式,功能较为全面,餐厨洗浴齐全,接待会客皆可承载;二楼小夫妻居住,风格偏向现代简洁,又带点小北欧的清新,为夫妻俩提供独立的生活空间。
4 O# ?. J2 W2 E% R) ^4 n
2 o( @. S; }  F$ E
设计师说:7 s2 }8 Q1 B! q" a  K
$ C  K! ?% `! v: d2 z. R3 S. V
本案需要将新中式与轻奢以及小清新完美融合,又要同时满足一家四口两代人的不同需求,打造出一个简约大气的居住氛围。本案不仅体现了中国传统美学精神,而且在设计上删繁就简,深受客户的喜爱。: n! r) o+ r, O8 C5 G5 L2 e2 y% B

2 ?2 `9 _- f+ R; j
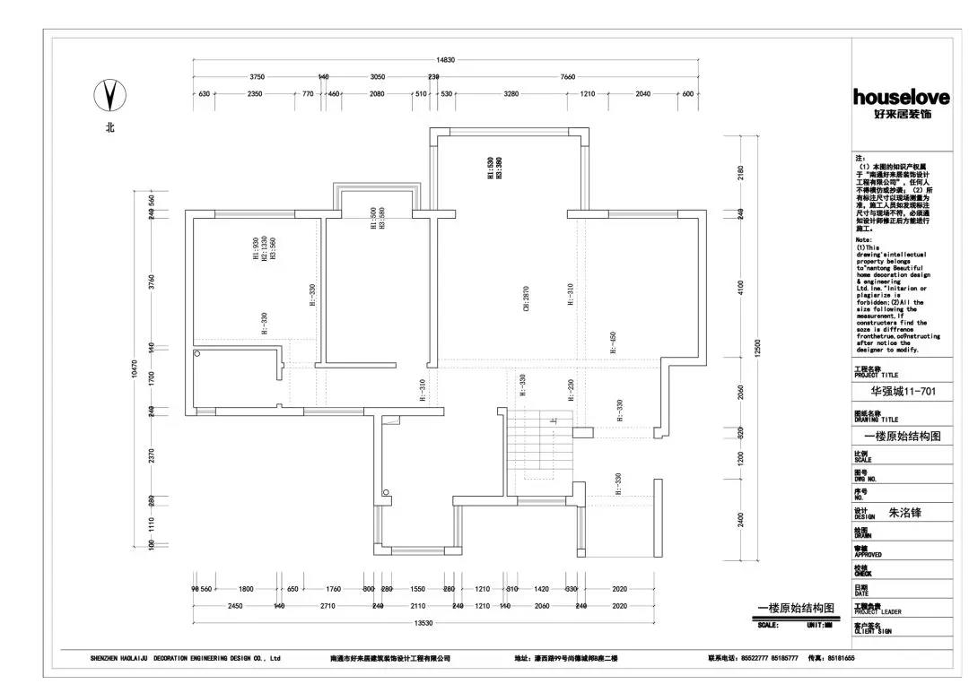
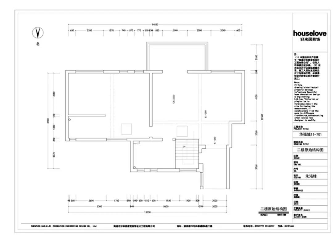
) f  P7 f$ U& j* T$ g' ?. e原始结构图:+ k* ~. }: U+ m. u0 C8 {9 W: o, H. C
22.jpg

0 |0 x5 P0 }* Y) s! ^$ U5 u1 p9 ]) x: v: F" v
二楼原始.jpg
: b# n3 i# ]+ r" }
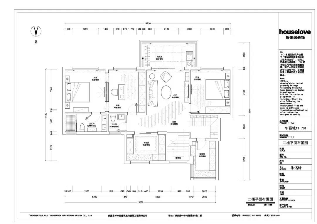
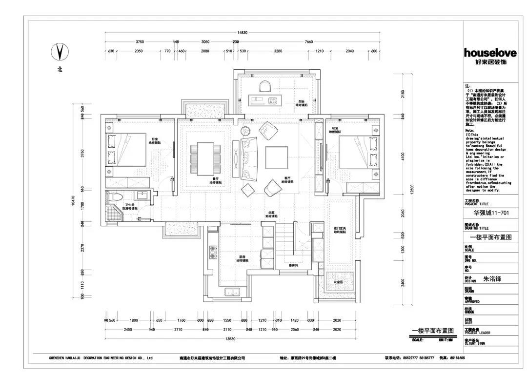
平面布置图:
7 c5 X: o( d3 J2 k% g
一楼平面.jpg

9 P; T9 |3 r1 W- r* l
二楼平面.jpg

+ }& t3 s; z" X4 J6 k
8 T9 m  i: r" z" g7 C( W
效果图:

& H4 T) c" M& y. X4 Q; V
新中式+轻奢,古典风格与现代元素的激情碰撞,衍生出了无数格调高雅、简约大气的新中式空间。它立足于传统,又施之以创新,经过不断的提炼和丰富后自成一派,呈现出了极为浓郁的东方情调。
7 G/ w0 g9 ^( I* l+ w
4.jpg

9 E' P0 Z2 G& V( o+ y, D. ]& w" V& x  F' o7 s( }) z
5.jpg

0 V$ {5 J( R; D$ S9 l& ^5 Y* U9 x7 A. j7 o$ {2 p
以现代之形续写东方之意 ,我们强调的是优雅而低调的东方式奢华 ,诉说高雅品位的生活方式,陈设不过于浮夸,纯粹的色彩搭配光影的变化,婉约别致。

8 c  u; r. m2 A6 a
6.jpg
/ x* u; i$ Y  v  ~: h% Y
相比传统中式追求富丽堂皇、雕梁画栋的装饰效果,这样的客厅设计相对简洁许多,干脆利落的线条配上简单的装饰元素,不仅突破了传统中式可能过于厚重的诟病,在选材上也更为丰富自由。
1 x6 m0 }) u( P& F! ^
7.jpg
- Q9 X. o, G/ J- n
并不是只有大红大紫才能表达新中式的特点,色彩上素雅和谐,在视觉上不会出现大面积饱和鲜艳的色彩,大多以素雅清新的颜色为主。使得整个卧室更加看起来清爽,通透。

8 ~9 P' m$ J' V
9.jpg
1 L; l; G1 e- t. o$ z9 P# y
后续:5 o! l! R# Y8 \
每一种风格都会伴随着时代的变迁而受到时代的影响,伴随着各种元素与中国传统文化的碰撞,衍生出一种新的风格。新中式加上轻奢,在保留了古典人文情怀的同时,兼具了现代装修的时尚性与实用性,又符合当代人们对于精致生活的向往。
; B' |1 ?, V0 r7 H0 I$ z
& o2 N) u( w8 W* s- z- ]% z
南通0
您需要登录后才可以回帖 登录 | 注册

本版积分规则

手机版|无图版|站务联系 | 商务合作 | 平台公约

信息产业部备案:苏ICP备05014191号-1 经营性ICP许可证:苏B2-20110445 苏公网安备 32060202000307号 © 2001-2019 0513.org All Right Reserved.

投诉争议 技术支持:第一互联 GMT+8, 2025-12-18 22:14 , Processed in 0.144080 second(s), 18 queries , MemCache On. 站点统计

快速回复 返回顶部 返回列表