濠滨论坛

点击扫描二维码

查看: 4512|回复: 0

【好来居】资深设计师——[顾小丽]个人简历及设计作品

[复制链接]

该用户从未签到

发表于 2019-7-30 09:47 | 显示全部楼层 |阅读模式 来自:江苏
1 p* l9 o5 p. f: j8 _5 g1 ?  m
* L8 `0 M" V* N! I
微信图片_20190730093137.jpg
3 e, M; B; m6 p
项目地点:江苏 南通
项目名称:龙湖佳苑
主创设计:顾小丽
项目面积:256㎡
项目风格:法式风格
项目价格:45万

# I1 l. w& e$ t
设计师说:
本案为四房两厅两卫一厨楼中楼,空间较为规整,进门有独立的玄关区域。一楼客房改为餐厅区域,吧台的设计使厨房与餐厅之间有了完美的衔接,满足了厨房功能的补充。主卧的设计满足业主对储物的需求,也能确保美观和舒适度。

2 y+ R( l4 i7 V/ N7 ?) f% `8 M
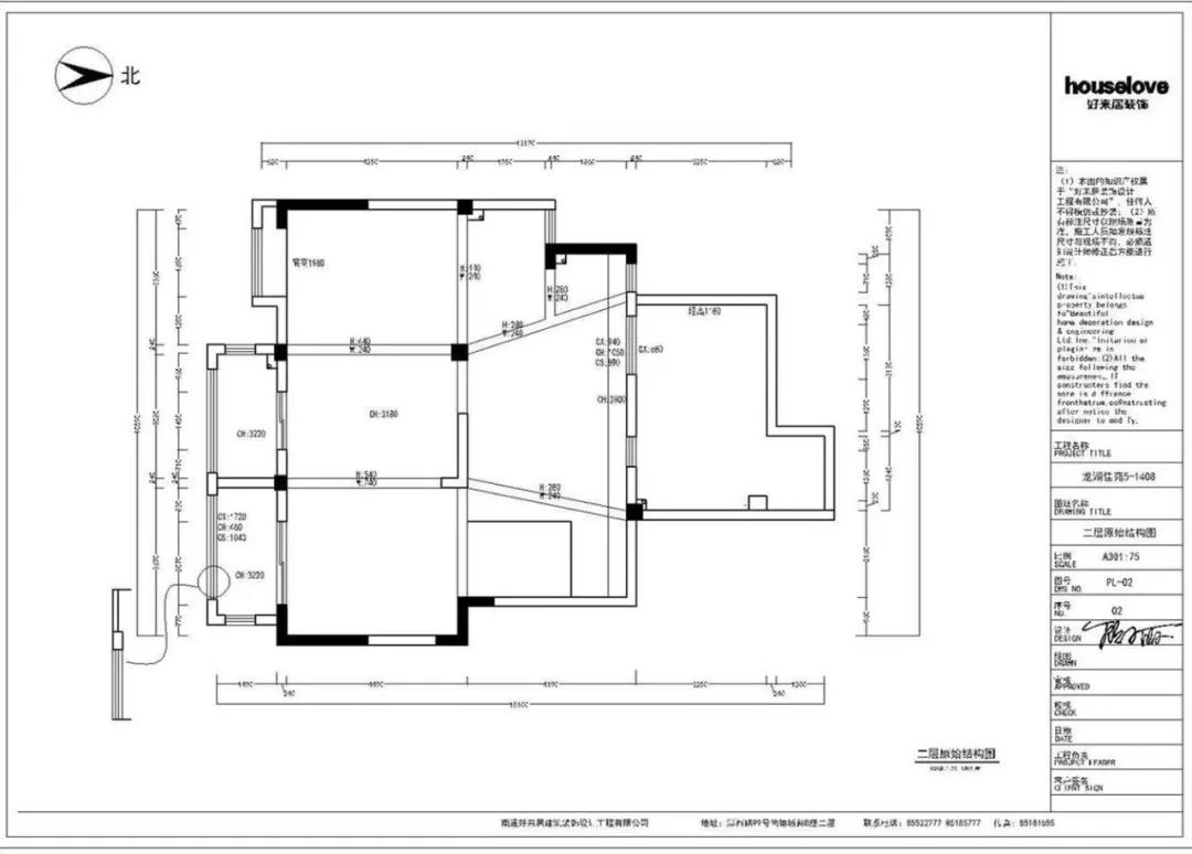
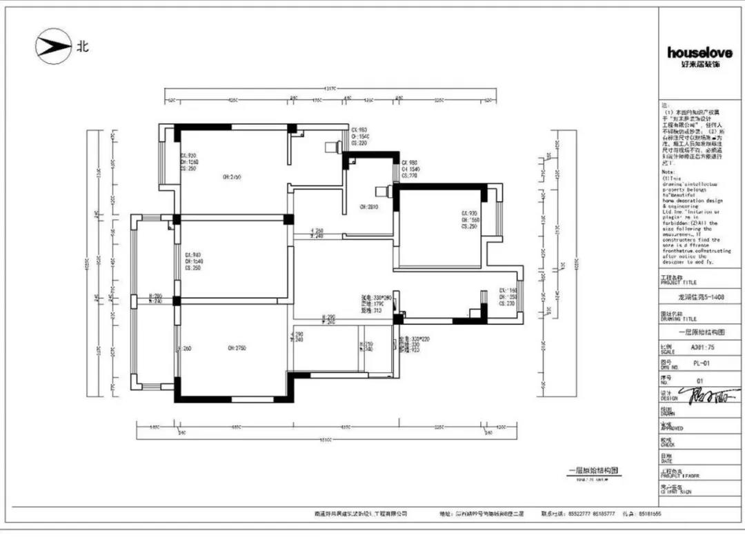
原始结构图:
一层原始.jpg
(一层原始结构图)

" h/ C) Z! o) ~! \7 V! _! Y
二层原始.jpg
(二层原始结图)
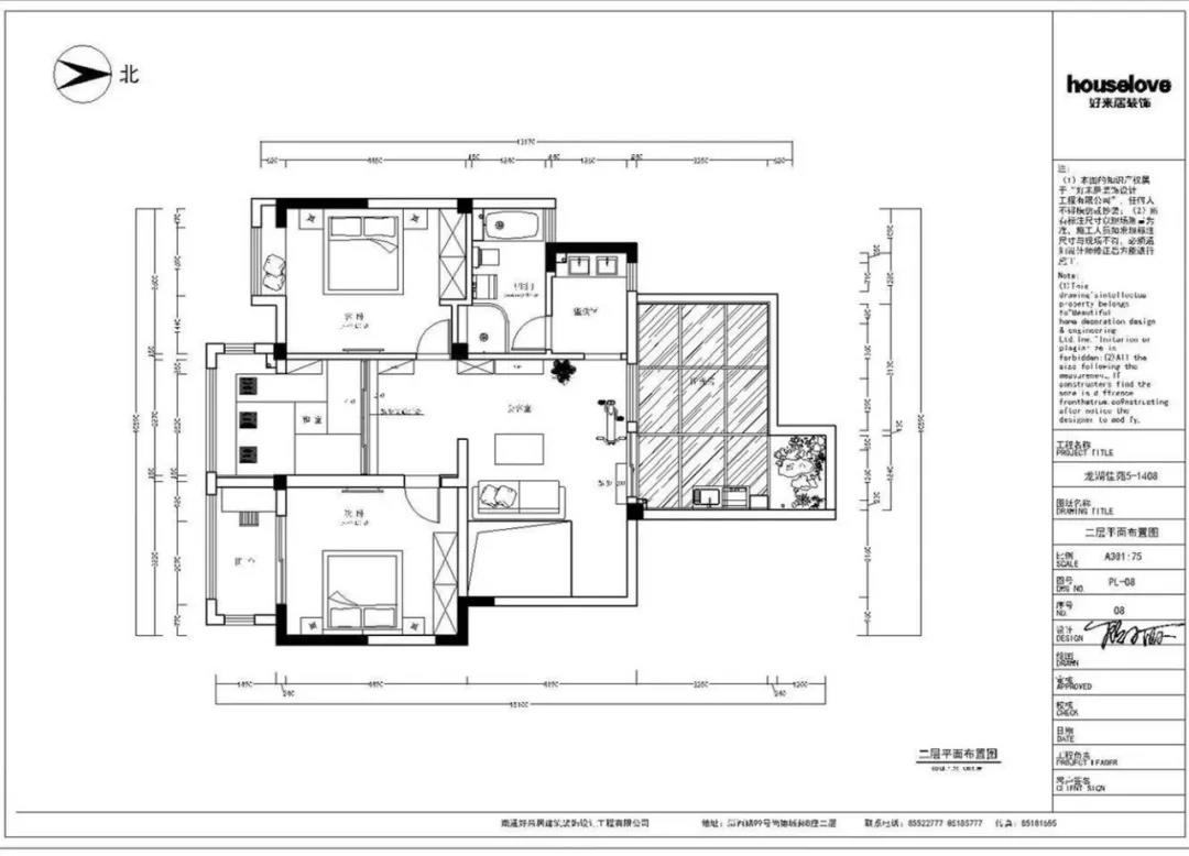
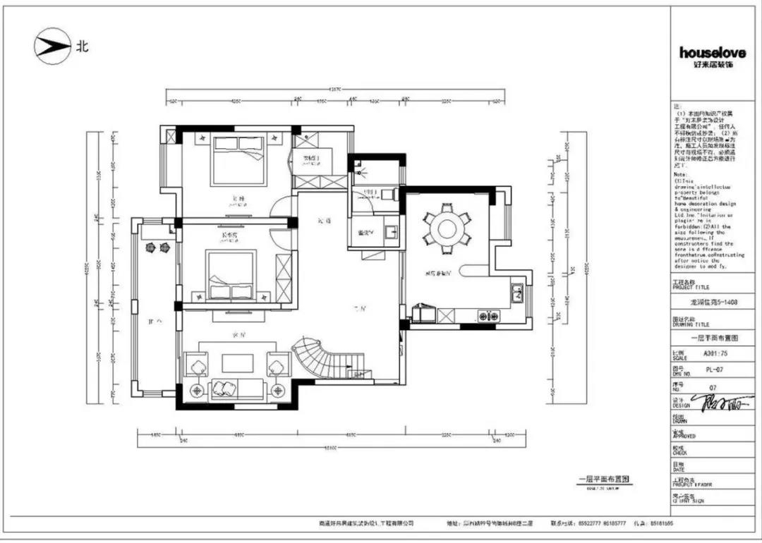
平面布置图:
一层平面.jpg
(一层平面布置图)

% p" {% ]0 p. R2 Q' V
二层平面.jpg
(二层平面布置图)
效果图:
在法式风格装修中,细节处理上注重雕花、线条,制作工艺精细考究。法式家居常用洗白处理与华丽配色,洗白手法传达法式乡村特有的内敛特质与风情,配色以白、金、深色的木色为主调。
8 z( v$ G0 @1 p5 r2 R5 X
微信图片_20190730093201.jpg
) x% ~$ x, y  j5 d  Y% ~
法式风格一定要体现随性。例如典型的法式风格搭配原则,餐桌和餐椅,楼梯均为米白色,表面略带雕花,配合扶手和椅腿的弧形曲度,显得优雅矜贵,浪漫清新之感扑面而来。
. D+ g; T$ I' M% z+ w9 L" ]: X  n
一楼客厅.jpg
6 Y, F  I# T4 U  D( q
我们都知道法国人的浪漫不固定时间和场所,不管是日常的社交行为,还是生活的居室之中。所以法式装修在色彩搭配、室内线条设计、家具搭配等方面,都有一种浪漫的格调。比如线条都是富有一种柔美而有型的味道,色调也很浓郁
# F% I7 w% P( e: a( J( o
餐厅.jpg

8 |* k9 _. ~$ e1 B) f, F/ }
式风格一般会搭配上专门的法式家具,客厅和卧室会配置上水晶灯,还有华美的布艺窗帘等,它还有一个特点,就是对建筑装修的整体方面,会有严格的把控,还比较善于在细节的雕刻上会下一番心思。

. D5 Y8 G! X8 b& Y: l  T0 N
二楼会客厅.jpg
0 l  J. B5 O8 _
法式风格在效果的处理上,是可以很好的体现出高贵、典雅一面的。它的卧室布局是比较突出轴线的对称性的,还会在一定程度上,宣扬出一种恢宏的气势,这样会给人一种豪华、舒适的感觉。
' {- v  q9 u$ j/ s4 T
卧室.jpg

1 |+ M$ c+ H7 O' _
公司公众号
1 }5 |* `0 F/ {6 o
" X2 o, u+ c& S+ y( d" u

4 o0 {1 |! n1 Q/ [* z! g1 \
微信图片_20190730093324.jpg
3 |$ u9 d5 [- D0 ^. u5 S# p
南通0
您需要登录后才可以回帖 登录 | 注册

本版积分规则

手机版|无图版|站务联系 | 商务合作 | 平台公约

信息产业部备案:苏ICP备05014191号-1 经营性ICP许可证:苏B2-20110445 苏公网安备 32060202000307号 © 2001-2019 0513.org All Right Reserved.

投诉争议 技术支持:第一互联 GMT+8, 2025-12-18 22:14 , Processed in 0.193057 second(s), 17 queries , MemCache On. 站点统计

快速回复 返回顶部 返回列表