濠滨论坛

点击扫描二维码

查看: 5095|回复: 0

【轻舟装饰】皇家花园126平|现代风格时尚前卫

[复制链接]

该用户从未签到

发表于 2019-7-28 16:12 | 显示全部楼层 |阅读模式 来自:江苏

4 W5 ?  m/ h$ J$ B▎ 作品档案
! X0 I1 M7 S+ g  m/ Q2 t, k楼盘地址:皇家花园
; j& @) G8 t; J. f/ `( k6 a3 f% P楼盘楼号:22栋
% M8 e6 e/ l9 N. J% U建筑面积:126平米
7 Z' Y' J* c/ H  v" |5 _装修风格:现代风格( ?$ n* h5 J# Z3 A; }- n
设 计 师:张强
6 v) e4 e7 l1 C/ O, F" X  s: g, u+ j4 {9 Q
▎ 设计背景- D( m2 Z" B5 s* t" y9 d8 F8 I
一个三口之家,年轻夫妇带着可爱的女孩。喜欢现代简约的风格,家中色调要温馨,要求两个卫生间,外加书房,方便办公和小孩子学习。; \: O5 W3 C, |- w& \( B

- c! ]  e0 X2 J. V6 m▎ 设计需求
, z3 D* u" o  t8 m8 \①:风格期望是现代简约。
" R9 M3 W0 H3 m, T6 m1 \$ t1 r②:动线要明确,且避免繁琐。
/ s" t- _* P4 j( O  w3 h% R③:家中人都能够接受。
4 k+ V/ u# X/ V$ N( G# u0 o+ T. p* R④:功能区域合理划分,整体效果简约时尚温馨不失品质。
6 o! `' T* g$ m  r6 g4 B1 A$ C. t4 C# V6 X% d- N
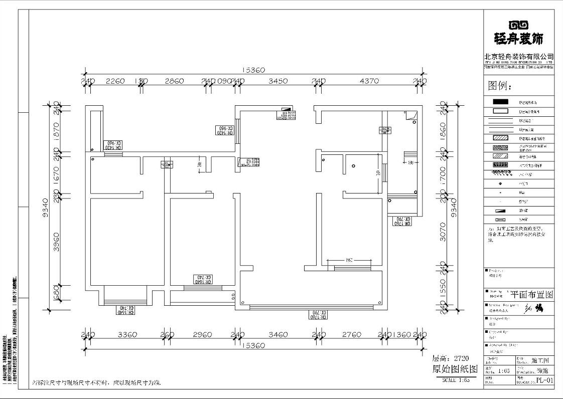
▼ 原始户型图- z8 Y0 V; ]1 v/ G' K( H- d0 w
1-2.jpg
3 X2 h3 `1 a9 g8 {1 `1 M! |' t7 l8 f8 R) e/ A) `
▎ 户型分析/ `, G( d6 |: i) B
①:厨房空间不足! d! n- n+ f" e# g7 ?0 [; J
②:过道狭长,过于浪费1 J' O  A6 V/ g
③:客厅宽敞6 M9 e" D& y( {  G8 Y1 Z  o$ Q) p
④:休闲阳台空间足够9 Q% C. `- a$ V* I

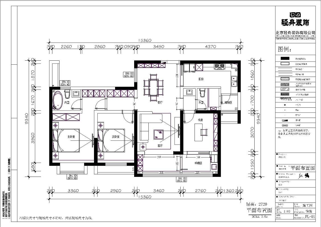
. p0 m9 v; I! K/ J) ~' ^▼ 平面布局图7 o3 ~' u8 C4 v4 i) Y* b
1-1.jpg ( S& U6 Y* b+ ?
( z+ y( {: u! ]1 {! Y3 A0 e  c7 z  j7 y
▎ 改造备注
9 {' `7 f8 f" R( F①:三房改成二房,把东边的次卧改成书房。
) \7 p5 |/ M! s% E②:次卧室把衣柜放在过道处,增加孩子的活动空间。- _. U4 V" X) \+ k3 _' {6 D4 z
③:主卧室做一个卫生间,做成套房,增加生活体验感。' z# z& y: F1 T' N8 T" M
④:次卧改书房,应客户要求,增加办公学习的空间,为了带给孩子更多的兴趣,为了打造书香门第。
. _' z0 v+ X9 m$ G( ?9 K1 C- L
: o( G4 b9 d' e) V! n▼效果图
1 A6 Q/ y& U0 M" |3 ~5 { 1-5.jpg . u& y' V5 q9 H# f" b0 l
1-3.jpg
  w" F$ l2 |0 \7 r1 k7 o 1-4.jpg
4 W/ L  p/ S: B1 A# U- }4 r) m7 Z
% m6 [" F2 G  F7 C, G ▎ 设计亮点
$ `& A; \/ e- Z, Q1 {设计风格为简约现代,整体以黑白灰为主导,中间加上部分跳色,既不会显得沉闷,也不会觉着颜色单调。相反会显着家庭感十足,且色彩感觉既不会太冷,也不会太暖。给人以最舒适的视觉感。卧室以黄色和蓝色作为跳色,冷暖协调,颜色中和。卧室做飘窗,作为休闲的空间,冬天看雪落满天,夏看灯火阑珊,春看蝶花遍地,秋看落叶沧感。' Z. H: ~& M: `" M- J, Q4 H4 d- ]% M' Q
木门以原木色为主,在繁华的闹市,是唯一给人感觉的接近大自然的媒介。家中用暖色作为跳色,会使整个空间冷暖协调,颜色不会眼睛产生疲劳感。整体设计动态合理,空间舒适。  B2 B7 j9 F% P/ U. p( Z3 w
" _( N3 K& _0 z6 c- L; q# j
1 B, }' x' b* A5 C+ ]5 H+ Z
' \  y( F* O; q) B- Q6 N2 x
南通0
您需要登录后才可以回帖 登录 | 注册

本版积分规则

手机版|无图版|站务联系 | 商务合作 | 平台公约

信息产业部备案:苏ICP备05014191号-1 经营性ICP许可证:苏B2-20110445 苏公网安备 32060202000307号 © 2001-2019 0513.org All Right Reserved.

投诉争议 技术支持:第一互联 GMT+8, 2025-12-18 22:14 , Processed in 0.142525 second(s), 12 queries , MemCache On. 站点统计

快速回复 返回顶部 返回列表