濠滨论坛

点击扫描二维码

查看: 3943|回复: 0

【轻舟装饰】现代简约风 | 忘却现代都市的喧嚣

[复制链接]

该用户从未签到

发表于 2019-6-21 15:36 | 显示全部楼层 |阅读模式 来自:江苏
) V2 E; V, Y1 E" Q2 E% O
: `% C: m7 I0 T0 P1 Y
作品档案
楼盘地址:中南花城
楼盘楼号:40号楼2403
装修风格:现代
师:孟钰翔
( E4 ]$ ?$ U, [1 t
▎ 设计背景
介绍客户的背景,和为什么选择你
客户背景:年轻夫妇,在政府上班,很注重家里每个角落的布局及软装搭配。在考虑房子主人的喜好特点的同时,既要有注重居室的实用性,又要体现出主人的品味
理由:与设计师的沟通很顺利,对设计师的方案很满意。
设计思路鲜明,兼顾效果的同时考虑业主生活上的各方面需求。
- P  \% b2 _. G1 I
设计需求
:整体色调冷暖结合,使空间更具层次感。
:家具的选择上要造型简洁大气,又能凸显一定的实用功能。
:从实用角度分析,储物空间要充足。

/ J: c9 p/ {0 ~7 y+ h) b& U
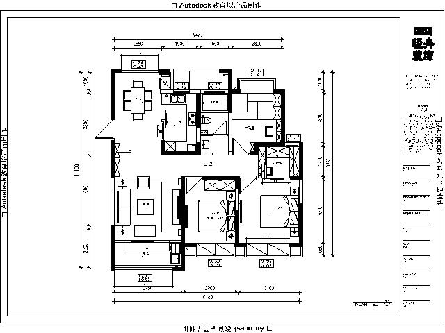
原始户型图(附带图1
$ j5 D& G0 i! F! y

- `, \4 v* E5 @, u0 A, g
原始.png
' H& B) x9 D: ^4 o, y# I, E

1 m0 q+ B# ?) q: P- D
" J7 O6 P* [7 j% ]
户型分析(照户型图说话)
:进门处没有放鞋柜的位置,需要重新规划。

; G9 v' [$ R' N1 P# u9 D% D
平面布局图(附带图2
平面.png
1 T- q8 f( G" ^# O4 U# ^% W7 F
改造备注(照方案图说话)
:整体动线较为清楚,动态和静态区分开互不干扰。
:进门处需要设计独立的鞋柜,增加储物功能的同时还能更好的划分空间。
北次卧儿童房刚好利用试听距离的优势做一些储物及学习的区域。

4 k* q) F1 H  N2 u) V4 I1 G
▼效果图(附带图三)

4 H+ X+ Y! E* T* f+ p, H; L/ p
客厅.png
2 _, @( {* Q, Q, L6 R1 l
餐厅.png
6 u% r+ Z/ e9 ?9 N/ Y
设计亮点
  进门处增加独立的鞋柜,与电视背景柜结合,空间动线划分较为清晰。电视背景墙装饰柜运用深木色柜体,制造现代温馨时尚的氛围。装饰画得点缀也很得当,业主特别喜欢。设计师精心搭配的每一件陈设品都是空间中不可或缺的一员,吊灯,装饰画,沙发与木饰面形成美美的立体画面,彰显主人的品位。也体现设计师的设计与搭配功力!从细节可以看出设计师的用心,给屋主实用而舒适的体验。

% ^, d$ Z: i8 G3 C# U南通0
您需要登录后才可以回帖 登录 | 注册

本版积分规则

手机版|无图版|站务联系 | 商务合作 | 平台公约

信息产业部备案:苏ICP备05014191号-1 经营性ICP许可证:苏B2-20110445 苏公网安备 32060202000307号 © 2001-2019 0513.org All Right Reserved.

投诉争议 技术支持:第一互联 GMT+8, 2025-12-18 22:14 , Processed in 0.165566 second(s), 12 queries , MemCache On. 站点统计

快速回复 返回顶部 返回列表