濠滨论坛

点击扫描二维码

查看: 72116|回复: 16

No.29【2019年濠滨装修日记大赛】+【皇家花园】+【美式】+【轻舟装饰】

[复制链接]

该用户从未签到

发表于 2019-6-16 21:31 | 显示全部楼层 |阅读模式 来自:江苏
7 w3 c* T. h% S3 ~4 N! {" x7 s2 Z( t. W; `$ ?/ ^3 u0 O% }
对家的渴望,对家的期待,所以用心筑造小窝  p( q3 f4 Q' k- {  z
基本信息栏:0 j1 p, V6 B* h" T; K
房型:三室两厅一厨一卫
+ i6 I  X6 M0 X建筑面积:120㎡
; w3 P' g. ]6 H9 j1 u, E% y; w" [装修预算:30万2 }( l8 _, o3 Q4 h* B9 I& g& A
包工方式:半包# s' \. z% \5 p$ X7 y! h; F% A' H
装潢公司:轻舟装饰! P  J7 z2 W$ S6 \; A1 t( V) F0 M
设计师:孟钰翔
5 J+ @$ I' ?  P) \开工日期:2019年6月17日
8 t8 \& Q( W) U, R* m楼盘地址:港闸区皇家花园
  ?- j2 c5 F$ A# w5 R
4 f# {; r4 H& E1 p
我家找装修公司的一些想法:
1.公司正规,管理规范,有后续保障。
2.设计师有一定的工作经验,为人正直、热情、专业,具有职业操守。
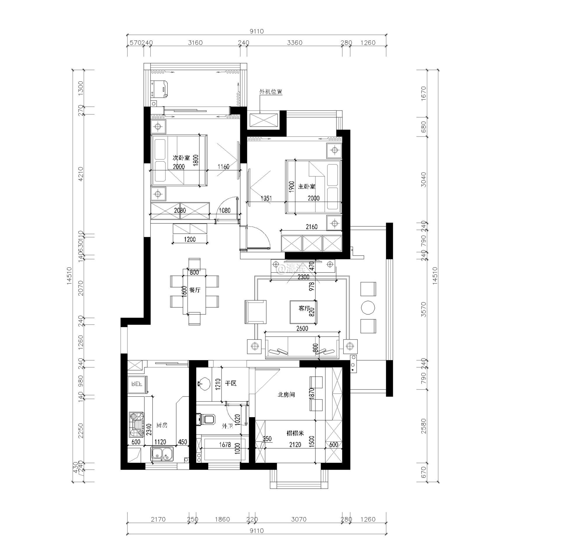
平面结构图:
1.高层很多结构是不能随便敲的。所以户型结构基本与原来结构相似。
2.为了扩大客厅的面积,把客厅和阳台连起来,并把西阳台两侧填平扩宽,增加阳台的使用面积。
3.为了增加房屋的储物功能,在北房间打了书橱、书桌和吊柜,这种设计可以很好的利用空间,对于小户型很有利。7 ~  p6 A8 d, @+ X) [9 d( W
4.餐厅设计师采纳我的建议,把冰箱移到餐厅,进行了墙体的改造,这个后续看效果。* o; O( s' B$ [/ P/ o' x( O( m
5.进屋右侧墙体改造,做成玄关,满足日常换鞋的需要。
# l* F( |  `& g
设计效果图:$ f' I3 y( y" ~1 M1 F
1.美式风格。; \8 u% z0 c. e" J
2.暖色系为主。: N5 H9 G4 A4 ^- Q0 ^, L% T2 }
3.考虑到成本和户型,设计中并没有走大美的传统路线,而是介于小美和大美之间。( D* A' V9 a# S( _0 i. R
4.三分硬装,七分软装,后期看设计师的功底了。
- l8 E$ c2 o* N9 h4 W: l& Y; X
) f2 A1 `: z8 c6 f! h' x' u- _
2 |2 r. Q5 F1 j2 x. w* ~$ h0 `
! u, |9 |. Z. e  b& w
: ~8 z" N9 l! v/ j1 X. V5 I
南通0

平面结构图

平面结构图

效果图1

效果图1

效果图2

效果图2

效果图3

效果图3

该用户从未签到

 楼主| 发表于 2019-6-23 11:27 | 显示全部楼层 来自:江苏
6月17日——6月23日一 .  敲墙大约2天时间,师傅手艺很好,效率高。
0 H8 l# W. a/ D& T9 u# j! H) D( l4 f! z3 o% `% D2 X' L, C0 K
二 .  铲墙皮,这个小区墙皮里面有胶,不容易铲师傅说慢工出细活,急不得。6 p0 A0 F9 ?" L/ x
三.  618在文峰买了煤气灶和油烟机,今天师父来重新开烟道,装止逆阀。( O1 n$ V8 ]6 h5 G
四 . 工程管家提醒我买植筋胶,主要用于后期新混凝土连接二浇筑植筋。" _  H3 {8 v0 J% {+ B' ^; D& @
: k' u" W5 K" X- Y6 s" {$ k( O

8 f) [8 e7 P4 g: E0 T( \

敲墙

敲墙

铲墙皮

铲墙皮

改烟道

改烟道

植筋胶

植筋胶

植筋胶

植筋胶
回复 支持 1 反对 0

使用道具 举报

该用户从未签到

 楼主| 发表于 2019-7-2 21:43 | 显示全部楼层 来自:江苏
6月24日——7月2日( [/ m* F, K" Y2 c3 r- D

6 R/ |. ^/ i* O+ d1 ]! l# @1. 铲墙皮完工。
2 Q3 ~+ r0 Q1 U( }* i2.水泥、黄沙、大孔砖进场。
8 l) g! a) U1 G5 z! U  e3.张师傅15岁开始做瓦匠,经验丰富,他说黄沙颗粒粗的比颗粒细的好,四袋黄沙兑一袋水泥是比较合理的,有的人偷工减料五袋黄沙兑一袋水泥,这样可以省水泥的钱。, T) E( j+ O: A+ f$ d. L
4.送砖块的师父说像我家这种大孔砖,大概1平方要55块砖。: K# l6 N7 [) Q1 w
5.张师傅砌的砖:抹灰均匀,排放合理,水平相当的高!
7 m& \6 {" h% i5 R$ Y- @6.餐厅和次卧的墙为了留下冰箱的位置设计成了凹凸形。
7 z. ~0 ?8 v1 X3 e7.卫生间给我预留好了浴室柜的间距1250,美式的柜子都比较大,只能舍弃淋浴房的空间了。- d% v; X- @4 p1 _) p5 Q: e
8.西阳台和客厅打通,看起来很宽敞。: \4 Q, Z& p6 R& C( f
9.西阳台的设备平台处我砌了墙,毕竟全部是落地窗还是没有安全感的。6 O+ ^7 x2 D8 [0 n2 a! [: d, Z0 B' x# O
10.封阳台的师傅今天来复尺,大概15个工作日就可以装了,期待大落地窗。, a5 @  E+ R1 I9 ~( H

7 `# Z# o* W" E5 l' J& ?- z( z0 B6 \( \' j% O6 a
回复 支持 反对

使用道具 举报

该用户从未签到

 楼主| 发表于 2019-7-2 21:49 | 显示全部楼层 来自:江苏
附上图片,最近电脑有问题,文字和图片不能同时发。
% l7 n: r6 A1 F2 O3 c( l

铲墙皮完工

铲墙皮完工

粗黄沙

粗黄沙

和水泥

和水泥

大孔砖

大孔砖

砌墙的手艺超赞

砌墙的手艺超赞

凹凸形

凹凸形

卫生间改造

卫生间改造

客厅和西阳台打通

客厅和西阳台打通

西阳台两侧砌墙

西阳台两侧砌墙
回复 支持 反对

使用道具 举报

该用户从未签到

 楼主| 发表于 2019-7-10 11:33 | 显示全部楼层 来自:江苏
7月3日 —— 7月10日
( k* k& C; U; T' c$ q& ]: A* I# c7 j8 o
! `, j8 R' P  U. U' \9 B2 Y本周工作:: f* ^0 {/ m( d) x; ^" F) E
1.新砌的墙维护。( \( i4 z5 h3 n6 c  |- T& _
2.墙面和底面刷界面漆维护。' ], m. s! h/ D9 H0 `
3.厨房和中央空调过来水电交底。. t% d1 Z1 e  |
4.购买水电相关的配件。口径25毫米日丰水总阀白色四十大洋,换成绿色就七十大洋,搞不清哪里不一样?弱电箱的选择要注意:塑料面板,内部空间要大,不要买内部分割得比较细致的那种。
. x# m/ {, [& x) K5 u5.中央空调交尾款。说到中央空调,我是在品牌买购网上查找官方授权店,接着大金、东芝、日立、三菱等都走了一圈,光听每个品牌数据参数,技术特点头就晕了,最后我采纳了卖空调亲戚的建议,第一,能不装中央空调就不装,因为中央空调也是最近几年才普及的,后续维修的问题大家还没有足够的经验。第二,如果非要买,一定要考虑方便维修的。第三,制热效果一定要好(我家不装地暖)。最后我买了一款方便检修的机子,花了我4万大洋。不过,现在想想国产的大牌子,质量也不错,关键是同样的配置能少1万大洋,对于我这种屌丝,实际使用体验是差不多的。
# D8 O3 q5 `2 q8 O% f( Z

弱电箱

弱电箱
回复 支持 反对

使用道具 举报

该用户从未签到

 楼主| 发表于 2019-7-10 11:37 | 显示全部楼层 来自:江苏
南通好家园262 发表于 2019-7-10 11:33; r5 U* f  l$ [0 ^# ~/ @. c0 I
7月3日 —— 7月10日
2 F8 L9 O) a$ D: o7 m+ f/ B0 }5 G+ g
, e/ D% n+ }3 s" x  K本周工作:
6 z4 Y7 u+ D" u' ^& b* s/ X
附图,附图,附图,附图,附图,附图,附图,附图,附图。
1 K) ^' I: L" \% h2 R) B- a9 N- [3 k

界面漆1

界面漆1

界面漆2

界面漆2

界面漆3

界面漆3

25毫米水总阀

25毫米水总阀
回复 支持 反对

使用道具 举报

匿名
发表于 2019-7-18 20:12 | 显示全部楼层 来自:浙江
提示: 作者被禁止或删除 内容自动屏蔽
回复 支持 反对

使用道具 举报

该用户从未签到

 楼主| 发表于 2019-7-19 13:04 | 显示全部楼层 来自:江苏
南通好家园262 发表于 2019-7-10 11:373 L+ p% w5 |& T8 f1 A: S
附图,附图,附图,附图,附图,附图,附图,附图,附图。

4 X/ l8 f9 @1 a, r2 W- T7月11日——7月19日   开槽篇
5 p' R' w7 Y, [" \+ L: J0 H2 D8 j: ?; S0 q; a
3 W" b+ e) X/ V
1 .  墙上开槽基本要求。
3 W4 X" Z2 D$ x1 R* I# S     为减小开槽导致墙体结构安全的破坏程度,必须采用专用开槽机。% \5 G" U! j& y
     开槽尺寸要求:宽度比管的外径大10mm左右,槽深不小于管外径加15mm.墙面水平开槽的长度不得大于50cm,以免破坏墙体结构安全。管路放入槽后,每隔0.5m左右须用铁钉固定,不得松脱。管道固定好后用水泥砂浆先暂时修补(砂浆强度等级不低于M10),再交付由土建统一面层抹灰做面层处理:采用10mm*10mm0.5-0.8钢丝网挂网,超过管道2边不小于10cm.保护面层不小于15mm。
/ c! l# ^% d% U, x. O
- A: G* u$ E$ J: k
+ T- j/ N& E. H8 c
2.为什么不建议开横槽?! N2 Z; g7 f2 Y
     墙面上不开横槽,是有这个说法的,如果开了横槽,会影响墙面的承重力,尤其是承重墙,而墙面的承重,主要负责的是垂直方向的承重,我们在墙面上开了横槽之后,把整个墙面横向截断,这样就大大的影响了墙体垂直方向的承重力,对整个的建筑结构是有一定的影响的。很多业主说了,我家装修的时候的确开了横槽,但是墙面也没有塌,不是照样没事吗?由于开横槽而造成墙面塌陷的情况,目前还真没有听说过,如果真的是因为开个横槽就造成墙面塌陷的话,那么这个开发商的建筑施工质量也太不好了。虽然没有造成塌陷,但是会有一些小的影响,比如墙面出现开裂等,这就是因为墙面重力下沉而影响的。所以说,大家在装修的时候,尽量不要开横槽,虽然基本上不会造成墙面塌陷的情况出现(虽然有的人即便是把承重墙砸了,也不会出现塌陷的情况),但是这样做,毕竟是不好的,而且也是不合规范的。那么,如果真的是需要的话,应该怎么办呢?我们在装修的时候,也难免会遇到必须开横槽的时候,但是可能并不是很长,那么需要注意承重墙开横槽的距离不要大于30公分,非承重墙不超过50公分。
; I3 _3 i  }( H: e  F1 m
2 m6 Q& F- D4 A' \/ v) C7 v

8 n% E' _5 o, _7 c# E) C3.为什么有的装修公司喜欢开横槽?7 K; O" g! j6 ~: k. E
(1)省时省力。有的线槽如果不在墙体上开槽就必须在楼板上开,而楼板是钢筋混凝土结构强度远大于砖墙,开槽的难度很大。
9 q4 _! n; B% u! u(2)减少弯管的工作量。在墙上开槽可以直接点对点连接,不用弯管。如果走楼板,需要从墙面竖向走管到楼板后,在楼板上横向走管,然后再竖向走管到需要连接的点位,费时费力。) u7 F5 t5 r) B0 g

开横槽可以省工省料

开横槽可以省工省料

5 l0 O7 N' P. O3 e* ~
/ L1 a% e% a- c6 e; D/ B' K1 e
4. 已经开了横向线槽该怎么办?
; [( ?) a/ a4 {# ?解救办法:用1:3~1:4的水泥砂浆或者C20细石砼填实,之后用纤维水泥砂浆抹平,并采用耐碱玻璃纤维布做挂网防裂(如果孔洞过大建议使用钢丝网),这样可以有效的缓解对墙体产生的损伤。
# x* z( ~! M/ F
1 a; n, D: g, S
5.  我家开槽直接上图,自我感觉横平竖直,这家公司还是很规范的,大家给我把把关。
4 V- l7 W9 }1 i7 K- n4 t

厨房开槽

厨房开槽

. Z+ ?3 h: ^0 I- X2 x4 ?

客厅开槽

客厅开槽

4 O2 {% I( Z% G$ j/ `0 \8 E4 [9 i% ?5 H1 L1 u8 V, w

卧室开槽

卧室开槽

5 K  _+ f1 l& Z% m% Z9 U/ C4 x; C9 f' \4 @3 P6 ]2 G

过道开槽

过道开槽

2 `9 w) J) v3 v- W' K  g: C* m+ Z
回复 支持 反对

使用道具 举报

该用户从未签到

发表于 2019-7-21 11:50 | 显示全部楼层 来自:江苏
装修别找安莱、
) M1 c# \2 d" T4 U1 E* f; vhttps://bbs.0513.org/thread-4135784-1-1.html
回复 支持 反对

使用道具 举报

该用户从未签到

发表于 2019-7-21 14:24 来自手机WAP | 显示全部楼层 来自:湖南
南通好家园262 发表于 2019-7-19 13:04
% k/ y# V# X9 j- W# L$ j! O7月11日——7月19日   开槽篇5 d2 V7 o) m% m

" M( Y5 G  u' R$ |4 F
; e9 ^) [4 G  ^4 z; }4 u

( Z, G: {6 v8 m5 v7 {8 W* R他家装修公司怎么样?
回复 支持 反对

使用道具 举报

该用户从未签到

 楼主| 发表于 2019-7-21 21:57 来自手机WAP | 显示全部楼层 来自:江苏
jyq1001 发表于 2019-7-21 11:50
, p) E+ l. z) V6 b7 H6 N装修别找安莱、
6 W' i( }  @/ ^https://bbs.0513.org/thread-4135784-1-1.html

6 D4 \1 B( x! B6 Y8 M0 G5 V& w我找的不是安莱。
回复 支持 反对

使用道具 举报

该用户从未签到

 楼主| 发表于 2019-7-21 22:03 来自手机客户端 | 显示全部楼层 来自:江苏 移动/数据上网公共出口
宝嘟嘟 发表于 2019-07-21 14:24
% Y  v6 U8 j" g! T8 v! U他家装修公司怎么样?

/ }5 @! o) E/ l' S目前我家到水电了,感觉这家公司比较正规,装修的每个细节设计师都会和你交代清楚,不会忽悠你。装修时工程管家每天向你汇报家里装修进程,考虑得比较周到。
回复 支持 反对

使用道具 举报

该用户从未签到

 楼主| 发表于 2019-7-22 13:34 | 显示全部楼层 来自:江苏
南通好家园262 发表于 2019-7-19 13:04
" m' Z+ P& T# H* C7月11日——7月19日   开槽篇

! }! c, Z# F9 y/ `9 g$ v, p2 j7月20日 ——7月22日  水电材料进场,水电改造需要一周时间。1. 水电材料都公司统一发货。
7 R- I+ w+ A- A# x0 S

水电货架

水电货架
, d: K  n/ }* R3 y2 _* [( P) a+ U
满满一货架,看来水电改造不是我想的那么简单。4 W& l. u* d* k8 }! Y
7 ^$ Y  T8 Y: e0 I! n1 o8 i

2 n- T1 u9 H( N- M( o2.电线。
! z$ U0 A$ k9 f. m7 C

电线

电线
  k- ]- y" W! J/ F3 p! G
     这些线都是2.5平方的线,2.5的线可以承受4400瓦的电,而我们家用电器一般不会超过3000瓦。这些线的颜色我也很好奇,有红的,蓝的,黄的,还有绿黄混合的,百度了下,供大家参考,红黄蓝绿各代表含义:红色为C相火线,黄色为A相火线,绿色为B相火线。蓝色代表零线。国家标准是红、黄、绿是火线,蓝色是零线;地线是黄绿双色线。) F7 ?7 M5 v9 O0 K, }; ?
    那么问题又来了,相线是日常生活中的火线吗?为什么要分成abc呢?零线不陌生,地线又是干什么的呢?于是,我又百度了下:
' P" \. o4 ?- s% b; P5 z第一、火线又称相线,它与零线共同组成供 电回路。在低压电网中用三相四线制输送电力,其中有三根相线一根零线。为了保证用电安全,在用户使用区改为用三相五线制供 电,这第五根线就是地线,它的一端是在用户区附近用金属导体深埋于地下,另一端与各用户的地线接点相连,起接地保护的作用 按我国现行标准,GB2681中第3条依导线颜色标志电路时,一般应该是相线-A相黄色,B相绿色,C相红色。零线-淡蓝色。地线是黄绿相间。如果是三相插座,左边是零线,中间(上面)是地线,右边是火线 。
2 T* {, C# O! L) T; d& F+ K! F% N. j$ Z第二、通常电力传输是以三相四线的方式,三相电的三根头称为相线,三相电的三根尾连接在一起称中性线N也叫"零线"。叫零线的原因是三相平衡时刻中性线中没有电流通过了,再就是它直接或间接的接到大地,跟大地电压也接近零。地线是把设备或用电器的外壳可靠的连接大地的线路,是防止触电事故的良好方案。; z8 h6 _+ a  q- E2 @7 j+ r& K

+ N5 B  h7 X, ^) g+ d
: Y8 ~6 y! A2 `5 f) n/ \% S' M" t3 u* Y

& M6 R  R/ Y% C& t7 ~
" d4 e1 H; t% }% H+ B9 B3 o

1 z' L  {: t* R. j: J2 f
, h2 i! t6 V% e3 f
- F8 q* ]6 n4 o+ j* I$ C

2 l7 Z# H. t6 q* L. c/ Q
, k1 L3 ]2 o2 e2 i1 k1 Q7 R1 b
回复 支持 反对

使用道具 举报

该用户从未签到

 楼主| 发表于 2019-7-28 17:53 | 显示全部楼层 来自:江苏
南通好家园262 发表于 2019-7-22 13:34- J# s; j* t% y5 J
7月20日 ——7月22日  水电材料进场,水电改造需要一周时间。1. 水电材料都公司统一发货。! T* g  t+ R  |, [5 ]
& M% @+ o- J, G) `% [9 s
满满一货架 ...

8 k5 N# d3 g' u, _7月20日——7月22日   中央空调安装/ U' w8 P# G# u1 k1 V

- z% @1 X/ Q6 l. e8 j" J* s中央空调早就安装好了,师傅来了四五个,两天全部搞定。本来想好好做做功课的,关键是自己缺少这方面的专业知识,自己也偷懒,也没和安装师傅多交流。总体感觉这家公司比较规范,布线比较漂亮,用量也比较实在,现在直接上图,大家可以按我这个图去比比。
1 l! l- m+ }4 P0 z: [4 r) w, a5 J
/ f+ a6 Z  `2 f4 r  G% H
! F& U( p7 P1 u+ Z- d3 {& W* U

4 B& t1 f& D! p4 M; @

分歧箱

分歧箱

漂亮的布线

漂亮的布线

保温拐角处

保温拐角处

世霸龙保温

世霸龙保温

客餐厅

客餐厅

次卧

次卧

主卧

主卧
回复 支持 反对

使用道具 举报

该用户从未签到

发表于 2019-8-1 18:18 | 显示全部楼层 来自:江苏
不容易不容易,这个天儿热啊!  
回复 支持 反对

使用道具 举报

该用户从未签到

发表于 2020-4-16 09:50 | 显示全部楼层 来自:江苏
* X7 r- _% U( h- K$ N
南通好家园262 发表于 2019-7-19 13:04
: Z+ Z  I: b: z6 E' w4 j7月11日——7月19日   开槽篇

' Z* \# e5 w- u7 S* h5 u. T怎么不写了呢?  x! Y5 y' g8 }
回复 支持 反对

使用道具 举报

您需要登录后才可以回帖 登录 | 注册

本版积分规则

手机版|无图版|站务联系 | 商务合作 | 平台公约

信息产业部备案:苏ICP备05014191号-1 经营性ICP许可证:苏B2-20110445 苏公网安备 32060202000307号 © 2001-2019 0513.org All Right Reserved.

投诉争议 技术支持:第一互联 GMT+8, 2025-12-16 03:17 , Processed in 0.245229 second(s), 26 queries , MemCache On. 站点统计

快速回复 返回顶部 返回列表