濠滨论坛

点击扫描二维码

查看: 2562|回复: 0

【皇家花园】95平米现代风格|恰到好处的温柔

[复制链接]

该用户从未签到

发表于 2019-5-5 11:21 | 显示全部楼层 |阅读模式 来自:江苏
▎ 作品档案% o5 p* Q% ]0 @3 a9 F( E6 w4 N
楼盘地址:皇家花园
  m3 W- @2 b" [+ a5 _& S楼盘楼号:2#) W+ t9 v0 f  B* l4 c
建筑面积:95㎡
/ `& d+ P8 I5 j# t; M0 F装修风格:现代简约
1 G0 z  e+ o1 N! X3 t6 F设 计 师:朱方圆
* i1 W( O$ Y) @4 s$ \) t% C+ b" v. q0 |1 x  A: w1 U
▎ 设计背景0 x5 x4 ^$ D" T( n
九零后年轻夫妻,作为婚房。两个人都是从事艺术墙绘工作的。由于工作的关系,业主家对整体空间色调以及软装格调的要求很高,男主人擅长设计,很注重家里休闲阳台的空间规划 。在考虑房子主人的喜好特点的同时,既要有注重居室的实用性,又要体现出主人的品味。
- w4 V* F7 b$ L8 c8 v$ N; u5 H理由:与设计师的沟通很顺利,对设计师的方案很满意。  M7 P+ _: e( B/ Y
设计思路鲜明,兼顾效果的同时考虑业主生活上的各方面需求。5 x( j# f' E2 K- T( W4 A: k
* @8 X, u1 u* K" O0 E3 {" E- U
▎ 设计需求
; p( B* C6 n# j9 ]/ v' q& ~9 Q9 E' S①:需要独立的门厅设计,使空间更具层次感。
; s& ^  Y! Y5 G: u②:家具的选择上要造型现代时尚,又能凸显一定的实用功能。9 b. F" K/ I' l1 o6 b" D
③:从实用角度分析,需要衣帽间,储物要足够。* i7 a( G8 {* z
④:餐厅北阳台要调整为休闲阳台,做地台设计。. f$ y) S& H/ I' u) y
# n5 s6 Y$ B$ f( t( ^8 \
▼ 原始户型图
: z3 G3 \3 k7 K, }4 C% k# ` 原始结构图.jpg " @& v. b; U; m% o* O8 [" a" h$ v# D
& x; [7 U' f& ~  U# r0 b) f
▎ 户型分析( M+ Q" w- E' n8 C+ `/ [9 N# j
①:过道及房间墙体不对齐,整体空间需要重新规划。4 {" Q( T# V( F
②:南北很通透,且南北阳台皆为落地窗,视野开阔。
- A1 C& n  U- Q  ^0 |6 q# B③:北房间可以外扩,利用有效空间。" w6 I& b& E- p. Y( I, J
④:主卧及储藏间布局需要调整。
2 Z1 @7 q- C, I8 ~4 y; I) G, y
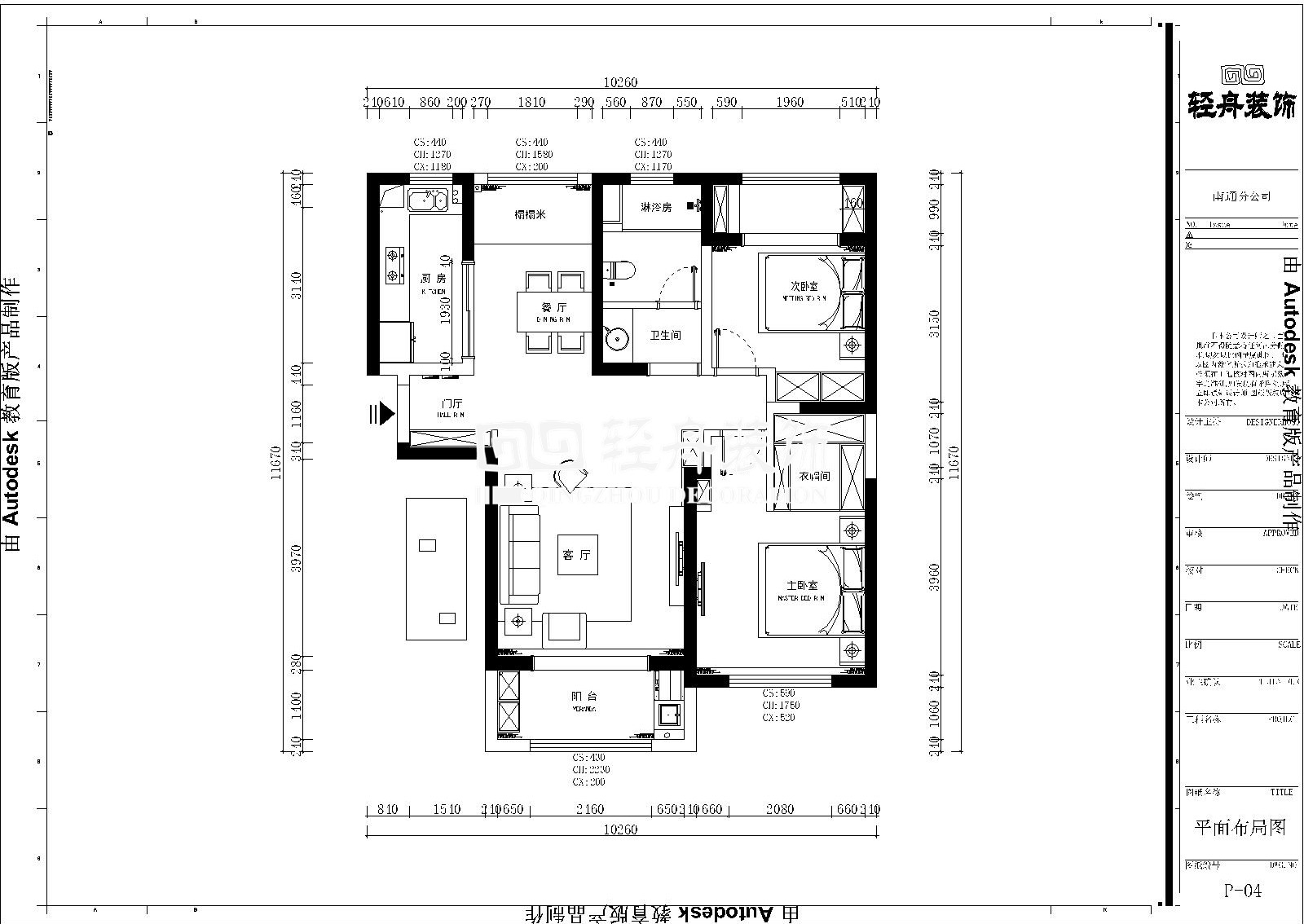
, f: J% p, p* {; m$ o2 y▼ 平面布局图
" h/ i7 f3 W6 _" E, `7 x) ` 平面布局.jpg 5 F  c$ Y9 \7 @; R. X3 Q1 [

; r) j; o  S/ a$ F▎ 改造备注: G8 T2 c7 S* _- a$ u
⑤:客餐厅及房间的采光通风都比较好。
& h: m) r6 d! k0 n# W- c⑥:整体动线较为清楚,动态和静态区分开互不干扰。- w6 N! L8 h5 k- N" V9 K% [" Z# f9 J
⑦:进门处需要设计独立的门厅,增加储物功能的同时还能更好的划分空间。
( G& y" Z8 V1 j* t$ d& V! w⑧:北次卧空间外扩,学习及储物区域皆满足。' i1 n% V3 P, V- f% [* L
⑨:储藏室改为衣帽间,主卧空间也更为规整,储物也更加充足。
9 e7 H+ C8 n3 X  j
* T- b1 E% _( y2 g% Y7 c" u' N▼效果图
- b" }3 O7 z3 ^: x+ p- {7 g 11.jpg
7 g6 @9 k) y; `2 j* z2 h
  |: ?! }+ Q8 U( p7 |% a
二维码.png

4 K" @7 k7 v. r4 I0 K- A  H3 x
-微信扫码看全景效果-
3 a* b/ E# X) S

4 K+ x$ Q# k4 T4 q: }▎ 设计亮点
  Y  a9 `9 v* b" Z进门处增加独立的门厅设计,空间动线划分较为清晰。北次卧开门位置调整,使过道更规整,完美地规避掉了顶部造型设计的局限性。电视背景墙装饰柜运用黑框灰玻,内部嵌入灯带,制造温馨时尚的氛围。设计师精心搭配的每一件陈设品都是空间中不可或缺的一员,吊灯,装饰画,皮质沙发与木饰面形成美美的立体画面,彰显主人的品位。也体现设计师的设计与搭配功力!从细节可以看出设计师的用心,给屋主实用而舒适的体验。
* j$ G% f8 B. V, |7 x; R3 F2 I' b& v# Y9 I1 l" |! L
0 h5 t. z; g% R* _* a- }# W
南通0
您需要登录后才可以回帖 登录 | 注册

本版积分规则

手机版|无图版|站务联系 | 商务合作 | 平台公约

信息产业部备案:苏ICP备05014191号-1 经营性ICP许可证:苏B2-20110445 苏公网安备 32060202000307号 © 2001-2019 0513.org All Right Reserved.

投诉争议 技术支持:第一互联 GMT+8, 2025-12-26 11:32 , Processed in 0.235027 second(s), 13 queries , MemCache On. 站点统计

快速回复 返回顶部 返回列表