濠滨论坛

点击扫描二维码

查看: 3672|回复: 0

【华强城】113平方米|一屋两人三餐四季

[复制链接]

该用户从未签到

发表于 2019-5-4 16:13 | 显示全部楼层 |阅读模式 来自:江苏
  P; w' ^; y9 j4 C; V7 i* N* W. c, E
▎ 作品档案
4 R$ w: H! i, ?4 w( F" r9 E7 a, X楼盘地址:华强城
! K( ]) `9 b. `4 d楼盘楼号:21#
5 d; ?% c( |6 L建筑面积:113㎡
; `" O: k/ i* Y# _* Q' r装修风格:现代简约
, e) s' m% G' e# R2 r/ m7 W+ o; W5 @设 计 师:刘菲
! w' |7 e. h% e+ z* K2 [- ^! E  F5 E) k) j0 n
▎ 设计背景
4 S/ p5 |( z6 H4 `* p1 ^客户背景:新婚夫妇,妻子是位护士,男主人从事自己的生意。他们对家的要求温馨,简洁。既要有注重居室的实用性,又要体现出主人的品味。8 D& \6 R0 ?+ F0 h
理由:与设计师的沟通很顺利,对设计师的方案很满意。
1 C+ o7 X; z5 Q6 o8 T设计思路鲜明,兼顾效果的同时考虑业主生活上的各方面需求。. T! S4 F* t& v* e7 H4 Y) K) A' \
+ F9 k/ K# u5 {  h. `
▎ 设计需求
0 q" m' |( ?# P①:需要独立的门厅设计,使空间更具层次感。
$ y- J+ W3 y1 g. d5 J2 N②:家具的选择上要造型简洁大气,又能凸显一定的实用功能。/ \: M$ ]( W0 Z9 N. @' T& M
③:从实用角度分析,储物要足够。% f8 z; N% B! [2 O0 D' w

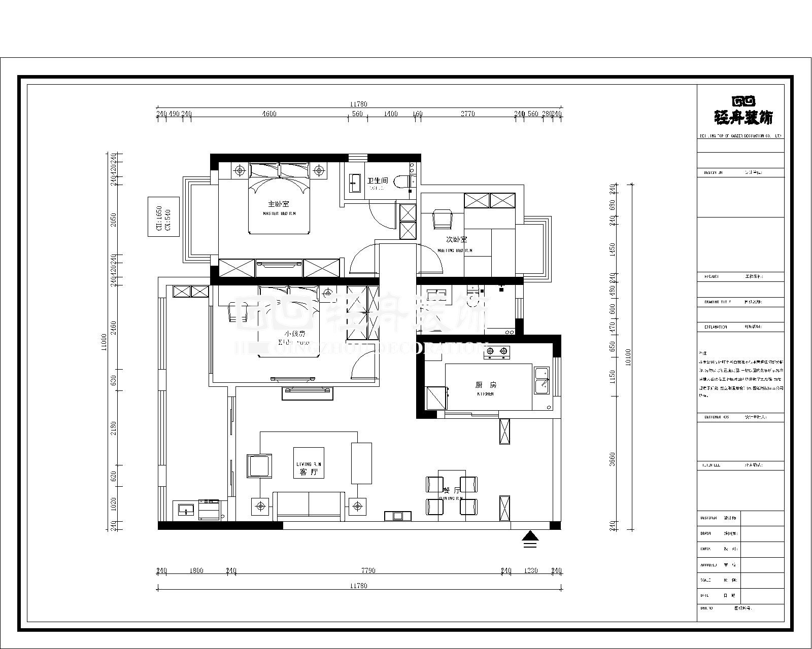
! y' ]* p# T6 w5 p▼ 原始户型图5 z' A. K3 ^9 x4 F8 W; a
WechatIMG40.jpg
1 _2 t& J" _# [7 i2 n! s# G$ b; Y& G0 M( a9 H+ @9 q5 d
▎ 户型分析
- ~1 ^" ?1 Z6 {& H9 Q①:进门处没有放鞋柜的位置,需要重新规划。
2 v' |8 P& N. r) X( s( N2 O②:南北很通透,双阳台更显空间的宽敞,且双卧朝南。! k% `" w6 R$ R# ~# J
③:厨房位置不够宽敞。
* o: {: J( e  ~% P④:主卧与主卫布局需要调整。9 w1 i. Z+ k3 v: T) s

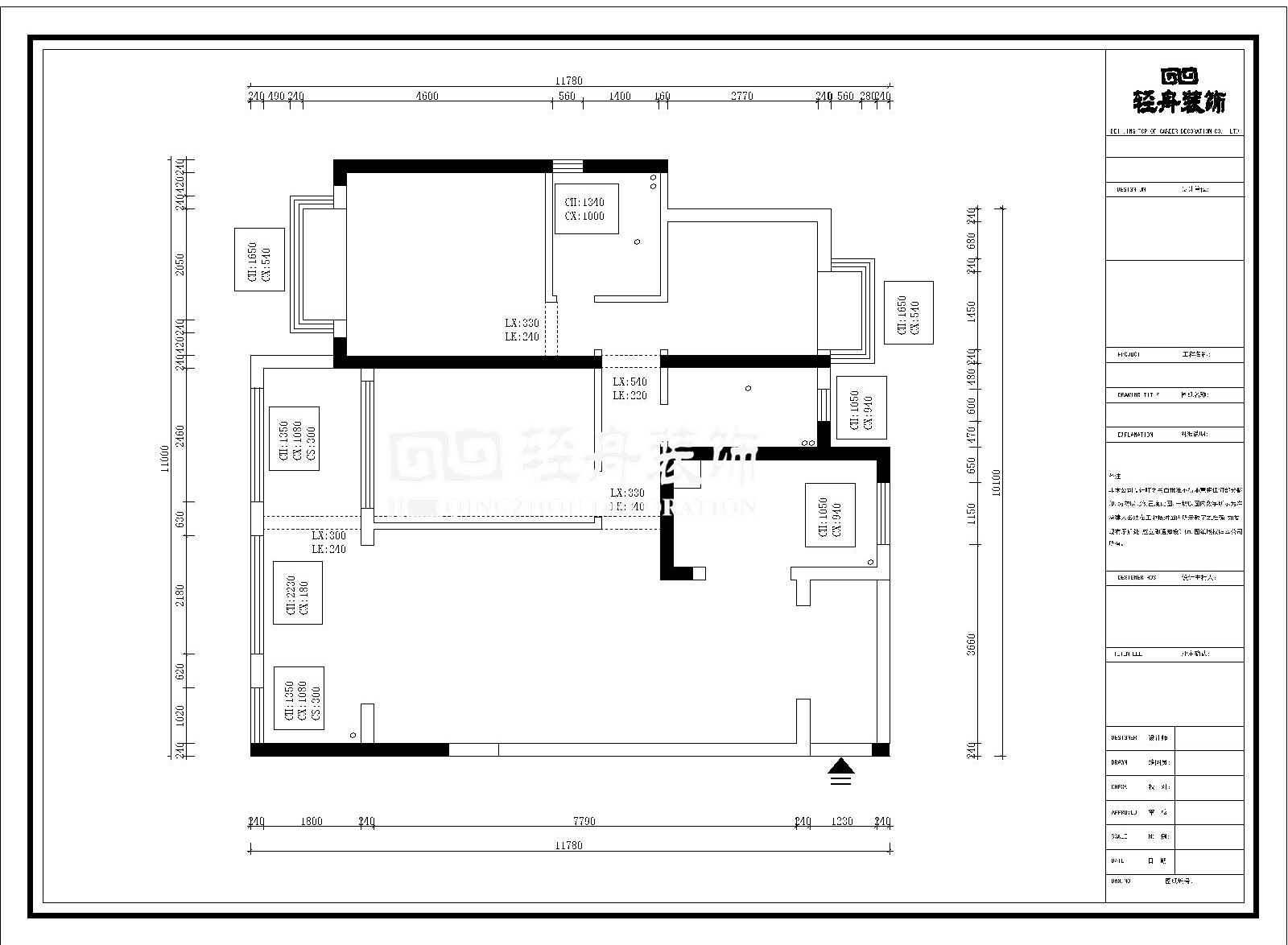
  a. b; E$ q4 L# ]. H▼ 平面布局3 Q- C9 F% Z* w5 c& L4 d
WechatIMG41.jpg ( H# T% s2 S3 |! o
6 t% }( Y; E2 I2 ^  P
▎ 改造备注
" J, m* E- j) E7 k) X! @7 U⑤:两房朝南,采光通风比较好。
3 U, e( R/ B& m5 Z5 v⑥:整体动线较为清楚,动态和静态区分开互不干扰。
7 A! ^0 W' D9 O3 q2 V⑦:进门处需要设计独立的门厅,增加储物功能的同时还能更好的划分空间。
+ @' f, l* K& d( ]⑧:主卧取消淋浴,增加主卧储物( D# e4 W) h3 B
⑨:北次卧女儿房刚好利用试听距离的优势做学习的区域。; [: x+ m- I' W7 I
⑩:过道柜增加过道视觉上的距离
/ X. z- q6 K) H
) W% z7 W7 w! a6 K▼效果图: G2 Q" h' {' ?. ?! h) x
1.jpg + Y$ b' e! Q" F, C4 `
2.jpg $ U9 g. v# T" L3 e' R# p
9 R2 ^6 [2 R2 B. w/ H- M
▎ 设计亮点/ [1 L/ m+ z6 a7 z2 ^$ D
  F$ o- A  U/ l$ S
进门处增加独立的门厅设计,空间动线划分较为清晰。整体大面积用的是绿色,客餐厅中的粉为整体带来活波的气息,整体空间暖起来4 u8 R( V, R, J. @/ ?% h+ K
/ I& u# d  b3 @/ S
8 a* N3 f0 \  w, j+ p) b& x
南通0
您需要登录后才可以回帖 登录 | 注册

本版积分规则

手机版|无图版|站务联系 | 商务合作 | 平台公约

信息产业部备案:苏ICP备05014191号-1 经营性ICP许可证:苏B2-20110445 苏公网安备 32060202000307号 © 2001-2019 0513.org All Right Reserved.

投诉争议 技术支持:第一互联 GMT+8, 2025-12-26 11:32 , Processed in 2.806638 second(s), 13 queries , MemCache On. 站点统计

快速回复 返回顶部 返回列表