濠滨论坛

点击扫描二维码

查看: 3104|回复: 0

【观河华府】116平方米现代简约风格|一家三口的轻生活

[复制链接]

该用户从未签到

发表于 2019-5-2 15:08 | 显示全部楼层 |阅读模式 来自:江苏
7 T" g4 `, c9 b; b5 M. i' O
▎ 作品档案
4 X. p) R3 x- p楼盘地址:观河华府
* Y  {: A/ R. E$ b! Z4 G+ i楼盘楼号:17号楼
1 }$ F. p$ T/ f" v1 f建筑面积:116.6㎡
2 L& D* ]) m! Z7 c3 g装修风格:现代简约
+ M- Q% J9 I" I% }" u( J设 计 师:朱方圆
( i$ k7 o6 X) ^: b! Q) p: B1 i6 L1 P% S
% w" }: [8 x" @2 o. z$ s5 N& J▎ 设计背景* d. n+ \. b9 ~5 X; P7 V8 m1 N
客户背景:三口之家,年轻的夫妻俩和一个上幼儿园的女儿。丈夫是做建材方面工作的,妻子是幼儿园教师。由于工作的关系,业主家对整体空间色调的要求很高,男主人擅长烹饪,很注重厨房的设计,同时也很注重家里每个角落的布局及软装搭配。在考虑房子主人的喜好特点的同时,既要有注重居室的实用性,又要体现出主人的品味。; ~) f0 j; c' p
理由:与设计师的沟通很顺利,对设计师的方案很满意。
$ M% J9 P* @9 E5 d; X: E设计思路鲜明,兼顾效果的同时考虑业主生活上的各方面需求。
+ a( R# L* \, [& z9 M
. ]! ~' p) y. ~▎ 设计需求. l$ _( x% u0 b' i4 ?" n: D
①:需要独立的门厅设计,使空间更具层次感。2 v# p4 q* @6 y/ e/ n- C8 s
②:家具的选择上要造型简洁大气,又能凸显一定的实用功能。4 p/ e0 u3 p& s8 k( `& j
③:从实用角度分析,需要衣帽间,储物要足够。
6 T% `+ S+ }8 L# ~" n5 }( l3 N5 `& F  Z
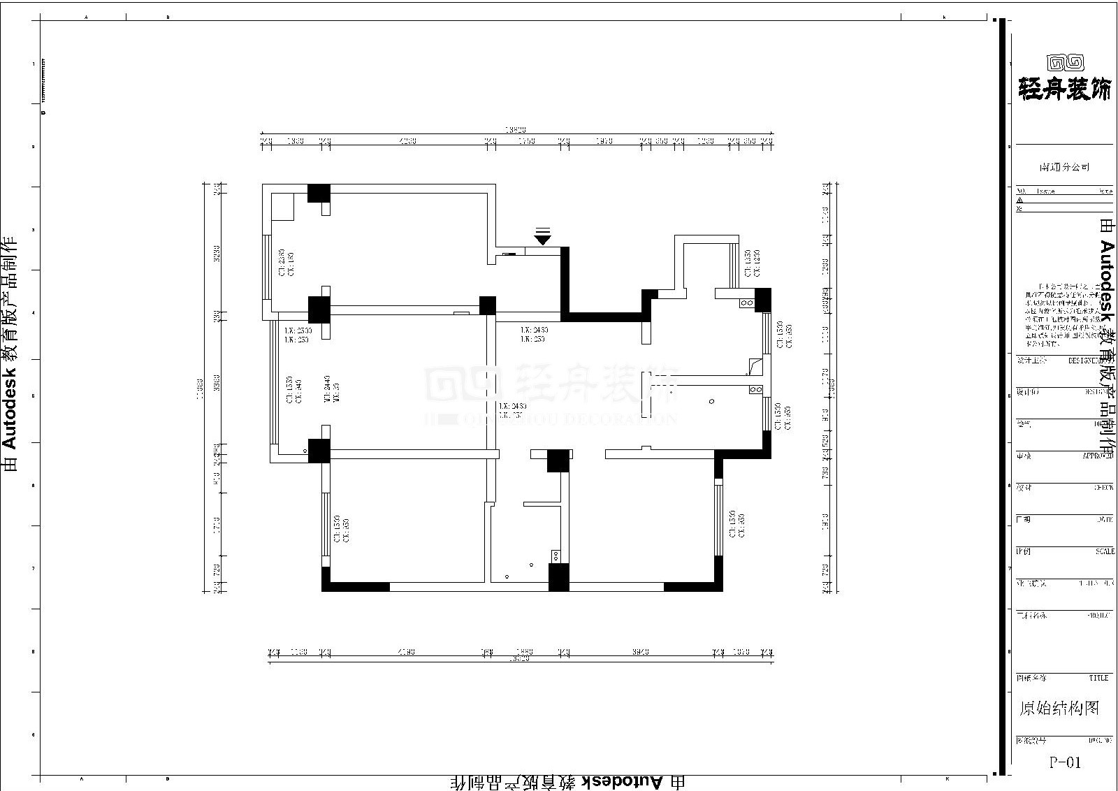
▼ 原始户型图
* w8 Q% ]8 F1 J) }! X0 ~ 微信图片_20190502150438.jpg
/ T9 M+ H% Z5 l# t7 B. M▎ 户型分析
9 J3 [; P! z0 F8 \$ ?①:进门处没有放鞋柜的位置,需要重新规划。
& x- }7 _  }4 u" [- }+ K% f②:南北很通透,双阳台更显空间的宽敞,且双卧朝南。
, H! L7 a* @0 w7 U2 y- ^# V2 p③:厨房位置不够宽敞。4 l: [+ w3 w' ]+ |2 k
④:主卧与主卫布局需要调整。- Y3 |9 K: z! }  G! I5 v
, l6 E1 B5 D. l4 M, Z/ R- r7 H
▼ 平面布局图& t" J" D) {8 Z, q6 u+ E  }
微信图片_20190502150433.jpg ' P) {4 M$ e9 J: x- r7 z7 u
▎ 改造备注; v3 B" k4 m5 {* J$ V
⑤:两房朝南,采光通风比较好。
2 R$ \, @" Y9 a⑥:整体动线较为清楚,动态和静态区分开互不干扰。" p8 e5 \" [# P; t
⑦:进门处需要设计独立的门厅,增加储物功能的同时还能更好的划分空间。
: Q- A6 |% t. D⑧:冰箱放置在外面,借用北次卧空间,整体更规整美观。; N1 X5 ]3 e8 L% x5 ?
⑨:北次卧女儿房刚好利用试听距离的优势做一些储物及学习的区域。
8 l3 g/ ]- ~: h1 s' E; r⑩:主卫改为衣帽间,主卧空间也更为规整,储物也更加充足。; Q* x. ^0 e$ q; Y3 D' I; U
▼效果图$ X' v% l# S; M* Z; e
微信图片_20190502150411.jpg
- q% H0 c( X7 K' f" e 微信图片_20190502150417.jpg
. h& q+ `1 N1 E: K  {. F: e" R2 d▎ 设计亮点/ v% `  i: ~# P* y# E
) r5 `! O0 @. i8 q
进门处增加独立的门厅设计,空间动线划分较为清晰。餐边柜与冰箱融为一体,完美地规避掉了冰箱突出太多影响美观的局限性。电视背景墙装饰柜运用黑框灰玻,内部嵌入灯带,制造温馨时尚的氛围。设计师精心搭配的每一件陈设品都是空间中不可或缺的一员,吊灯,装饰画,皮质沙发与木饰面形成美美的立体画面,彰显主人的品位。也体现设计师的设计与搭配功力!从细节可以看出设计师的用心,给屋主实用而舒适的体验。
, }  p8 Y  c, g$ u
5 J' Q1 m& \0 k% g! _
) m/ M1 g: d6 Q3 O( a南通0
您需要登录后才可以回帖 登录 | 注册

本版积分规则

手机版|无图版|站务联系 | 商务合作 | 平台公约

信息产业部备案:苏ICP备05014191号-1 经营性ICP许可证:苏B2-20110445 苏公网安备 32060202000307号 © 2001-2019 0513.org All Right Reserved.

投诉争议 技术支持:第一互联 GMT+8, 2025-12-26 15:21 , Processed in 0.181961 second(s), 13 queries , MemCache On. 站点统计

快速回复 返回顶部 返回列表