- 阅读权限
- 255
- 精华
- 最后登录
- 1970-1-1
- 在线时间
- 小时
- 主题
- 好友
- 相册
- 分享
- 日志
- 记录
- UID
- 811356
- 帖子
- 0
TA的每日心情 | 慵懒 2014-6-28 08:44 |
|---|
签到天数: 9 天 [LV.3]偶尔看看II
|
4 F8 X5 j9 F6 D' z2 c
! l/ a' X e/ q! Z7 m项目风格:北欧, G+ V4 e" H% Z) M k* p+ b& A! A1 ]
项目面积:90㎡
$ k; b+ D" d7 i% f设计团队:印象水仙设计% i# V5 ?4 `+ z/ Q2 o) d8 h. I- I
$ N3 l' h% h, D; h5 d4 v& `& Y
马卡龙是一种色彩鲜艳的糕点。
; {* _$ S! s- K9 Y$ j9 j随着这种糕点的盛行,逐渐形成了马卡龙色。
" U5 s( P9 C; g4 N+ _; K# X2 l很多奢侈品品牌皆以此为灵感推出过系列产品,$ s" |# Q7 `6 ^+ B
而这种色彩也逐渐蔓延到了家居装饰中。
D6 s% s' z+ i7 }如电影《布达佩斯大饭店》,满屏的粉红色,* n* P: H* E% g& ]6 T: G
就算盯着画面直到眼睛发酸也不愿错过任何一格," \6 `9 `: P0 k
柔和的画面总是能赢得少女的心。
, U& b; \" O6 ?% y( j( L. }
+ u1 \" B- Q7 k+ _, N
% |7 V$ M# I7 W: D m9 ]. y* s
3 ]9 C" |9 A L
背景介绍:# h' W) V3 m% W/ l5 S
业主是名年轻的幼儿园老师,平日喜欢绘画。相处下来,感觉真诚,善良,可爱,文艺。设计之初,为了给她构造一个温馨,甜美,又不会甜到腻的感觉,我们做了许多假设,最终决定围绕北欧风格,加入马卡龙的色系元素,做出甜而不腻,清新又自然的北欧风格。5 p9 |! C" I6 l6 K2 S2 }+ d
& b# }. ~/ Y9 t
原始结构图! }; t( V/ J" c4 F' ^' Y
5 `9 p$ z- ]& U
3 ~$ A/ W0 ?. _( Z3 h9 V) i5 \+ y% |0 A- @8 o4 F/ m
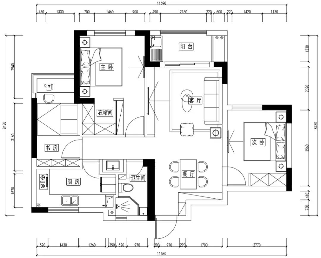
平面布置图
, g! s: `; e: Q8 h* |+ F; w8 ]7 ^+ R2 W+ t& o! q" h9 |( B. Y
# ~0 |+ E# i# s* j' W7 @
, l; T1 o+ w' k3 P" r5 p4 G客厅/Living Room
- v) e- G7 c o" D( L0 K! {9 m2 B2 ~5 z; V$ j. P
7 j& E2 E3 w7 E. u4 l9 ~) _
% n0 [- ?$ p, F4 e0 o% ?6 A6 G
不管是樱花粉、薄荷绿、奶油黄、淡湖蓝、还是丁香紫,这些温馨纯粹的色彩能让整个空间都软化,令客厅看上去清新自然,也更加时尚靓丽。5 g! Y7 K. h _/ Y# l0 D2 g, Q8 O
1 I% D+ x# N7 K) }6 S; s
) O3 Z H. a" V2 ^2 T1 L( p
: l& {2 Y2 B# m# T0 q% C' m
) O" R- I! n( t8 ^. Y2 c3 I$ R
( _5 y$ Q- ?' D; A餐厅/Dining Room
# [6 ]- b- m9 V0 ~$ W* e, P) e* o# z3 [
. T$ y, f! q. x8 J
( V6 y( z+ s( {0 I: |4 j. Q
5 }% S" p" U, m' g7 {5 C( Y. `
" u& f2 Q; V/ H
主卧/master bedroom
T' h7 v& R8 z1 x, i5 j0 Z% g" \& g9 `( @ ?) ]
$ r" r, b8 x/ g) @* Q
8 u4 I# O+ @, Y将温柔的高级绿揉进空间的基调,床头两边的床头吊灯使得卧室恰当的传达出轻松与精致感,但愿沉醉其中不复醒,留住这一抹颜色。
8 D* p5 E) w! B& o+ Y4 h/ f
7 s3 g2 q5 Z2 c) {
' [) _) ^+ O( M1 D& U' X
, `8 P9 C& p- r: @
老人房/guest bedroom e1 `7 U& G* O: J
7 C4 g, b1 |0 B4 ^9 T( j2 O- x8 Y
- f) M# J6 T; `! j
# W+ g M8 K1 h9 S( j6 l2 a. k% B
- m+ R6 {' g; I2 h- H5 k5 G
! c) C% p# `# _3 {0 X, D: D书房/study5 [+ o& A7 X7 b" U/ B
/ B( y& W6 m9 I9 n
0 f9 C5 C8 V/ y2 ~
8 F, I$ V% R% | u" i4 O书房是我们给业主设置的个人天地,平时的绘画与学习都在这儿进行。阳光透过落地窗洒在画板上,充满了浪漫舒心。
6 C# W7 _; X) |# C# w. p- k! J粉嫩色是马卡龙色系的代表色,将其运用至空间内可让色彩柔软你的卧房,生活本来就需要淡然随和,在少女粉轻柔的点缀之上,平衡居家色彩,增添柔和感。- l+ o4 O! ~; r( v6 ~4 v: T6 R
# g8 n* I1 Y7 ~( A
2 v5 k4 {. w* A! I3 m% J
- @, E( Q; E; \. k h
|' ]& J, t, c9 c0 k
& t* \7 q; w1 j0 k8 Y/ c4 A4 |2 W盥洗间/ lavatory ( N! _" e# s0 U5 L1 X
$ }1 f* L. h6 g) o& K, T% W( Z
3 _, p- T0 m7 ~: X$ L, o
4 `. I" x! r0 M9 O; ]8 }1 C伴随马卡龙香味,邂逅一抹碧绿与桃红,搭配原木色台盆柜,带来幸福与浪漫,精致惬意的生活。9 q% u3 Z, F8 ] O8 X6 W
. P# ~) i% d% t: @4 s& l
* U9 K: m6 T8 R( }$ ^' N& H
6 Z4 V% h, k' U卫生间/ bathrooms1 G; D: A- s- ^4 r
f9 X* ^ o9 ?- Q8 @
# r% C% G* [) Y) K
0 Y. [( P x0 q; z1 \% t% O
3 B% o9 ]; m9 _' j* P5 y+ N+ Y5 s$ P0 v/ X0 a
7 F2 A) ?. H+ ~' | d南通0 |
|