濠滨论坛

点击扫描二维码

查看: 2764|回复: 0

【香溢紫郡】96㎡现代简约|快乐如风存在于黑白之间

[复制链接]

该用户从未签到

发表于 2019-4-3 15:29 | 显示全部楼层 |阅读模式 来自:江苏

! q& f% Z9 b  f# ^* Q2 g( s▎ 作品档案
9 `/ A- L) }: H; g# J" Q楼盘地址:香溢紫郡* N% }  J- `5 z! B
建筑面积:96㎡
3 R& K& l2 S/ W装修风格:现代
  c" W& \! T: X设 计 师:孙滢( r; q5 U8 t- Z% V9 A8 C/ G9 `: [0 }$ o
6 V+ ?0 A; ?) k( o
▎ 设计背景
( c) o: G- ]4 [+ R5 `- F/ B三口之家,年轻的夫妻和一个上幼儿园的儿子。业主是公务员,妻子是初中老师,业主家对整体空间色调的要求很高,很注重家里每个角落的布局及软装搭配。在考虑房子主人的喜好特点的同时,既要有注重居室的实用性,又要体现出主人的品味。
! k& I- B& F5 F理由:与设计师的沟通很顺利,对设计师的方案很满意。- @4 t  ^. J  p5 k7 e! M/ O0 c/ v
设计思路鲜明,兼顾效果的同时考虑业主生活上的各方面需求。9 M5 |5 A0 f. p1 `' y

. R9 J" Z  D& O8 t& y% o▎ 设计需求; V7 U0 K" W" n5 s
①:家具的选择上要造型简洁大气,又能凸显一定的实用功能。* \% f! w' g2 D5 T( U
②:从实用角度分析,需要衣帽间,储物要足够。8 B$ _# v5 n+ c# Y) K
③:满足日常的生活。
& e, n* ]2 b9 A/ j+ Y
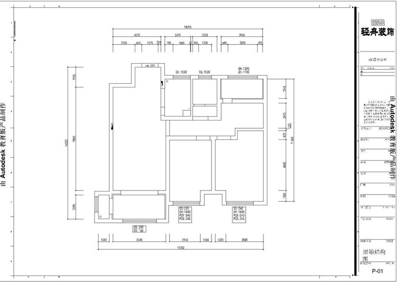
. ?, [3 b5 l2 _▼ 原始户型图
, X! v  Z! s, x3 H& Y8 W/ K 原始结构图.jpg 2 b+ T$ ^# {% C$ G, w: n% [3 R
▎ 户型分析
( K7 o- `. r* l% u" s①:小户型因为面积比较小,所以房价也就比较低
- G* k, W3 a" p9 U9 w! x0 P6 j②:南北很通透
/ _; N$ d) y" t9 @: g$ F③:由于房屋面积较小,使用率比较低。
0 l, m# W2 r. N4 s  d
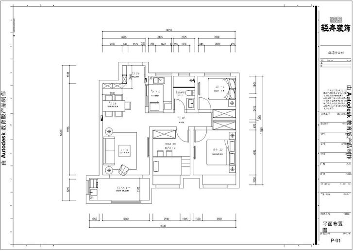
% W: F9 X5 H$ V  y+ _$ h▼ 平面布局图
5 M! \  m0 q0 V+ ~8 j 平面布置图.jpg
1 @8 u: T/ q, s$ q  H9 h! b* y  b7 N, p$ h, G9 p
▎ 改造备注, m6 x9 c$ B- m- A  Z) c8 t
④:两房朝南,采光通风比较好。
; A: {- T; j+ U3 g⑤:整体动线较为清楚,动态和静态区分开互不干扰。
, P8 v" P# `. T⑥:充分利用外部空间,使房间内部空间更为宽敞。2 D1 o/ v. c+ y
▼效果图( D7 B# M$ M: X8 U: `
设计效果图.jpg + k, C+ {$ G* n" j0 V1 @
效果图2.jpg
7 v/ T6 {; f5 A6 g7 L6 {" _1 G$ h7 ~. z; K8 S* I
▎ 设计亮点
# k6 B3 J2 V' c! F3 G9 Q2 C进门右手边的柜子是一个亮点,白色大气与整个客餐厅融为一体。从细节可以看出设计师的用心,给屋主实用而舒适的体验。  {( }0 g" @: ^  I! X

3 d; z5 n4 T: g- g  A
& ?. s! t) f2 v+ b  O3 j南通0
您需要登录后才可以回帖 登录 | 注册

本版积分规则

手机版|无图版|站务联系 | 商务合作 | 平台公约

信息产业部备案:苏ICP备05014191号-1 经营性ICP许可证:苏B2-20110445 苏公网安备 32060202000307号 © 2001-2019 0513.org All Right Reserved.

投诉争议 技术支持:第一互联 GMT+8, 2025-12-26 07:36 , Processed in 0.144193 second(s), 13 queries , MemCache On. 站点统计

快速回复 返回顶部 返回列表