濠滨论坛

点击扫描二维码

查看: 7717|回复: 1

【星光域】可盐可甜的三口之家,85平米简美风格

[复制链接]

该用户从未签到

发表于 2019-3-21 16:29 | 显示全部楼层 |阅读模式 来自:江苏
▎ 作品档案, n+ r" `9 a. t; `( s0 `) D# @1 z
楼盘地址:星光域
: o' q  l1 K0 n: z6 w# x楼盘楼号:27号楼' [4 B; `! C# q, a" S
建筑面积:84.6㎡
4 Y! |' p7 Q% h2 h; U4 X装修风格:简美
: \* L4 T0 A( ]/ O设 计 师:孙滢
6 a5 T9 F* n( D
( i, {* M* H. Q! L2 z4 ?7 {% \( d- U▎ 设计背景
5 ]: M( r4 Y) M. P1 Z" N客户背景:三口之家,年轻的夫妻俩和一个上幼儿园的女儿。丈夫是做医药方面工作的,妻子是医院护士。由于工作的关系,业主家对整体空间色调的要求很高,男主人有轻微洁癖,很注重家里每个角落的布局及软装搭配。在考虑房子主人的喜好特点的同时,既要有注重居室的实用性,又要体现出主人的品味。
: i7 r, {7 `) w3 P6 n# @理由:与设计师的沟通很顺利,对设计师的方案很满意。" {) |, y, g) }3 D* ~2 A
设计思路鲜明,兼顾效果的同时考虑业主生活上的各方面需求。! g( h5 l# p, |2 o2 j, y# K& ~
0 X1 c1 y+ B3 e; r; V" F
▎ 设计需求
" |( s/ Q3 N' ~. T5 a①:需要独立的门厅设计,使空间更具层次感。
# U: K$ |# {. p% N, t②:家具的选择上要造型简洁大气,又能凸显一定的实用功能。0 {! E. ]& j7 m7 j
③:从实用角度分析,需要衣帽间,储物要足够。7 n4 z0 ^) D4 T: o! ]

, C; F4 |/ m3 Z. [2 `% T, x▼ 原始户型图
1 ~# q- p2 p  Q; [5 V 1.jpg + `, E) Z# `7 c! S. U& Z
" n. v8 [& |" a( R
▎ 户型分析" A7 M# d* \' K  D% j/ f% _/ @
①:进门处没有放鞋柜的位置,需要重新规划。' V9 t+ T# U9 ?" N' u  l
②:南北很通透,双阳台更显空间的宽敞,且双卧朝南。
, Q& m; d9 u) {③:餐厅位置不够宽敞。
2 R  p0 W1 D/ |9 c8 Y& o④:主卧承重墙部分让设计有一定的难度。8 O/ P' n7 ^/ E: _  |

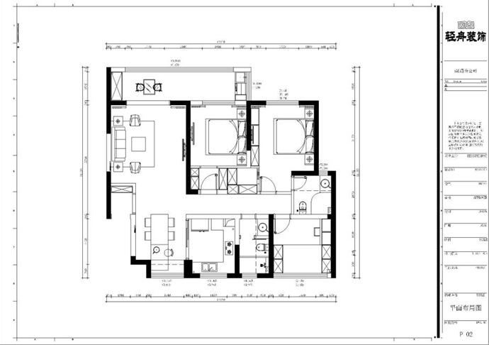
8 N- D4 x! c+ V  ^$ K3 \▼ 平面布局图
2 i4 ~- ?0 a2 E$ c/ s 2.jpg / j: o+ K6 O. ^) [

, a& i; M, ]% P, c* b▎ 改造备注
! J& D. e0 |5 r# @2 S⑤:两房朝南,采光通风比较好。
+ B' P0 Q7 j- F8 b. p5 F# R; n( \⑥:整体动线较为清楚,动态和静态区分开互不干扰。
) ?& D. M0 j8 N# @⑦:进门处需要设计独立的门厅,增加储物功能的同时还能更好的划分空间。
0 e: W% r4 L- Q7 ~! E⑧:充分利用外部空间,使房间内部空间更为宽敞。$ x+ P" J$ {" j% L) x$ v% x8 K3 Q

! p* e7 b( ?% K% K; I# r, G▼效果图
; y: c* K) B/ q" T QQ截图20190321160936.jpg
) X* Z$ G8 k9 T( P0 M0 y9 J4 a# O( ? QQ截图20190321160946.jpg - L8 M( W7 c, H
  y, H' f. `: R8 {
▎ 设计亮点
; f9 Z1 ?  _4 f( {进门处增加独立的门厅设计,空间动线划分较为清晰。餐厅超大岛台设计结合空间实际,完美地规避掉了局限性。设计师精心搭配的每一件陈设品都是空间中不可或缺的一员,吊灯,装饰画,实木家具形成美美的立体画面,彰显主人的品位。也体现设计师的设计与搭配功力!从细节可以看出设计师的用心,给屋主实用而舒适的体验。
! P( H! f+ B" x: k; D/ ]2 C8 c" M/ ~5 v# s' C6 {
& M: X+ R+ }/ I' k( \' e
南通0

该用户从未签到

发表于 2019-3-22 12:40 来自手机WAP | 显示全部楼层 来自:湖南
楼主是不是弄错了?84有这么大?怎么和我124的户型图一模一样?
回复 支持 反对

使用道具 举报

您需要登录后才可以回帖 登录 | 注册

本版积分规则

手机版|无图版|站务联系 | 商务合作 | 平台公约

信息产业部备案:苏ICP备05014191号-1 经营性ICP许可证:苏B2-20110445 苏公网安备 32060202000307号 © 2001-2019 0513.org All Right Reserved.

投诉争议 技术支持:第一互联 GMT+8, 2025-12-26 13:27 , Processed in 0.200786 second(s), 13 queries , MemCache On. 站点统计

快速回复 返回顶部 返回列表