濠滨论坛

点击扫描二维码

查看: 2602|回复: 2

1个人住170㎡,极简生活,才是一个人的高配

[复制链接]

该用户从未签到

发表于 2019-3-15 10:50 | 显示全部楼层 |阅读模式 来自:江苏
( |. a. ?2 j' A0 }! }% N* o
一个人的生活,无需多么复杂,
- h5 s4 Y8 W, m' [
极简就是最好的生活法则。

2 ^5 L; o7 g7 S, j0 l1 h( V% K' \
极简住宅
* i1 j7 ]" a" s3 l; K% u
今天我们要分享的家居案例,
来自于一位90后单身小伙和他的好伙伴——
一只柯基的家。
0 l7 U% Q$ {/ R4 R4 f
ac252068fe353cf68e7f4ed3ca7c2d7c.jpg
- S8 Y0 k( c6 F/ J/ T
房子的面积有170㎡,
坐落在上海松江的一个小区里。
要说一个人住这么大的房子
就已经足够奢侈了,
更让人羡慕嫉妒的是,
房屋的装修设计及后期软装,
竟花费110万元,
果然是有钱人的画风啊!
5 V- D5 v" L& Z
0ab62280bcda30fae9631281ffe6bb71.jpg
$ v  \5 b. v: \3 U
其实,经历过装修的人都知道,
这是一件特别折腾的事情。
如果单纯以简单的黑白配色,
为家里装出高级感,
那更是难上加难了!
$ H1 @+ r& B1 a- ?: m+ H( f
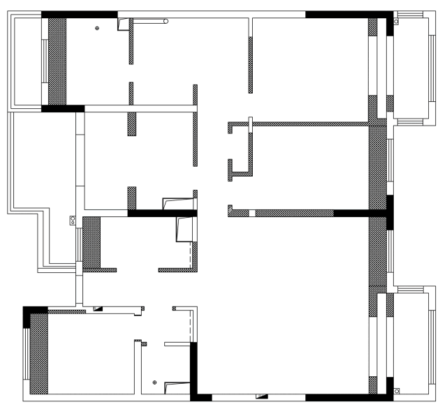
男主家的房子也是如此,
尽管它的室内面积比较充裕,
但是过于狭小的厨房空间,
加上碎片化的畸零空间,
总给人一种十分局促的感觉,
一点也体现不出房子的宽敞大气。
所以,他决定邀请设计师为其重新改造。

2 N8 x7 h2 X. h/ y( m7 U
fdf2ea5c078aa43d1e009e5a54909730.jpg

1 n) J( D) D' Z/ W
原始平面厨房空间
8 }) t" i3 |9 K; ~  `4 ?
改造后的房子,
将厨房移到了旁边的闲置角落,
原来的位置则并入玄关区域,
让人一进门就能感受到家的简约舒适。
' E# u# l) y$ b; |- b" y" ~( n
a6c2aa4e094d713d97f07731affeec54.jpg
9 W4 G1 Q8 F7 a4 g6 f. v+ z* l7 X4 S$ o
设计后平面厨房空间

0 }7 H3 I3 f2 `) I' x' {  h
玄关
3 n0 {1 V" ~5 `( d& @
大面积的黑色烤漆墙面,
与门的色调融为一体,
左侧打造置顶式悬浮壁柜,
既充分利用空间,
又形成了黑白对比碰撞的效果。
9 M! A1 `* ~# k; f  Y
1bb503fac10da874c82a3d0cfd2d0a4d.jpg
, o: n! X0 {3 X8 Q3 h, Z0 r
另一侧的大幅装饰画,
与空间格调进行了完美呼应,
同时将强电箱隐藏起来,
显得格外的简单文艺。

" L5 J9 a/ D- ?; W! L1 U4 M  w
f504a361268fca2fb8219e9319c9fb72.jpg

8 g6 V$ H* @* _2 [+ W  j
一张大大的换鞋凳摆放其中,
可坐可躺、方便移动,
让人一回家就可以享受扑面而来的舒适感,
这才是美观实用的设计啦!
3 y: ~* y' ~. y" S# W7 v7 C
玄关柜的收纳空间很充足,
全面考量了主人的需求,
将鞋子、包包、大衣、煤气表等收纳其中,
外观上与整体风格一致,
为这个空间带来几分舒缓的气息。
9 k, _% f6 K% e/ p3 x9 [# n, S) Z
905a3dc9ec04b50ee5452c1015f5aa92.jpg

( d  e* E, v1 Z. c4 G) `
玄关再往里走便是一个T型岛台,
它是作为玄关与厨房的隔断而存在,
并将管道井隐藏在内,
从视觉上完成了空间区隔。
4 _, }1 f( M6 \! _) I' b* w! m
客厅
2 L/ b4 ]; f0 S& @* ^6 u; V
客厅依然走极简路线,
里面采光充足、配色大气,
再加上嵌入式灯带的巧妙衬托,
让整体显得时尚又高雅。
( y9 m6 \. l) i) L
5b0923a8ce135bb58a24d07bda777235.jpg

' Y) A: V8 C  ~* W: A6 B( L
浅灰色沙发成为空间的主角,
可以让紧绷的身体得到最大的放松。

" d/ ]  V4 |, H: j+ B; G0 j7 w
客厅不放电视,
连“正经”的茶几也没有,
只在沙发角落摆放了一个小圆几,
再搭配一盏造型简约的钓鱼灯,
设计感一下子就出来了。

3 O4 u% S! {( v" _( _3 g
16e1044e23bc24fa149a22be7e7728db.jpg
+ E* \' W3 B% o5 D7 A- \4 [2 r
由电子壁炉与皮质沙发组成的
温馨角落,
让人即使在寒冷的冬天也依旧温暖。
闲暇时,可以坐在这里看书、聊天、喝喝茶,
更是别有一番情趣。
. _& p+ A  ?: |/ p, r; e: X* @
86e503117951d2365f4324c2601a2e09.jpg

0 Z. O4 P" W1 s- c* l/ P. S+ I* L" \# _% }+ x
餐厅

+ T5 g5 ^% l! ~8 c4 p
岛台餐厅位于沙发的背后,
采用纹理独特的花岗岩材质,
为空间注入几分活力,
带来一定的装饰效果。

' D  A7 Q. O% c6 _4 Q% e# E
6e498585e67e56286129bdd737fdd9db.jpg
! L, @" j% G/ k) Z& I4 d2 {0 ~
墙面的个性挂钟,
造型别致的细脚餐椅,
在增加空间趣味性的同时,
又用简洁的设计语言,
勾勒出整个区域的层次感。
( l7 `3 z' X# o, \; s( r
4e8df6053e56fbc48934b0761b66039a.jpg
: X2 ]  {7 m8 C1 g  j. r2 _1 p
这样的设计,
让原本被割裂的空间动线,
显得更为明朗了。

3 B9 ]- s! \) u0 ?3 t7 H
1e3cd13b8db057484dbc49b8bac57033.jpg

6 {' C; i' @1 X9 E: e9 ?0 I5 P
岛台后面的折叠门还可以灵活开合,
在打开状态下,
能够充分打破空间的局限性,
提高整体利用率。

) n2 h2 \! p' _% O1 Q. ]2 E
a9d6e9d8b1d56f69b65449c0d07dd9c7.jpg
/ c! `3 l( |3 u0 Z0 ?3 p
10b3d9407a74c397f2a4583b27455428.jpg % Z, M8 X& K9 ^8 k7 M, W

6 l$ F# Z' ]/ Y1 p
3622fae08182e9f255a3ca6774f74cb1.jpg

& q+ ~6 a6 q; `+ \  _! O
. u  [' G7 _: Q) U) G! @& Y: j) r3 M
而当折叠门全部关闭的时候,
一个较为封闭的储物间或活动区,
就这样诞生了。

! x3 I# w$ v) r, ^7 Y
e46fbf14ef82feb119465f3872a65a39.jpg

* w6 J0 p2 u/ ?3 r7 ~  o* q. z
另一侧的墙面应用“墨菲床”设计,
让它可以分分钟变成一个客卧,
客人来了也不怕没地儿住,
简直像空间魔法一样神奇!
) U. [5 R$ @6 n4 M" m
45635301bb1b403a401c78e1c0bff670.jpg

! @( U. }* j! ^# w/ {1 S
厨房

6 J& ^! T' v, Y- _5 v* o
厨房的T型岛台,
起到了自然衔接的作用,
让玄关和厨房得以背对背布局,
而且同时服务于各个空间,
平时作为用餐区、展示区或辅助收纳,
都是不错的选择。

0 w  ]7 G1 \: b' F5 v
28d60ea7ff73f90f4335f96838c06428.jpg
+ y' c/ S0 y8 E" x% @5 i* N6 [
岛台材质选用了不锈钢饰面,
与白色石英石进行混搭,
简单中不乏质感,
展现出独到的艺术品位。

( u; |5 j! a) {8 y' O' U/ V
56cf8866606afb2bb5a87be8357554f8.jpg
3 G3 e7 _5 c" [! ?, Y+ x; |
厨房区域延续了全屋的极简画风,
将各种大大小小的电器和厨具,
皆收纳于整体高柜之中,
最大化地还原视觉一片清爽。

9 b: `! F2 R3 l9 T
df0ac2a32a0ac05b81cf173de4c2e227.jpg

! i/ ?5 I8 k" h0 A+ M% j
厨房的其中一面墙,
还铺贴了一整块白色烤漆玻璃,
于细节处体现出不同材质
的相互碰撞。
( O  F  z3 d2 w" l$ t3 a3 I1 X6 T
51b8e2661460033521b6dcf9ec734f26.jpg

  X8 P4 W0 H/ w( j4 p  v/ M
转角处的洗菜池设计,
再一次实现了空间的极致利用。
* G1 y- i8 ]/ c$ b+ o
主卧
' T7 Z9 o  p8 {! Z5 W
主卧被安排在走廊的尽头,
以一扇白色移动推拉门作为分隔。

# z6 U% Y. [4 u" \
ea296f716a4b3dfa778c9efa48038dca.jpg
5 \. ~  {. B* B5 ~1 v" l
推门而入后,
首先看到的是一个精致的衣帽间,
里面的白色柜体+米灰色皮革饰面,
全都是定制而成的。

  |+ X9 q7 t  i
e7c827ec053cc3df044ae8085cadc12b.jpg
2 _3 r% D- K3 v2 b3 i4 s7 H4 [
为了中和黑白空间带来的清冷气息,
主人还用了一个大红玩偶
来点缀空间,
瞬间给人一种眼前一亮的感觉。
$ t7 e9 |7 B9 }' ?
919069f7688e1a2376e367612d4305ed.jpg

- p3 r# y+ x" Q5 o7 ]- L; ^8 Y
玩偶的旁边设计了一个黑色格栅,
既不影响居室的通透性,
又可以保护主卧隐私,
半遮半掩,
非常有艺术感。
& ?3 u% U4 O$ E
5dfdcc8bb390a9c51ca6d35ae38f90be.jpg

/ J* |: Z4 H# X/ o
12233e0aacaf832903ea84b9ec889ec1.jpg

$ r) _/ |5 j4 o: S
36f4fd9eceb9c5374ae9bc34b187cc2c.jpg
( x6 Z$ o" p5 X
一眼望去,整个卧室简洁舒适,
以水泥漆+木饰面的极简组合,
打造出一块富有艺术感的床头背景墙,
其他角落无所缀饰,
给予了主人舒缓压力的私密空间。

7 Y+ E4 W( j5 s* r
fdbbe4a9ffb1de8ea56ff736ea4c8e6e.jpg
& Q8 C  `9 V: @% |: j
3163a52ff4ae54ca47c8208684a6113b.jpg

+ @  v) e" A# ~/ E6 j6 f* c! ]. L0 {% s2 r
卧室里没有主灯,没有电视,
完全不按套路出牌,
却让人感受到浓浓的惬意气息。
一幅装饰画、一面观景窗,
就营造了一个无比优雅的起居氛围。
9 E( U, X8 m+ f' {& t9 ]! p
c5e786eb6b1550e24c8abaacb82e7128.jpg
% F2 L1 g6 _& q8 |, s! }& Y2 D
地面与墙角的接缝处越是简单,
就越考验工艺技术,
所有的线路都被完美隐藏起来,
外观上更加简洁好看。
' B: Q8 R6 R  h& {2 Y
714e70baf80252e63b4d60b485e3df7d.jpg

1 {: i% D- Q5 h8 u- u1 y
主卫
% D+ H/ B" y% V& `7 y
b1ff508128e9286bc56d0461cacbb493.jpg
; P8 M5 O$ J3 C; B
主卫紧邻衣帽间而设,
将近10㎡的空间面积,
不但进行了干湿分离,
还以大理石花纹砖进行铺贴,
搭配白色双台盆与大尺寸墙镜,
为空间造就了个性时尚之美。

6 v8 ?  R  Y3 B5 Z" |
da7fb3db5463d59d7f33849e71e359f4.jpg
1 l# q) O1 y% m" f' F0 }. i! {
玻璃淋浴房内摆放了一个白色浴缸,
让空间做到干湿分区,
加上明亮的光线作为点缀,
使得空间清新怡人、舒适减压。

* E% d: P1 j/ k7 y+ G  \# l
71d8ed4af52b13b7c038616751dc51a6.jpg
: K2 C9 c% g# ^) E% _4 d
想象一下,
在这样的浴室里好好泡个澡,
整个疲惫的心都会得以平静吧~

: S+ t2 A+ d" P
ba698b4d434fd7884568bccffe1d344a.jpg

' G2 M4 c4 R( v+ T# I南通0
匿名
发表于 2019-3-15 14:53 | 显示全部楼层 来自:江苏
提示: 作者被禁止或删除 内容自动屏蔽
回复 支持 反对

使用道具 举报

匿名
发表于 2019-3-15 15:13 | 显示全部楼层 来自:江苏
提示: 作者被禁止或删除 内容自动屏蔽
回复 支持 反对

使用道具 举报

您需要登录后才可以回帖 登录 | 注册

本版积分规则

手机版|无图版|站务联系 | 商务合作 | 平台公约

信息产业部备案:苏ICP备05014191号-1 经营性ICP许可证:苏B2-20110445 苏公网安备 32060202000307号 © 2001-2019 0513.org All Right Reserved.

投诉争议 技术支持:第一互联 GMT+8, 2025-12-26 13:27 , Processed in 0.231516 second(s), 14 queries , MemCache On. 站点统计

快速回复 返回顶部 返回列表