濠滨论坛

点击扫描二维码

查看: 43995|回复: 5

新婚小夫妻爆改三居室,来见识下什么叫最大化利用空间!

[复制链接]

该用户从未签到

发表于 2019-3-14 15:25 | 显示全部楼层 |阅读模式 来自:江苏
对于一个女孩子来说,装修中最幸福的事不过是遇上了与自己气味相投的设计师,有一个爱自己并且在财力上全身心支持的老公,还有一套能够按照自己的意愿和想法来装修的房子。

( G% c0 }: A5 d' n) \
住在理想家中,每天睁眼就是最爱的人,清晨的阳光散落一地,有你有我有爱,就是最幸福的样子。快来看看今天有爱的家又是哪般模样~
" n, B9 u& B  o' b
' a1 D7 V9 J' i1 G3 X) Q7 _: ^1 |
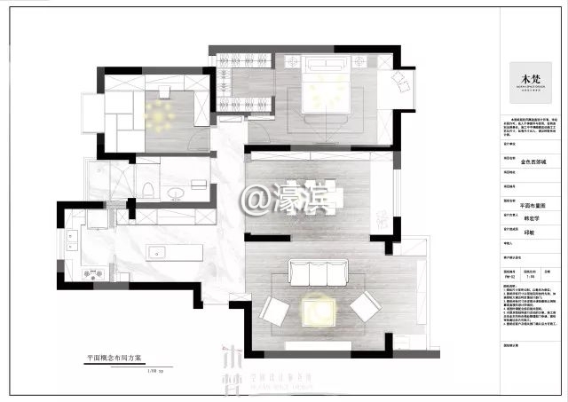
平面图
c7577e0f22c6a294a5673f3d4b3bafc8.jpg
/ Q/ g, ^- S$ W- t" J. z
原本三室两厅的结构被这对新婚夫妇改成了两室三厅,虽然140㎡面积不小,但是能将空间利用最大化何乐而不为呢?

( d, R# p* z2 a$ E0 J9 S
更改后的动线更加方便,室内的光线也变得通透了许多。而且小俩口不需要两个卫生间,就将主卧内的卫生间变成了女主想要的衣帽间,储物空间也大大增加。
3 e4 R( @& F* e

0 T! _  _5 \  D+ F. x% |
小阳台封闭起来改成了淋浴空间,实现了卫生间的三分离,早上抢卫生间根本不会在这个小家里发生。

8 ?# [0 w$ {" t
客厅
7becb53b9d782066aece15a326c343f8.jpg 7fa86dbd8bf7a664b1f63cde76a674b8.jpg

: F9 |3 t. j3 A$ B6 |4 e+ W. W+ M
原木色与白色成为了客厅与餐厅的主色调,书柜、电视柜、茶几、沙发……恰到好处的点缀,让空旷的客厅即使刷了白墙也不会显得清冷。
: W" H/ W2 R5 p; [' {( m
$ r/ h3 }+ Q% l. G1 T! ^: f% h7 v
c1ffe03e9e16dd849e4a668aa8e85e1a.jpg 7fe284c897a884633a0923401f7edeae.jpg

- N' x; x- ]/ |( O7 }- v" D
客厅的家具大多来自失物招领,成套的家具,相近的色系,不需要太花心思的搭配也美成了一幅画。

7 Q4 {9 l9 X$ m
b223d4cbce0f2ee38baac54e68995597.jpg fc1fc7d86c84030c9db492a925699c25.jpg
4 c) J; Z& {1 a( u1 |6 G
没有玄关的户型只能在门旁放了一个小鞋架,在鞋架的对面放上了一面大大的落地镜,站在门口就能整理自己的妆容,真的不要太方便哦~
; w5 i2 {8 O$ z% P
54b6a192b282dcd24bcdcb1d19fdfbdb.jpg 3fce431aa5b325a6261605c058e3f667.jpg ca52b5fc1ab93c2126467aad63e8c992.jpg 8899d266e4cf325e829fd46f4ab2b319.jpg
6 l2 c6 K" }2 o5 u3 \% R) r, ?
光有原木与白色怎么够,两种颜色未免单调。选了一盏略带复古气质的落地灯和金色几何形的吊灯略作点缀,房间也更有生气了。

: O, h, Q+ i; Z/ ^8 N. b9 i7 R
d5eaa3b7219289418145cb60f9161671.jpg 37f3c2922c1f69d26a57084748701272.jpg

! k7 H4 i! l! N. |% V
给客厅的小角落来一张近照。右侧的照片墙上都是小俩口的恩爱照

! o2 [# S5 }' J5 M) ]2 c
餐厅
342760899b3f58d7283600ef08a1e795.jpg b803f0ac562f4e6ce36473410a108981.jpg

( f# A$ f& @6 U: M) M! X7 F+ A' I3 s
现在的餐厅占据了客厅一半的空间,空间宽敞了可以满足十人以上的用餐,逢年过节一家人其乐融融的甚是友爱。
7 B  }2 z+ w6 D
平日得空餐桌也会变成工作上网的地方,一张桌子,两种角色扮演,随意切换。
- x* D  R2 T' {( w7 E
bbf12dec83572f859333400bcc616cab.jpg 1e8a0c7c4725434fb811174452ad2693.jpg

6 P! j% O& N( ]
靠墙放了一排的餐边柜,小家电、餐具、书籍还有其他零零碎碎的日用品都有了一个好归处。
) v4 W* G* e. r5 L8 h+ l) a# [
feb5fb7607130699a04f26a8eb06c3f4.jpg
: ~4 J. j# Q6 e' \1 T, L# L  h
靠窗的懒人榻放在这恰到好处,午后躺在这小睡一会或者捧一本喜欢的书,打发了这静谧的美好时光。

/ c3 }: w- Q: t& R% r
厨房
640f28200c6b3b9d637b8a89c4815154.jpg fe5e6d646e6c3d80cf503bf36268a5b8.jpg
. y& K, [3 w& P7 ~: [) D
原先的餐厅变成了西厨区,扩大了储藏空间也让喜爱烘焙的女主可以大展身手。每到周末,西厨区总是弥漫着一股股香甜的味道。
% l, A. X9 y( Q* y' z7 N
bc4c01caa5e6c584e4cc281b1c0c2b6d.jpg 9aec67b9ddf7c3be27b3bf8f923a7193.jpg
, P/ v# N$ j& V1 s
西厨区还刷了一面黑板墙,涂涂画画,女主时不时幻想着等有了宝宝就在黑板墙上教她abcdefg。
  c3 f5 n8 y! ~
953ac2dbc9b5551aba3c1c0cc0558f4e.jpg

! }! {* u1 J8 t2 ?+ a
再往里便是中餐爆炒区,不过对于颜值控的女主来说,家里不经常开火,加上经常打扫,即使白色橱柜也始终是一尘不染啦~
) m: t  [) U, W. Y% L) F5 N  y
主卧
7a2c22daf6ba9357566bf7e6c4319803.jpg 7f2f562c7070bec18a0f914e6c4ff65c.jpg
2 I" F, I! L) Q8 y$ b2 ?5 {$ C
主卧一切从简,一床两柜,再没有其他任何多余的物件,扮演着纯粹的卧室角色。
0 t- U1 L9 p" Q( F
ca902a7cc9d94b977728a094692fd62d.jpg 3f8328f26362e661eed475881a68c4b7.jpg 6055dc3a9a17074d945a08b9811272a2.jpg
# R  |( d) e  O$ w3 B
谷仓门的背后就是步入式的衣帽间了,衣帽间的背后还有一个虐狗的小故事。
1 h& L; i# {7 F, P9 W# p1 r
女主认识男主没多久的时候,他俩去了一趟宜家,女主无意间说了一句想要属于自己的衣帽间,三年后男主便真得让这个愿望成真。(有木有敲希望有这样的男朋友!!可惜这样的男朋友都是人家的!!)
# s0 k( }% J% A) Z8 O1 ?
df11cb2940927aa4b0f2b3103a03fdfa.jpg f812834dcdb5f75f8125cd31549a333a.jpg

" H; L  l1 P8 B& k5 t
床头一角,吊灯的灯罩如打着一把伞一般,也是可爱的紧。

- ]; P( @' V+ o) ^. V) _8 |
次卧
2ed3bbbf29fbfd75b0133ae81626b868.jpg e29e3111cdad997876e20152c2d3e5a6.jpg
1 R' D2 y0 H( u2 n1 Z2 S8 P
次卧暂时是夫妻俩的书房,平常打电脑游戏吃鸡就在这啦。未来等有了宝宝,这儿就成了她的小房间。

/ s* l( w: P& [7 t, r
卫生间
6fcefc82b0fcf609985c90165346abf6.jpg 8b578c4a236d42fe8f337362e470db50.jpg 403c0aa3d6e0806643a78d98e3d7e1c0.jpg
掀开餐厅右侧的门帘就是卫生间,干区设计了梳妆台与洗手台,女主早上刷完牙、洗完脸后就可以坐在椅子上梳妆,甚是方便。

1 x& _6 n! L; @( N/ x# U2 _
258d81e04e5a197f7130437fb9197f01.jpg
/ ?' K, a- c9 r2 @8 \
再往里走便是厕所和淋浴浴缸区,磨砂门一关,就变成了独立的两个区域,上厕所和洗澡两不干预。

$ g' i: @+ z9 t# Q6 ]
阳台
23d854f81ed19c130a2664fb6d8765d7.jpg 0d2a1087e4bc590b4d9890c66bc4f2bb.jpg

4 l0 |" V) j( B: f+ h, \
封了之后的阳台,增加了更多使用空间。阳台同时摆下了洗衣机和烘干机,没有任何晾晒架的阳台,还放下了懒人沙发,又是一处可以葛优躺的好去处。

2 P( w' p9 D+ Y5 {( Q- G. l南通0
0d2a1087e4bc590b4d9890c66bc4f2bb.jpg
23d854f81ed19c130a2664fb6d8765d7.jpg
258d81e04e5a197f7130437fb9197f01.jpg
403c0aa3d6e0806643a78d98e3d7e1c0.jpg
8b578c4a236d42fe8f337362e470db50.jpg
6fcefc82b0fcf609985c90165346abf6.jpg
e29e3111cdad997876e20152c2d3e5a6.jpg
2ed3bbbf29fbfd75b0133ae81626b868.jpg
f812834dcdb5f75f8125cd31549a333a.jpg
df11cb2940927aa4b0f2b3103a03fdfa.jpg
6055dc3a9a17074d945a08b9811272a2.jpg
3f8328f26362e661eed475881a68c4b7.jpg
ca902a7cc9d94b977728a094692fd62d.jpg
7f2f562c7070bec18a0f914e6c4ff65c.jpg
7a2c22daf6ba9357566bf7e6c4319803.jpg
953ac2dbc9b5551aba3c1c0cc0558f4e.jpg
9aec67b9ddf7c3be27b3bf8f923a7193.jpg
bc4c01caa5e6c584e4cc281b1c0c2b6d.jpg
fe5e6d646e6c3d80cf503bf36268a5b8.jpg
640f28200c6b3b9d637b8a89c4815154.jpg
feb5fb7607130699a04f26a8eb06c3f4.jpg
bbf12dec83572f859333400bcc616cab.jpg
b803f0ac562f4e6ce36473410a108981.jpg
342760899b3f58d7283600ef08a1e795.jpg
37f3c2922c1f69d26a57084748701272.jpg
d5eaa3b7219289418145cb60f9161671.jpg
8899d266e4cf325e829fd46f4ab2b319.jpg
ca52b5fc1ab93c2126467aad63e8c992.jpg
3fce431aa5b325a6261605c058e3f667.jpg
54b6a192b282dcd24bcdcb1d19fdfbdb.jpg
b223d4cbce0f2ee38baac54e68995597.jpg
7fe284c897a884633a0923401f7edeae.jpg
c1ffe03e9e16dd849e4a668aa8e85e1a.jpg
7fa86dbd8bf7a664b1f63cde76a674b8.jpg
7becb53b9d782066aece15a326c343f8.jpg
c7577e0f22c6a294a5673f3d4b3bafc8.jpg

该用户从未签到

发表于 2019-3-18 14:24 | 显示全部楼层 来自:江苏
果断收藏 是我喜欢的风格
回复 支持 反对

使用道具 举报

匿名
发表于 2019-3-18 15:12 | 显示全部楼层 来自:江苏
提示: 作者被禁止或删除 内容自动屏蔽
回复 支持 反对

使用道具 举报

匿名
发表于 2019-3-18 15:16 | 显示全部楼层 来自:江苏
提示: 作者被禁止或删除 内容自动屏蔽
回复 支持 反对

使用道具 举报

该用户从未签到

发表于 2019-4-14 19:26 | 显示全部楼层 来自:江苏
说实话,一点都不好看
回复 支持 反对

使用道具 举报

该用户从未签到

发表于 2019-4-14 20:46 来自手机WAP | 显示全部楼层 来自:江苏 移动/数据上网公共出口
不错不错,
回复 支持 反对

使用道具 举报

您需要登录后才可以回帖 登录 | 注册

本版积分规则

手机版|无图版|站务联系 | 商务合作 | 平台公约

信息产业部备案:苏ICP备05014191号-1 经营性ICP许可证:苏B2-20110445 苏公网安备 32060202000307号 © 2001-2019 0513.org All Right Reserved.

投诉争议 技术支持:第一互联 GMT+8, 2025-12-26 13:27 , Processed in 0.304429 second(s), 14 queries , MemCache On. 站点统计

快速回复 返回顶部 返回列表