濠滨论坛

点击扫描二维码

查看: 13346|回复: 4

89m2主流户型怎么设计?看技术猿夫妇打造最宜居极简风!

[复制链接]

该用户从未签到

发表于 2019-3-4 13:41 | 显示全部楼层 |阅读模式 来自:江苏
. L  t/ @/ A  g# u
. v! S/ m# A% T! h
89㎡算是现在的主流户型,多数朋友为让空间更大更舒适,都会选择两室一厅的格局。
# d. D. X1 L% p( ^! U& ]- G
今天的主人公字节夫妇却不这么想,考虑爸妈会来小住以及未来宝宝的住所,他毅然决然的要将89㎡改造成三室两厅,还要在客厅拥有独立书桌,在卧室打造独立衣帽间?

# J$ V% }- z4 k, n6 h6 n1 \
小户型却提出这么多要求,设计师又会如何满足呢?
( X- L) {! F! O8 ]2 b; z
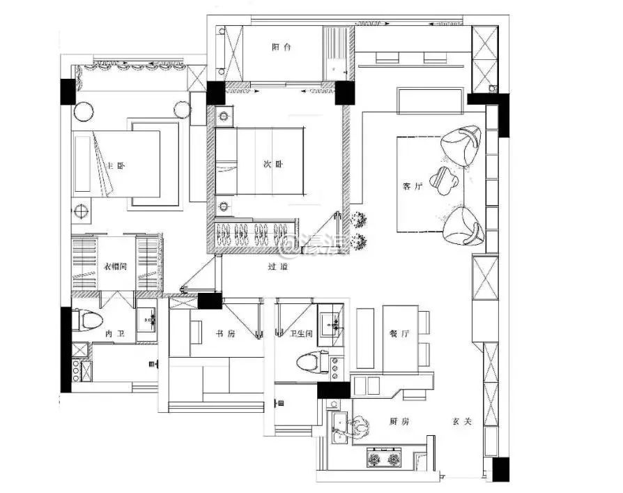
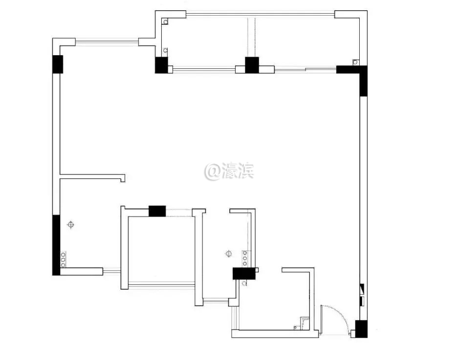
户型图
810ffba128225f94be00fcd4607d4dfa.jpg
- U: }2 Q6 R4 [; i
▲原始户型图
4de6242d60454f3bfa546b60c32ab623.jpg
, f4 a! w# L7 L) j% F. v' O! \

( l3 s0 m1 ?6 ^& [% h! t
改造关键点:
1.重新分隔客厅的大开间,划分出客厅、次卧与走廊的空间;
2.将阳台规划到客厅区域,并利用抬高设计划分出空间作为“字节”在公共空间的办公区;
3.厨房打通做开放式设计,增加小两口的互动;
4.打通主卧与邻近卫生间的墙面,在主卧中藏入衣帽间与卫生间。
3 q' K6 m5 z  l' `
客厅
24fb56ae4752d532ef7928a2bb833cb9.jpg ad3bbe463cd3f0f74ee23a048c60285d.jpg
) s" b  s9 l$ {
将阳台、厨房打通后,客厅是一个标准的长方形空间。
5 F" H/ ]3 d7 n; P, b5 z; `! x; |
迎合了小两口所说的那样,把设计做到极简,但又能满足所有的功能,使得这方小小空间中拥有了厨房、餐厅、客厅、影音室以及工作室五种不同的功能。

' [, r3 E4 T) ~8 v
3a646155df0b607176f9c0fbfe92c6f9.jpg da3f71d0b7e70276287a7f4f2f130ace.jpg e24131069d5489443b62c7d6aa24897f.jpg
' s" ^2 i) U$ L0 j* q3 v; w
“字节”作为一名软件工程师,日常需要极大的新知输入,书籍就是他人生的第二伴侣。为了满足大量储藏书籍的需求,在测量了常用书籍的最大宽度后,占用最少面积设计了房间内的超大“藏书馆”。
; `& f! ]* O; Q# v% p" q5 K

; j& b0 n; p8 g) F8 \+ d: O. c6 m 413832ad6ab4071e3157a730b8fa299f.jpg 96ff2542eb31e6c61f2db2eb6bf8d559.jpg
0 w8 j* w5 F' N1 i1 I. }
“藏书馆”不能少的当然还有标配的沙发,慵懒的窝在其中,你看你喜欢的代码,我读我喜欢的文字,一副岁月静好的模样。生活有时候就是不需要太多言语,我们各自有所喜欢,偶有眼神交汇,相视一笑,互相打趣,静待时光慢走。
. e, M0 ^% l% w! _' s4 D8 w
4b1dcdd5ac6ad7093a3207d2ac581af3.jpg
8 R2 d5 k. n+ l: ~$ f: N
略微抬高的空间划分,无意间变成了最随意的生活方式。跳脱出传统对于“坐”的拘束,处处可坐,随心而活,程序猿其实一点都没有想象中那么的刻板。
4 p# m. Y% t2 [) r$ Q' m4 L
84e317f5f6836ab56e966860836191c5.jpg

# E# K( q; L  b+ P
利用石膏板的厚度将超薄电视嵌入其中,不突兀,不厚重。多层次的石膏板设计,即使没有所谓的装饰画装饰,没有多元的色彩点缀,也自带极简的艺术美感。大白墙,其实也不是那么单调。

% _  e( ^5 v, W! d. V" q
54c2356b7c59da69275a454db4fd789a.jpg

9 w# r4 z0 H6 [' H
阳台与客厅的台阶隐秘之处,安装了电动幕布。只需轻轻挪动细角沙发,拉上阳台的百叶窗,就能完成它的第四次变身,变成咱们的女主人最喜欢的影音室。

2 a' h. T: S" c4 U5 b. b
a7b1c5576b0dfe082c75d42cdad3433f.jpg

0 D/ I! ]5 y3 j8 ?
所谓的
两人一狗,三餐四季
时光流逝,有TA相伴
足矣
( j7 t* M$ C$ V' X2 ^6 n% [/ l
餐厅
d39692360a9462185896598306751007.jpg e28034ddf37f76c08d1929c4d146b296.jpg
8 R; E) b0 d1 |3 R8 Z' R2 k8 O# n
餐厅配合整个空间的配色选择了暗黑色系,与白色的柜体形成鲜明的对比。选用轻量级的灯盏悬于餐桌,减轻上半部分空间的重量,营造空旷之感。

! G' }5 \& y9 q* n; ^' @0 S9 @
厨房
faa88a1e8cdd27340e4ac66f9aef36ca.jpg

7 l* ^6 U9 q3 `; y' @/ c6 Y3 P, I6 ~
程序猿的日常加班必不可少,因为两人的空闲时间不多,加上饮食习惯也不是那么重油重烟,开放式厨房自然成为了他们的首选。
敲除原本厨房L型的墙面后,操作空间变大了,做饭也不再是一个人的事。
7 e0 I! o" ~6 Q5 W1 a
8 G  F' t- J& b
字节说,从前住的地方有太多的墙面阻隔,即使一个屋檐下,他们俩还是经常各忙各的,忙碌到深夜也少有三两句话。
0 X1 Z- M2 ?  p! w% ?
但是现在的家中,他们最常待的就是客厅。不管是看书、做饭还是看电影,他们都能看到彼此,即使没有言语的交流,一个眼神知道你在,便是心安。
, u( B, F1 h; z7 d) a
卧室
13495a7f3cd4d0e362e49342e7a286e4.jpg

0 }. B/ L/ S4 p- W7 p0 m! ]
穿过餐厅与客厅的的过道就是卧室,墙面上挂了一幅说比不上什么风格但是还挺搭的装饰画,莫名的有些小好看。

3 o3 [+ Y  d$ v0 W9 D% P4 d
PS:当家中的狗仔们(黑色法斗其实是家里的装饰品)狭路相逢,着实抢镜诶!
  e- G! H" h2 X$ k# s, O
1 p7 i- X4 A. \& x& K- n' m( A
ce0fe5a34c21bebf21da6c9114c20447.jpg
9 y7 U( Q% Z/ q1 O% S6 f
利用极浅的莫兰迪灰,柔化卧室,一反客厅黑白色的粗犷感,恰到好处的灰色将一室变得柔软清亮。
; _; A; H  \5 l6 Q5 }
9b45e0877097d337423e1d66ffb91940.jpg

- N) O0 t. j3 c0 {; w* e8 f
配合带灰色的木饰硬包,黑色家具作为配饰点到为止,营造舒适自在的睡眠环境。虽然图片没有拍摄,但主卧中的步入式衣柜和卫生间可是这个家中的一大亮点,这里略表遗憾。

7 @( W1 i' k2 R# Y7 n3 |
书房
44ebbd662fed21fc22ee6434c494b70b.jpg

5 K! @' w, m) M4 \
说是书房,不过现阶段更多还是空置的状态。它的功能更多的被客厅的大书架所取代,谁让字节夫妇更喜欢两个人共处的空间呢。

6 R3 ~  G. Q' [2 d8 V# Z" \( ^/ C
c52407458e2ada480ca4fc3bdbf21c53.jpg
$ w+ D- p+ p- r" r. Q
当然现在用不上可不代表就可以缺少书房基本的功能,该有的储物收纳功能一样不落,未来总有它发挥之地。正如开头所说的,89㎡的优秀设计确实见过不少,或是在色彩应用上出彩,或是在软装搭配上凸显高级感。
6 ^& F2 K; d& x- e1 _: i8 a
但今天的89㎡让人眼前一亮的地方是,不用缤纷的色彩,仅纯粹的极简风造就了字节夫妇随意生活,它一定不是小编见过的案例中最多彩的,却是最容易让人放松的那一款。
6 @2 i# z$ T% S0 S
南通0
匿名
发表于 2019-3-4 14:05 | 显示全部楼层 来自:江苏
提示: 作者被禁止或删除 内容自动屏蔽
回复 支持 反对

使用道具 举报

匿名
发表于 2019-3-4 14:30 | 显示全部楼层 来自:江苏
提示: 作者被禁止或删除 内容自动屏蔽
回复 支持 反对

使用道具 举报

匿名
发表于 2019-3-4 14:32 | 显示全部楼层 来自:江苏
提示: 作者被禁止或删除 内容自动屏蔽
回复 支持 1 反对 0

使用道具 举报

该用户从未签到

发表于 2019-3-5 05:14 来自手机WAP | 显示全部楼层 来自:江苏
卧室像酒店风
回复 支持 反对

使用道具 举报

您需要登录后才可以回帖 登录 | 注册

本版积分规则

手机版|无图版|站务联系 | 商务合作 | 平台公约

信息产业部备案:苏ICP备05014191号-1 经营性ICP许可证:苏B2-20110445 苏公网安备 32060202000307号 © 2001-2019 0513.org All Right Reserved.

投诉争议 技术支持:第一互联 GMT+8, 2025-12-26 04:00 , Processed in 0.162159 second(s), 15 queries , MemCache On. 站点统计

快速回复 返回顶部 返回列表